賃貸一戸建て
静岡鉄道静岡清水線 長沼駅(静岡) 徒歩22分 2階建 築3年の賃貸物件情報(3LDK)
| 家賃 | 管理費等 | 敷金 | 礼金 | 間取り | 専有面積 |
|---|---|---|---|---|---|
| 13.9万円 | なし | 13.9万円 | 27.8万円 | 3LDK | 85.5m2 |
入居決定でお祝い金最大100,000円
Point
室内設備は浴室乾燥機・洗面所独立など大変充実しております。ぜひご覧いただきたい賃貸物件です。
提供:ハウスコム静岡株式会社 静岡草薙店

詳細情報 静岡鉄道静岡清水線 長沼駅(静岡) 徒歩22分 2階建 築3年
物件紹介
静岡鉄道静岡清水線長沼駅から徒歩22分にある一戸建てです。
このお部屋のインターホンにはTVモニタがついているため、相手の顔を確認してから来客対応することができます。
フローリングのお部屋なのでお掃除もラクラク。バス・トイレ別の仕様で、のんびりお風呂タイムも楽しめます。また、浴室乾燥機を使えば、雨の日でもお洗濯は問題ありません。
通信設備面ではBSアンテナがありますので、おうち時間も充実するでしょう(別途工事、契約料が必要な場合あり)。
ペット飼育の相談ができますので、あなたの大切な家族の一員も快適に暮らせるか、ぜひ確認してみてください。
このお部屋のインターホンにはTVモニタがついているため、相手の顔を確認してから来客対応することができます。
フローリングのお部屋なのでお掃除もラクラク。バス・トイレ別の仕様で、のんびりお風呂タイムも楽しめます。また、浴室乾燥機を使えば、雨の日でもお洗濯は問題ありません。
通信設備面ではBSアンテナがありますので、おうち時間も充実するでしょう(別途工事、契約料が必要な場合あり)。
ペット飼育の相談ができますので、あなたの大切な家族の一員も快適に暮らせるか、ぜひ確認してみてください。
お金・契約の情報
※「-」と表示されているものは、実際は料金が発生するものもございます。詳細はお問い合わせください。
| 家賃 | 13.9万円 | 管理費・共益費 | なし |
|---|---|---|---|
| 敷金 | 13.9万円 | 礼金 | 27.8万円 |
| 入居決定でお祝い金最大100,000円 | |||
| 保証金 | - | 償却・敷引 | - |
| 住宅保険料 | 1円 | 更新料 | - |
| その他費用 | 鍵交換費用(任意):2.75万円 | ||
| 保証会社利用 | 必須 | 保証会社名 | - |
| 保証会社費用 | - | 保証会社備考 | 株式会社オリコフォレントインシュア 初回保証料:月額賃料等の50%、月額支払手数料:月額賃料等の1.2% |
| 契約形態 | - | 契約期間 | 2年 |
| 入居・引渡期間 | 相談 | 現況 | - |
| 入居可能条件 | ペット可 | ||
| 契約備考 | 月額(安心入居サポート料(月) 1100円) その他設備/条件:室内洗濯機置き場、独立洗面台、全居室収納、シューズボックス | ||
部屋の情報
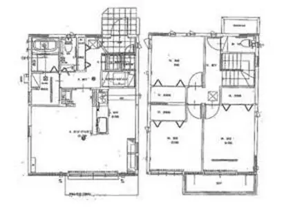
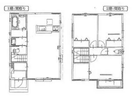
| 間取り | 3LDK | 専有面積 | 85.5m2 |
|---|---|---|---|
| 所在階 / 向き | 1階 / 南東 | バルコニー面積 | - |
| 水道 / ガス | ガス【プロパン】 | ||
| 設備 | バス・トイレ別、テレビドアホン、浴室乾燥機、追い焚き、カウンターキッチン、エアコン、温水洗浄便座、バルコニー、フローリング、床下収納、洗髪洗面化粧台、3口コンロ、コンロ:IH、BSアンテナ、シャワー、給湯、タイル張り | ||
| 当社物件ID | 27242155 | ||
建物の情報
| 建物名 | 静岡鉄道静岡清水線 長沼駅(静岡) 徒歩22分 2階建 築3年 | ||
|---|---|---|---|
| 所在地 | 静岡県静岡市葵区千代田2丁目 | ||
| 交通 | 静岡鉄道静岡清水線 長沼駅(静岡) 徒歩22分 | ||
| 階数 | 2階建 | 総戸数 | 1戸 |
| 築年月 | 2023年07月 / 築3年 | エレベーター | - |
| 駐車場 | 空有 | バイク置き場 | - |
| 駐輪場 | あり | 管理人/管理会社 | - |
| 周辺環境 | その他 ドラッグストア その他 公園 その他 銀行 その他 * | ||
| 建物種別 | 一戸建て | 建物構造 | 軽量鉄骨造 |
この部屋の取扱い不動産会社
| 会社名 | ハウスコム静岡株式会社 静岡北店 | ||
|---|---|---|---|
| 所在地 | 静岡県静岡市葵区10-6第一富士岡ビル1階 | 交通 | - |
| 営業時間 | 10:00~18:00 | 定休日 | - |
| 免許番号 | 静岡県知事(1)第14629号 | 取引態様 | 仲介 |
| 不動産会社管理番号 | HC4-5400339-D-0039 | 当社管理番号 | 468 |
| 所属団体 | 、 | ||
| 取扱い物件情報 | 物件詳細へ | ||
※各種情報と現状に差異がある場合は、現状優先となります。問い合わせをすることで、より詳しい条件、情報を確認する事ができます。
提供:ハウスコム静岡株式会社 静岡北店
この物件が気になったら掲載期限まであと5日
静岡鉄道静岡清水線 長沼駅(静岡) 徒歩22分 2階建 築3年に条件(家賃・エリア)が近い物件一覧
| 写真 | 家賃 管理費等 | 敷金 礼金 | 間取り 専有面積 | 築年数 | 最寄り駅 所在地 | キープ | 詳細 |
|---|---|---|---|---|---|---|---|
マンション ヴィラ・アストレ(2LDK/1階) | |||||||
![]() | 9.8万円 なし | なし 9.8万円 | 2LDK 62.59m2 | 築13年 | 静岡県静岡市葵区竜南1丁目 | 詳細を見る | |
マンション 中町・マイスターセブン(1LDK/5階) | |||||||
![]() | 8.9万円 5,000円 | 8.9万円 8.9万円 | 1LDK 44.5m2 | 新築 | 静岡鉄道静岡清水線 新静岡駅 徒歩11分 JR東海道本線 静岡駅 徒歩15分 東海道新幹線 静岡駅 徒歩15分 静岡県静岡市葵区中町 | 詳細を見る | |
マンション レジデンス両替町(3LDK/1階) | |||||||
![]() | 11万円 なし | 22万円 11万円 | 3LDK 67.81m2 | 築36年 | 東海道本線 静岡駅 徒歩10分 静岡鉄道静岡清水線 新静岡駅 徒歩12分 静岡県静岡市葵区両替町1丁目 | 詳細を見る | |
マンション メゾン・ド・ブランシェ(4LDK/2階) | |||||||
![]() | 10万円 なし | 20万円 10万円 | 4LDK 81m2 | 築40年 | 静岡県静岡市葵区丸山町 | 詳細を見る | |
アパート T-TASHIRO Ⅱ(2LDK/2階) | |||||||
![]() | 8.45万円 3,300円 | なし 8.45万円 | 2LDK 56.48m2 | 新築 | 東海道本線 西焼津駅 徒歩12分 静岡県焼津市小土 | 詳細を見る | |
アパート ナチューレ竜南 N棟(2LDK/2階) | |||||||
![]() | 9.3万円 3,000円 | 9.3万円 9.3万円 | 2LDK 62.49m2 | 築1年 | 静岡県静岡市葵区竜南3丁目 | 詳細を見る | |
アパート アヴァンス パレイル(1LDK/1階) | |||||||
![]() | 8.55万円 3,300円 | なし 8.55万円 | 1LDK 50.88m2 | 築1年 | 東海道本線 西焼津駅 徒歩14分 静岡県焼津市三ケ名 | 詳細を見る | |
テラスハウス グリースC(2LDK) | |||||||
![]() | 8.9万円 6,500円 | なし 3万円 | 2LDK 68.06m2 | 築8年 | 静岡県藤枝市高柳4丁目 | 詳細を見る | |


/105x80-f1-q70-wp1)




/105x80-f1-q70-wp1)

