賃貸マンション
レジディア広尾2の賃貸物件情報(ワンルーム/8階)
| 家賃 | 管理費等 | 敷金 | 礼金 | 間取り | 専有面積 |
|---|---|---|---|---|---|
| 14.1万円 | 1.5万円 | なし | なし | ワンルーム | 20.51m2 |
入居決定でお祝い金最大100,000円
Point
当店で室内をご覧頂けます!初期費用にクレジットカード使えます
提供:アパマンショップ中野店

詳細情報 レジディア広尾2
物件紹介
レジディア広尾2は東京都三田線水道橋駅から徒歩5分にあり、駅近で通勤通学に便利なマンションです。
このお部屋は2階以上に位置しているので、通行人や周囲の住人からの視線が気になりにくく、防犯面でも安心。建物のエントランスはオートロックがついており、インターホンにはTVモニタもついているため、相手の顔を確認してから来客対応することができます。
フローリングのお部屋なのでお掃除もラクラク。キッチンはシステムキッチン仕様になっていますので、お料理好きの方にもぴったり。バス・トイレは別なので、のんびりお風呂タイムも楽しめるでしょう。また、雨の日でも浴室乾燥機を使えば、お洗濯も問題ありません。
通信設備面では、インターネット接続が可能です。また、BSアンテナ・CSアンテナがありCATVにも対応しているので、おうち時間も充実するでしょう(別途工事、契約料が必要な場合あり)。
建物にはエレベーターがついているので、重い荷物があっても安心。共用部には宅配ボックスが設定されているので、不在の時にも荷物を受け取ることができます。また、ペット飼育の相談ができますので、あなたの大切な家族の一員も快適に暮らせるか、ぜひ確認してみてください。
このお部屋は2階以上に位置しているので、通行人や周囲の住人からの視線が気になりにくく、防犯面でも安心。建物のエントランスはオートロックがついており、インターホンにはTVモニタもついているため、相手の顔を確認してから来客対応することができます。
フローリングのお部屋なのでお掃除もラクラク。キッチンはシステムキッチン仕様になっていますので、お料理好きの方にもぴったり。バス・トイレは別なので、のんびりお風呂タイムも楽しめるでしょう。また、雨の日でも浴室乾燥機を使えば、お洗濯も問題ありません。
通信設備面では、インターネット接続が可能です。また、BSアンテナ・CSアンテナがありCATVにも対応しているので、おうち時間も充実するでしょう(別途工事、契約料が必要な場合あり)。
建物にはエレベーターがついているので、重い荷物があっても安心。共用部には宅配ボックスが設定されているので、不在の時にも荷物を受け取ることができます。また、ペット飼育の相談ができますので、あなたの大切な家族の一員も快適に暮らせるか、ぜひ確認してみてください。
お金・契約の情報
※「-」と表示されているものは、実際は料金が発生するものもございます。詳細はお問い合わせください。
| 家賃 | 14.1万円 | 管理費・共益費 | 1.5万円 |
|---|---|---|---|
| 敷金 | なし | 礼金 | なし |
| 入居決定でお祝い金最大100,000円 | |||
| 保証金 | - | 償却・敷引 | - |
| 住宅保険料 | 2.15万円(2年) | 更新料 | - |
| 保証会社利用 | 必須 | 保証会社名 | 【IRS③】IUCレジデンシャルサポート |
| 保証会社費用 | - | 保証会社備考 | 初回契約時:40%、更新時:10,000円、月額:1,000円、※保証会社の更新は1年毎となります |
| 契約形態 | - | 契約期間 | 2年 |
| 入居・引渡期間 | 相談 | 現況 | - |
| 入居可能条件 | ペット可 | ||
| 契約備考 | 無料駐輪場(空有) 小型犬可 猫可 ※敷金0:個人限定※1年未満解約時、賃料1ヶ月分の違約金有り※保証会社利用必須※大手法人契約の場合は敷金2ヶ月※ペットは小型犬又は猫どちらか1匹のみ相談可(敷金1ヶ月積み増し)※セカンドハウス利用不可 インターネット使用料 2200円/鍵交換費用 22000円 | ||
部屋の情報
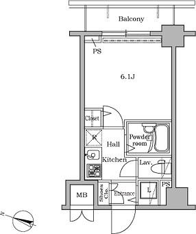
| 間取り | ワンルーム | 専有面積 | 20.51m2 |
|---|---|---|---|
| 間取り詳細 | LDK(10.7帖)、洋室(5帖) | ||
| 所在階 / 向き | 8階 / 東 | バルコニー面積 | - |
| 水道 / ガス | - | ||
| 設備 | バス・トイレ別、オートロック、テレビドアホン、宅配ボックス、浴室乾燥機、追い焚き、システムキッチン、エレベーター、温水洗浄便座、フローリング、タワーマンション、コンロ:ガス、CATV、CSアンテナ、BSアンテナ、洗濯機:室内 | ||
| 当社物件ID | 1015323 | ||
建物の情報
| 建物名 | レジディア広尾2 | ||
|---|---|---|---|
| 所在地 | 東京都渋谷区広尾5丁目 | ||
| 交通 | 東京都三田線 水道橋駅 徒歩5分 東京地下鉄日比谷線 広尾駅 徒歩7分 | ||
| 階数 | 12階建 | 総戸数 | 76戸 |
| 築年月 | 2005年11月 / 築21年 | エレベーター | あり |
| 駐車場 | - | バイク置き場 | あり |
| 駐輪場 | あり | 管理人/管理会社 | - |
| 周辺環境 | その他 クリーニング ワールド恵比寿店 徒歩7分(505m) その他 ファミリーマートメトロ恵比寿駅前店 徒歩13分(988m) その他 みずほ銀行恵比寿駅西口出張所 徒歩13分(1009m) その他 焼肉ライク 徒歩13分(1010m) その他 ココカラファイン恵比寿店 徒歩13分(1023m) その他 (株)三菱UFJ銀行/恵比寿支店 徒歩13分(1029m) その他 まるはち青果 徒歩13分(1035m) その他 ピーコックストア恵比寿店 徒歩14分(1062m) | ||
| 建物種別 | マンション | 建物構造 | SRC(鉄骨鉄筋コンクリート) |
この部屋の取扱い不動産会社
| 会社名 | アパマンショップ新宿東口店 | ||
|---|---|---|---|
| 所在地 | 東京都新宿区新宿3丁目 23−1新宿ターミナルビル6F | 交通 | 山手線新宿から徒歩1分 |
| 営業時間 | 09:30〜19:30(オンラインもご対応可能です!!) | 定休日 | - |
| 免許番号 | 国土交通大臣(1)10927 | 取引態様 | 仲介 |
| 不動産会社管理番号 | 87099451 | 当社管理番号 | 4 |
| 所属団体 | (公社)東京都宅地建物取引業協会 | ||
| 公正取引協議会 | (公社) 首都圏不動産公正取引協議会加盟 | ||
| 取扱い物件情報 | 物件詳細へ | ||
※各種情報と現状に差異がある場合は、現状優先となります。問い合わせをすることで、より詳しい条件、情報を確認する事ができます。
提供:アパマンショップ新宿東口店
この物件が気になったら掲載期限まであと13日
レジディア広尾2に条件(家賃・エリア)が近い物件一覧
| 写真 | 家賃 管理費等 | 敷金 礼金 | 間取り 専有面積 | 築年数 | 最寄り駅 所在地 | キープ | 詳細 |
|---|---|---|---|---|---|---|---|
マンション リビオレゾン目白通(1LDK/10階) | |||||||
![]() | 14万円 2万円 | 14万円 14万円 | 1LDK 40.09m2 | 築19年 | 西武池袋線 椎名町駅 徒歩8分 西武新宿線 下落合駅(東京) 徒歩9分 JR山手線 目白駅 徒歩15分 東京都新宿区下落合 | 詳細を見る | |
マンション アーレア戸越公園(1K/3階) | |||||||
![]() | 12.9万円 1万円 | 25.8万円 25.8万円 | 1K 34.4m2 | 築15年 | 東急大井町線 戸越公園駅 徒歩6分 東急池上線 荏原中延駅 徒歩6分 都営浅草線 戸越駅 徒歩6分 東京都品川区戸越 | 詳細を見る | |
マンション アルティローサ笹塚(ワンルーム/2階) | |||||||
![]() | 9.6万円 1.2万円 | なし なし | ワンルーム 15.08m2 | 築1年 | 京王電鉄京王線 笹塚駅 徒歩12分 東京地下鉄方南支線 方南町駅 徒歩13分 東京都中野区南台4丁目 | 詳細を見る | |
マンション アンティエ メゾン(1K/3階) | |||||||
![]() | 17万円 1.2万円 | なし 17万円 | 1K 30.24m2 | 築8年 | JR山手線 新橋駅 徒歩6分 都営大江戸線 汐留駅 徒歩7分 都営三田線 御成門駅 徒歩8分 東京都港区新橋 | 詳細を見る | |
マンション PREMIUM CUBE田町(1K/3階) | |||||||
![]() | 10万円 1.5万円 | なし 10万円 | 1K 22.42m2 | 築17年 | JR山手線 田町駅(東京) 徒歩8分 都営浅草線 三田駅(東京) 徒歩8分 新交通ゆりかもめ 日の出駅 徒歩9分 東京都港区芝浦 | 詳細を見る | |
マンション ブランシエスタ品川大井町パークエッジ(1DK/4階) | |||||||
![]() | 15.3万円 1.2万円 | なし なし | 1DK 25.08m2 | 築1年 | りんかい線 大井町駅 徒歩10分 東急大井町線 大井町駅 徒歩10分 JR京浜東北線 大井町駅 徒歩10分 東京都品川区南品川 | 詳細を見る | |
マンション LOVIE麻布十番(1K/5階) | |||||||
![]() | 15.4万円 1.4万円 | なし なし | 1K 25.51m2 | 築9年 | 東京メトロ南北線 麻布十番駅 徒歩9分 都営大江戸線 麻布十番駅 徒歩11分 都営三田線 白金高輪駅 徒歩12分 東京都港区西麻布 | 詳細を見る | |
マンション EBISU FOLIO ACT.3(1LDK/3階) | |||||||
![]() | 18.1万円 なし | 10万円 10万円 | 1LDK 44.4m2 | 築20年 | JR山手線 恵比寿駅 徒歩13分 東京メトロ日比谷線 広尾駅 徒歩15分 東京都渋谷区恵比寿 | 詳細を見る | |








