賃貸マンション
富岡レジデンスの賃貸物件情報(3LDK/6階)
| 家賃 | 管理費等 | 敷金 | 礼金 | 間取り | 専有面積 |
|---|---|---|---|---|---|
| 33万円 | なし | 33万円 | 33万円 | 3LDK | 76.92m2 |
入居決定でお祝い金最大100,000円
- 保証金
- -
- 償却・敷引
- 33万円
- 築年数
- 築43年
- 所在階
- 6階
- 向き
- 南
Point
人気の東西線2駅利用できる富岡2丁目の閑静な住宅街6階南向きの部屋 日当り良好の分譲賃貸マンション生活利便施設多数あり
提供:不動ハウジング(株)(SUUMO経由)

詳細情報 富岡レジデンス
物件紹介
富岡レジデンスは東京メトロ東西線門前仲町駅から徒歩7分にあり、駅近で通勤通学に便利なマンションです。
このお部屋は2階以上に位置しているので通行人や周囲の住人からの視線が気になりにくく、建物のエントランスはオートロックがついているので防犯性が高くなっています。
人気の南向きのお部屋。また、フローリングなのでお掃除もラクラク。キッチンはシステムキッチン仕様になっていますので、お料理好きの方にもぴったり。バス・トイレは別なので、のんびりお風呂タイムも楽しめるでしょう。また、雨の日でも浴室乾燥機を使えば、お洗濯も問題ありません。
通信設備面では、インターネット接続が可能です。また、CATVにも対応しているので、おうち時間も充実するでしょう(別途工事、契約料が必要な場合あり)。
建物にはエレベーターがついているので、重い荷物があっても安心。
このお部屋は2階以上に位置しているので通行人や周囲の住人からの視線が気になりにくく、建物のエントランスはオートロックがついているので防犯性が高くなっています。
人気の南向きのお部屋。また、フローリングなのでお掃除もラクラク。キッチンはシステムキッチン仕様になっていますので、お料理好きの方にもぴったり。バス・トイレは別なので、のんびりお風呂タイムも楽しめるでしょう。また、雨の日でも浴室乾燥機を使えば、お洗濯も問題ありません。
通信設備面では、インターネット接続が可能です。また、CATVにも対応しているので、おうち時間も充実するでしょう(別途工事、契約料が必要な場合あり)。
建物にはエレベーターがついているので、重い荷物があっても安心。
お金・契約の情報
※「-」と表示されているものは、実際は料金が発生するものもございます。詳細はお問い合わせください。
| 家賃 | 33万円 | 管理費・共益費 | なし |
|---|---|---|---|
| 敷金 | 33万円 | 礼金 | 33万円 |
| 入居決定でお祝い金最大100,000円 | |||
| 保証金 | - | 償却・敷引 | 33万円 |
| 住宅保険料 | - | 更新料 | - |
| 保証会社利用 | 必須 | 保証会社名 | - |
| 保証会社費用 | - | 保証会社備考 | 保証会社利用必 株式会社宅建ブレインズ 初回賃料の50% 以降年1万円 |
| 契約形態 | - | 契約期間 | - |
| 入居・引渡期間 | 即時 | 現況 | - |
| 契約備考 | 深川ギャザリアまで699m/まいばすけっと江東富岡2丁目店まで212m/通勤管理/リフォーム:2025年12月壁クロス・CFシート全面張替等 3LDK 事務所利用不可/ルームシェア不可 普通借家2年 損保【2.4万円2年】 バストイレ別、バルコニー、フローリング、浴室乾燥機、オートロック、陽当り良好、シューズボックス、システムキッチン、南向き、エレベーター、洗面所独立、押入、CATV、即入居可、閑静な住宅地、防犯カメラ、IHクッキングヒーター、照明付、電気コンロ、グリル付、敷金1ヶ月、CATVインターネット、2沿線利用可、収納1間半、LDK15畳以上、駅まで平坦、キッチンに窓、内装リフォーム済、浄水器、食器洗乾燥機、緑豊かな住宅地、眺望良好、24時間換気システム、天袋、エアコン3台、クロゼット2ヶ所、南面2室、南面リビング、浴室1坪以上、屋上、3駅以上利用可、駅徒歩10分以内、間口10m以上、天井高2.5m以上、集会所、24時間ゴミ出し可、風除室、敷地内ごみ置き場、専有面積25坪以上、日勤管理、和室、三面鏡付洗面化粧台、玄関収納、ダウンライト、畳張替済、壁紙張替済、通風良好 | ||
部屋の情報
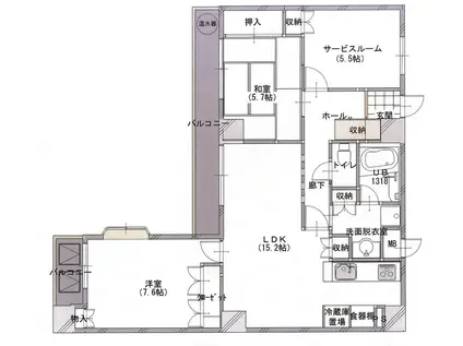
| 間取り | 3LDK | 専有面積 | 76.92m2 |
|---|---|---|---|
| 所在階 / 向き | 6階 / 南 | バルコニー面積 | 11m2 |
| 水道 / ガス | - | ||
| 設備 | バス・トイレ別、2階以上、オートロック、浴室乾燥機、インターネット対応、システムキッチン、エアコン、エレベーター、南向き、バルコニー、フローリング、洗髪洗面化粧台、コンロ:IH、CATV | ||
| 当社物件ID | 160191343 | ||
建物の情報
| 建物名 | 富岡レジデンス | ||
|---|---|---|---|
| 所在地 | 東京都江東区富岡 | ||
| 交通 | 東京メトロ東西線 門前仲町駅 徒歩7分 都営大江戸線 門前仲町駅 徒歩8分 東京メトロ半蔵門線 清澄白河駅 徒歩15分 | ||
| 階数 | 7階建 | 総戸数 | 27戸 |
| 築年月 | 1983年11月 / 築43年 | エレベーター | あり |
| 駐車場 | なし | バイク置き場 | - |
| 駐輪場 | - | 管理人/管理会社 | - |
| 周辺環境 | その他 まいばすけっと江東富岡2丁目店(スーパー)まで150m その他 スギ薬局江東富岡店(ドラッグストア)まで219m その他 セブンイレブン(コンビニ)まで250m その他 富岡八幡宮(その他)まで400m その他 成田山深川不動尊(その他)まで450m その他 深川ギャザリア(ショッピングセンター)まで699m | ||
| 建物種別 | マンション | 建物構造 | RC(鉄筋コンクリート) |
この部屋の取扱い不動産会社
| 会社名 | 不動ハウジング(株)(SUUMO経由) | ||
|---|---|---|---|
| 所在地 | 東京都江東区富岡2-10-12-101 | 交通 | - |
| 営業時間 | 10:00~18:00 | 定休日 | 年中無休 |
| 免許番号 | 東京都知事24174 | 取引態様 | 仲介 |
| 不動産会社管理番号 | 100482090636 | 当社管理番号 | 89 |
| 所属団体 | (公社)東京都宅地建物取引業協会会員 | ||
| 公正取引協議会 | (公社)首都圏不動産公正取引協議会加盟 | ||
| 取扱い物件情報 | 物件詳細へ | ||
※各種情報と現状に差異がある場合は、現状優先となります。問い合わせをすることで、より詳しい条件、情報を確認する事ができます。
提供:不動ハウジング(株)(SUUMO経由)
この物件が気になったら掲載期限まであと-1日
富岡レジデンスに条件(家賃・エリア)が近い物件一覧
| 写真 | 家賃 管理費等 | 敷金 礼金 | 間取り 専有面積 | 築年数 | 最寄り駅 所在地 | キープ | 詳細 |
|---|---|---|---|---|---|---|---|
マンション SAKURA(2LDK/2階) | |||||||
![]() | 20.1万円 5,000円 | 20.1万円 なし | 2LDK 54.84m2 | 築5年 | 京急本線 梅屋敷駅(東京) 徒歩7分 京急本線 大森町駅 徒歩9分 東京都大田区大森中 | 詳細を見る | |
一戸建て 京浜急行電鉄本線 梅屋敷駅(東京) 徒歩9分 築25年(3LDK) | |||||||
![]() | 20万円 なし | 20万円 20万円 | 3LDK 80.82m2 | 築25年 | 京浜急行電鉄本線 梅屋敷駅(東京) 徒歩9分 京浜東北・根岸線 蒲田駅 徒歩10分 東京都大田区大森西7丁目 | 詳細を見る | |
マンション アーバネックス菊川(2LDK/3階) | |||||||
![]() | 20.5万円 1.5万円 | 20.5万円 なし | 2LDK 40.56m2 | 築7年 | 都営新宿線 菊川駅(東京) 徒歩7分 東京都墨田区立川 | 詳細を見る | |
マンション アーバネックス錦糸公園II(2LDK/10階) | |||||||
![]() | 22.8万円 2万円 | 22.8万円 なし | 2LDK 40.01m2 | 築2年 | JR総武線 錦糸町駅 徒歩4分 東京メトロ半蔵門線 錦糸町駅 徒歩4分 都営浅草線 押上駅 徒歩16分 東京都墨田区錦糸 | 詳細を見る | |
一戸建て 京浜急行電鉄本線 大森町駅 徒歩14分 築23年(3LDK) | |||||||
![]() | 20万円 なし | 20万円 20万円 | 3LDK 71.86m2 | 築23年 | 京浜急行電鉄本線 大森町駅 徒歩14分 京浜急行電鉄本線 梅屋敷駅(東京) 徒歩16分 東京都大田区大森東4丁目 | 詳細を見る | |
マンション ディームス東陽町(2LDK/4階) | |||||||
![]() | 26.9万円 1.5万円 | 26.9万円 26.9万円 | 2LDK 54.64m2 | 築8年 | 東京メトロ東西線 東陽町駅 徒歩7分 東京メトロ東西線 木場駅 徒歩10分 JR京葉線 潮見駅 徒歩34分 東京都江東区東陽 | 詳細を見る | |
マンション 京浜急行電鉄本線 梅屋敷駅(東京) 徒歩4分 築37年(3LDK/2階) | |||||||
![]() | 23万円 7,000円 | 23万円 23万円 | 3LDK 84.68m2 | 築37年 | 京浜急行電鉄本線 梅屋敷駅(東京) 徒歩4分 京浜急行電鉄本線 大森町駅 徒歩12分 東京都大田区大森西6丁目 | 詳細を見る | |
マンション ASTAGE前田(1LDK/4階) | |||||||
![]() | 5.6万円 4,000円 | なし なし | 1LDK 31.92m2 | 築3年 | 東京メトロ有楽町線 月島駅 徒歩4分 都営大江戸線 月島駅 徒歩4分 JR函館本線 手稲駅 徒歩7分 東京メトロ日比谷線 築地駅 徒歩18分 JR函館本線 稲積公園駅 徒歩26分 JR函館本線 稲穂駅 徒歩27分 北海道札幌市手稲区前田一条 | 詳細を見る | |









