賃貸マンション
コスモス町田C棟の賃貸物件情報(ワンルーム/3階)
| 家賃 | 管理費等 | 敷金 | 礼金 | 間取り | 専有面積 |
|---|---|---|---|---|---|
| 4.2万円 | 3,000円 | 4.2万円 | なし | ワンルーム | 19.57m2 |
入居決定でお祝い金最大100,000円
Point
お電話でのお問い合わせは8時30分から20時まで可能です!お気軽にフリーダイヤルまでご連絡ください♪◇webでのお申し込みも対応可能です◇
提供:(株)ネクストライフ溝の口店(SUUMO経由)

詳細情報 コスモス町田C棟
物件紹介
コスモス町田C棟はJR横浜線古淵駅から徒歩17分にあるマンションです。
このお部屋は2階以上に位置しているので、通行人や周囲の住人からの視線が気になりにくく、防犯面でも安心。インターホンにはTVモニタもついているため、相手の顔を確認してから来客対応することができます。
バス・トイレ別の仕様で、のんびりお風呂タイムも楽しめます。
通信設備面では、インターネットが無料で使えるので、月々の出費を抑えられるのも魅力です。また、CATVにも対応しているので、おうち時間も充実するでしょう(別途工事、CATVの契約料等が必要な場合あり)。
このお部屋は2階以上に位置しているので、通行人や周囲の住人からの視線が気になりにくく、防犯面でも安心。インターホンにはTVモニタもついているため、相手の顔を確認してから来客対応することができます。
バス・トイレ別の仕様で、のんびりお風呂タイムも楽しめます。
通信設備面では、インターネットが無料で使えるので、月々の出費を抑えられるのも魅力です。また、CATVにも対応しているので、おうち時間も充実するでしょう(別途工事、CATVの契約料等が必要な場合あり)。
お金・契約の情報
※「-」と表示されているものは、実際は料金が発生するものもございます。詳細はお問い合わせください。
| 家賃 | 4.2万円 | 管理費・共益費 | 3,000円 |
|---|---|---|---|
| 敷金 | 4.2万円 | 礼金 | なし |
| 入居決定でお祝い金最大100,000円 | |||
| 保証金 | - | 償却・敷引 | - |
| 住宅保険料 | - | 更新料 | - |
| 保証会社利用 | 必須 | 保証会社名 | - |
| 保証会社費用 | - | 保証会社備考 | 保証会社利用必 初回保証料(月額総賃料の50%) 年間保証料:13000円 |
| 契約形態 | - | 契約期間 | - |
| 入居・引渡期間 | 即時 | 現況 | - |
| 契約備考 | 駐輪場利用時:自転車登録料(初回のみ)550円バイク置場利用時:月額3300円鍵交換費用:17600円口座引き落とし手数料:月額330円退去時のクリーニング費用:33000円◆お持ちのクレジットカードで初期費用の決済が可能です◆初期費用のお見積り等、お気軽にお問い合わせくださいませ◆◆ 更新料 新賃料1.00ヶ月分 ワンルーム 単身者限定 普通借家2年 損保【2.07万円2年】 バストイレ別、バルコニー、エアコン、ガスコンロ対応、TVインターホン、室内洗濯置、シューズボックス、温水洗浄便座、駐輪場、CATV、即入居可、礼金不要、最上階、照明付、保証人不要、バイク置場、2沿線利用可、ネット使用料不要、2駅利用可、プロパンガス、初期費用カード決済可 | ||
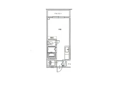
部屋の情報
| 間取り | ワンルーム | 専有面積 | 19.57m2 |
|---|---|---|---|
| 所在階 / 向き | 3階 / - | バルコニー面積 | - |
| 水道 / ガス | - | ||
| 設備 | バス・トイレ別、2階以上、テレビドアホン、インターネット対応、エアコン、温水洗浄便座、バルコニー、コンロ:ガス、CATV、インターネット使用料無料、洗濯機:室内 | ||
| 当社物件ID | 124822022 | ||
建物の情報
| 建物名 | コスモス町田C棟 | ||
|---|---|---|---|
| 所在地 | 東京都町田市森野 | ||
| 交通 | JR横浜線 古淵駅 徒歩17分 小田急線 町田駅 徒歩20分 | ||
| 階数 | 3階建 | 総戸数 | - |
| 築年月 | 1987年10月 / 築39年 | エレベーター | - |
| 駐車場 | なし | バイク置き場 | あり |
| 駐輪場 | あり | 管理人/管理会社 | - |
| 周辺環境 | その他 ファミリーマート(コンビニ)まで219m その他 Aプライス(スーパー)まで221m その他 スーパーワタナベ(スーパー)まで1254m その他 ジョナサン(飲食店)まで279m その他 マクドナルド(飲食店)まで1354m その他 新淵公園(公園)まで1347m | ||
| 建物種別 | マンション | 建物構造 | 鉄骨造 |
この部屋の取扱い不動産会社
| 会社名 | (株)ネクストライフ横浜店(SUUMO経由) | ||
|---|---|---|---|
| 所在地 | 神奈川県横浜市神奈川区鶴屋町2-21-9 三善ビル5階 | 交通 | - |
| 営業時間 | 10:00~18:30(電話8:30~21:00) | 定休日 | 年末年始 |
| 免許番号 | 国土交通大臣8175 | 取引態様 | 仲介 |
| 不動産会社管理番号 | 100484951426 | 当社管理番号 | 89 |
| 所属団体 | (公社)神奈川県宅地建物取引業協会会員 | ||
| 公正取引協議会 | (公社)首都圏不動産公正取引協議会加盟 | ||
| 取扱い物件情報 | 物件詳細へ | ||
※各種情報と現状に差異がある場合は、現状優先となります。問い合わせをすることで、より詳しい条件、情報を確認する事ができます。
提供:(株)ネクストライフ横浜店(SUUMO経由)
この物件が気になったら掲載期限まであと11日
コスモス町田C棟に条件(家賃・エリア)が近い物件一覧
| 写真 | 家賃 管理費等 | 敷金 礼金 | 間取り 専有面積 | 築年数 | 最寄り駅 所在地 | キープ | 詳細 |
|---|---|---|---|---|---|---|---|
アパート S・A・C西八王子(ワンルーム/1階) | |||||||
![]() | 3.7万円 3,000円 | なし なし | ワンルーム 16.55m2 | 築35年 | JR中央線 西八王子駅 徒歩7分 京王高尾線 山田駅(東京) 徒歩12分 京王高尾線 めじろ台駅 徒歩15分 東京都八王子市散田町 | 詳細を見る | |
アパート ファンテーヌ(1K/1階) | |||||||
![]() | 6万円 6,000円 | なし なし | 1K 30.27m2 | 築17年 | 京王電鉄高尾線 山田駅(東京) 徒歩6分 京王電鉄高尾線 めじろ台駅 徒歩18分 中央本線 西八王子駅 徒歩26分 東京都八王子市山田町 | 詳細を見る | |
アパート カサベルデ(2DK/1階) | |||||||
![]() | 6.1万円 2,000円 | なし なし | 2DK 49.67m2 | 築38年 | 横浜線 八王子みなみ野駅 徒歩33分 東京都八王子市寺田町 | 詳細を見る | |
マンション アベリア(1K/3階) | |||||||
![]() | 6.5万円 2,900円 | なし 13万円 | 1K 31.06m2 | 築10年 | 東京都八王子市中野山王2丁目 | 詳細を見る | |
アパート レオパレスWAKOKORO(1K/1階) | |||||||
![]() | 5.2万円 5,000円 | なし なし | 1K 28.02m2 | 築17年 | 京王電鉄高尾線 めじろ台駅 徒歩40分 京王電鉄高尾線 狭間駅 徒歩45分 東京都八王子市横川町 | 詳細を見る | |
アパート グラット ヒル(1K/1階) | |||||||
![]() | 4.7万円 3,200円 | なし なし | 1K 24.01m2 | 築22年 | 横浜線 相原駅 徒歩5分 横浜線 橋本駅(神奈川) 徒歩31分 横浜線 八王子みなみ野駅 徒歩51分 東京都町田市相原町 | 詳細を見る | |
アパート アムール琴(1K/1階) | |||||||
![]() | 4.5万円 3,000円 | なし 4.5万円 | 1K 23.18m2 | 築22年 | 京王相模原線 京王堀之内駅 徒歩14分 多摩都市モノレール 中央大学・明星大学駅 徒歩24分 京王相模原線 京王多摩センター駅 徒歩28分 東京都八王子市堀之内 | 詳細を見る | |
アパート レオパレスメイプルヒルズ(1K/3階) | |||||||
![]() | 4.9万円 5,000円 | なし 4.9万円 | 1K 23.18m2 | 築22年 | 京王電鉄高尾線 狭間駅 徒歩38分 京王電鉄高尾線 めじろ台駅 徒歩49分 東京都八王子市元八王子町2丁目 | 詳細を見る | |








