賃貸アパート
B.PLACEの賃貸物件情報(1LDK/2階)
| 家賃 | 管理費等 | 敷金 | 礼金 | 間取り | 専有面積 |
|---|---|---|---|---|---|
| 11.4万円 | 5,000円 | 11.4万円 | なし | 1LDK | 32.99m2 |
入居決定でお祝い金最大100,000円
Point
室内設備は洗面所独立・浴室乾燥機など豊富に揃っており、過ごしやすいお部屋になっております。
提供:ハウスコム東東京株式会社 成増店

詳細情報 B.PLACE
物件紹介
B.PLACEは東京都三田線高島平駅から徒歩17分にあるアパートです。
このお部屋は2階以上に位置しているので、通行人や周囲の住人からの視線が気になりにくく、防犯面でも安心。建物のエントランスはオートロックがついており、インターホンにはTVモニタもついているため、相手の顔を確認してから来客対応することができます。
人気の角部屋で周囲の居住者の生活音も気になりにくく、また、フローリングのお部屋なのでお掃除もラクラク。バス・トイレ別の仕様で、のんびりお風呂タイムも楽しめます。また、浴室乾燥機を使えば、雨の日でもお洗濯は問題ありません。
通信設備面では、インターネット接続が可能です。また、CATVにも対応しているので、おうち時間も充実するでしょう(別途工事、契約料が必要な場合あり)。
共用部には宅配ボックスが設定されているので、不在の時にも荷物を受け取ることができます。また、ペット飼育の相談ができますので、あなたの大切な家族の一員も快適に暮らせるか、ぜひ確認してみてください。
コンビニまで徒歩16分の場所にあり、日用品や食料品のお買い物にも便利です。
このお部屋は2階以上に位置しているので、通行人や周囲の住人からの視線が気になりにくく、防犯面でも安心。建物のエントランスはオートロックがついており、インターホンにはTVモニタもついているため、相手の顔を確認してから来客対応することができます。
人気の角部屋で周囲の居住者の生活音も気になりにくく、また、フローリングのお部屋なのでお掃除もラクラク。バス・トイレ別の仕様で、のんびりお風呂タイムも楽しめます。また、浴室乾燥機を使えば、雨の日でもお洗濯は問題ありません。
通信設備面では、インターネット接続が可能です。また、CATVにも対応しているので、おうち時間も充実するでしょう(別途工事、契約料が必要な場合あり)。
共用部には宅配ボックスが設定されているので、不在の時にも荷物を受け取ることができます。また、ペット飼育の相談ができますので、あなたの大切な家族の一員も快適に暮らせるか、ぜひ確認してみてください。
コンビニまで徒歩16分の場所にあり、日用品や食料品のお買い物にも便利です。
お金・契約の情報
※「-」と表示されているものは、実際は料金が発生するものもございます。詳細はお問い合わせください。
| 家賃 | 11.4万円 | 管理費・共益費 | 5,000円 |
|---|---|---|---|
| 敷金 | 11.4万円 | 礼金 | なし |
| 入居決定でお祝い金最大100,000円 | |||
| 保証金 | - | 償却・敷引 | - |
| 住宅保険料 | 1円 | 更新料 | - |
| 保証会社利用 | 利用可 | 保証会社名 | - |
| 保証会社費用 | - | 保証会社備考 | 初回:総賃料50% 以降毎月800円 |
| 契約形態 | - | 契約期間 | 2年 |
| 入居・引渡期間 | 2026年03月 | 現況 | - |
| 入居可能条件 | 事務所可、2人入居可、ペット可 | ||
| 契約備考 | 短期解約違約金有 ペット飼育条件:小型犬2匹まで、1匹につき賃料3000円、敷金一ヶ月追加。 自転車一世帯一台まで。二台目要相談。 月額(24Hサポート 1100円) その他設備/条件:室内洗濯機置き場、外断熱、免震構造、独立洗面台、クローゼット、シューズボックス | ||
部屋の情報
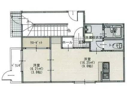
| 間取り | 1LDK | 専有面積 | 32.99m2 |
|---|---|---|---|
| 間取り詳細 | LDK(9.8帖)、洋室(3.8帖) | ||
| 所在階 / 向き | 2階 / 西 | バルコニー面積 | - |
| 水道 / ガス | 水道【公営】、ガス【都市】 | ||
| 設備 | バス・トイレ別、オートロック、テレビドアホン、宅配ボックス、浴室乾燥機、追い焚き、光ファイバー対応、エアコン、温水洗浄便座、角部屋、フローリング、洗髪洗面化粧台、2口コンロ、コンロ:IH、CATV、シャワー、給湯 | ||
| 当社物件ID | 160397825 | ||
建物の情報
| 建物名 | B.PLACE | ||
|---|---|---|---|
| 所在地 | 東京都板橋区徳丸6丁目 | ||
| 交通 | 東京都三田線 高島平駅 徒歩17分 東京都三田線 西台駅 徒歩20分 | ||
| 階数 | 3階建 | 総戸数 | 6戸 |
| 築年月 | 2026年02月 / 新築(築1年) | エレベーター | - |
| 駐車場 | なし | バイク置き場 | - |
| 駐輪場 | あり | 管理人/管理会社 | - |
| 周辺環境 | コンビニ 徒歩16分(1254m) 販売店 徒歩9分(658m) 病院 徒歩12分(913m) その他 ドラッグストア その他 公園 その他 銀行 その他 * | ||
| 建物種別 | アパート | 建物構造 | 木造 |
この部屋の取扱い不動産会社
| 会社名 | ハウスコム東東京株式会社 高田馬場店 | ||
|---|---|---|---|
| 所在地 | 東京都新宿区17-18マルシメビル1階 | 交通 | - |
| 営業時間 | 10:00~18:00 | 定休日 | 水曜定休 |
| 免許番号 | 東京都知事(1)第108283号 | 取引態様 | 仲介 |
| 不動産会社管理番号 | HC2-5379597-202-0227 | 当社管理番号 | 468 |
| 所属団体 | 、 | ||
| 取扱い物件情報 | 物件詳細へ | ||
※各種情報と現状に差異がある場合は、現状優先となります。問い合わせをすることで、より詳しい条件、情報を確認する事ができます。
提供:ハウスコム東東京株式会社 高田馬場店
この物件が気になったら掲載期限まであと4日
B.PLACEに条件(家賃・エリア)が近い物件一覧
| 写真 | 家賃 管理費等 | 敷金 礼金 | 間取り 専有面積 | 築年数 | 最寄り駅 所在地 | キープ | 詳細 |
|---|---|---|---|---|---|---|---|
マンション グランディール阿部(2DK/2階) | |||||||
![]() | 11.5万円 3,000円 | 11.5万円 なし | 2DK 44.77m2 | 築31年 | 東京地下鉄有楽町線 氷川台駅 徒歩9分 東京都練馬区桜台2丁目 | 詳細を見る | |
アパート ダンデリオン(ワンルーム/1階) | |||||||
![]() | 7.3万円 3,300円 | なし 7.3万円 | ワンルーム 26.91m2 | 築20年 | 東京メトロ南北線 志茂駅 徒歩7分 JR京浜東北線 東十条駅 徒歩15分 JR京浜東北線 赤羽駅 徒歩19分 東京都北区神谷 | 詳細を見る | |
マンション LUMIEC HONCHO イースト(2DK/2階) | |||||||
![]() | 15.6万円 3万円 | なし なし | 2DK 37.2m2 | 築3年 | 都営三田線 板橋本町駅 徒歩7分 都営三田線 板橋区役所前駅 徒歩16分 JR埼京線 十条駅(東京) 徒歩19分 東京都板橋区稲荷台 | 詳細を見る | |
アパート リルシア上石神井(1K/1階) | |||||||
![]() | 7.3万円 3,000円 | なし なし | 1K 19.19m2 | 築9年 | 東京都練馬区関町東1丁目 | 詳細を見る | |
マンション プライムアーバン池袋(1SK/10階) | |||||||
![]() | 14.8万円 1万円 | 14.8万円 14.8万円 | 1SK 31.63m2 | 築20年 | JR山手線 池袋駅 徒歩5分 東武東上線 北池袋駅 徒歩17分 東京メトロ有楽町線 要町駅 徒歩17分 東京都豊島区池袋 | 詳細を見る | |
マンション レオネクストさくらブリアン(1K/1階) | |||||||
![]() | 9.6万円 5,500円 | なし 9.6万円 | 1K 36.09m2 | 築10年 | 東京都板橋区若木3丁目 | 詳細を見る | |
アパート パークスクエアB(2DK/1階) | |||||||
![]() | 11万円 2,000円 | 11万円 11万円 | 2DK 50.3m2 | 築33年 | 東京メトロ有楽町線 平和台駅(東京) 徒歩5分 都営大江戸線 練馬春日町駅 徒歩18分 東京メトロ副都心線 氷川台駅 徒歩20分 東京都練馬区早宮 | 詳細を見る | |
マンション CITY WALK下板橋(1K/4階) | |||||||
![]() | 8.8万円 5,000円 | なし なし | 1K 18.07m2 | 築1年 | 東武東上線 下板橋駅 徒歩7分 都営三田線 板橋区役所前駅 徒歩7分 東武東上線 大山駅(東京) 徒歩9分 東京都板橋区板橋 | 詳細を見る | |


/105x80-f1-q70-wp1)






