賃貸マンション
グリーンヒルの賃貸物件情報(3LDK/3階)
| 家賃 | 管理費等 | 敷金 | 礼金 | 間取り | 専有面積 |
|---|---|---|---|---|---|
| 6.5万円 | なし | なし | なし | 3LDK | 75.24m2 |
入居決定でお祝い金最大100,000円
Point
☆駐車場も2台目も確保出来ます☆環境も静かで落ち着いて暮らせます。お問い合わせは川商ハウス伊敷店099-222-7100まで!
提供:(株)川商ハウス鹿児島北店(SUUMO経由)

詳細情報 グリーンヒル
物件紹介
グリーンヒルは鹿児島市電唐湊線加治屋町駅から徒歩38分にあるマンションです。
このお部屋は2階以上に位置しているので、通行人や周囲の住人からの視線が気になりにくく、防犯面でも安心です。
人気の南向き・フローリングのお部屋。角部屋でもあるため、周囲の居住者の生活音も気になりにくい場所です。バス・トイレ別の仕様で、のんびりお風呂タイムも楽しめます。
通信設備面では、インターネットが無料で使えるので、月々の出費を抑えられるのも魅力です。また、BSアンテナもありますので、おうち時間も充実するでしょう(別途工事、BSの契約料等が必要な場合あり)。
このお部屋は2階以上に位置しているので、通行人や周囲の住人からの視線が気になりにくく、防犯面でも安心です。
人気の南向き・フローリングのお部屋。角部屋でもあるため、周囲の居住者の生活音も気になりにくい場所です。バス・トイレ別の仕様で、のんびりお風呂タイムも楽しめます。
通信設備面では、インターネットが無料で使えるので、月々の出費を抑えられるのも魅力です。また、BSアンテナもありますので、おうち時間も充実するでしょう(別途工事、BSの契約料等が必要な場合あり)。
お金・契約の情報
※「-」と表示されているものは、実際は料金が発生するものもございます。詳細はお問い合わせください。
| 家賃 | 6.5万円 | 管理費・共益費 | なし |
|---|---|---|---|
| 敷金 | なし | 礼金 | なし |
| フリーレント | あり | ||
| 入居決定でお祝い金最大100,000円 | |||
| 保証金 | - | 償却・敷引 | - |
| 住宅保険料 | - | 更新料 | - |
| 契約形態 | - | 契約期間 | - |
| 入居・引渡期間 | 相談 | 現況 | - |
| 契約備考 | 家賃保証会社契約必須、別途保証料が必要です。 合計1.44万円(内訳:火災保険料(月額)1250円/鍵交換料13200円) 退去損料:入居時家賃の2ヶ月分 3LDK 損保【要】 バストイレ別、バルコニー、クロゼット、フローリング、シャワー付洗面台、室内洗濯置、シューズボックス、南向き、角住戸、脱衣所、洗面所独立、洗面化粧台、駐輪場、光ファイバー、外壁タイル張り、対面式キッチン、独立型キッチン、保証人不要、駐車2台可、二人入居相談、2沿線利用可、LDK15畳以上、ネット専用回線、ネット使用料不要、フリーレント、敷金2ヶ月、眺望良好、耐火構造、バス停徒歩3分以内、敷地内ごみ置き場、当社管理物件、和室、全居室6畳以上、都市ガス、BS、高速ネット対応、敷金・礼金不要、IT重説対応物件 | ||
部屋の情報
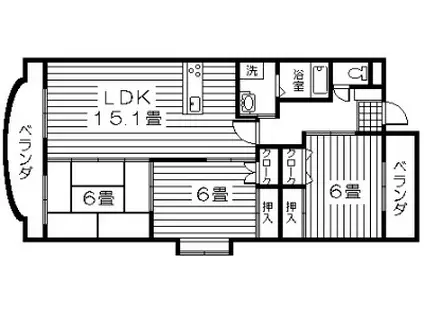
| 間取り | 3LDK | 専有面積 | 75.24m2 |
|---|---|---|---|
| 所在階 / 向き | 3階 / 南 | バルコニー面積 | - |
| 水道 / ガス | - | ||
| 設備 | バス・トイレ別、2階以上、インターネット対応、南向き、角部屋、バルコニー、フローリング、洗髪洗面化粧台、BSアンテナ、インターネット使用料無料、洗濯機:室内 | ||
| 当社物件ID | 19652271 | ||
建物の情報
| 建物名 | グリーンヒル | ||
|---|---|---|---|
| 所在地 | 鹿児島県鹿児島市玉里町 | ||
| 交通 | 鹿児島市電唐湊線 加治屋町駅 徒歩38分 JR鹿児島本線 鹿児島中央駅 徒歩41分 | ||
| 階数 | 4階建 | 総戸数 | 15戸 |
| 築年月 | 1998年06月 / 築28年 | エレベーター | - |
| 駐車場 | 空有 5000円/駐2台可 | バイク置き場 | - |
| 駐輪場 | あり | 管理人/管理会社 | - |
| 周辺環境 | その他 ファミリーマート玉里町店(コンビニ)まで310m その他 草牟田小学校(小学校)まで1700m その他 伊敷中学校(中学校)まで650m その他 ドラッグストアモリ草牟田店(ドラッグストア)まで620m その他 ほっかほっか亭玉里南店(飲食店)まで310m その他 タイヨー草牟田店(スーパー)まで1200m | ||
| 建物種別 | マンション | 建物構造 | RC(鉄筋コンクリート) |
この部屋の取扱い不動産会社
| 会社名 | (株)川商ハウス鹿児島北店(SUUMO経由) | ||
|---|---|---|---|
| 所在地 | 鹿児島県鹿児島市下伊敷1-5-8 | 交通 | - |
| 営業時間 | 9:30~17:30 | 定休日 | 毎週水曜日 |
| 免許番号 | 鹿児島県知事483 | 取引態様 | 仲介 |
| 不動産会社管理番号 | 100480450960 | 当社管理番号 | 89 |
| 所属団体 | (公社)鹿児島県宅地建物取引業協会会員 | ||
| 公正取引協議会 | (一社)九州不動産公正取引協議会加盟 | ||
| 取扱い物件情報 | 物件詳細へ | ||
※各種情報と現状に差異がある場合は、現状優先となります。問い合わせをすることで、より詳しい条件、情報を確認する事ができます。
提供:(株)川商ハウス鹿児島北店(SUUMO経由)
この物件が気になったら掲載期限まであと10日
グリーンヒルに条件(家賃・エリア)が近い物件一覧
| 写真 | 家賃 管理費等 | 敷金 礼金 | 間取り 専有面積 | 築年数 | 最寄り駅 所在地 | キープ | 詳細 |
|---|---|---|---|---|---|---|---|
マンション SEPLUS西千石(1DK/4階) | |||||||
![]() | 5.6万円 3,000円 | 11.2万円 なし | 1DK 25.38m2 | 新築 | 鹿児島市唐湊線 加治屋町駅 徒歩6分 鹿児島県鹿児島市西千石町 | 詳細を見る | |
マンション ROSE GARDEN(1LDK/2階) | |||||||
![]() | 6万円 2,000円 | なし なし | 1LDK 40.15m2 | 築26年 | 鹿児島市電唐湊線 加治屋町駅 徒歩25分 JR鹿児島本線 鹿児島中央駅 徒歩30分 鹿児島県鹿児島市草牟田 | 詳細を見る | |
マンション コーポリバーサイド(1K/5階) | |||||||
![]() | 4.2万円 なし | なし なし | 1K 28m2 | 築30年 | 鹿児島県鹿児島市伊敷1丁目 | 詳細を見る | |
マンション カーサ・アスール南郡元(1K/1階) | |||||||
![]() | 4.8万円 3,000円 | 4.8万円 なし | 1K 22.91m2 | 築18年 | 鹿児島市谷山線 南鹿児島駅前駅 徒歩2分 鹿児島県鹿児島市南郡元町 | 詳細を見る | |
マンション 東コーポ(3DK/4階) | |||||||
![]() | 5万円 2,000円 | 5万円 なし | 3DK 56.85m2 | 築40年 | 指宿枕崎線 南鹿児島駅 徒歩19分 鹿児島県鹿児島市紫原4丁目 | 詳細を見る | |
マンション イーストバレー(ワンルーム/1階) | |||||||
![]() | 4.2万円 1,500円 | 4.2万円 なし | ワンルーム 26.83m2 | 築9年 | 鹿児島市谷山線 谷山駅(市電) 徒歩5分 鹿児島県鹿児島市東谷山2丁目 | 詳細を見る | |
マンション セレーネ(ワンルーム/2階) | |||||||
![]() | 3.9万円 なし | なし なし | ワンルーム 24m2 | 築27年 | 鹿児島市唐湊線 高見橋駅 徒歩14分 鹿児島県鹿児島市薬師1丁目 | 詳細を見る | |
アパート A・グランドパレスⅡ(2LDK/2階) | |||||||
![]() | 6.7万円 4,000円 | 6.7万円 なし | 2LDK 50.84m2 | 新築 | 鹿児島県鹿児島市吉野町 | 詳細を見る | |









