賃貸マンション
グランシアタワー亀戸の賃貸物件情報(1K/12階)
| 家賃 | 管理費等 | 敷金 | 礼金 | 間取り | 専有面積 |
|---|---|---|---|---|---|
| 10.5万円 | 1万円 | なし | 10.5万円 | 1K | 25.88m2 |
入居決定でお祝い金最大100,000円
Point
類似物件多数、まとめて全てご案内致します★
提供:アパマンショップ東陽町店

詳細情報 グランシアタワー亀戸
物件紹介
グランシアタワー亀戸はJR総武線亀戸駅から徒歩8分にあり、駅近で通勤通学に便利なマンションです。
このお部屋は2階以上に位置しているので、通行人や周囲の住人からの視線が気になりにくく、防犯面でも安心。建物のエントランスはオートロックがついており、インターホンにはTVモニタもついているため、相手の顔を確認してから来客対応することができます。
フローリングのお部屋なのでお掃除もラクラク。キッチンはシステムキッチン仕様になっていますので、お料理好きの方にもぴったり。バス・トイレは別なので、のんびりお風呂タイムも楽しめるでしょう。また、雨の日でも浴室乾燥機を使えば、お洗濯も問題ありません。
通信設備面では、インターネット接続が可能です。また、BSアンテナ・CSアンテナがありCATVにも対応しているので、おうち時間も充実するでしょう(別途工事、契約料が必要な場合あり)。
建物にはエレベーターがついているので、重い荷物があっても安心。共用部には宅配ボックスが設定されているので、不在の時にも荷物を受け取ることができます。また、ペット飼育の相談ができますので、あなたの大切な家族の一員も快適に暮らせるか、ぜひ確認してみてください。
このお部屋は2階以上に位置しているので、通行人や周囲の住人からの視線が気になりにくく、防犯面でも安心。建物のエントランスはオートロックがついており、インターホンにはTVモニタもついているため、相手の顔を確認してから来客対応することができます。
フローリングのお部屋なのでお掃除もラクラク。キッチンはシステムキッチン仕様になっていますので、お料理好きの方にもぴったり。バス・トイレは別なので、のんびりお風呂タイムも楽しめるでしょう。また、雨の日でも浴室乾燥機を使えば、お洗濯も問題ありません。
通信設備面では、インターネット接続が可能です。また、BSアンテナ・CSアンテナがありCATVにも対応しているので、おうち時間も充実するでしょう(別途工事、契約料が必要な場合あり)。
建物にはエレベーターがついているので、重い荷物があっても安心。共用部には宅配ボックスが設定されているので、不在の時にも荷物を受け取ることができます。また、ペット飼育の相談ができますので、あなたの大切な家族の一員も快適に暮らせるか、ぜひ確認してみてください。
お金・契約の情報
※「-」と表示されているものは、実際は料金が発生するものもございます。詳細はお問い合わせください。
| 家賃 | 10.5万円 | 管理費・共益費 | 1万円 |
|---|---|---|---|
| 敷金 | なし | 礼金 | 10.5万円 |
| 入居決定でお祝い金最大100,000円 | |||
| 保証金 | - | 償却・敷引 | - |
| 住宅保険料 | 2,200円(2年) | 更新料 | - |
| 保証会社利用 | 必須 | 保証会社名 | - |
| 保証会社費用 | - | 保証会社備考 | 初回:総賃料80%、月額1% |
| 契約形態 | - | 契約期間 | 2年 |
| 入居・引渡期間 | 相談 | 現況 | - |
| 入居可能条件 | ペット可 | ||
| 契約備考 | ペット飼育時 敷金1ヶ月追加(償却)※犬・猫いずれか1匹(50cm・10kg以内)/指定電力案内有(契約自由) 鍵交換手数料 38500円/室内抗菌処理代 16500円 | ||
部屋の情報
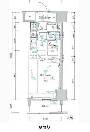
| 間取り | 1K | 専有面積 | 25.88m2 |
|---|---|---|---|
| 所在階 / 向き | 12階 / 西 | バルコニー面積 | - |
| 水道 / ガス | ガス【都市】 | ||
| 設備 | バス・トイレ別、オートロック、テレビドアホン、宅配ボックス、浴室乾燥機、インターネット対応、システムキッチン、エレベーター、バルコニー、フローリング、コンロ:ガス、CSアンテナ、BSアンテナ、シャワー、洗濯機:室内 | ||
| 当社物件ID | 17367515 | ||
建物の情報
| 建物名 | グランシアタワー亀戸 | ||
|---|---|---|---|
| 所在地 | 東京都江東区亀戸4丁目 | ||
| 交通 | 東武鉄道亀戸線 亀戸駅 徒歩9分 | ||
| 階数 | 12階建 | 総戸数 | - |
| 築年月 | 2015年02月 / 築12年 | エレベーター | あり |
| 駐車場 | - | バイク置き場 | あり |
| 駐輪場 | あり | 管理人/管理会社 | - |
| 周辺環境 | 中学校 第二亀戸中学校 徒歩10分(740m) 小学校 水神小学校 徒歩8分(628m) 小学校 第一亀戸小学校 徒歩10分(722m) その他 ココカラファイン くすりセイジョー亀戸店 徒歩3分(239m) その他 まいばすけっと亀戸2丁目店 徒歩4分(315m) その他 薬 マツモトキヨシ 亀戸北口店 徒歩5分(343m) その他 まいばすけっと 江東亀戸3丁目店 徒歩8分(566m) その他 薬 マツモトキヨシ 亀戸駅前店 徒歩8分(615m) | ||
| 建物種別 | マンション | 建物構造 | RC(鉄筋コンクリート) |
この部屋の取扱い不動産会社
| 会社名 | アパマンショップ東陽町店 | ||
|---|---|---|---|
| 所在地 | 東京都江東区東陽4丁目 6-17TSビル4階 | 交通 | 東京地下鉄東西線東陽町から徒歩1分 |
| 営業時間 | 09:30〜19:00 | 定休日 | - |
| 免許番号 | 東京都知事(4)89428 | 取引態様 | 仲介 |
| 不動産会社管理番号 | 112007507 | 当社管理番号 | 4 |
| 所属団体 | (公社)全日本不動産協会東京都本部 | ||
| 公正取引協議会 | (公社) 首都圏不動産公正取引協議会加盟 | ||
| 取扱い物件情報 | 物件詳細へ | ||
※各種情報と現状に差異がある場合は、現状優先となります。問い合わせをすることで、より詳しい条件、情報を確認する事ができます。
提供:アパマンショップ東陽町店
この物件が気になったら掲載期限まであと11日
グランシアタワー亀戸に条件(家賃・エリア)が近い物件一覧
| 写真 | 家賃 管理費等 | 敷金 礼金 | 間取り 専有面積 | 築年数 | 最寄り駅 所在地 | キープ | 詳細 |
|---|---|---|---|---|---|---|---|
アパート SEED SAVE PETIRASU Ⅲ(1LDK/3階) | |||||||
![]() | 11.5万円 1万円 | 23万円 11.5万円 | 1LDK 35.83m2 | 築1年 | 東京モノレール羽田 昭和島駅 徒歩12分 京浜急行電鉄本線 大森町駅 徒歩18分 東京都大田区大森東5丁目 | 詳細を見る | |
マンション MODULOR久が原(ワンルーム/1階) | |||||||
![]() | 10万円 1万円 | なし なし | ワンルーム 22.41m2 | 築22年 | 東急池上線 千鳥町駅 徒歩6分 東急池上線 池上駅 徒歩10分 東京都大田区千鳥1丁目 | 詳細を見る | |
マンション レジディア新川(1DK/2階) | |||||||
![]() | 13.6万円 1.5万円 | なし なし | 1DK 26.05m2 | 築24年 | JR京葉線 八丁堀駅(東京) 徒歩5分 東京メトロ日比谷線 八丁堀駅(東京) 徒歩8分 東京メトロ東西線 茅場町駅 徒歩9分 東京都中央区新川 | 詳細を見る | |
マンション SEED JUST B-BASE Ⅱ(1LDK/3階) | |||||||
![]() | 9.9万円 1.5万円 | 9.9万円 9.9万円 | 1LDK 25.41m2 | 築1年 | 東京モノレール羽田 昭和島駅 徒歩11分 京浜急行電鉄本線 梅屋敷駅(東京) 徒歩19分 東京都大田区大森南4丁目 | 詳細を見る | |
マンション プレール・ドゥーク銀座イースト 6階(1K/6階) | |||||||
![]() | 10万円 1万円 | なし 10万円 | 1K 23.35m2 | 築22年 | 東京地下鉄有楽町線 新富町駅(東京) 徒歩6分 京葉線 八丁堀駅(東京) 徒歩11分 東京地下鉄日比谷線 八丁堀駅(東京) 徒歩11分 東京都中央区湊3丁目 | 詳細を見る | |





