賃貸マンション
クラッシィハウス神田錦町の賃貸物件情報(1LDK/4階)
| 家賃 | 管理費等 | 敷金 | 礼金 | 間取り | 専有面積 |
|---|---|---|---|---|---|
| 19.5万円 | 2万円 | なし | 19.5万円 | 1LDK | 39.21m2 |
入居決定でお祝い金最大100,000円
- 保証金
- -
- 償却・敷引
- -
- 築年数
- 築8年
- 所在階
- 4階
- 向き
- 東
Point
現地集合、オンライン内見、LINEでのご相談などお客様のご希望に合わせた方法で物件をご提案いたします!SUUMOに載っていない非公開物件もご紹介できますので、ぜひお気軽にご相談ください♪
提供:Ptif(株)(SUUMO経由)

詳細情報 クラッシィハウス神田錦町
物件紹介
クラッシィハウス神田錦町は東京メトロ千代田線新御茶ノ水駅から徒歩5分にあり、駅近で通勤通学に便利なマンションです。
このお部屋は2階以上に位置しているので、通行人や周囲の住人からの視線が気になりにくく、防犯面でも安心。建物のエントランスはオートロックがついており、インターホンにはTVモニタもついているため、相手の顔を確認してから来客対応することができます。
フローリングのお部屋なのでお掃除もラクラク。室内には人気のウォークインクローゼットがありますので、たくさんの荷物も効率的に収納ができます。キッチンはシステムキッチン仕様になっていますので、お料理好きの方にもぴったり。バス・トイレは別なので、のんびりお風呂タイムも楽しめるでしょう。また、雨の日でも浴室乾燥機を使えば、お洗濯も問題ありません。
通信設備面では、インターネット接続が可能です。また、BSアンテナ・CSアンテナがありCATVにも対応しているので、おうち時間も充実するでしょう(別途工事、契約料が必要な場合あり)。
床暖房があり、冬も足元から暖かく快適に過ごすことができます。建物にはエレベーターがついているので、重い荷物があっても安心。共用部には宅配ボックスが設定されているので、不在の時にも荷物を受け取ることができます。また、ペット飼育の相談ができますので、あなたの大切な家族の一員も快適に暮らせるか、ぜひ確認してみてください。
このお部屋は2階以上に位置しているので、通行人や周囲の住人からの視線が気になりにくく、防犯面でも安心。建物のエントランスはオートロックがついており、インターホンにはTVモニタもついているため、相手の顔を確認してから来客対応することができます。
フローリングのお部屋なのでお掃除もラクラク。室内には人気のウォークインクローゼットがありますので、たくさんの荷物も効率的に収納ができます。キッチンはシステムキッチン仕様になっていますので、お料理好きの方にもぴったり。バス・トイレは別なので、のんびりお風呂タイムも楽しめるでしょう。また、雨の日でも浴室乾燥機を使えば、お洗濯も問題ありません。
通信設備面では、インターネット接続が可能です。また、BSアンテナ・CSアンテナがありCATVにも対応しているので、おうち時間も充実するでしょう(別途工事、契約料が必要な場合あり)。
床暖房があり、冬も足元から暖かく快適に過ごすことができます。建物にはエレベーターがついているので、重い荷物があっても安心。共用部には宅配ボックスが設定されているので、不在の時にも荷物を受け取ることができます。また、ペット飼育の相談ができますので、あなたの大切な家族の一員も快適に暮らせるか、ぜひ確認してみてください。
お金・契約の情報
※「-」と表示されているものは、実際は料金が発生するものもございます。詳細はお問い合わせください。
| 家賃 | 19.5万円 | 管理費・共益費 | 2万円 |
|---|---|---|---|
| 敷金 | なし | 礼金 | 19.5万円 |
| 入居決定でお祝い金最大100,000円 | |||
| 保証金 | - | 償却・敷引 | - |
| 住宅保険料 | - | 更新料 | - |
| 保証会社利用 | 必須 | 保証会社名 | - |
| 保証会社費用 | - | 保証会社備考 | 保証会社利用必 日本トラストコーポレーション保証 初回保証料:総賃料の80%+月額保証料:総賃料の1% |
| 契約形態 | - | 契約期間 | - |
| 入居・引渡期間 | - | 現況 | - |
| 入居可能条件 | ペット相談 | ||
| 契約備考 | 更新料新賃料1ヶ月 合計2.75万円(内訳:鍵交換代27500円) 1LDK ペット相談/ルームシェア相談 普通借家2年 損保【1.7万円2年】 バストイレ別、バルコニー、エアコン、ガスコンロ対応、シャワー付洗面台、浴室乾燥機、オートロック、室内洗濯置、システムキッチン、追焚機能浴室、温水洗浄便座、エレベーター、洗面所独立、洗面化粧台、2口コンロ、宅配ボックス、CATV、敷金不要、対面式キッチン、防犯カメラ、ペット相談、照明付、分譲賃貸、床暖房、ダブルロックキー、ルームシェア相談、人感照明センサー、3駅以上利用可、3沿線以上利用可、駅徒歩5分以内、都市ガス、シューズWIC、礼金1ヶ月、保証会社利用可 入居日:'26年3月下旬 | ||
部屋の情報
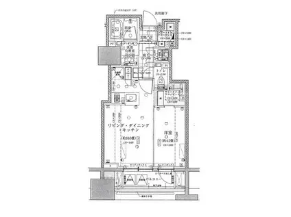
| 間取り | 1LDK | 専有面積 | 39.21m2 |
|---|---|---|---|
| 所在階 / 向き | 4階 / 東 | バルコニー面積 | 5m2 |
| 水道 / ガス | - | ||
| 設備 | バス・トイレ別、2階以上、オートロック、宅配ボックス、浴室乾燥機、追い焚き、システムキッチン、エアコン、エレベーター、温水洗浄便座、バルコニー、洗髪洗面化粧台、床暖房、2口コンロ、コンロ:ガス、CATV、洗濯機:室内 | ||
| 当社物件ID | 132859935 | ||
建物の情報
| 建物名 | クラッシィハウス神田錦町 | ||
|---|---|---|---|
| 所在地 | 東京都千代田区神田錦町 | ||
| 交通 | 東京メトロ千代田線 新御茶ノ水駅 徒歩5分 東京メトロ半蔵門線 大手町駅(東京) 徒歩6分 都営新宿線 小川町駅(東京) 徒歩6分 | ||
| 階数 | 13階建 | 総戸数 | - |
| 築年月 | 2018年03月 / 築8年 | エレベーター | あり |
| 駐車場 | なし | バイク置き場 | - |
| 駐輪場 | - | 管理人/管理会社 | - |
| 周辺環境 | その他 サミットストア神田スクエア店(スーパー)まで177m その他 まいばすけっと神田駅西口商店街店(スーパー)まで436m その他 セブンイレブン神田錦町2丁目店(コンビニ)まで127m その他 ローソン神田錦町店(コンビニ)まで183m その他 タリーズコーヒー神田スクエア店(飲食店)まで177m その他 神田錦町郵便局(郵便局)まで143m | ||
| 建物種別 | マンション | 建物構造 | RC(鉄筋コンクリート) |
この部屋の取扱い不動産会社
| 会社名 | A-Ship(株)(SUUMO経由) | ||
|---|---|---|---|
| 所在地 | 東京都港区芝浦3-11-1 キョウワクリエイト第一ビル2階 | 交通 | - |
| 営業時間 | 9時~22時 | 定休日 | なし |
| 免許番号 | 東京都知事110659 | 取引態様 | 仲介 |
| 不動産会社管理番号 | 100485905002 | 当社管理番号 | 89 |
| 所属団体 | (公社)東京都宅地建物取引業協会会員 | ||
| 公正取引協議会 | (公社)首都圏不動産公正取引協議会加盟 | ||
| 取扱い物件情報 | 物件詳細へ | ||
※各種情報と現状に差異がある場合は、現状優先となります。問い合わせをすることで、より詳しい条件、情報を確認する事ができます。
提供:A-Ship(株)(SUUMO経由)
この物件が気になったら掲載期限まであと10日
クラッシィハウス神田錦町に条件(家賃・エリア)が近い物件一覧
| 写真 | 家賃 管理費等 | 敷金 礼金 | 間取り 専有面積 | 築年数 | 最寄り駅 所在地 | キープ | 詳細 |
|---|---|---|---|---|---|---|---|
マンション レジディア文京本郷Ⅱ(1K/11階) | |||||||
![]() | 12.9万円 1.5万円 | なし なし | 1K 21.2m2 | 築21年 | 東京地下鉄丸ノ内線 本郷三丁目駅 徒歩3分 東京都大江戸線 本郷三丁目駅 徒歩3分 東京都三田線 水道橋駅 徒歩10分 東京都文京区本郷3丁目 | 詳細を見る | |
マンション びらしんび(ワンルーム/3階) | |||||||
![]() | 13.5万円 8,000円 | 13.5万円 13.5万円 | ワンルーム 37.77m2 | 築47年 | 東京地下鉄丸ノ内線 茗荷谷駅 徒歩6分 東京都三田線 千石駅 徒歩13分 東京地下鉄有楽町線 護国寺駅 徒歩17分 東京都文京区小石川5丁目 | 詳細を見る | |
マンション パークアクシス御茶ノ水(ワンルーム/7階) | |||||||
![]() | 17.7万円 なし | 17.7万円 35.4万円 | ワンルーム 26.76m2 | 築9年 | 山手線 秋葉原駅 徒歩7分 中央本線 御茶ノ水駅 徒歩8分 東京都文京区湯島1丁目 | 詳細を見る | |
マンション バウスフラッツ蔵前(1DK/9階) | |||||||
![]() | 14万円 1万円 | 14万円 なし | 1DK 25.08m2 | 築1年 | 東京都浅草線 蔵前駅 徒歩2分 東京都大江戸線 蔵前駅 徒歩7分 東京都台東区蔵前4丁目 | 詳細を見る | |
マンション セントレジスM(1K/2階) | |||||||
![]() | 11.95万円 8,500円 | 11.95万円 11.95万円 | 1K 33.22m2 | 築21年 | 都営三田線 千石駅 徒歩4分 東京メトロ南北線 本駒込駅 徒歩8分 JR山手線 巣鴨駅 徒歩17分 東京都文京区本駒込 | 詳細を見る | |
マンション メイクスデザイン茅場町(1K/6階) | |||||||
![]() | 12万円 1.5万円 | 12万円 12万円 | 1K 29.29m2 | 築20年 | 東京地下鉄日比谷線 茅場町駅 徒歩7分 東京地下鉄東西線 茅場町駅 徒歩7分 京葉線 八丁堀駅(東京) 徒歩8分 東京都中央区新川1丁目 | 詳細を見る | |
マンション レジディア神田岩本町(ワンルーム/11階) | |||||||
![]() | 11.9万円 1.5万円 | なし なし | ワンルーム 22.78m2 | 築23年 | 東京都新宿線 岩本町駅 徒歩3分 東京地下鉄日比谷線 秋葉原駅 徒歩5分 中央本線 神田駅(東京) 徒歩7分 東京都千代田区岩本町2丁目 | 詳細を見る | |
マンション ザ・ライオンズフォーシア外神田(1DK/5階) | |||||||
![]() | 19.1万円 1.5万円 | 19.1万円 なし | 1DK 33.49m2 | 築1年 | 東京地下鉄銀座線 末広町駅(東京) 徒歩3分 総武・中央緩行線 秋葉原駅 徒歩9分 中央本線 御茶ノ水駅 徒歩10分 東京都千代田区外神田3丁目 | 詳細を見る | |









