賃貸アパート
メゾンKの賃貸物件情報(1K/2階)
| 家賃 | 管理費等 | 敷金 | 礼金 | 間取り | 専有面積 |
|---|---|---|---|---|---|
| 6.5万円 | 4,000円 | 6.5万円 | 6.5万円 | 1K | 27.53m2 |
入居決定でお祝い金最大100,000円
- 保証金
- -
- 償却・敷引
- -
- 築年数
- 築17年
- 所在階
- 2階
- 向き
- 南東
- 交通
- 西武池袋線 東久留米駅 徒歩9分
西武池袋線 清瀬駅 徒歩20分
西武池袋線 ひばりケ丘駅(東京) 徒歩32分
- 所在地
- 東京都東久留米市小山
メゾンK
[地図を表示]
Point
◆住環境良好◆CATVインターネット100Mbpsコース無料◆都市ガス◆TVドアホン◆システムキッチン◆浴室乾燥◆シャンプードレッサー◆ウォシュレット◆防犯カメラ◆バイク置場◆充実設備で新生活を♪
提供:トラストリアルエステート(株)(SUUMO経由)

詳細情報 メゾンK
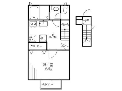
物件紹介
メゾンKは西武池袋線東久留米駅から徒歩9分にあり、駅近で通勤通学に便利なアパートです。
このお部屋は2階以上に位置しているので、通行人や周囲の住人からの視線が気になりにくく、防犯面でも安心。インターホンにはTVモニタもついているため、相手の顔を確認してから来客対応することができます。
人気の南向きのお部屋。また、フローリングなのでお掃除もラクラク。キッチンはシステムキッチン仕様になっていますので、お料理好きの方にもぴったり。バス・トイレは別なので、のんびりお風呂タイムも楽しめるでしょう。また、雨の日でも浴室乾燥機を使えば、お洗濯も問題ありません。
通信設備面では、インターネットが無料で使えるので、月々の出費を抑えられるのも魅力です。また、CATVにも対応しているので、おうち時間も充実するでしょう(別途工事、CATVの契約料等が必要な場合あり)。
このお部屋は2階以上に位置しているので、通行人や周囲の住人からの視線が気になりにくく、防犯面でも安心。インターホンにはTVモニタもついているため、相手の顔を確認してから来客対応することができます。
人気の南向きのお部屋。また、フローリングなのでお掃除もラクラク。キッチンはシステムキッチン仕様になっていますので、お料理好きの方にもぴったり。バス・トイレは別なので、のんびりお風呂タイムも楽しめるでしょう。また、雨の日でも浴室乾燥機を使えば、お洗濯も問題ありません。
通信設備面では、インターネットが無料で使えるので、月々の出費を抑えられるのも魅力です。また、CATVにも対応しているので、おうち時間も充実するでしょう(別途工事、CATVの契約料等が必要な場合あり)。
お金・契約の情報
※「-」と表示されているものは、実際は料金が発生するものもございます。詳細はお問い合わせください。
| 家賃 | 6.5万円 | 管理費・共益費 | 4,000円 |
|---|---|---|---|
| 敷金 | 6.5万円 | 礼金 | 6.5万円 |
| 入居決定でお祝い金最大100,000円 | |||
| 保証金 | - | 償却・敷引 | - |
| 住宅保険料 | - | 更新料 | - |
| 保証会社利用 | 必須 | 保証会社名 | - |
| 保証会社費用 | - | 保証会社備考 | 保証会社利用必 初回保証料:賃料総額の50% 以降:毎月1200円 |
| 契約形態 | - | 契約期間 | - |
| 入居・引渡期間 | - | 現況 | - |
| 契約備考 | ※更新時、更新事務手数料11,000円※退去時、ルームクリーニング費49,500円 ◆西武池袋線・西武新宿線・武蔵野線・清瀬市・東久留米市・東村山市・新座市・所沢市内のお部屋探しは『部屋なびplus』♪西東京エリア24年勤務の知識と経験豊富な元気なスタッフが、親切・丁寧に夢の新生活をサポートいたします♪家賃減額、家賃発生日の交渉などもお気軽にご相談ください♪夢のお部屋探しは『部屋なびplus』♪◆ 合計3.85万円(内訳:鍵交換代:22000円/24時間サポート費:16500円) 更新料新賃料(ヶ月):1.00ヶ月、バイク置場:空有:2000円/月 1K 単身者可 普通借家2年 損保【2万円2年】 バストイレ別、バルコニー、エアコン、ガスコンロ対応、クロゼット、フローリング、シャワー付洗面台、TVインターホン、浴室乾燥機、室内洗濯置、シューズボックス、システムキッチン、温水洗浄便座、脱衣所、洗面所独立、洗面化粧台、2口コンロ、駐輪場、CATV、閑静な住宅地、最上階、防犯カメラ、グリル付、保証人不要、単身者相談、敷金1ヶ月、CATVインターネット、バイク置場、ガスレンジ付、玄関ホール、ネット専用回線、ネット使用料不要、24時間換気システム、駅徒歩10分以内、上階無し、敷地内ごみ置き場、東南向き、都市ガス、洗面所にドア、高速ネット対応、礼金1ヶ月、IT重説対応物件、初期費用カード決済可 入居日:'26年4月下旬 | ||
部屋の情報
| 間取り | 1K | 専有面積 | 27.53m2 |
|---|---|---|---|
| 所在階 / 向き | 2階 / 南東 | バルコニー面積 | - |
| 水道 / ガス | - | ||
| 設備 | バス・トイレ別、2階以上、テレビドアホン、浴室乾燥機、インターネット対応、システムキッチン、エアコン、温水洗浄便座、南向き、バルコニー、フローリング、洗髪洗面化粧台、2口コンロ、コンロ:ガス、CATV、インターネット使用料無料、洗濯機:室内 | ||
| 当社物件ID | 3515313 | ||
建物の情報
| 建物名 | メゾンK | ||
|---|---|---|---|
| 所在地 | 東京都東久留米市小山 | ||
| 交通 | 西武池袋線 東久留米駅 徒歩9分 西武池袋線 清瀬駅 徒歩20分 西武池袋線 ひばりケ丘駅(東京) 徒歩32分 | ||
| 階数 | 2階建 | 総戸数 | - |
| 築年月 | 2009年12月 / 築17年 | エレベーター | - |
| 駐車場 | なし | バイク置き場 | あり |
| 駐輪場 | あり | 管理人/管理会社 | - |
| 周辺環境 | その他 イトーヨーカドー東久留米店(スーパー)まで570m その他 新鮮市場 東久留米店(スーパー)まで710m その他 TAIRAYA東久留米店(スーパー)まで800m その他 スーパーヤマザキ東久留米東口店(スーパー)まで750m その他 ファミリーマート東久留米本町二丁目店(コンビニ)まで340m その他 ファミリーマート東久留米本町店(コンビニ)まで640m | ||
| 建物種別 | アパート | 建物構造 | 木造 |
この部屋の取扱い不動産会社
| 会社名 | (株)部屋なびplus(SUUMO経由) | ||
|---|---|---|---|
| 所在地 | 東京都清瀬市松山1-2-26 中村ビル1階 | 交通 | - |
| 営業時間 | 10:00~18:00 | 定休日 | 水曜日 |
| 免許番号 | 東京都知事112254 | 取引態様 | 仲介 |
| 不動産会社管理番号 | 100494646558 | 当社管理番号 | 89 |
| 所属団体 | (公社)全日本不動産協会東京都本部会員 | ||
| 公正取引協議会 | (公社)首都圏不動産公正取引協議会加盟 | ||
| 取扱い物件情報 | 物件詳細へ | ||
※各種情報と現状に差異がある場合は、現状優先となります。問い合わせをすることで、より詳しい条件、情報を確認する事ができます。
提供:(株)部屋なびplus(SUUMO経由)
この物件が気になったら掲載期限まであと12日
メゾンKに条件(家賃・エリア)が近い物件一覧
| 写真 | 家賃 管理費等 | 敷金 礼金 | 間取り 専有面積 | 築年数 | 最寄り駅 所在地 | キープ | 詳細 |
|---|---|---|---|---|---|---|---|
アパート メゾンドセシール(ワンルーム/1階) | |||||||
![]() | 3.9万円 3,000円 | なし なし | ワンルーム 12.15m2 | 築36年 | 西武池袋線 ひばりケ丘駅(東京) 徒歩15分 西武新宿線 田無駅 徒歩17分 西武新宿線 西武柳沢駅 徒歩22分 東京都西東京市北原町 | 詳細を見る | |
アパート サニーコート(1K/1階) | |||||||
![]() | 6.6万円 6,000円 | なし 6.6万円 | 1K 24.18m2 | 築20年 | 西武新宿線 西武柳沢駅 徒歩7分 西武新宿線 東伏見駅 徒歩20分 東京都西東京市保谷町 | 詳細を見る | |
アパート ラ・シャンブル(ワンルーム/1階) | |||||||
![]() | 4.5万円 2,000円 | なし なし | ワンルーム 19.04m2 | 築35年 | JR武蔵野線 新小平駅 徒歩11分 西武多摩湖線 一橋学園駅 徒歩12分 西武国分寺線 鷹の台駅 徒歩18分 東京都小平市学園西町 | 詳細を見る | |
アパート 第二サンハイツコイヌマ(2DK/1階) | |||||||
![]() | 7.3万円 1,000円 | なし なし | 2DK 40m2 | 築38年 | JR武蔵野線 新秋津駅 徒歩12分 西武池袋線 秋津駅 徒歩15分 西武池袋線 所沢駅 徒歩23分 東京都東村山市秋津町 | 詳細を見る | |
アパート カーサ栗原II(2DK/2階) | |||||||
![]() | 6.1万円 2,000円 | 6.1万円 6.1万円 | 2DK 40.56m2 | 築40年 | 西武池袋線 東久留米駅 徒歩18分 東京都東久留米市中央町 | 詳細を見る | |
アパート ホワイトフォレスト(2DK/2階) | |||||||
![]() | 8.8万円 3,000円 | 8.8万円 8.8万円 | 2DK 53.52m2 | 築15年 | 西武池袋線 清瀬駅 徒歩13分 西武池袋線 東久留米駅 徒歩15分 西武池袋線 ひばりケ丘駅(東京) 徒歩42分 埼玉県新座市新堀 | 詳細を見る | |
アパート レオパレスヴィーブルII(1K/1階) | |||||||
![]() | 5.2万円 5,000円 | なし 5.2万円 | 1K 19.87m2 | 築24年 | 西武拝島線 小川駅(東京) 徒歩20分 西武国分寺線 鷹の台駅 徒歩24分 西武拝島線 東大和市駅 徒歩24分 東京都小平市小川町 | 詳細を見る | |







