賃貸一戸建て
奈良線 桃山駅 徒歩5分 2階建 築67年の賃貸物件情報(3LDK)
| 家賃 | 管理費等 | 敷金 | 礼金 | 間取り | 専有面積 |
|---|---|---|---|---|---|
| 23万円 | なし | 25万円 | なし | 3LDK | 126.66m2 |
入居決定でお祝い金最大100,000円
Point
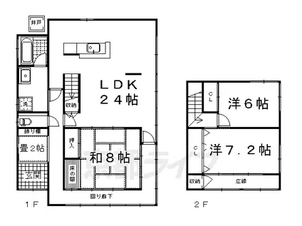
なんと24帖のLDK ひろびろとした間取り、和の趣きあふれる貸家です
提供:株式会社 京都ライフ 丹波橋店(賃貸スモッカ経由)

詳細情報 奈良線 桃山駅 徒歩5分 2階建 築67年
物件紹介
奈良線桃山駅から徒歩5分にあり、駅近で通勤通学に便利な一戸建てです。
人気の南向きのお部屋。また、フローリングなのでお掃除もラクラク。バス・トイレ別の仕様で、のんびりお風呂タイムも楽しめます。
人気の南向きのお部屋。また、フローリングなのでお掃除もラクラク。バス・トイレ別の仕様で、のんびりお風呂タイムも楽しめます。
お金・契約の情報
※「-」と表示されているものは、実際は料金が発生するものもございます。詳細はお問い合わせください。
| 家賃 | 23万円 | 管理費・共益費 | なし |
|---|---|---|---|
| 敷金 | 25万円 | 礼金 | なし |
| 入居決定でお祝い金最大100,000円 | |||
| 保証金 | - | 償却・敷引 | - |
| 住宅保険料 | 住宅保険料あり | 更新料 | - |
| 契約形態 | - | 契約期間 | 2年 |
| 入居・引渡期間 | 即時 | 現況 | 空室 |
| 契約備考 | JR桃山駅まで徒歩5分の分譲賃貸です。JR、京阪、近鉄のトリプルアクセス。礼金、更新料ナシです。嬉しい3点セパレートなど充実の設備。TVホンでセキュリティも安心です。コンビニ、スーパーなど近くにあって便利ですよ。 ファイテック(消火剤):4,950円 アルコール殺菌・消毒:22,000円 更新料:無し その他設備/条件:TVドアホン、即入居可 | ||
部屋の情報
| 間取り | 3LDK | 専有面積 | 126.66m2 |
|---|---|---|---|
| 間取り詳細 | 和室(8帖)、洋室(6帖)、洋室(7.2帖)、LDK(24帖) | ||
| 所在階 / 向き | 地下階 / 南 | バルコニー面積 | - |
| 水道 / ガス | ガス【都市】 | ||
| 設備 | バス・トイレ別、追い焚き、カウンターキッチン、温水洗浄便座、南向き、フローリング、専用庭、洗濯機:室内 | ||
| 当社物件ID | 158770293 | ||
建物の情報
| 建物名 | 奈良線 桃山駅 徒歩5分 2階建 築67年 | ||
|---|---|---|---|
| 所在地 | 京都府京都市伏見区桃山筑前台町 | ||
| 交通 | 奈良線 桃山駅 徒歩5分 近鉄京都線 桃山御陵前駅 徒歩9分 | ||
| 階数 | 2階建 | 総戸数 | - |
| 築年月 | 1960年01月 / 築67年 | エレベーター | - |
| 駐車場 | - | バイク置き場 | - |
| 駐輪場 | - | 管理人/管理会社 | - |
| 建物種別 | 一戸建て | 建物構造 | 木造 |
この部屋の取扱い不動産会社
| 会社名 | 株式会社 京都ライフ 伏見桃山店(賃貸スモッカ経由) | ||
|---|---|---|---|
| 所在地 | 京都市伏見区観音寺町215-1 CONNECT桃山2F | 交通 | - |
| 営業時間 | - | 定休日 | - |
| 免許番号 | 京都府知事(11)第6353号 | 取引態様 | 仲介 |
| 不動産会社管理番号 | kyotolife_68333-1 | 当社管理番号 | 463 |
| 所属団体 | 京都府宅地建物取引業協会\n公益社団法人近畿地区不動産公正取引協議会 | ||
| 公正取引協議会 | 全国宅地建物取引業保証協会 | ||
| 取扱い物件情報 | 物件詳細へ | ||
※各種情報と現状に差異がある場合は、現状優先となります。問い合わせをすることで、より詳しい条件、情報を確認する事ができます。
提供:株式会社 京都ライフ 伏見桃山店(賃貸スモッカ経由)
この物件が気になったら掲載期限まであと6日
奈良線 桃山駅 徒歩5分 2階建 築67年に条件(家賃・エリア)が近い物件一覧
| 写真 | 家賃 管理費等 | 敷金 礼金 | 間取り 専有面積 | 築年数 | 最寄り駅 所在地 | キープ | 詳細 |
|---|---|---|---|---|---|---|---|
マンション 京阪電気鉄道京阪線 丹波橋駅 徒歩3分 新築(2LDK/1階) | |||||||
![]() | 18万円 1万円 | 5万円 35万円 | 2LDK 68.42m2 | 新築 | 京阪電気鉄道京阪線 丹波橋駅 徒歩3分 近鉄京都線 近鉄丹波橋駅 徒歩4分 京都府京都市伏見区 | 詳細を見る | |
マンション 京阪電気鉄道京阪線 伏見桃山駅 徒歩6分 新築(2LDK/3階) | |||||||
![]() | 18.2万円 9,000円 | 5万円 35万円 | 2LDK 74.93m2 | 新築 | 京阪電気鉄道京阪線 伏見桃山駅 徒歩6分 近鉄京都線 桃山御陵前駅 徒歩7分 京都府京都市伏見区今町 | 詳細を見る | |
アパート 京阪電気鉄道京阪線 丹波橋駅 徒歩7分 築10年(3LDK/1階) | |||||||
![]() | 18.5万円 なし | 18.5万円 37万円 | 3LDK 78.67m2 | 築10年 | 京阪電気鉄道京阪線 丹波橋駅 徒歩7分 近鉄京都線 近鉄丹波橋駅 徒歩7分 京都府京都市伏見区桃山町島津 | 詳細を見る | |
一戸建て 京阪電気鉄道京阪線 墨染駅 徒歩7分 築2年(2LDK) | |||||||
![]() | 15万円 なし | 18万円 22.7万円 | 2LDK 79.86m2 | 築2年 | 京阪電気鉄道京阪線 墨染駅 徒歩7分 近鉄京都線 伏見駅(京都) 徒歩10分 京都市烏丸線 竹田駅(京都) 徒歩20分 京都府京都市伏見区深草出羽屋敷町 | 詳細を見る | |
マンション シャーメゾン ヒカリ(2LDK/2階) | |||||||
![]() | 20万円 1万円 | 5万円 38万円 | 2LDK 75.03m2 | 新築 | 京阪電気鉄道京阪線 丹波橋駅 徒歩3分 近鉄京都線 近鉄丹波橋駅 徒歩6分 京阪電気鉄道京阪線 伏見桃山駅 徒歩12分 京都府京都市伏見区 | 詳細を見る | |
マンション 阪急電鉄京都線 長岡天神駅 徒歩5分 築5年(2LDK/1階) | |||||||
![]() | 15.1万円 1.1万円 | なし 30.2万円 | 2LDK 60.15m2 | 築5年 | 阪急電鉄京都線 長岡天神駅 徒歩5分 東海道本線 長岡京駅 徒歩15分 京都府長岡京市天神1丁目 | 詳細を見る | |
アパート 阪急電鉄京都線 西向日駅 徒歩2分 新築(2LDK/1階) | |||||||
![]() | 14.6万円 8,500円 | なし 29.2万円 | 2LDK 58.79m2 | 新築 | 阪急電鉄京都線 西向日駅 徒歩2分 東海道本線 向日町駅 徒歩28分 京都府向日市上植野町御塔道 | 詳細を見る | |
マンション グランドール伏見桃山(2LDK/4階) | |||||||
![]() | 16.9万円 9,000円 | 5万円 33万円 | 2LDK 70.9m2 | 新築 | 京阪電気鉄道京阪線 伏見桃山駅 徒歩6分 近鉄京都線 桃山御陵前駅 徒歩7分 京都府京都市伏見区今町 | 詳細を見る | |








