賃貸マンション
エスペランサ 2の賃貸物件情報(2SLDK/10階)
| 家賃 | 管理費等 | 敷金 | 礼金 | 間取り | 専有面積 |
|---|---|---|---|---|---|
| 17.9万円 | 9,000円 | 17.9万円 | 17.9万円 | 2SLDK | 65.86m2 |
入居決定でお祝い金最大100,000円
- 保証金
- -
- 償却・敷引
- -
- 築年数
- 築20年
- 所在階
- 10階
- 向き
- 東
Point
新生活応援!仲手0円不可物件のため、みつぼしは仲手半額以下相談にてご紹介☆退去前安心先行申込可物件(備考欄参考)☆来店不要web申込物件☆宅建士最後まで対応☆現地待合せ、IT重説、鍵郵送など柔軟対応
提供:(株)タウンハウジング千葉 市川店(SUUMO経由)

詳細情報 エスペランサ 2
物件紹介
エスペランサ 2は東京メトロ東西線葛西駅から徒歩5分にあり、駅近で通勤通学に便利なマンションです。
このお部屋は2階以上に位置しているので、通行人や周囲の住人からの視線が気になりにくく、防犯面でも安心。建物のエントランスはオートロックがついており、インターホンにはTVモニタもついているため、相手の顔を確認してから来客対応することができます。
フローリングのお部屋なのでお掃除もラクラク。キッチンはシステムキッチン仕様になっていますので、お料理好きの方にもぴったり。また、バス・トイレは別で、のんびりお風呂タイムも楽しめるでしょう。
通信設備面では、インターネット接続が可能です(別途工事、契約料が必要な場合あり)。
建物にはエレベーターがついているので、重い荷物があっても安心。共用部には宅配ボックスが設定されているので、不在の時にも荷物を受け取ることができます。
このお部屋は2階以上に位置しているので、通行人や周囲の住人からの視線が気になりにくく、防犯面でも安心。建物のエントランスはオートロックがついており、インターホンにはTVモニタもついているため、相手の顔を確認してから来客対応することができます。
フローリングのお部屋なのでお掃除もラクラク。キッチンはシステムキッチン仕様になっていますので、お料理好きの方にもぴったり。また、バス・トイレは別で、のんびりお風呂タイムも楽しめるでしょう。
通信設備面では、インターネット接続が可能です(別途工事、契約料が必要な場合あり)。
建物にはエレベーターがついているので、重い荷物があっても安心。共用部には宅配ボックスが設定されているので、不在の時にも荷物を受け取ることができます。
お金・契約の情報
※「-」と表示されているものは、実際は料金が発生するものもございます。詳細はお問い合わせください。
| 家賃 | 17.9万円 | 管理費・共益費 | 9,000円 |
|---|---|---|---|
| 敷金 | 17.9万円 | 礼金 | 17.9万円 |
| 入居決定でお祝い金最大100,000円 | |||
| 保証金 | - | 償却・敷引 | - |
| 住宅保険料 | - | 更新料 | - |
| 保証会社利用 | 必須 | 保証会社名 | - |
| 保証会社費用 | - | 保証会社備考 | 保証会社利用必 保証料(初回契約時)100%、 保証料(月額)1.5% |
| 契約形態 | - | 契約期間 | - |
| 入居・引渡期間 | - | 現況 | - |
| 契約備考 | 完成前、退去前物件の中には先行申込可物件(申込、審査まで進め内覧後に話を進めるかキャンセルするか判断できる申込み)や先行契約条件物件(実際の部屋を見ないで契約できる人のみ申込み受理)があります。先行で申し込みを検討しないと1番手が取りにくい物件も少なくありません。また、最近では6割以上の人が退去前申し込みを検討しています。どの申込方法まで検討可能か考えて物件を選ぶというのもポイントです。 合計6.6万円(内訳:鍵交換費用33000円、ダスキンムシ駆除サービス16500円(入居時)、除菌消臭サービス16500円(入居時)、) 安心サポート24:1100円(月額) 2SLDK 二人入居可/子供可 普通借家2年 損保【2.55万円2年】 バストイレ別、バルコニー、エアコン、ガスコンロ対応、クロゼット、フローリング、TVインターホン、オートロック、室内洗濯置、陽当り良好、シューズボックス、システムキッチン、追焚機能浴室、温水洗浄便座、エレベーター、洗面所独立、洗面化粧台、駐輪場、宅配ボックス、3口以上コンロ、対面式キッチン、防犯カメラ、保証人不要、二人入居相談、全居室フローリング、仲手0.55ヶ月、ネット専用回線、24時間換気システム、クロゼット2ヶ所、クロゼット3ヶ所、駅徒歩5分以内、高層階、敷地内ごみ置き場、都市ガス、IT重説対応物件、初期費用カード決済可 入居日:'26年4月上旬 | ||
部屋の情報
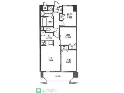
| 間取り | 2SLDK | 専有面積 | 65.86m2 |
|---|---|---|---|
| 所在階 / 向き | 10階 / 東 | バルコニー面積 | - |
| 水道 / ガス | - | ||
| 設備 | バス・トイレ別、2階以上、オートロック、テレビドアホン、宅配ボックス、追い焚き、インターネット対応、システムキッチン、エアコン、エレベーター、温水洗浄便座、バルコニー、フローリング、洗髪洗面化粧台、2口コンロ、コンロ:ガス、洗濯機:室内 | ||
| 当社物件ID | 133748340 | ||
建物の情報
| 建物名 | エスペランサ 2 | ||
|---|---|---|---|
| 所在地 | 東京都江戸川区中葛西 | ||
| 交通 | 東京メトロ東西線 葛西駅 徒歩5分 東京メトロ東西線 西葛西駅 徒歩20分 JR京葉線 葛西臨海公園駅 徒歩33分 | ||
| 階数 | 12階建 | 総戸数 | - |
| 築年月 | 2006年09月 / 築20年 | エレベーター | あり |
| 駐車場 | なし | バイク置き場 | - |
| 駐輪場 | あり | 管理人/管理会社 | - |
| 周辺環境 | その他 まいばすけっと中葛西8丁目店(スーパー)まで131m その他 ローソン葛西環七通り店(コンビニ)まで121m その他 ファミリーマート中葛西八丁目店(コンビニ)まで122m その他 ツルハドラッグ葛西駅前店(ドラッグストア)まで495m その他 医療法人社団昌医会葛西昌医会病院(病院)まで641m その他 業務スーパー葛西店(スーパー)まで182m | ||
| 建物種別 | マンション | 建物構造 | RC(鉄筋コンクリート) |
この部屋の取扱い不動産会社
| 会社名 | みつぼし(株)(SUUMO経由) | ||
|---|---|---|---|
| 所在地 | 東京都台東区雷門2-19-17 | 交通 | - |
| 営業時間 | 10:00~19:00 | 定休日 | 不定休 |
| 免許番号 | 東京都知事108085 | 取引態様 | 仲介 |
| 不動産会社管理番号 | 100484843174 | 当社管理番号 | 89 |
| 所属団体 | (公社)全日本不動産協会東京都本部会員 | ||
| 公正取引協議会 | (公社)首都圏不動産公正取引協議会加盟 | ||
| 取扱い物件情報 | 物件詳細へ | ||
※各種情報と現状に差異がある場合は、現状優先となります。問い合わせをすることで、より詳しい条件、情報を確認する事ができます。
提供:みつぼし(株)(SUUMO経由)
この物件が気になったら掲載期限まであと8日
エスペランサ 2に条件(家賃・エリア)が近い物件一覧
| 写真 | 家賃 管理費等 | 敷金 礼金 | 間取り 専有面積 | 築年数 | 最寄り駅 所在地 | キープ | 詳細 |
|---|---|---|---|---|---|---|---|
マンション パークアクシス押上テラス(ワンルーム/2階) | |||||||
![]() | 13.4万円 1万円 | 13.4万円 13.4万円 | ワンルーム 26.4m2 | 築10年 | 東京地下鉄半蔵門線 押上駅 徒歩5分 東武伊勢崎・大師線 曳舟駅 徒歩8分 東京都墨田区向島3丁目 | 詳細を見る | |
マンション プライマル南砂(1K/9階) | |||||||
![]() | 12万円 8,000円 | 12万円 なし | 1K 25.53m2 | 築5年 | 東京地下鉄東西線 南砂町駅 徒歩10分 東京都江東区南砂7丁目 | 詳細を見る | |
マンション コンフォリア・リヴ森下MUTIO(1K/8階) | |||||||
![]() | 14.4万円 1万円 | 14.4万円 なし | 1K 25.11m2 | 築1年 | 東京都新宿線 森下駅(東京) 徒歩5分 東京都江東区森下3丁目 | 詳細を見る | |
マンション レピュア東大島駅前レジデンス(2LDK/5階) | |||||||
![]() | 22.1万円 1.5万円 | なし なし | 2LDK 43.65m2 | 築1年 | 東京都新宿線 東大島駅 徒歩4分 東京都江東区大島8丁目 | 詳細を見る | |
一戸建て 東京都新宿線 大島駅(東京) 徒歩7分 築77年(1DK) | |||||||
![]() | 15.8万円 1万円 | 15.8万円 15.8万円 | 1DK 27.91m2 | 築77年 | 東京都新宿線 大島駅(東京) 徒歩7分 東京都新宿線 西大島駅 徒歩7分 総武・中央緩行線 亀戸駅 徒歩11分 東京都江東区大島3丁目 | 詳細を見る | |
マンション クレストコート門前仲町(1DK/10階) | |||||||
![]() | 15.5万円 1.2万円 | 15.5万円 なし | 1DK 26.14m2 | 築1年 | 都営大江戸線 門前仲町駅 徒歩7分 JR京葉線 越中島駅 徒歩11分 東京メトロ日比谷線 八丁堀駅(東京) 徒歩15分 東京都江東区永代 | 詳細を見る | |
マンション アーバンパーク押上(1DK/1階) | |||||||
![]() | 12.15万円 1.5万円 | なし なし | 1DK 25.81m2 | 築2年 | 東京メトロ半蔵門線 押上駅 徒歩11分 都営浅草線 本所吾妻橋駅 徒歩12分 東武伊勢崎線 曳舟駅 徒歩13分 東京都墨田区向島 | 詳細を見る | |
マンション ACP RESIDENCE 亀戸(1K/10階) | |||||||
![]() | 12.8万円 1.5万円 | なし なし | 1K 25.23m2 | 築2年 | 東武亀戸線 亀戸水神駅 徒歩5分 JR総武線 亀戸駅 徒歩9分 東武亀戸線 東あずま駅 徒歩16分 東京都江東区亀戸 | 詳細を見る | |




/105x80-f1-q70-wp1)




