賃貸マンション
家納喜本川館の賃貸物件情報(1K/11階)
| 家賃 | 管理費等 | 敷金 | 礼金 | 間取り | 専有面積 |
|---|---|---|---|---|---|
| 6.7万円 | なし | 6.7万円 | なし | 1K | 29.99m2 |
入居決定でお祝い金最大100,000円
- 保証金
- -
- 償却・敷引
- -
- 築年数
- 築18年
- 所在階
- 11階
- 向き
- 北東
Point
紙屋町まで徒歩圏内です!オートロック・モニターホン♪何でもお気軽にお問い合わせ下さい。※今なら敷金1ヶ月!!
提供:(株)誠晃(SUUMO経由)

詳細情報 家納喜本川館
物件紹介
家納喜本川館は広島電鉄本線本川町駅から徒歩2分にあり、駅近で通勤通学に便利なマンションです。
このお部屋は2階以上に位置しているので、通行人や周囲の住人からの視線が気になりにくく、防犯面でも安心。建物のエントランスはオートロックがついており、インターホンにはTVモニタもついているため、相手の顔を確認してから来客対応することができます。
フローリングのお部屋なのでお掃除もラクラク。バス・トイレ別の仕様で、のんびりお風呂タイムも楽しめます。
通信設備面では、インターネット接続が可能です。また、BSアンテナ・CSアンテナもありますので、おうち時間も充実するでしょう(別途工事、契約料が必要な場合あり)。
建物にはエレベーターがついているので、重い荷物があっても安心。共用部には宅配ボックスが設定されているので、不在の時にも荷物を受け取ることができます。
このお部屋は2階以上に位置しているので、通行人や周囲の住人からの視線が気になりにくく、防犯面でも安心。建物のエントランスはオートロックがついており、インターホンにはTVモニタもついているため、相手の顔を確認してから来客対応することができます。
フローリングのお部屋なのでお掃除もラクラク。バス・トイレ別の仕様で、のんびりお風呂タイムも楽しめます。
通信設備面では、インターネット接続が可能です。また、BSアンテナ・CSアンテナもありますので、おうち時間も充実するでしょう(別途工事、契約料が必要な場合あり)。
建物にはエレベーターがついているので、重い荷物があっても安心。共用部には宅配ボックスが設定されているので、不在の時にも荷物を受け取ることができます。
お金・契約の情報
※「-」と表示されているものは、実際は料金が発生するものもございます。詳細はお問い合わせください。
| 家賃 | 6.7万円 | 管理費・共益費 | なし |
|---|---|---|---|
| 敷金 | 6.7万円 | 礼金 | なし |
| フリーレント | あり | ||
| 入居決定でお祝い金最大100,000円 | |||
| 保証金 | - | 償却・敷引 | - |
| 住宅保険料 | - | 更新料 | - |
| 保証会社利用 | 必須 | 保証会社名 | 全保連 |
| 保証会社費用 | - | 保証会社備考 | 全保連利用必 保証料:賃料の100%1回、もしくは賃料の50%で毎年10000円 |
| 契約形態 | - | 契約期間 | - |
| 入居・引渡期間 | 即時 | 現況 | - |
| 入居可能条件 | 事務所可 | ||
| 契約備考 | 本川町電停まで50m/デイリーヤマザキまで70m/巡回管理/広電本川町駅前、コンビニすぐ、街中の便利な場所! 鍵交換代16500円 1K 損保【1.45万円2年】 バストイレ別、バルコニー、エアコン、ガスコンロ対応、クロゼット、フローリング、TVインターホン、オートロック、室内洗濯置、陽当り良好、シューズボックス、温水洗浄便座、脱衣所、エレベーター、洗面所独立、洗面化粧台、駐輪場、宅配ボックス、光ファイバー、礼金不要、2面採光、BS・CS、対面式キッチン、防犯カメラ、保証人不要、敷金1ヶ月、バイク置場、駅まで平坦、フリーレント、眺望良好、事務所相談、平坦地、耐震構造、全室2面採光、2駅利用可、路面電車沿線、駅徒歩5分以内、バス停徒歩3分以内、ゴミ回収サービス、風除室、敷地内ごみ置き場、都市ガス、洗面所にドア、縦型照明付洗面化粧台、BS、通風良好 | ||
部屋の情報
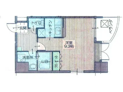
| 間取り | 1K | 専有面積 | 29.99m2 |
|---|---|---|---|
| 所在階 / 向き | 11階 / 北東 | バルコニー面積 | - |
| 水道 / ガス | - | ||
| 設備 | バス・トイレ別、2階以上、オートロック、テレビドアホン、宅配ボックス、インターネット対応、エアコン、エレベーター、温水洗浄便座、バルコニー、フローリング、洗髪洗面化粧台、コンロ:ガス、CSアンテナ、BSアンテナ、洗濯機:室内 | ||
| 当社物件ID | 542535 | ||
建物の情報
| 建物名 | 家納喜本川館 | ||
|---|---|---|---|
| 所在地 | 広島県広島市中区本川町 | ||
| 交通 | 広島電鉄本線 本川町駅 徒歩2分 広島電鉄本線 十日市町駅 徒歩4分 広島電鉄本線 原爆ドーム前駅 徒歩7分 | ||
| 階数 | 13階建 | 総戸数 | - |
| 築年月 | 2008年01月 / 築18年 | エレベーター | あり |
| 駐車場 | なし | バイク置き場 | あり |
| 駐輪場 | あり | 管理人/管理会社 | - |
| 周辺環境 | その他 基町クレドパセーラ(ショッピングセンター)まで664m その他 セブンイレブン(コンビニ)まで175m その他 平和記念公園(公園)まで490m その他 ユアーズ(スーパー)まで186m その他 デイリーヤマザキ(コンビニ)まで70m その他 国家公務員共済組合連合会広島記念病院(その他)まで115m | ||
| 建物種別 | マンション | 建物構造 | SRC(鉄骨鉄筋コンクリート) |
この部屋の取扱い不動産会社
| 会社名 | (株)誠晃(SUUMO経由) | ||
|---|---|---|---|
| 所在地 | 広島県廿日市市桜尾本町 9-12 | 交通 | - |
| 営業時間 | AM9:00~PM6:00 | 定休日 | 毎週日曜・年末年始・GW・お盆 |
| 免許番号 | 広島県知事6646 | 取引態様 | 仲介 |
| 不動産会社管理番号 | 100444917908 | 当社管理番号 | 89 |
| 所属団体 | (公社)広島県宅地建物取引業協会会員 | ||
| 公正取引協議会 | 中国地区不動産公正取引協議会加盟 | ||
| 取扱い物件情報 | 物件詳細へ | ||
※各種情報と現状に差異がある場合は、現状優先となります。問い合わせをすることで、より詳しい条件、情報を確認する事ができます。
提供:(株)誠晃(SUUMO経由)
この物件が気になったら掲載期限まであと10日
家納喜本川館に条件(家賃・エリア)が近い物件一覧
| 写真 | 家賃 管理費等 | 敷金 礼金 | 間取り 専有面積 | 築年数 | 最寄り駅 所在地 | キープ | 詳細 |
|---|---|---|---|---|---|---|---|
マンション SOL緑ヶ丘(1K/2階) | |||||||
![]() | 5.8万円 3,000円 | 5.8万円 5.8万円 | 1K 22.39m2 | 築7年 | JR呉線 向洋駅 徒歩15分 JR呉線 天神川駅 徒歩18分 JR芸備線 矢賀駅 徒歩29分 広島県安芸郡府中町浜田 | 詳細を見る | |
マンション 中川ビル(3DK/3階) | |||||||
![]() | 4.8万円 なし | 9.6万円 4.8万円 | 3DK 52.8m2 | 築50年 | 広島電鉄江波線 江波駅 徒歩11分 広島県広島市中区江波二本松1丁目 | 詳細を見る | |
マンション BOND BLD.III(1K/9階) | |||||||
![]() | 6.4万円 3,000円 | なし 6.4万円 | 1K 30.12m2 | 築15年 | 広島電鉄宇品線 鷹野橋駅 徒歩6分 広島電鉄宇品線 日赤病院前駅 徒歩8分 広島電鉄宇品線 市役所前駅(広島) 徒歩9分 広島県広島市中区大手町 | 詳細を見る | |
アパート 寺家アパート(1LDK/1階) | |||||||
![]() | 6.95万円 3,500円 | なし 7.95万円 | 1LDK 37.97m2 | 新築 | JR山陽本線 寺家駅 徒歩35分 JR山陽本線 西条駅(広島) 徒歩36分 JR山陽本線 八本松駅 徒歩57分 広島県東広島市西条町寺家 | 詳細を見る | |
マンション 第15やたがいビル(1K/5階) | |||||||
![]() | 4.8万円 なし | なし 4.8万円 | 1K 25.52m2 | 築29年 | 広島電鉄本線 観音町駅(広島) 徒歩6分 広島電鉄本線 天満町駅 徒歩8分 JR山陽本線 横川駅(広島) 徒歩24分 広島県広島市西区上天満町 | 詳細を見る | |
マンション 横川ラックビル(3DK/3階) | |||||||
![]() | 7.5万円 なし | 22.5万円 なし | 3DK 50.05m2 | 築43年 | 広島電鉄横川線 横川一丁目駅 徒歩5分 JR山陽本線 横川駅(広島) 徒歩6分 広島高速交通アストラムライン 城北駅 徒歩18分 広島県広島市西区横川新町 | 詳細を見る | |
マンション N東中央(2DK/2階) | |||||||
![]() | 6.5万円 3,000円 | 6.5万円 6.5万円 | 2DK 45m2 | 築56年 | JR呉線 呉駅 徒歩18分 広島県呉市東中央 | 詳細を見る | |
アパート レジデンシャル坂町横浜中央(1LDK/2階) | |||||||
![]() | 6.7万円 5,000円 | なし なし | 1LDK 45.58m2 | 築1年 | JR呉線 坂駅 徒歩10分 JR呉線 水尻駅 徒歩30分 JR呉線 矢野駅 徒歩46分 広島県安芸郡坂町横浜中央 | 詳細を見る | |









