賃貸マンション
ピアルアーナ東古松の賃貸物件情報(1K/4階)
| 家賃 | 管理費等 | 敷金 | 礼金 | 間取り | 専有面積 |
|---|---|---|---|---|---|
| 5.7万円 | 5,000円 | 11.4万円 | 5.7万円 | 1K | 28.87m2 |
入居決定でお祝い金最大100,000円
- 保証金
- -
- 償却・敷引
- -
- 築年数
- 築12年
- 所在階
- 4階
- 向き
- 南
Point
イオンモール岡山から徒歩1分の立地に店舗がございます。ご進学・ご就職・ご転勤・独立・住替えなど、SUMIKAならではのおもてなしで岡山全域の物件をご紹介させて頂きます。是非一度お問い合わせ下さい。
提供:SUMIKA不動産 (株)SUMIKA(SUUMO経由)

詳細情報 ピアルアーナ東古松
物件紹介
ピアルアーナ東古松はJR宇野線大元駅から徒歩12分にあるマンションです。
このお部屋は2階以上に位置しているので、通行人や周囲の住人からの視線が気になりにくく、防犯面でも安心。建物のエントランスはオートロックがついており、インターホンにはTVモニタもついているため、相手の顔を確認してから来客対応することができます。
人気の南向き・フローリングのお部屋。角部屋でもあるため、周囲の居住者の生活音も気になりにくい場所です。バス・トイレ別の仕様で、のんびりお風呂タイムも楽しめます。また、浴室乾燥機を使えば、雨の日でもお洗濯は問題ありません。
通信設備面では、インターネット接続が可能です。また、BSアンテナもありますので、おうち時間も充実するでしょう(別途工事、契約料が必要な場合あり)。
建物にはエレベーターがついているので、重い荷物があっても安心。共用部には宅配ボックスが設定されているので、不在の時にも荷物を受け取ることができます。
このお部屋は2階以上に位置しているので、通行人や周囲の住人からの視線が気になりにくく、防犯面でも安心。建物のエントランスはオートロックがついており、インターホンにはTVモニタもついているため、相手の顔を確認してから来客対応することができます。
人気の南向き・フローリングのお部屋。角部屋でもあるため、周囲の居住者の生活音も気になりにくい場所です。バス・トイレ別の仕様で、のんびりお風呂タイムも楽しめます。また、浴室乾燥機を使えば、雨の日でもお洗濯は問題ありません。
通信設備面では、インターネット接続が可能です。また、BSアンテナもありますので、おうち時間も充実するでしょう(別途工事、契約料が必要な場合あり)。
建物にはエレベーターがついているので、重い荷物があっても安心。共用部には宅配ボックスが設定されているので、不在の時にも荷物を受け取ることができます。
お金・契約の情報
※「-」と表示されているものは、実際は料金が発生するものもございます。詳細はお問い合わせください。
| 家賃 | 5.7万円 | 管理費・共益費 | 5,000円 |
|---|---|---|---|
| 敷金 | 11.4万円 | 礼金 | 5.7万円 |
| 入居決定でお祝い金最大100,000円 | |||
| 保証金 | - | 償却・敷引 | - |
| 住宅保険料 | - | 更新料 | - |
| 保証会社利用 | 必須 | 保証会社名 | - |
| 保証会社費用 | - | 保証会社備考 | 保証会社利用必 初回契約時:50%、更新時:10,000円 |
| 契約形態 | - | 契約期間 | - |
| 入居・引渡期間 | - | 現況 | - |
| 契約備考 | 巡回管理/SUMIKA不動産おすすめ物件。ご不明点や詳細は弊社までお問い合わせください。 合計2.75万円(内訳:鍵交換代 27500円税込) インターネット代(任意) 1650円/月額 1K 普通借家2年 損保【2.2万円2年】 バストイレ別、バルコニー、エアコン、クロゼット、フローリング、シャワー付洗面台、TVインターホン、浴室乾燥機、オートロック、室内洗濯置、陽当り良好、シューズボックス、南向き、角住戸、温水洗浄便座、脱衣所、エレベーター、洗面所独立、洗面化粧台、駐輪場、宅配ボックス、光ファイバー、外壁タイル張り、閑静な住宅地、2面採光、最上階、防犯カメラ、照明付、全居室収納、全居室洋室、全居室フローリング、駅まで平坦、敷金2ヶ月、眺望良好、全室南向き、エアコン全室、24時間換気システム、複層ガラス、南面リビング、全室2面採光、3駅以上利用可、3沿線以上利用可、路面電車沿線、バス2路線、24時間ゴミ出し可、敷地内ごみ置き場、全居室6畳以上、全居室8畳以上、プロパンガス、洗面所にドア、南面バルコニー、玄関収納、BS、高速ネット対応、礼金1ヶ月、IT重説対応物件、全室照明付、通風良好 入居日:'26年3月下旬 | ||
部屋の情報
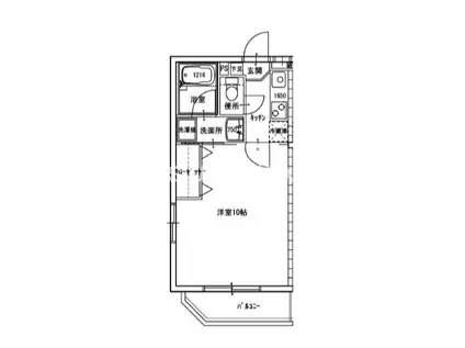
| 間取り | 1K | 専有面積 | 28.87m2 |
|---|---|---|---|
| 所在階 / 向き | 4階 / 南 | バルコニー面積 | - |
| 水道 / ガス | - | ||
| 設備 | バス・トイレ別、2階以上、オートロック、テレビドアホン、宅配ボックス、浴室乾燥機、インターネット対応、エアコン、エレベーター、温水洗浄便座、南向き、角部屋、バルコニー、フローリング、洗髪洗面化粧台、BSアンテナ、洗濯機:室内 | ||
| 当社物件ID | 26349976 | ||
建物の情報
| 建物名 | ピアルアーナ東古松 | ||
|---|---|---|---|
| 所在地 | 岡山県岡山市北区東古松 | ||
| 交通 | JR宇野線 大元駅 徒歩12分 岡山電軌清輝橋線 清輝橋駅 徒歩15分 JR山陽本線 岡山駅 徒歩34分 | ||
| 階数 | 4階建 | 総戸数 | - |
| 築年月 | 2014年12月 / 築12年 | エレベーター | あり |
| 駐車場 | 近隣 200m6600円 | バイク置き場 | - |
| 駐輪場 | あり | 管理人/管理会社 | - |
| 周辺環境 | その他 ザ・ビッグ奥田南店(ショッピングセンター)まで877m その他 山陽マルナカ東古松店(スーパー)まで261m その他 天満屋ハピーズ岡輝店(スーパー)まで364m その他 ファミリーマート岡山東古松店(コンビニ)まで89m その他 岡山大学病院(病院)まで715m その他 岡山東古松郵便局(郵便局)まで347m | ||
| 建物種別 | マンション | 建物構造 | RC(鉄筋コンクリート) |
この部屋の取扱い不動産会社
| 会社名 | SUMIKA不動産 (株)SUMIKA(SUUMO経由) | ||
|---|---|---|---|
| 所在地 | 岡山県岡山市北区下石井2-3-8 商工ビル1階 | 交通 | - |
| 営業時間 | 10:00~18:00 | 定休日 | 水曜日、12月~3月は無休 |
| 免許番号 | 岡山県知事5696 | 取引態様 | 仲介 |
| 不動産会社管理番号 | 100489169093 | 当社管理番号 | 89 |
| 所属団体 | (公社)岡山県宅地建物取引業協会会員 | ||
| 公正取引協議会 | 中国地区不動産公正取引協議会加盟 | ||
| 取扱い物件情報 | 物件詳細へ | ||
※各種情報と現状に差異がある場合は、現状優先となります。問い合わせをすることで、より詳しい条件、情報を確認する事ができます。
提供:SUMIKA不動産 (株)SUMIKA(SUUMO経由)
この物件が気になったら掲載期限まであと10日
ピアルアーナ東古松に条件(家賃・エリア)が近い物件一覧
| 写真 | 家賃 管理費等 | 敷金 礼金 | 間取り 専有面積 | 築年数 | 最寄り駅 所在地 | キープ | 詳細 |
|---|---|---|---|---|---|---|---|
マンション HIGHS TOP表町(1K/4階) | |||||||
![]() | 5万円 5,200円 | なし 5万円 | 1K 28.18m2 | 築19年 | 岡山電軌清輝橋線 新西大寺町筋駅 徒歩3分 岡山電軌清輝橋線 大雲寺前駅 徒歩4分 岡山電軌清輝橋線 東中央町駅 徒歩6分 岡山県岡山市北区表町3丁目 | 詳細を見る | |
アパート あっぷるはうすB(2LDK/2階) | |||||||
![]() | 5万円 3,000円 | 10万円 5万円 | 2LDK 50.1m2 | 築23年 | 吉備線 吉備津駅 徒歩9分 吉備線 備前一宮駅 徒歩36分 吉備線 備中高松駅 徒歩39分 岡山県岡山市北区吉備津 | 詳細を見る | |
アパート アルカ・ソラーレⅢ(1LDK/1階) | |||||||
![]() | 6.2万円 3,000円 | なし 6.2万円 | 1LDK 40.38m2 | 築13年 | 岡山電軌清輝橋線 清輝橋駅 徒歩22分 岡山電軌東山本線 門田屋敷駅 徒歩23分 岡山電軌清輝橋線 東中央町駅 徒歩25分 岡山県岡山市中区平井6丁目 | 詳細を見る | |
マンション ブランシェ駅元町(1DK/7階) | |||||||
![]() | 6.7万円 8,000円 | なし なし | 1DK 27.1m2 | 築11年 | 山陽本線 岡山駅 徒歩6分 岡山電軌清輝橋線 西川緑道公園駅 徒歩11分 岡山電軌清輝橋線 柳川駅 徒歩14分 岡山県岡山市北区駅元町 | 詳細を見る | |
マンション アリビオ高柳(1LDK/5階) | |||||||
![]() | 6.4万円 5,000円 | 6.4万円 6.4万円 | 1LDK 40.1m2 | 築16年 | 吉備線 備前三門駅 徒歩11分 吉備線 大安寺駅 徒歩19分 山陽本線 岡山駅 徒歩25分 岡山県岡山市北区高柳東町 | 詳細を見る | |
マンション 昭和ハイム東古松(1K/6階) | |||||||
![]() | 3.7万円 5,000円 | なし なし | 1K 22.62m2 | 築42年 | 宇野線 大元駅 徒歩11分 岡山電軌清輝橋線 清輝橋駅 徒歩15分 岡山電軌清輝橋線 東中央町駅 徒歩19分 岡山県岡山市北区東古松4丁目 | 詳細を見る | |
アパート REGALE 神田町(1LDK/2階) | |||||||
![]() | 5.9万円 5,000円 | なし なし | 1LDK 30.43m2 | 築1年 | 岡山電軌清輝橋線 清輝橋駅 徒歩19分 宇野線 大元駅 徒歩24分 岡山電軌清輝橋線 東中央町駅 徒歩25分 岡山県岡山市北区神田町2丁目 | 詳細を見る | |
マンション エクシードY(2LDK/2階) | |||||||
![]() | 6.5万円 なし | なし 6.5万円 | 2LDK 57.08m2 | 築31年 | 山陽本線 北長瀬駅 徒歩22分 山陽本線 庭瀬駅 徒歩35分 宇野線 備前西市駅 徒歩37分 岡山県岡山市北区田中 | 詳細を見る | |









