賃貸アパート
ヴィラ・タマチの賃貸物件情報(2DK/2階)
| 家賃 | 管理費等 | 敷金 | 礼金 | 間取り | 専有面積 |
|---|---|---|---|---|---|
| 6.7万円 | なし | 6.7万円 | なし | 2DK | 54m2 |
入居決定でお祝い金最大100,000円
Point
ZEH(ネットゼロエネルギーハウス)★★★を超える断熱性能の次世代賃貸住宅・毎月の光熱費が安く済んで、1年中快適な室内環境が保たれます。断熱性能に優れた北欧製の玄関ドアは、個性的で高級感があります。
提供:ハシノホーム(有)(SUUMO経由)

詳細情報 ヴィラ・タマチ
物件紹介
ヴィラ・タマチは真岡鉄道益子駅から徒歩9分にあり、駅近で通勤通学に便利なアパートです。
このお部屋は2階以上に位置しているので、通行人や周囲の住人からの視線が気になりにくく、防犯面でも安心。インターホンにはTVモニタもついているため、相手の顔を確認してから来客対応することができます。
人気の南向きのお部屋。また、フローリングなのでお掃除もラクラク。キッチンはシステムキッチン仕様になっていますので、お料理好きの方にもぴったり。また、バス・トイレは別で、のんびりお風呂タイムも楽しめるでしょう。
通信設備面では、インターネットが無料で使えるので、月々の出費を抑えられるのも魅力です。また、BSアンテナもありますので、おうち時間も充実するでしょう(別途工事、BSの契約料等が必要な場合あり)。
このお部屋は2階以上に位置しているので、通行人や周囲の住人からの視線が気になりにくく、防犯面でも安心。インターホンにはTVモニタもついているため、相手の顔を確認してから来客対応することができます。
人気の南向きのお部屋。また、フローリングなのでお掃除もラクラク。キッチンはシステムキッチン仕様になっていますので、お料理好きの方にもぴったり。また、バス・トイレは別で、のんびりお風呂タイムも楽しめるでしょう。
通信設備面では、インターネットが無料で使えるので、月々の出費を抑えられるのも魅力です。また、BSアンテナもありますので、おうち時間も充実するでしょう(別途工事、BSの契約料等が必要な場合あり)。
お金・契約の情報
※「-」と表示されているものは、実際は料金が発生するものもございます。詳細はお問い合わせください。
| 家賃 | 6.7万円 | 管理費・共益費 | なし |
|---|---|---|---|
| 敷金 | 6.7万円 | 礼金 | なし |
| 入居決定でお祝い金最大100,000円 | |||
| 保証金 | - | 償却・敷引 | - |
| 住宅保険料 | - | 更新料 | - |
| 保証会社利用 | 必須 | 保証会社名 | 日本セーフティー |
| 保証会社費用 | - | 保証会社備考 | 日本セーフティー利用必 初回1年間保証料33500円 次年以降毎月保証料800円 |
| 契約形態 | - | 契約期間 | - |
| 入居・引渡期間 | - | 現況 | - |
| 契約備考 | 巡回管理/・益子中心部・城内坂至近・省エネ表示ラベルつき高断熱住宅・自社物件につき仲介料なし・フリーネット環境完備 2DK 損保【1.5万円2年】 バストイレ別、TVインターホン、陽当り良好、システムキッチン、追焚機能浴室、温水洗浄便座、駐輪場、礼金不要、IHクッキングヒーター、敷金1ヶ月、全居室フローリング、収納1間半、エアコン2台、物置、ネット使用料不要、駐車場2台無料、全室南向き、築2年以内、24時間換気システム、複層ガラス、クロゼット2ヶ所、初期費用20万円以下、カーテン付、倉庫、可動間仕切り、高断熱住宅、外断熱工法、更新対策、当社管理物件、三面鏡付洗面化粧台、耐震扉、シーリングファン、玄関収納、BS、全室照明付 入居日:'26年3月中旬 | ||
部屋の情報
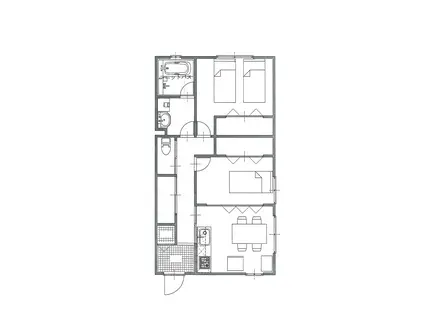
| 間取り | 2DK | 専有面積 | 54m2 |
|---|---|---|---|
| 所在階 / 向き | 2階 / 北 | バルコニー面積 | - |
| 水道 / ガス | - | ||
| 設備 | バス・トイレ別、2階以上、テレビドアホン、追い焚き、インターネット対応、システムキッチン、エアコン、温水洗浄便座、南向き、フローリング、コンロ:IH、BSアンテナ、インターネット使用料無料 | ||
| 当社物件ID | 160500543 | ||
建物の情報
| 建物名 | ヴィラ・タマチ | ||
|---|---|---|---|
| 所在地 | 栃木県芳賀郡益子町大字益子 | ||
| 交通 | 真岡鉄道 益子駅 徒歩9分 | ||
| 階数 | 2階建 | 総戸数 | 6戸 |
| 築年月 | 2026年03月 / 新築 | エレベーター | - |
| 駐車場 | 空有 駐2台付 | バイク置き場 | - |
| 駐輪場 | あり | 管理人/管理会社 | - |
| 周辺環境 | その他 セブンイレブン(コンビニ)まで620m その他 山新・かましん(ショッピングセンター)まで900m その他 栃木銀行(銀行)まで900m その他 益子保育園(幼稚園・保育園)まで150m その他 益子小学校(小学校)まで650m その他 益子町役場(役所)まで750m | ||
| 建物種別 | アパート | 建物構造 | 木造 |
この部屋の取扱い不動産会社
| 会社名 | ハシノホーム(有)(SUUMO経由) | ||
|---|---|---|---|
| 所在地 | 栃木県芳賀郡益子町大字塙 644-16 | 交通 | - |
| 営業時間 | 午前9時~午後6時まで | 定休日 | 不定休 |
| 免許番号 | 栃木県知事4394 | 取引態様 | 貸主 |
| 不動産会社管理番号 | 100491478408 | 当社管理番号 | 89 |
| 所属団体 | (公社)栃木県宅地建物取引業協会会員 | ||
| 公正取引協議会 | (公社)首都圏不動産公正取引協議会加盟 | ||
| 取扱い物件情報 | 物件詳細へ | ||
※各種情報と現状に差異がある場合は、現状優先となります。問い合わせをすることで、より詳しい条件、情報を確認する事ができます。
提供:ハシノホーム(有)(SUUMO経由)
この物件が気になったら掲載期限まであと11日
ヴィラ・タマチに条件(家賃・エリア)が近い物件一覧
| 写真 | 家賃 管理費等 | 敷金 礼金 | 間取り 専有面積 | 築年数 | 最寄り駅 所在地 | キープ | 詳細 |
|---|---|---|---|---|---|---|---|
アパート レオパレスポミカ(1K/1階) | |||||||
![]() | 5.2万円 4,000円 | なし 5.2万円 | 1K 20.28m2 | 築23年 | 真岡鉄道 真岡駅 徒歩21分 栃木県真岡市熊倉町 | 詳細を見る | |
アパート ナックフクジュニュータウンB(1LDK/1階) | |||||||
![]() | 5.45万円 1,800円 | なし 5.45万円 | 1LDK 46.03m2 | 築15年 | 真岡鉄道 真岡駅 徒歩24分 栃木県真岡市熊倉 | 詳細を見る | |
アパート ヒ-ローハウス(1LDK/2階) | |||||||
![]() | 5.15万円 1,800円 | なし 5.15万円 | 1LDK 41.3m2 | 築13年 | 真岡鉄道 真岡駅 徒歩18分 栃木県真岡市熊倉町 | 詳細を見る | |
マンション レオパレスエルハーベン(1K/1階) | |||||||
![]() | 4.8万円 6,000円 | なし 4.8万円 | 1K 23.18m2 | 築22年 | 真岡鉄道 真岡駅 徒歩3分 栃木県真岡市並木町1丁目 | 詳細を見る | |
アパート アンジュ(1LDK/1階) | |||||||
![]() | 6万円 1,800円 | なし 6万円 | 1LDK 45.77m2 | 築14年 | 真岡鉄道 北真岡駅 徒歩15分 栃木県真岡市荒町3丁目 | 詳細を見る | |
アパート レオパレスエクセラン青葉(1K/2階) | |||||||
![]() | 6.5万円 4,000円 | なし 6.5万円 | 1K 22.35m2 | 築23年 | 真岡鉄道 真岡駅 徒歩25分 栃木県真岡市下高間木1丁目 | 詳細を見る | |
アパート ニューウイングA(1LDK/1階) | |||||||
![]() | 5.4万円 6,500円 | なし 6万円 | 1LDK 42.25m2 | 築20年 | 真岡鉄道 真岡駅 徒歩28分 栃木県真岡市上高間木 | 詳細を見る | |
アパート レオパレスアヴニール(1K/2階) | |||||||
![]() | 5.1万円 4,000円 | なし なし | 1K 20.28m2 | 築21年 | 真岡鉄道 北真岡駅 徒歩11分 栃木県真岡市荒町4丁目 | 詳細を見る | |









