賃貸テラスハウス
亘理町逢隈中泉テラスハウスの賃貸物件情報(2LDK)
| 家賃 | 管理費等 | 敷金 | 礼金 | 間取り | 専有面積 |
|---|---|---|---|---|---|
| 5.8万円 | 2,000円 | なし | なし | 2LDK | 69.14m2 |
入居決定でお祝い金最大100,000円
Point
お部屋探しは【岩沼土地開発・アパマンショップ岩沼店】へ♪
提供:アパマンショップ岩沼店
/424x317-f1-q70-wp1)
詳細情報 亘理町逢隈中泉テラスハウス
物件紹介
常磐線逢隈駅から徒歩46分にあるテラスハウスです。
このお部屋は2階以上に位置しているので、通行人や周囲の住人からの視線が気になりにくく、防犯面でも安心。インターホンにはTVモニタもついているため、相手の顔を確認してから来客対応することができます。
人気の南向きのお部屋。また、フローリングなのでお掃除もラクラク。キッチンはシステムキッチン仕様になっていますので、お料理好きの方にもぴったり。また、バス・トイレは別で、のんびりお風呂タイムも楽しめるでしょう。
通信設備面では、インターネット接続が可能です(別途工事、契約料が必要な場合あり)。
ペット飼育の相談ができますので、あなたの大切な家族の一員も快適に暮らせるか、ぜひ確認してみてください。
このお部屋は2階以上に位置しているので、通行人や周囲の住人からの視線が気になりにくく、防犯面でも安心。インターホンにはTVモニタもついているため、相手の顔を確認してから来客対応することができます。
人気の南向きのお部屋。また、フローリングなのでお掃除もラクラク。キッチンはシステムキッチン仕様になっていますので、お料理好きの方にもぴったり。また、バス・トイレは別で、のんびりお風呂タイムも楽しめるでしょう。
通信設備面では、インターネット接続が可能です(別途工事、契約料が必要な場合あり)。
ペット飼育の相談ができますので、あなたの大切な家族の一員も快適に暮らせるか、ぜひ確認してみてください。
お金・契約の情報
※「-」と表示されているものは、実際は料金が発生するものもございます。詳細はお問い合わせください。
| 家賃 | 5.8万円 | 管理費・共益費 | 2,000円 |
|---|---|---|---|
| 敷金 | なし | 礼金 | なし |
| 入居決定でお祝い金最大100,000円 | |||
| 保証金 | - | 償却・敷引 | - |
| 住宅保険料 | 2万円(2年) | 更新料 | - |
| 保証会社利用 | 必須 | 保証会社名 | 全保連株式会社 |
| 保証会社費用 | - | 保証会社備考 | 賃料総額の100% |
| 契約形態 | - | 契約期間 | 2年 |
| 入居・引渡期間 | 相談 | 現況 | - |
| 入居可能条件 | 2人入居可、ペット可 | ||
| 契約備考 | 賃貸保証会社要加入:賃料総額の1ヶ月分 保証会社手数料 63300円/ハウスクリーニング代(課税対象) 66000円 | ||
部屋の情報
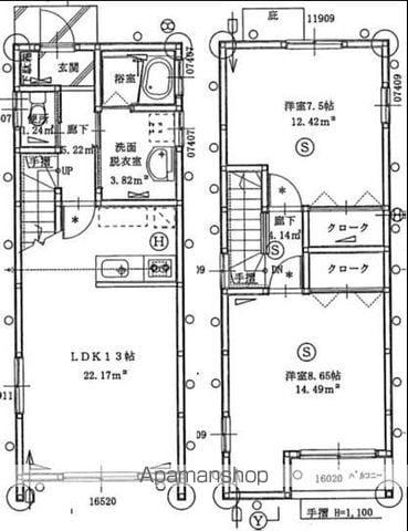
| 間取り | 2LDK | 専有面積 | 69.14m2 |
|---|---|---|---|
| 間取り詳細 | LDK(13.4帖)、洋室(8.6帖)、洋室(7.5帖) | ||
| 所在階 / 向き | 2階 / 南 | バルコニー面積 | - |
| 水道 / ガス | ガス【プロパン】 | ||
| 設備 | バス・トイレ別、テレビドアホン、追い焚き、インターネット対応、システムキッチン、温水洗浄便座、バルコニー、フローリング、シャワー、給湯、洗濯機:室内 | ||
| 当社物件ID | 28056536 | ||
建物の情報
| 建物名 | 亘理町逢隈中泉テラスハウス | ||
|---|---|---|---|
| 所在地 | 宮城県亘理郡亘理町逢隈中泉字東 | ||
| 交通 | 常磐線 逢隈駅 徒歩46分 | ||
| 階数 | 2階建 | 総戸数 | 3戸 |
| 築年月 | 2015年03月 / 築11年 | エレベーター | - |
| 駐車場 | 空有 3,300円/月 2台目空要確認 | バイク置き場 | - |
| 駐輪場 | - | 管理人/管理会社 | - |
| 建物種別 | テラスハウス | 建物構造 | 木造 |
この部屋の取扱い不動産会社
| 会社名 | アパマンショップ岩沼店 | ||
|---|---|---|---|
| 所在地 | 宮城県岩沼市中央1丁目 5−24 | 交通 | 東北本線岩沼から徒歩8分 |
| 営業時間 | 09:30〜17:30(来店時はご予約ください。) | 定休日 | 水曜日 |
| 免許番号 | 宮城県知事(1)007210 | 取引態様 | 仲介 |
| 不動産会社管理番号 | 79727686 | 当社管理番号 | 4 |
| 所属団体 | (公社)宮城県宅地建物取引業協会 | ||
| 公正取引協議会 | 東北地区不動産公正取引協議会加盟 | ||
| 取扱い物件情報 | 物件詳細へ | ||
※各種情報と現状に差異がある場合は、現状優先となります。問い合わせをすることで、より詳しい条件、情報を確認する事ができます。
提供:アパマンショップ岩沼店
この物件が気になったら掲載期限まであと12日
亘理町逢隈中泉テラスハウスに条件(家賃・エリア)が近い物件一覧
| 写真 | 家賃 管理費等 | 敷金 礼金 | 間取り 専有面積 | 築年数 | 最寄り駅 所在地 | キープ | 詳細 |
|---|---|---|---|---|---|---|---|
アパート フランメゾンII(2DK/1階) | |||||||
![]() | 3.95万円 2,600円 | なし なし | 2DK 40.45m2 | 築21年 | 阿武隈急行 東船岡駅 徒歩14分 JR東北本線 船岡駅(宮城) 徒歩27分 宮城県柴田郡柴田町大字船岡新田 | 詳細を見る | |
アパート コーポ・ブリッジハイ(2LDK/1階) | |||||||
![]() | 5.3万円 なし | なし なし | 2LDK 57.13m2 | 築26年 | JR東北本線 船岡駅(宮城) 徒歩17分 宮城県柴田郡柴田町西船迫 | 詳細を見る | |
アパート グリーンアルカディア(ワンルーム/1階) | |||||||
![]() | 3.5万円 なし | なし なし | ワンルーム 26.49m2 | 築31年 | JR東北本線 船岡駅(宮城) 徒歩6分 宮城県柴田郡柴田町船岡土手内 | 詳細を見る | |
アパート パークメゾン錦町II(2LDK/2階) | |||||||
![]() | 4.5万円 2,000円 | なし なし | 2LDK 58.12m2 | 築25年 | 阿武隈急行 角田駅 徒歩10分 宮城県角田市角田錦町 | 詳細を見る | |
アパート ベルドミール 英(2DK/1階) | |||||||
![]() | 3.5万円 2,000円 | なし 3.5万円 | 2DK 39.74m2 | 築37年 | 阿武隈急行 角田駅 徒歩4分 阿武隈急行 南角田駅 徒歩27分 阿武隈急行 横倉駅(宮城) 徒歩33分 宮城県角田市角田泉町 | 詳細を見る | |
アパート ヒルシュハウスA(2LDK/2階) | |||||||
![]() | 4.1万円 1,700円 | なし なし | 2LDK 58.53m2 | 築29年 | JR常磐線 亘理駅 徒歩15分 宮城県亘理郡亘理町逢隈鹿島二ツ井戸北 | 詳細を見る | |
アパート ハイムしおん(2DK/2階) | |||||||
![]() | 4.4万円 3,000円 | なし なし | 2DK 47.77m2 | 築23年 | JR東北本線 船岡駅(宮城) 徒歩19分 宮城県柴田郡柴田町船岡東 | 詳細を見る | |
アパート APフォルツァ(1K/2階) | |||||||
![]() | 3.8万円 2,600円 | なし なし | 1K 26.09m2 | 築24年 | 東北本線 船岡駅(宮城) 徒歩25分 宮城県柴田郡柴田町船岡新栄6丁目 | 詳細を見る | |









/105x80-f1-q70-wp1)