賃貸マンション
パーチェ鳩ヶ谷の賃貸物件情報(2LDK/3階)
| 家賃 | 管理費等 | 敷金 | 礼金 | 間取り | 専有面積 |
|---|---|---|---|---|---|
| 12.5万円 | 1万円 | 12.5万円 | 12.5万円 | 2LDK | 54.05m2 |
入居決定でお祝い金最大100,000円
- 保証金
- -
- 償却・敷引
- -
- 築年数
- 築5年
- 所在階
- 3階
- 向き
- 南東
Point
クレジット決済、初期費用分割払い、現地・時間外のご案内も対応しております!掲載物件以外の物件も併せてご紹介可能ですのでお気軽にご相談ください!
提供:(株)バンダイ(SUUMO経由)

詳細情報 パーチェ鳩ヶ谷
物件紹介
パーチェ鳩ヶ谷は埼玉高速鉄道南鳩ケ谷駅から徒歩10分にあり、駅近で通勤通学に便利なマンションです。
このお部屋は2階以上に位置しているので、通行人や周囲の住人からの視線が気になりにくく、防犯面でも安心。建物のエントランスはオートロックがついており、インターホンにはTVモニタもついているため、相手の顔を確認してから来客対応することができます。
人気の南向き・フローリングのお部屋。角部屋でもあるため、周囲の居住者の生活音も気になりにくい場所です。キッチンはシステムキッチン仕様になっていますので、お料理好きの方にもぴったり。バス・トイレは別なので、のんびりお風呂タイムも楽しめるでしょう。また、雨の日でも浴室乾燥機を使えば、お洗濯も問題ありません。
通信設備面では、インターネットが無料で使えるので、月々の出費を抑えられるのも魅力です。また、BSアンテナ・CSアンテナがありCATVにも対応しているので、おうち時間も充実するでしょう(別途工事、BS・CS・CATVの契約料等が必要な場合あり)。
建物にはエレベーターがついているので、重い荷物があっても安心。共用部には宅配ボックスが設定されているので、不在の時にも荷物を受け取ることができます。また、ペット飼育の相談ができますので、あなたの大切な家族の一員も快適に暮らせるか、ぜひ確認してみてください。
このお部屋は2階以上に位置しているので、通行人や周囲の住人からの視線が気になりにくく、防犯面でも安心。建物のエントランスはオートロックがついており、インターホンにはTVモニタもついているため、相手の顔を確認してから来客対応することができます。
人気の南向き・フローリングのお部屋。角部屋でもあるため、周囲の居住者の生活音も気になりにくい場所です。キッチンはシステムキッチン仕様になっていますので、お料理好きの方にもぴったり。バス・トイレは別なので、のんびりお風呂タイムも楽しめるでしょう。また、雨の日でも浴室乾燥機を使えば、お洗濯も問題ありません。
通信設備面では、インターネットが無料で使えるので、月々の出費を抑えられるのも魅力です。また、BSアンテナ・CSアンテナがありCATVにも対応しているので、おうち時間も充実するでしょう(別途工事、BS・CS・CATVの契約料等が必要な場合あり)。
建物にはエレベーターがついているので、重い荷物があっても安心。共用部には宅配ボックスが設定されているので、不在の時にも荷物を受け取ることができます。また、ペット飼育の相談ができますので、あなたの大切な家族の一員も快適に暮らせるか、ぜひ確認してみてください。
お金・契約の情報
※「-」と表示されているものは、実際は料金が発生するものもございます。詳細はお問い合わせください。
| 家賃 | 12.5万円 | 管理費・共益費 | 1万円 |
|---|---|---|---|
| 敷金 | 12.5万円 | 礼金 | 12.5万円 |
| 入居決定でお祝い金最大100,000円 | |||
| 保証金 | - | 償却・敷引 | - |
| 住宅保険料 | - | 更新料 | - |
| 保証会社利用 | 必須 | 保証会社名 | - |
| 保証会社費用 | - | 保証会社備考 | 保証会社利用必 月額賃料等の40%(初回保証料) 1年毎に1万円(更新保証料) |
| 契約形態 | - | 契約期間 | - |
| 入居・引渡期間 | - | 現況 | - |
| 入居可能条件 | ペット相談 | ||
| 契約備考 | 更新料:新賃料の1.5ヶ月分 トラブルサポート24:月額1100円 2LDK 単身者可/二人入居可/子供可/ペット相談 損保【2.5万円2年】 バストイレ別、バルコニー、エアコン、ガスコンロ対応、クロゼット、フローリング、シャワー付洗面台、TVインターホン、浴室乾燥機、オートロック、室内洗濯置、陽当り良好、シューズボックス、システムキッチン、追焚機能浴室、角住戸、温水洗浄便座、脱衣所、エレベーター、洗面所独立、洗面化粧台、駐輪場、宅配ボックス、CATV、光ファイバー、BS・CS、3口以上コンロ、対面式キッチン、防犯カメラ、ペット相談、全居室収納、分譲賃貸、オートバス、グリル付、全居室洋室、保証人不要、単身者相談、二人入居相談、全居室フローリング、エアコン2台、ネット使用料不要、浄水器、保証金不要、ルーフバルコニー、築2年以内、24時間換気システム、平坦地、南面リビング、駅徒歩10分以内、敷地内ごみ置き場、平面駐車場、東南向き、LDK12畳以上、都市ガス、洗面所にドア、南面バルコニー、玄関収納、保証会社利用可、初期費用カード決済可、通風良好 敷金積み増し【ペット飼育の場合敷金2ヶ月(総額)】 入居日:'26年4月中旬 | ||
部屋の情報
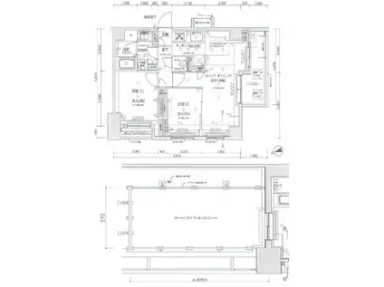
| 間取り | 2LDK | 専有面積 | 54.05m2 |
|---|---|---|---|
| 所在階 / 向き | 3階 / 南東 | バルコニー面積 | 9m2 |
| 水道 / ガス | - | ||
| 設備 | バス・トイレ別、2階以上、オートロック、テレビドアホン、宅配ボックス、浴室乾燥機、追い焚き、インターネット対応、システムキッチン、エアコン、エレベーター、温水洗浄便座、南向き、角部屋、バルコニー、フローリング、洗髪洗面化粧台、2口コンロ、コンロ:ガス、CATV、CSアンテナ、BSアンテナ、インターネット使用料無料、洗濯機:室内 | ||
| 当社物件ID | 143501139 | ||
建物の情報
| 建物名 | パーチェ鳩ヶ谷 | ||
|---|---|---|---|
| 所在地 | 埼玉県川口市朝日 | ||
| 交通 | 埼玉高速鉄道 南鳩ケ谷駅 徒歩10分 埼玉高速鉄道 川口元郷駅 徒歩19分 JR京浜東北線 川口駅 徒歩30分 | ||
| 階数 | 14階建 | 総戸数 | - |
| 築年月 | 2022年02月 / 築5年 | エレベーター | あり |
| 駐車場 | なし | バイク置き場 | - |
| 駐輪場 | あり | 管理人/管理会社 | - |
| 周辺環境 | その他 セブンイレブン川口朝日3丁目店(コンビニ)まで380m その他 マクドナルド川口朝日町店(飲食店)まで121m その他 コモディイイダ鳩ヶ谷店(スーパー)まで409m その他 アコレ南鳩ヶ谷店(スーパー)まで854m その他 ヤオコー川口朝日店(スーパー)まで752m その他 ファミリーマート川口朝日三丁目店(コンビニ)まで286m | ||
| 建物種別 | マンション | 建物構造 | RC(鉄筋コンクリート) |
この部屋の取扱い不動産会社
| 会社名 | (株)バンダイ(SUUMO経由) | ||
|---|---|---|---|
| 所在地 | 埼玉県さいたま市南区南浦和2-32-10 | 交通 | - |
| 営業時間 | 10:00~19:00 | 定休日 | 年中無休 |
| 免許番号 | 埼玉県知事22462 | 取引態様 | 仲介 |
| 不動産会社管理番号 | 100492075453 | 当社管理番号 | 89 |
| 取扱い物件情報 | 物件詳細へ | ||
※各種情報と現状に差異がある場合は、現状優先となります。問い合わせをすることで、より詳しい条件、情報を確認する事ができます。
提供:(株)バンダイ(SUUMO経由)
この物件が気になったら掲載期限まであと11日
パーチェ鳩ヶ谷に条件(家賃・エリア)が近い物件一覧
| 写真 | 家賃 管理費等 | 敷金 礼金 | 間取り 専有面積 | 築年数 | 最寄り駅 所在地 | キープ | 詳細 |
|---|---|---|---|---|---|---|---|
アパート セレーネ(1LDK/2階) | |||||||
![]() | 10.2万円 4,100円 | なし 10.2万円 | 1LDK 50.43m2 | 新築 | JR川越線 指扇駅 徒歩12分 JR川越線 西大宮駅 徒歩26分 埼玉県さいたま市西区大字土屋 | 詳細を見る | |
マンション アネックスサクラ(2DK/3階) | |||||||
![]() | 10.3万円 5,000円 | 20.6万円 10.3万円 | 2DK 46.35m2 | 築32年 | 京浜東北・根岸線 大宮駅(埼玉) 徒歩8分 埼玉新都市交通 鉄道博物館駅 徒歩13分 埼玉県さいたま市大宮区桜木町3丁目 | 詳細を見る | |
一戸建て 京浜東北・根岸線 北浦和駅 徒歩9分 築59年(5K) | |||||||
![]() | 15万円 なし | 30万円 15万円 | 5K 85.29m2 | 築59年 | 京浜東北・根岸線 北浦和駅 徒歩9分 埼玉県さいたま市浦和区常盤3丁目 | 詳細を見る | |
マンション スアヴィス鳩ケ(1LDK/4階) | |||||||
![]() | 11.75万円 6,600円 | なし 11.75万円 | 1LDK 40.14m2 | 築1年 | 埼玉高速鉄道 鳩ケ谷駅 徒歩4分 埼玉高速鉄道 新井宿駅 徒歩21分 埼玉高速鉄道 南鳩ケ谷駅 徒歩21分 埼玉県川口市坂下町 | 詳細を見る | |
マンション スカイルーチェ浦和(1K/4階) | |||||||
![]() | 8.7万円 7,000円 | 8.7万円 8.7万円 | 1K 22.01m2 | 築1年 | JR京浜東北線 浦和駅 徒歩6分 JR京浜東北線 南浦和駅 徒歩24分 JR京浜東北線 北浦和駅 徒歩30分 埼玉県さいたま市浦和区東高砂町 | 詳細を見る | |
アパート THE APARTMENT ACE 5(2LDK/3階) | |||||||
![]() | 14万円 7,000円 | 14万円 14万円 | 2LDK 55.3m2 | 新築 | 東武伊勢崎線 新越谷駅 徒歩8分 東武伊勢崎線 蒲生駅 徒歩8分 JR武蔵野線 南越谷駅 徒歩9分 埼玉県越谷市南越谷 | 詳細を見る | |
マンション グランドール(1LDK/2階) | |||||||
![]() | 10.3万円 4,000円 | なし なし | 1LDK 38.23m2 | 築1年 | 埼玉高速鉄道 川口元郷駅 徒歩17分 埼玉県川口市末広3丁目 | 詳細を見る | |







