賃貸アパート
イリスコート香里園の賃貸物件情報(1LDK/1階)
| 家賃 | 管理費等 | 敷金 | 礼金 | 間取り | 専有面積 |
|---|---|---|---|---|---|
| 6.8万円 | 5,000円 | なし | なし | 1LDK | 30.35m2 |
入居決定でお祝い金最大100,000円
Point
香里園駅徒歩圏内で充実設備の人気物件!内覧・ご予約はお早めに♪シャッター雨戸・下駄箱・集合ポスト・ごみ置き場
提供:アピア(株)賃貸事業部アパレン寝屋川本店(SUUMO経由)

詳細情報 イリスコート香里園
物件紹介
イリスコート香里園は京阪本線香里園駅から徒歩5分にあり、駅近で通勤通学に便利なアパートです。
建物のエントランスはオートロックがついており、インターホンにはTVモニタもついているため、相手の顔を確認してから来客対応することができます。
人気の角部屋で周囲の居住者の生活音も気になりにくく、また、フローリングのお部屋なのでお掃除もラクラク。キッチンはシステムキッチン仕様になっていますので、お料理好きの方にもぴったり。バス・トイレは別なので、のんびりお風呂タイムも楽しめるでしょう。また、雨の日でも浴室乾燥機を使えば、お洗濯も問題ありません。
共用部には宅配ボックスが設定されているので、不在の時にも荷物を受け取ることができます。
建物のエントランスはオートロックがついており、インターホンにはTVモニタもついているため、相手の顔を確認してから来客対応することができます。
人気の角部屋で周囲の居住者の生活音も気になりにくく、また、フローリングのお部屋なのでお掃除もラクラク。キッチンはシステムキッチン仕様になっていますので、お料理好きの方にもぴったり。バス・トイレは別なので、のんびりお風呂タイムも楽しめるでしょう。また、雨の日でも浴室乾燥機を使えば、お洗濯も問題ありません。
共用部には宅配ボックスが設定されているので、不在の時にも荷物を受け取ることができます。
お金・契約の情報
※「-」と表示されているものは、実際は料金が発生するものもございます。詳細はお問い合わせください。
| 家賃 | 6.8万円 | 管理費・共益費 | 5,000円 |
|---|---|---|---|
| 敷金 | なし | 礼金 | なし |
| 入居決定でお祝い金最大100,000円 | |||
| 保証金 | - | 償却・敷引 | - |
| 住宅保険料 | - | 更新料 | - |
| 契約形態 | - | 契約期間 | - |
| 入居・引渡期間 | - | 現況 | - |
| 契約備考 | 1LDK 普通借家2年 損保【1.5万円2年】 バストイレ別、バルコニー、エアコン、ガスコンロ対応、フローリング、シャワー付洗面台、TVインターホン、浴室乾燥機、オートロック、室内洗濯置、システムキッチン、角住戸、温水洗浄便座、洗面所独立、2口コンロ、駐輪場、宅配ボックス、防犯カメラ、保証金不要、3駅以上利用可、駅徒歩5分以内、築5年以内、都市ガス、敷金・礼金不要、初期費用カード決済可 入居日:'26年4月中旬 | ||
部屋の情報
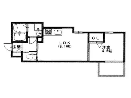
| 間取り | 1LDK | 専有面積 | 30.35m2 |
|---|---|---|---|
| 所在階 / 向き | 1階 / 東 | バルコニー面積 | - |
| 水道 / ガス | - | ||
| 設備 | バス・トイレ別、オートロック、テレビドアホン、宅配ボックス、浴室乾燥機、システムキッチン、エアコン、温水洗浄便座、角部屋、バルコニー、フローリング、洗髪洗面化粧台、2口コンロ、コンロ:ガス、洗濯機:室内 | ||
| 当社物件ID | 116992469 | ||
建物の情報
| 建物名 | イリスコート香里園 | ||
|---|---|---|---|
| 所在地 | 大阪府寝屋川市寿町 | ||
| 交通 | 京阪本線 香里園駅 徒歩5分 京阪本線 光善寺駅 徒歩23分 京阪本線 寝屋川市駅 徒歩27分 | ||
| 階数 | 3階建 | 総戸数 | 9戸 |
| 築年月 | 2022年06月 / 築4年 | エレベーター | - |
| 駐車場 | 近隣 150m13200円 | バイク置き場 | - |
| 駐輪場 | あり | 管理人/管理会社 | - |
| 周辺環境 | その他 セブンイレブン(コンビニ)まで350m その他 トップワールド(スーパー)まで180m | ||
| 建物種別 | アパート | 建物構造 | 木造 |
この部屋の取扱い不動産会社
| 会社名 | アピア(株)賃貸事業部アパレン寝屋川本店(SUUMO経由) | ||
|---|---|---|---|
| 所在地 | 大阪府寝屋川市早子町 23-12 | 交通 | - |
| 営業時間 | 9:00~19:00 | 定休日 | なし |
| 免許番号 | 大阪府知事43696 | 取引態様 | 仲介 |
| 不動産会社管理番号 | 100492732578 | 当社管理番号 | 89 |
| 所属団体 | (公社)全日本不動産協会大阪府本部会員 | ||
| 公正取引協議会 | (公社)近畿地区不動産公正取引協議会加盟 | ||
| 取扱い物件情報 | 物件詳細へ | ||
※各種情報と現状に差異がある場合は、現状優先となります。問い合わせをすることで、より詳しい条件、情報を確認する事ができます。
提供:アピア(株)賃貸事業部アパレン寝屋川本店(SUUMO経由)
この物件が気になったら掲載期限まであと10日
イリスコート香里園に条件(家賃・エリア)が近い物件一覧
| 写真 | 家賃 管理費等 | 敷金 礼金 | 間取り 専有面積 | 築年数 | 最寄り駅 所在地 | キープ | 詳細 |
|---|---|---|---|---|---|---|---|
アパート レオパレスハウス香里ヶ丘(1K/2階) | |||||||
![]() | 4.9万円 7,000円 | なし なし | 1K 19.87m2 | 築18年 | 京阪電気鉄道交野線 村野駅 徒歩14分 京阪電気鉄道交野線 郡津駅 徒歩18分 大阪府枚方市藤田町 | 詳細を見る | |
マンション 片町線 長尾駅(大阪) 徒歩18分 築5年(1K/1階) | |||||||
![]() | 5.2万円 7,000円 | 7万円 12万円 | 1K 25.2m2 | 築5年 | 片町線 長尾駅(大阪) 徒歩18分 片町線 松井山手駅 徒歩30分 大阪府枚方市長尾家具町3丁目 | 詳細を見る | |
マンション ヴェルデ高御座(2LDK/2階) | |||||||
| 7.3万円 なし | なし 15万円 | 2LDK 56m2 | 築43年 | 阪急電鉄京都線 総持寺駅 徒歩16分 阪急電鉄京都線 富田駅(大阪) 徒歩18分 東海道本線 摂津富田駅 徒歩19分 大阪府高槻市栄町1丁目20-26 | 詳細を見る | ||
アパート レオネクスト喜望(ワンルーム/1階) | |||||||
![]() | 6.6万円 5,000円 | なし 6.6万円 | ワンルーム 26.5m2 | 築12年 | 片町線 藤阪駅 徒歩25分 大阪府枚方市大峰元町1丁目 | 詳細を見る | |
アパート レオパレスコスモハウス(1K/2階) | |||||||
![]() | 6万円 7,000円 | なし なし | 1K 22.35m2 | 築16年 | 大阪府枚方市都丘町 | 詳細を見る | |
アパート クレイノ欅(1K/2階) | |||||||
| 8.6万円 5,000円 | なし 8.6万円 | 1K 25.17m2 | 築7年 | 阪急電鉄京都線 高槻市駅 徒歩14分 東海道本線 高槻駅 徒歩19分 阪急電鉄京都線 富田駅(大阪) 徒歩42分 大阪府高槻市八幡町4-15 | 詳細を見る | ||
アパート セラフィーメゾン郡元町(1DK/1階) | |||||||
![]() | 7.2万円 5,000円 | なし 7.2万円 | 1DK 33.53m2 | 築4年 | 京阪本線 香里園駅 徒歩7分 京阪本線 光善寺駅 徒歩26分 大阪府寝屋川市郡元町 | 詳細を見る | |






