賃貸アパート
メゾンプラムの賃貸物件情報(1K/1階)
| 家賃 | 管理費等 | 敷金 | 礼金 | 間取り | 専有面積 |
|---|---|---|---|---|---|
| 6.1万円 | 3,000円 | 2万円 | 8万円 | 1K | 28.12m2 |
入居決定でお祝い金最大100,000円
Point
単身用シャーメゾンの募集 買物便利な07年築ハイツ。水廻り快適仕様、収納巨大です
提供:株式会社 京都ライフ 今出川店(賃貸スモッカ経由)

詳細情報 メゾンプラム
物件紹介
メゾンプラムは京都市東西線二条城前駅から徒歩12分にあるアパートです。
人気の角部屋で周囲の居住者の生活音も気になりにくく、また、フローリングのお部屋なのでお掃除もラクラク。室内にはウォークインクローゼットがありますので、たくさんの荷物も効率的に収納ができます。キッチンはシステムキッチン仕様になっていますので、お料理好きの方にもぴったり。また、バス・トイレは別で、のんびりお風呂タイムも楽しめるでしょう。
通信設備面ではBSアンテナがありますので、おうち時間も充実するでしょう(別途工事、契約料が必要な場合あり)。
人気の角部屋で周囲の居住者の生活音も気になりにくく、また、フローリングのお部屋なのでお掃除もラクラク。室内にはウォークインクローゼットがありますので、たくさんの荷物も効率的に収納ができます。キッチンはシステムキッチン仕様になっていますので、お料理好きの方にもぴったり。また、バス・トイレは別で、のんびりお風呂タイムも楽しめるでしょう。
通信設備面ではBSアンテナがありますので、おうち時間も充実するでしょう(別途工事、契約料が必要な場合あり)。
お金・契約の情報
※「-」と表示されているものは、実際は料金が発生するものもございます。詳細はお問い合わせください。
| 家賃 | 6.1万円 | 管理費・共益費 | 3,000円 |
|---|---|---|---|
| 敷金 | 2万円 | 礼金 | 8万円 |
| 入居決定でお祝い金最大100,000円 | |||
| 保証金 | - | 償却・敷引 | - |
| 住宅保険料 | 住宅保険料あり | 更新料 | - |
| 契約形態 | - | 契約期間 | 2年 |
| 入居・引渡期間 | 2026年02月上旬 | 現況 | 賃貸中 |
| 契約備考 | コンビニ・スーパー・商店街近く生活便利です。2007年築で外観・内装ともキレイなハイツです。シャンプードレッサー付きの洗面脱衣も広々、収納はウォークインクロゼットになったゆったり居室で快適に暮らせそう 2口ガスコンロ付きでお料理もバッチリです シャーメゾンライフSUPPORT24:880円 更新料:1ヶ月 保証会社:利用必須 初回:3.3万円、月額:支払い手数料として月額賃料等の2% その他設備/条件:1階の物件、コンロ2口以上、独立洗面台 | ||
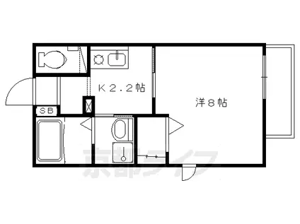
部屋の情報
| 間取り | 1K | 専有面積 | 28.12m2 |
|---|---|---|---|
| 間取り詳細 | 洋室(8帖)、K(2.2帖) | ||
| 所在階 / 向き | 1階 / 東 | バルコニー面積 | - |
| 水道 / ガス | ガス【都市】 | ||
| 設備 | バス・トイレ別、ウォークインクローゼット、システムキッチン、エアコン、角部屋、フローリング、コンロ:ガス、BSアンテナ、洗濯機:室内 | ||
| 当社物件ID | 15304360 | ||
建物の情報
| 建物名 | メゾンプラム | ||
|---|---|---|---|
| 所在地 | 京都府京都市上京区 | ||
| 交通 | 京都市東西線 二条城前駅 徒歩12分 京都市烏丸線 今出川駅 徒歩15分 | ||
| 階数 | 2階建 | 総戸数 | - |
| 築年月 | 2007年03月 / 築19年 | エレベーター | - |
| 駐車場 | - | バイク置き場 | - |
| 駐輪場 | あり | 管理人/管理会社 | - |
| 建物種別 | アパート | 建物構造 | 軽量鉄骨造 |
この部屋の取扱い不動産会社
| 会社名 | 株式会社 京都ライフ 今出川店(賃貸スモッカ経由) | ||
|---|---|---|---|
| 所在地 | 京都市上京区烏丸今出川上ル西側御所八幡町115 | 交通 | - |
| 営業時間 | - | 定休日 | - |
| 免許番号 | 京都府知事(11)第6353号 | 取引態様 | 専任 |
| 不動産会社管理番号 | kyotolife_29112-101 | 当社管理番号 | 463 |
| 所属団体 | 京都府宅地建物取引業協会\n公益社団法人近畿地区不動産公正取引協議会 | ||
| 公正取引協議会 | 全国宅地建物取引業保証協会 | ||
| 取扱い物件情報 | 物件詳細へ | ||
※各種情報と現状に差異がある場合は、現状優先となります。問い合わせをすることで、より詳しい条件、情報を確認する事ができます。
提供:株式会社 京都ライフ 今出川店(賃貸スモッカ経由)
この物件が気になったら掲載期限まであと5日
メゾンプラムに条件(家賃・エリア)が近い物件一覧
| 写真 | 家賃 管理費等 | 敷金 礼金 | 間取り 専有面積 | 築年数 | 最寄り駅 所在地 | キープ | 詳細 |
|---|---|---|---|---|---|---|---|
マンション FIDUCIA(1K/4階) | |||||||
![]() | 3.9万円 5,000円 | 5万円 なし | 1K 18.3m2 | 築38年 | 京福電鉄北野線 北野白梅町駅 徒歩22分 地下鉄烏丸線 今出川駅 徒歩27分 地下鉄烏丸線 北大路駅 徒歩28分 京都府京都市上京区閻魔前町 | 詳細を見る | |
マンション ココクレメント2(1LDK/5階) | |||||||
![]() | 7万円 6,600円 | なし 7万円 | 1LDK 38.91m2 | 築1年 | 山陰本線 亀岡駅 徒歩5分 山陰本線 並河駅 徒歩47分 京都府亀岡市亀岡駅北1丁目 | 詳細を見る | |
マンション 聚楽PATIO(1K/4階) | |||||||
![]() | 3.9万円 5,000円 | 3.9万円 なし | 1K 20.25m2 | 築42年 | 京都府京都市上京区鏡石町 | 詳細を見る | |
マンション 山陰本線 二条駅 徒歩5分 築26年(1K/3階) | |||||||
![]() | 5.309万円 9,910円 | なし 6.3万円 | 1K 20.49m2 | 築26年 | 山陰本線 二条駅 徒歩5分 京都市東西線 二条城前駅 徒歩7分 京都府京都市中京区西ノ京職司町 | 詳細を見る | |
マンション メゾン槇島(1K/2階) | |||||||
![]() | 4万円 3,000円 | 5万円 なし | 1K 27.6m2 | 築33年 | 近鉄京都線 向島駅 徒歩15分 奈良線 黄檗駅(JR) 徒歩25分 京都府宇治市槇島町 | 詳細を見る | |
アパート 奈良線 黄檗駅(JR) 徒歩10分 築7年(2LDK/1階) | |||||||
![]() | 8.7万円 8,000円 | なし 18万円 | 2LDK 50.42m2 | 築7年 | 奈良線 黄檗駅(JR) 徒歩10分 京阪電気鉄道宇治線 黄檗駅(京阪) 徒歩11分 京都府宇治市五ケ庄日皆田 | 詳細を見る | |
マンション 京都市東西線 二条城前駅 徒歩4分 築19年(1K/8階) | |||||||
![]() | 5.8万円 8,500円 | 7万円 なし | 1K 26.1m2 | 築19年 | 京都市東西線 二条城前駅 徒歩4分 京都市烏丸線 烏丸御池駅 徒歩7分 京都府京都市中京区下古城町 | 詳細を見る | |








