賃貸マンション
SWAN EBARA NAKANOBUの賃貸物件情報(ワンルーム/2階)
| 家賃 | 管理費等 | 敷金 | 礼金 | 間取り | 専有面積 |
|---|---|---|---|---|---|
| 8.7万円 | 5,000円 | 8.7万円 | 8.7万円 | ワンルーム | 23.88m2 |
入居決定でお祝い金最大100,000円
- 保証金
- -
- 償却・敷引
- -
- 築年数
- 築12年
- 所在階
- 2階
- 向き
- -
Point
当物件は初期費用分割払い可(クレジットカード決済も可)/お客様のご希望に合わせた方法(店頭、オンライン等)で物件をご提案いたします。初期費用のお見積りや入居希望日のご相談もお気軽にお問い合わせください
提供:アエラス目黒店 (株)アエラス.FR(SUUMO経由)

詳細情報 SWAN EBARA NAKANOBU
物件紹介
SWAN EBARA NAKANOBUは東急池上線荏原中延駅から徒歩5分にあり、駅近で通勤通学に便利なマンションです。
このお部屋は2階以上に位置しているので通行人や周囲の住人からの視線が気になりにくく、建物のエントランスはオートロックがついているので防犯性が高くなっています。
人気の角部屋。周囲の居住者の生活音も気になりにくい場所です。バス・トイレ別の仕様で、のんびりお風呂タイムも楽しめます。
通信設備面では、インターネット接続が可能です(別途工事、契約料が必要な場合あり)。
共用部には宅配ボックスが設定されているので、不在の時にも荷物を受け取ることができます。
このお部屋は2階以上に位置しているので通行人や周囲の住人からの視線が気になりにくく、建物のエントランスはオートロックがついているので防犯性が高くなっています。
人気の角部屋。周囲の居住者の生活音も気になりにくい場所です。バス・トイレ別の仕様で、のんびりお風呂タイムも楽しめます。
通信設備面では、インターネット接続が可能です(別途工事、契約料が必要な場合あり)。
共用部には宅配ボックスが設定されているので、不在の時にも荷物を受け取ることができます。
お金・契約の情報
※「-」と表示されているものは、実際は料金が発生するものもございます。詳細はお問い合わせください。
| 家賃 | 8.7万円 | 管理費・共益費 | 5,000円 |
|---|---|---|---|
| 敷金 | 8.7万円 | 礼金 | 8.7万円 |
| 入居決定でお祝い金最大100,000円 | |||
| 保証金 | - | 償却・敷引 | - |
| 住宅保険料 | - | 更新料 | - |
| 保証会社利用 | 必須 | 保証会社名 | - |
| 保証会社費用 | - | 保証会社備考 | 保証会社利用必 初回賃料等の50% ̄100%、年間1万円 ̄1万5000円、収納代行手数料月額440円 |
| 契約形態 | 定期借家 | 契約期間 | 2年 |
| 入居・引渡期間 | - | 現況 | - |
| 契約備考 | 昭和大学旗の台キャンパスまで647m/昭和大学病院まで667m/火災保険別途20000円(2年間)/1年未満解約時賃料の1ヶ月分違約金があります/駆け付けサービス加入必須16500円/2年間/鍵交換代借主負担/室内清掃費用借主負担/喫煙 不可 合計1.65万円(内訳:駆け付けサービス加入必須16500円) ワンルーム 定期借家2年 損保【要】 バストイレ別、エアコン、オートロック、室内洗濯置、角住戸、温水洗浄便座、洗面所独立、宅配ボックス、光ファイバー、外壁タイル張り、IHクッキングヒーター、敷金1ヶ月、オール電化、保証金不要、外壁コンクリート、3駅以上利用可、3沿線以上利用可、駅徒歩5分以内、駅徒歩10分以内、高速ネット対応、礼金1ヶ月、初期費用カード決済可 入居日:'26年3月下旬 | ||
部屋の情報
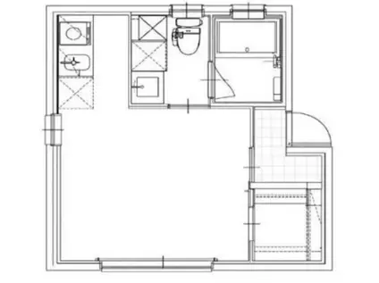
| 間取り | ワンルーム | 専有面積 | 23.88m2 |
|---|---|---|---|
| 所在階 / 向き | 2階 / - | バルコニー面積 | - |
| 水道 / ガス | - | ||
| 設備 | バス・トイレ別、2階以上、オートロック、宅配ボックス、インターネット対応、エアコン、温水洗浄便座、角部屋、洗髪洗面化粧台、オール電化、コンロ:IH、洗濯機:室内 | ||
| 当社物件ID | 17382277 | ||
建物の情報
| 建物名 | SWAN EBARA NAKANOBU | ||
|---|---|---|---|
| 所在地 | 東京都品川区西中延 | ||
| 交通 | 東急池上線 荏原中延駅 徒歩5分 東急大井町線 荏原町駅 徒歩9分 都営浅草線 中延駅 徒歩10分 | ||
| 階数 | 4階建 | 総戸数 | - |
| 築年月 | 2015年03月 / 築12年 | エレベーター | - |
| 駐車場 | 近隣 530m37400円 | バイク置き場 | - |
| 駐輪場 | - | 管理人/管理会社 | - |
| 周辺環境 | その他 ホームセンターコーナン品川旗の台店(ホームセンター)まで382m その他 イオンタウン旗の台(ショッピングセンター)まで779m その他 東急ストア荏原中延店(スーパー)まで397m その他 セブン-イレブン 品川西中延1丁目店(コンビニ)まで281m その他 ヒノミドラッグ中延店(ドラッグストア)まで359m その他 カレーハウス CoCo壱番屋 東急荏原中延駅前店(飲食店)まで328m | ||
| 建物種別 | マンション | 建物構造 | RC(鉄筋コンクリート) |
この部屋の取扱い不動産会社
| 会社名 | アエラス目黒店 (株)アエラス.FR(SUUMO経由) | ||
|---|---|---|---|
| 所在地 | 東京都目黒区目黒1-4-8 東レクビル 5階 | 交通 | - |
| 営業時間 | 10:00~19:00(時間外対応出来る場合有り) | 定休日 | 年中無休(年末年始などを除く) |
| 免許番号 | 国土交通大臣10206 | 取引態様 | 仲介 |
| 不動産会社管理番号 | 100491150706 | 当社管理番号 | 89 |
| 所属団体 | (公社)全日本不動産協会東京都本部会員 | ||
| 公正取引協議会 | (公社)首都圏不動産公正取引協議会加盟 | ||
| 取扱い物件情報 | 物件詳細へ | ||
※各種情報と現状に差異がある場合は、現状優先となります。問い合わせをすることで、より詳しい条件、情報を確認する事ができます。
提供:アエラス目黒店 (株)アエラス.FR(SUUMO経由)
この物件が気になったら掲載期限まであと10日
SWAN EBARA NAKANOBUに条件(家賃・エリア)が近い物件一覧
| 写真 | 家賃 管理費等 | 敷金 礼金 | 間取り 専有面積 | 築年数 | 最寄り駅 所在地 | キープ | 詳細 |
|---|---|---|---|---|---|---|---|
マンション エクセルⅤ(1K/4階) | |||||||
![]() | 8.1万円 2,000円 | 8.1万円 8.1万円 | 1K 23.46m2 | 築27年 | 東急池上線 千鳥町駅 徒歩3分 東急多摩川線 下丸子駅 徒歩6分 東京都大田区千鳥3丁目 | 詳細を見る | |
マンション グランディール(1K/4階) | |||||||
![]() | 9.3万円 5,000円 | 9.3万円 9.3万円 | 1K 25.02m2 | 築22年 | 京浜急行電鉄本線 大森町駅 徒歩5分 京浜急行電鉄本線 梅屋敷駅(東京) 徒歩9分 東京都大田区大森中1丁目 | 詳細を見る | |
マンション メゾンドボナール(1DK/4階) | |||||||
![]() | 12万円 3,000円 | 12万円 なし | 1DK 32.48m2 | 築29年 | 京浜東北・根岸線 蒲田駅 徒歩10分 京浜急行電鉄本線 京急蒲田駅 徒歩10分 東京都大田区蒲田3丁目 | 詳細を見る | |
アパート サン ヴィータ(1K/1階) | |||||||
![]() | 9万円 5,000円 | 9万円 18万円 | 1K 21.6m2 | 築6年 | 京浜急行電鉄本線 京急蒲田駅 徒歩6分 京浜急行電鉄本線 梅屋敷駅(東京) 徒歩10分 東京都大田区蒲田3丁目 | 詳細を見る | |
マンション ハイツACT(1K/3階) | |||||||
![]() | 7.5万円 3,000円 | 7.5万円 15万円 | 1K 20.56m2 | 築30年 | 京浜東北・根岸線 蒲田駅 徒歩11分 京浜急行電鉄本線 梅屋敷駅(東京) 徒歩13分 東京都大田区蒲田1丁目 | 詳細を見る | |
アパート SEED SAVE PETIRASU BREEZE(1LDK/2階) | |||||||
![]() | 10.6万円 1万円 | 21.2万円 10.6万円 | 1LDK 30.55m2 | 新築 | 東京モノレール羽田 昭和島駅 徒歩12分 京浜急行電鉄本線 大森町駅 徒歩18分 東京都大田区大森東5丁目 | 詳細を見る | |







