賃貸マンション
クリオ川越弐番館の賃貸物件情報(3LDK/3階)
| 家賃 | 管理費等 | 敷金 | 礼金 | 間取り | 専有面積 |
|---|---|---|---|---|---|
| 14万円 | 8,000円 | 28万円 | 14万円 | 3LDK | 70.2m2 |
入居決定でお祝い金最大100,000円
- 保証金
- -
- 償却・敷引
- -
- 築年数
- 築25年
- 所在階
- 3階
- 向き
- -
Point
駅チカ!通勤通学に便利です
提供:株式会社住協 川越支店(賃貸スモッカ経由)

詳細情報 クリオ川越弐番館
物件紹介
クリオ川越弐番館は西武鉄道新宿線本川越駅から徒歩5分にあり、駅近で通勤通学に便利なマンションです。
このお部屋は2階以上に位置しているので通行人や周囲の住人からの視線が気になりにくく、建物のエントランスはオートロックがついているので防犯性が高くなっています。
人気の南向きのお部屋。また、フローリングなのでお掃除もラクラク。キッチンはシステムキッチン仕様になっていますので、お料理好きの方にもぴったり。バス・トイレは別なので、のんびりお風呂タイムも楽しめるでしょう。また、雨の日でも浴室乾燥機を使えば、お洗濯も問題ありません。
通信設備面では、インターネット接続が可能です(別途工事、契約料が必要な場合あり)。
床暖房があり、冬も足元から暖かく快適に過ごすことができます。建物にはエレベーターがついているので、重い荷物があっても安心。
このお部屋は2階以上に位置しているので通行人や周囲の住人からの視線が気になりにくく、建物のエントランスはオートロックがついているので防犯性が高くなっています。
人気の南向きのお部屋。また、フローリングなのでお掃除もラクラク。キッチンはシステムキッチン仕様になっていますので、お料理好きの方にもぴったり。バス・トイレは別なので、のんびりお風呂タイムも楽しめるでしょう。また、雨の日でも浴室乾燥機を使えば、お洗濯も問題ありません。
通信設備面では、インターネット接続が可能です(別途工事、契約料が必要な場合あり)。
床暖房があり、冬も足元から暖かく快適に過ごすことができます。建物にはエレベーターがついているので、重い荷物があっても安心。
お金・契約の情報
※「-」と表示されているものは、実際は料金が発生するものもございます。詳細はお問い合わせください。
| 家賃 | 14万円 | 管理費・共益費 | 8,000円 |
|---|---|---|---|
| 敷金 | 28万円 | 礼金 | 14万円 |
| 入居決定でお祝い金最大100,000円 | |||
| 保証金 | - | 償却・敷引 | - |
| 住宅保険料 | 住宅保険料あり | 更新料 | - |
| 契約形態 | - | 契約期間 | 3年 |
| 入居・引渡期間 | 即時 | 現況 | 空室 |
| 契約備考 | エアコン・クロス・クッションフロア・照明器具他、2025年12月リフォーム済み 鍵交換を希望の場合は、8,000円(税別)~ + 送料1,144円が必要です。 ※鍵1本追加毎2,000円+税 コンシェルジュ24:1,100円 その他設備/条件:分譲賃貸、コンロ2口以上、独立洗面台、TVドアホン、エアコン複数 | ||
部屋の情報
| 間取り | 3LDK | 専有面積 | 70.2m2 |
|---|---|---|---|
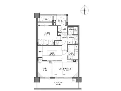
| 間取り詳細 | LD(10.1帖)、K(3.4帖)、洋室(5帖)、和室(6帖)、洋室(7.1帖) | ||
| 所在階 / 向き | 3階 / - | バルコニー面積 | - |
| 水道 / ガス | ガス【都市】 | ||
| 設備 | バス・トイレ別、オートロック、浴室乾燥機、追い焚き、インターネット対応、システムキッチン、エアコン、エレベーター、温水洗浄便座、南向き、バルコニー、フローリング、床暖房、コンロ:ガス、洗濯機:室内 | ||
| 当社物件ID | 160440182 | ||
建物の情報
| 建物名 | クリオ川越弐番館 | ||
|---|---|---|---|
| 所在地 | 埼玉県川越市通町13-3 | ||
| 交通 | 西武鉄道新宿線 本川越駅 徒歩5分 東武鉄道東上線 川越市駅 徒歩12分 川越線 川越駅 徒歩14分 | ||
| 階数 | 階建 | 総戸数 | - |
| 築年月 | 2001年07月 / 築25年 | エレベーター | あり |
| 駐車場 | - | バイク置き場 | あり |
| 駐輪場 | あり | 管理人/管理会社 | - |
| 建物種別 | マンション | 建物構造 | RC(鉄筋コンクリート) |
この部屋の取扱い不動産会社
| 会社名 | 株式会社住協 川越支店(賃貸スモッカ経由) | ||
|---|---|---|---|
| 所在地 | 埼玉県川越市新宿町1丁目16-6 | 交通 | - |
| 営業時間 | - | 定休日 | - |
| 免許番号 | 国土交通大臣免許(04)第006956号 | 取引態様 | 代理 |
| 不動産会社管理番号 | jyukyo_100_ZkUchlog34 | 当社管理番号 | 463 |
| 所属団体 | (公社)埼玉県宅地建物取引業協会会員\n公益社団法人首都圏不動産公正取引協議会 | ||
| 公正取引協議会 | (公社)全国宅地建物取引業保証協会 | ||
| 取扱い物件情報 | 物件詳細へ | ||
※各種情報と現状に差異がある場合は、現状優先となります。問い合わせをすることで、より詳しい条件、情報を確認する事ができます。
提供:株式会社住協 川越支店(賃貸スモッカ経由)
この物件が気になったら掲載期限まであと5日
クリオ川越弐番館に条件(家賃・エリア)が近い物件一覧
| 写真 | 家賃 管理費等 | 敷金 礼金 | 間取り 専有面積 | 築年数 | 最寄り駅 所在地 | キープ | 詳細 |
|---|---|---|---|---|---|---|---|
マンション 友鶴ビル(2LDK/2階) | |||||||
![]() | 8.5万円 3,000円 | 8.5万円 なし | 2LDK 72.76m2 | 築45年 | 西武鉄道新宿線 南大塚駅 徒歩5分 埼玉県川越市南台2丁目 | 詳細を見る | |
マンション 南浦和岡昭マンション(1LDK/3階) | |||||||
![]() | 8.8万円 4,000円 | 8.8万円 なし | 1LDK 43.2m2 | 築33年 | JR京浜東北線 南浦和駅 徒歩7分 JR武蔵野線 武蔵浦和駅 徒歩21分 JR埼京線 北戸田駅 徒歩31分 埼玉県さいたま市南区根岸 | 詳細を見る | |
マンション アクロプレステージI(3LDK/3階) | |||||||
![]() | 9.5万円 9,000円 | 19万円 9.5万円 | 3LDK 65.45m2 | 築34年 | JR高崎線 宮原駅 徒歩2分 JR川越線 日進駅(埼玉) 徒歩14分 埼玉新都市交通伊奈線 東宮原駅 徒歩14分 埼玉県さいたま市北区日進町 | 詳細を見る | |
アパート ROBOT HOME 東所沢IV(1LDK/3階) | |||||||
![]() | 8.7万円 3,000円 | なし 8.7万円 | 1LDK 30.12m2 | 新築 | JR武蔵野線 東所沢駅 徒歩8分 埼玉県所沢市東所沢 | 詳細を見る | |
タウンハウス FAMILLIA大宮(3LDK) | |||||||
![]() | 12.5万円 なし | 12.5万円 12.5万円 | 3LDK 68.31m2 | 築2年 | 埼玉県さいたま市西区大字二ツ宮 | 詳細を見る | |
アパート ROBOT HOME 東所沢Ⅴ(1LDK/3階) | |||||||
![]() | 8.5万円 3,000円 | なし 8.5万円 | 1LDK 29.01m2 | 新築 | 武蔵野線 東所沢駅 徒歩9分 埼玉県所沢市東所沢2丁目 | 詳細を見る | |
マンション グリーンコーポ大宮日進(4LDK/7階) | |||||||
![]() | 14万円 1万円 | 28万円 14万円 | 4LDK 75.94m2 | 築29年 | JR川越線 日進駅(埼玉) 徒歩5分 埼玉県さいたま市北区日進町 | 詳細を見る | |
アパート ベルメゾン川越サザンスケープ(3LDK/7階) | |||||||
![]() | 16万円 8,100円 | 16万円 16万円 | 3LDK 70.24m2 | 築24年 | 西武新宿線 本川越駅 徒歩3分 東武東上線 川越市駅 徒歩13分 東武東上線 川越駅 徒歩14分 埼玉県川越市新富町 | 詳細を見る | |









