賃貸マンション
メインステージ麻布十番IIの賃貸物件情報(1K/8階)
| 家賃 | 管理費等 | 敷金 | 礼金 | 間取り | 専有面積 |
|---|---|---|---|---|---|
| 9.8万円 | なし | 9.8万円 | 9.8万円 | 1K | 20.52m2 |
入居決定でお祝い金最大100,000円
- 保証金
- -
- 償却・敷引
- -
- 築年数
- 築24年
- 所在階
- 8階
- 向き
- 北
Point
エリア問わず気になる物件は複数まとめてご紹介!初期費用は分割・カード払いOK。公式HPでは新着物件・ネット非公開物件を毎日リアルタイムに更新中。遠方の方にはオンライン接客にて店頭同様の対応も可能です!
提供:(株)エールーム新橋店(SUUMO経由)

詳細情報 メインステージ麻布十番II
物件紹介
メインステージ麻布十番IIは東京メトロ南北線麻布十番駅から徒歩1分にあり、駅近で通勤通学に便利なマンションです。
このお部屋は2階以上に位置しているので、通行人や周囲の住人からの視線が気になりにくく、防犯面でも安心。建物のエントランスはオートロックがついており、インターホンにはTVモニタもついているため、相手の顔を確認してから来客対応することができます。
人気の角部屋で周囲の居住者の生活音も気になりにくく、また、フローリングのお部屋なのでお掃除もラクラク。キッチンはシステムキッチン仕様になっていますので、お料理好きの方にもぴったり。バス・トイレは別なので、のんびりお風呂タイムも楽しめるでしょう。また、雨の日でも浴室乾燥機を使えば、お洗濯も問題ありません。
通信設備面では、インターネット接続が可能です。また、CATVにも対応しているので、おうち時間も充実するでしょう(別途工事、契約料が必要な場合あり)。
建物にはエレベーターがついているので、重い荷物があっても安心。共用部には宅配ボックスが設定されているので、不在の時にも荷物を受け取ることができます。
このお部屋は2階以上に位置しているので、通行人や周囲の住人からの視線が気になりにくく、防犯面でも安心。建物のエントランスはオートロックがついており、インターホンにはTVモニタもついているため、相手の顔を確認してから来客対応することができます。
人気の角部屋で周囲の居住者の生活音も気になりにくく、また、フローリングのお部屋なのでお掃除もラクラク。キッチンはシステムキッチン仕様になっていますので、お料理好きの方にもぴったり。バス・トイレは別なので、のんびりお風呂タイムも楽しめるでしょう。また、雨の日でも浴室乾燥機を使えば、お洗濯も問題ありません。
通信設備面では、インターネット接続が可能です。また、CATVにも対応しているので、おうち時間も充実するでしょう(別途工事、契約料が必要な場合あり)。
建物にはエレベーターがついているので、重い荷物があっても安心。共用部には宅配ボックスが設定されているので、不在の時にも荷物を受け取ることができます。
お金・契約の情報
※「-」と表示されているものは、実際は料金が発生するものもございます。詳細はお問い合わせください。
| 家賃 | 9.8万円 | 管理費・共益費 | なし |
|---|---|---|---|
| 敷金 | 9.8万円 | 礼金 | 9.8万円 |
| 入居決定でお祝い金最大100,000円 | |||
| 保証金 | - | 償却・敷引 | - |
| 住宅保険料 | - | 更新料 | - |
| 保証会社利用 | 必須 | 保証会社名 | - |
| 保証会社費用 | - | 保証会社備考 | 保証会社利用必 お気軽にお問い合わせください。 初回保証料:月額総賃料の120% 又は 初回保証料:月額総賃料の50%+年間保証料:13 000円 |
| 契約形態 | - | 契約期間 | - |
| 入居・引渡期間 | 即時 | 現況 | - |
| 契約備考 | 物件詳細やご見学等はお気軽にご相談下さいませ★毎日新規物件50件以上登録しております★リアルタイム物件情報は当社ホームページへ!入居日・初期費用等の交渉事は全て当社にお任せ下さい!お客様のご希望にそって全力でお部屋探しのサポートをさせて頂きます!当店では、シングル(一人暮らし)・ファミリー(家族)賃貸物件を中心にお部屋探しをサポート致します!その他非公開物件の情報提供も致します!短期解約違約金有 更新料 新賃料1.00ヶ月分 1K 普通借家2年 損保【1.8万円2年】 バストイレ別、バルコニー、エアコン、ガスコンロ対応、クロゼット、フローリング、TVインターホン、浴室乾燥機、オートロック、室内洗濯置、陽当り良好、シューズボックス、システムキッチン、エレベーター、2口コンロ、駐輪場、宅配ボックス、CATV、光ファイバー、外壁タイル張り、即入居可、2面採光、照明付、分譲賃貸、保証人不要、ネット専用回線、内装リフォーム済、眺望良好、耐火構造、3駅以上利用可、3沿線以上利用可、駅徒歩10分以内、都市ガス、保証会社利用可、IT重説対応物件 | ||
部屋の情報
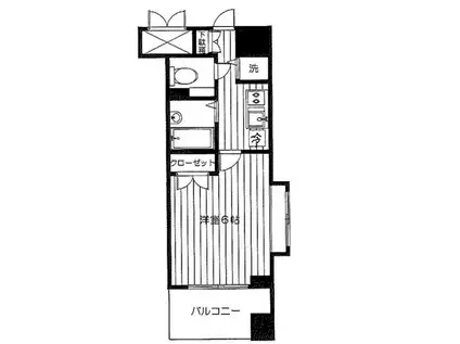
| 間取り | 1K | 専有面積 | 20.52m2 |
|---|---|---|---|
| 所在階 / 向き | 8階 / 北 | バルコニー面積 | - |
| 水道 / ガス | - | ||
| 設備 | バス・トイレ別、2階以上、オートロック、テレビドアホン、宅配ボックス、浴室乾燥機、インターネット対応、システムキッチン、エアコン、エレベーター、バルコニー、フローリング、2口コンロ、コンロ:ガス、CATV、洗濯機:室内 | ||
| 当社物件ID | 13022391 | ||
建物の情報
| 建物名 | メインステージ麻布十番II | ||
|---|---|---|---|
| 所在地 | 東京都港区東麻布 | ||
| 交通 | 東京メトロ南北線 麻布十番駅 徒歩1分 都営大江戸線 赤羽橋駅 徒歩7分 東京メトロ日比谷線 神谷町駅 徒歩16分 | ||
| 階数 | 11階建 | 総戸数 | - |
| 築年月 | 2002年09月 / 築24年 | エレベーター | あり |
| 駐車場 | なし | バイク置き場 | - |
| 駐輪場 | あり | 管理人/管理会社 | - |
| 周辺環境 | その他 ガスト 目黒不動前店(から好し取扱店)(飲食店)まで4886m その他 ライフ渋谷東店(スーパー)まで3319m その他 ファミリーマート 東五反田四丁目店(コンビニ)まで3165m その他 まいばすけっと 新宿大京町店(スーパー)まで4498m | ||
| 建物種別 | マンション | 建物構造 | SRC(鉄骨鉄筋コンクリート) |
この部屋の取扱い不動産会社
| 会社名 | (株)REPLAY中目黒店(SUUMO経由) | ||
|---|---|---|---|
| 所在地 | 東京都目黒区上目黒2-16-14 | 交通 | - |
| 営業時間 | 10時-19時 | 定休日 | 火曜・水曜 |
| 免許番号 | 東京都知事104957 | 取引態様 | 仲介 |
| 不動産会社管理番号 | 100483513510 | 当社管理番号 | 89 |
| 取扱い物件情報 | 物件詳細へ | ||
※各種情報と現状に差異がある場合は、現状優先となります。問い合わせをすることで、より詳しい条件、情報を確認する事ができます。
提供:(株)REPLAY中目黒店(SUUMO経由)
この物件が気になったら掲載期限まであと10日
メインステージ麻布十番IIに条件(家賃・エリア)が近い物件一覧
| 写真 | 家賃 管理費等 | 敷金 礼金 | 間取り 専有面積 | 築年数 | 最寄り駅 所在地 | キープ | 詳細 |
|---|---|---|---|---|---|---|---|
マンション パークハビオ門前仲町(1K/3階) | |||||||
![]() | 13.4万円 1.5万円 | 13.4万円 13.4万円 | 1K 25.12m2 | 築12年 | 東京メトロ東西線 門前仲町駅 徒歩2分 JR京葉線 越中島駅 徒歩14分 東京メトロ半蔵門線 清澄白河駅 徒歩14分 東京都江東区深川 | 詳細を見る | |
マンション プロスペクト森下(ワンルーム/3階) | |||||||
![]() | 11万円 6,000円 | なし なし | ワンルーム 20.61m2 | 築21年 | 都営大江戸線 森下駅(東京) 徒歩1分 東京メトロ半蔵門線 清澄白河駅 徒歩7分 都営新宿線 菊川駅(東京) 徒歩10分 東京都江東区森下 | 詳細を見る | |
マンション パークホームズ東陽町(1LDK/1階) | |||||||
![]() | 14.5万円 1.5万円 | なし 14.5万円 | 1LDK 33m2 | 築2年 | 東京メトロ東西線 東陽町駅 徒歩6分 東京メトロ東西線 木場駅 徒歩11分 東京メトロ東西線 門前仲町駅 徒歩25分 東京都江東区東陽 | 詳細を見る | |
マンション 品川シーサイドビュータワー2(1K/17階) | |||||||
![]() | 15.1万円 1万円 | なし 22.65万円 | 1K 42.38m2 | 築23年 | 東京臨海高速鉄道 品川シーサイド駅 徒歩2分 東京都品川区東品川4丁目 | 詳細を見る | |
一戸建て 東京都新宿線 大島駅(東京) 徒歩7分 築77年(1DK) | |||||||
![]() | 15.8万円 1万円 | 15.8万円 15.8万円 | 1DK 27.91m2 | 築77年 | 東京都新宿線 大島駅(東京) 徒歩7分 東京都新宿線 西大島駅 徒歩7分 総武・中央緩行線 亀戸駅 徒歩11分 東京都江東区大島3丁目 | 詳細を見る | |
一戸建て 東京地下鉄有楽町線 豊洲駅 徒歩12分 築51年(3DK) | |||||||
![]() | 13.8万円 なし | 13.8万円 13.8万円 | 3DK 64.71m2 | 築51年 | 東京地下鉄有楽町線 豊洲駅 徒歩12分 京葉線 潮見駅 徒歩20分 東京地下鉄東西線 木場駅 徒歩24分 東京都江東区枝川1丁目 | 詳細を見る | |
マンション ザ・パークハビオ西大井(1K/6階) | |||||||
![]() | 13万円 1万円 | 13万円 なし | 1K 23.55m2 | 築6年 | JR埼京線 西大井駅 徒歩8分 東急大井町線 下神明駅 徒歩15分 りんかい線 大井町駅 徒歩16分 東京都品川区西大井 | 詳細を見る | |







