賃貸マンション
大京レジデンスの賃貸物件情報(1K/6階)
| 家賃 | 管理費等 | 敷金 | 礼金 | 間取り | 専有面積 |
|---|---|---|---|---|---|
| 7.8万円 | 1万円 | 7.8万円 | 7.8万円 | 1K | 20.55m2 |
入居決定でお祝い金最大100,000円
- 保証金
- -
- 償却・敷引
- 7.8万円
- 築年数
- 築3年
- 所在階
- 6階
- 向き
- 北
Point
・戸田駅徒歩3分。・家電付き物件。・おしゃれな冷蔵庫。・インターネット無料。・防犯カメラ、オートロックで安心。
提供:大京不動産(SUUMO経由)

詳細情報 大京レジデンス
物件紹介
大京レジデンスはJR埼京線戸田駅から徒歩3分にあり、駅近で通勤通学に便利なマンションです。
このお部屋は2階以上に位置しているので、通行人や周囲の住人からの視線が気になりにくく、防犯面でも安心。建物のエントランスはオートロックがついており、インターホンにはTVモニタもついているため、相手の顔を確認してから来客対応することができます。
人気の角部屋で周囲の居住者の生活音も気になりにくく、また、フローリングのお部屋なのでお掃除もラクラク。バス・トイレ別の仕様で、のんびりお風呂タイムも楽しめます。また、浴室乾燥機を使えば、雨の日でもお洗濯は問題ありません。
通信設備面では、インターネットが無料で使えるので、月々の出費を抑えられるのも魅力です。また、BSアンテナ・CSアンテナもありますので、おうち時間も充実するでしょう(別途工事、BS・CSの契約料等が必要な場合あり)。
建物にはエレベーターがついているので、重い荷物があっても安心。共用部には宅配ボックスが設定されているので、不在の時にも荷物を受け取ることができます。
このお部屋は2階以上に位置しているので、通行人や周囲の住人からの視線が気になりにくく、防犯面でも安心。建物のエントランスはオートロックがついており、インターホンにはTVモニタもついているため、相手の顔を確認してから来客対応することができます。
人気の角部屋で周囲の居住者の生活音も気になりにくく、また、フローリングのお部屋なのでお掃除もラクラク。バス・トイレ別の仕様で、のんびりお風呂タイムも楽しめます。また、浴室乾燥機を使えば、雨の日でもお洗濯は問題ありません。
通信設備面では、インターネットが無料で使えるので、月々の出費を抑えられるのも魅力です。また、BSアンテナ・CSアンテナもありますので、おうち時間も充実するでしょう(別途工事、BS・CSの契約料等が必要な場合あり)。
建物にはエレベーターがついているので、重い荷物があっても安心。共用部には宅配ボックスが設定されているので、不在の時にも荷物を受け取ることができます。
お金・契約の情報
※「-」と表示されているものは、実際は料金が発生するものもございます。詳細はお問い合わせください。
| 家賃 | 7.8万円 | 管理費・共益費 | 1万円 |
|---|---|---|---|
| 敷金 | 7.8万円 | 礼金 | 7.8万円 |
| 入居決定でお祝い金最大100,000円 | |||
| 保証金 | - | 償却・敷引 | 7.8万円 |
| 住宅保険料 | - | 更新料 | - |
| 保証会社利用 | 必須 | 保証会社名 | - |
| 保証会社費用 | - | 保証会社備考 | 保証会社利用必 エルズサポート(株) 初回総賃料50% 更新毎年1万円 |
| 契約形態 | - | 契約期間 | - |
| 入居・引渡期間 | - | 現況 | - |
| 契約備考 | 未入居/T-FRONTEまで444m/Olympic戸田店まで250m/巡回管理 合計3.85万円(内訳:鍵交換 38500円) 1K 単身者可 普通借家2年 損保【2.4万円2年】 バストイレ別、バルコニー、エアコン、ガスコンロ対応、クロゼット、フローリング、シャワー付洗面台、TVインターホン、浴室乾燥機、オートロック、室内洗濯置、陽当り良好、シューズボックス、追焚機能浴室、角住戸、温水洗浄便座、脱衣所、エレベーター、洗面所独立、2口コンロ、駐輪場、宅配ボックス、外壁タイル張り、最上階、BS・CS、防犯カメラ、照明付、全居室収納、全居室洋室、冷蔵庫、全居室フローリング、ガスレンジ付、仲手0.55ヶ月、ディンプルキー、駅まで平坦、洗濯機、ネット使用料不要、眺望良好、人感照明センサー、浴室未使用、家電付、トイレ未使用、区画整理地内、駅徒歩5分以内、バス停徒歩3分以内、敷地内ごみ置き場、当社管理物件、都市ガス、南面バルコニー、室内物干機、間接照明、ダウンライト、保証会社利用可、全室照明付、テレビ 入居日:'26年3月下旬 | ||
部屋の情報
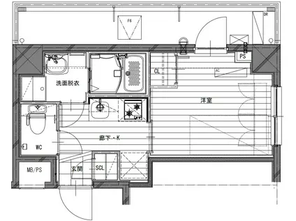
| 間取り | 1K | 専有面積 | 20.55m2 |
|---|---|---|---|
| 所在階 / 向き | 6階 / 北 | バルコニー面積 | 7m2 |
| 水道 / ガス | - | ||
| 設備 | バス・トイレ別、2階以上、オートロック、テレビドアホン、宅配ボックス、浴室乾燥機、追い焚き、インターネット対応、エアコン、エレベーター、温水洗浄便座、角部屋、バルコニー、フローリング、洗髪洗面化粧台、2口コンロ、コンロ:ガス、CSアンテナ、BSアンテナ、インターネット使用料無料、洗濯機:室内 | ||
| 当社物件ID | 146394458 | ||
建物の情報
| 建物名 | 大京レジデンス | ||
|---|---|---|---|
| 所在地 | 埼玉県戸田市大字新曽 | ||
| 交通 | JR埼京線 戸田駅(埼玉) 徒歩3分 JR埼京線 戸田公園駅 徒歩21分 JR埼京線 北戸田駅 徒歩22分 | ||
| 階数 | 6階建 | 総戸数 | 15戸 |
| 築年月 | 2023年08月 / 築3年 | エレベーター | あり |
| 駐車場 | なし | バイク置き場 | - |
| 駐輪場 | あり | 管理人/管理会社 | - |
| 周辺環境 | その他 Olympic戸田店(スーパー)まで250m その他 T-FRONTE(ショッピングセンター)まで444m その他 しゃぶしゃぶどん亭戸田駅前店(飲食店)まで171m その他 スーパービバホーム蕨錦町店(ホームセンター)まで1169m その他 ファミリーマート戸田駅東口店(コンビニ)まで224m その他 明文堂書店TSUTAYA戸田(レンタルビデオ)まで444m | ||
| 建物種別 | マンション | 建物構造 | RC(鉄筋コンクリート) |
この部屋の取扱い不動産会社
| 会社名 | 大京不動産(SUUMO経由) | ||
|---|---|---|---|
| 所在地 | 埼玉県戸田市大字新曽 107 | 交通 | - |
| 営業時間 | 9:00~18:00 | 定休日 | 毎週水曜日、日曜日 |
| 免許番号 | 埼玉県知事12819 | 取引態様 | 仲介 |
| 不動産会社管理番号 | 100348823659 | 当社管理番号 | 89 |
| 所属団体 | (公社)埼玉県宅地建物取引業協会会員 | ||
| 公正取引協議会 | (公社)首都圏不動産公正取引協議会加盟 | ||
| 取扱い物件情報 | 物件詳細へ | ||
※各種情報と現状に差異がある場合は、現状優先となります。問い合わせをすることで、より詳しい条件、情報を確認する事ができます。
提供:大京不動産(SUUMO経由)
この物件が気になったら掲載期限まであと9日
大京レジデンスに条件(家賃・エリア)が近い物件一覧
| 写真 | 家賃 管理費等 | 敷金 礼金 | 間取り 専有面積 | 築年数 | 最寄り駅 所在地 | キープ | 詳細 |
|---|---|---|---|---|---|---|---|
マンション 志幸88BIBIAN(1K/2階) | |||||||
![]() | 7.3万円 5,000円 | 8万円 7.3万円 | 1K 25.77m2 | 築2年 | 東京メトロ有楽町線 和光市駅 徒歩12分 東京メトロ副都心線 和光市駅 徒歩12分 東武東上線 和光市駅 徒歩12分 埼玉県和光市 | 詳細を見る | |
マンション マンション五湯(2LDK/2階) | |||||||
![]() | 9.6万円 6,000円 | 9.6万円 なし | 2LDK 50.23m2 | 築27年 | 埼玉高速鉄道 南鳩ケ谷駅 徒歩9分 埼玉高速鉄道 川口元郷駅 徒歩18分 JR京浜東北線 川口駅 徒歩30分 埼玉県川口市朝日 | 詳細を見る | |
マンション ラ・ティーダ戸田公園(1LDK/4階) | |||||||
![]() | 10.5万円 5,000円 | 10.5万円 なし | 1LDK 42.12m2 | 築45年 | JR埼京線 戸田公園駅 徒歩9分 JR埼京線 戸田駅(埼玉) 徒歩21分 埼玉県戸田市 | 詳細を見る | |
アパート リヴィエール(1K/3階) | |||||||
![]() | 9.1万円 5,000円 | なし 9.1万円 | 1K 26.27m2 | 築11年 | 高崎線 さいたま新都心駅 徒歩9分 埼玉県さいたま市中央区 | 詳細を見る | |
マンション GENOVIA西川口(1K/5階) | |||||||
![]() | 9.15万円 1万円 | なし なし | 1K 25.51m2 | 築1年 | 京浜東北・根岸線 西川口駅 徒歩9分 埼玉県川口市西青木3丁目 | 詳細を見る | |
マンション クレイノカサ リリオIII(1K/3階) | |||||||
![]() | 6.8万円 5,000円 | なし 6.8万円 | 1K 20.29m2 | 築9年 | JR京浜東北線 北浦和駅 徒歩20分 JR京浜東北線 与野駅 徒歩30分 JR京浜東北線 浦和駅 徒歩31分 埼玉県さいたま市浦和区領家 | 詳細を見る | |
マンション グレース・トーエイ(2DK/3階) | |||||||
![]() | 6.8万円 5,000円 | 6.8万円 6.8万円 | 2DK 44.5m2 | 築34年 | JR埼京線 南与野駅 徒歩28分 JR埼京線 与野本町駅 徒歩34分 JR埼京線 中浦和駅 徒歩42分 埼玉県さいたま市桜区 | 詳細を見る | |
マンション プレール・ドゥーク西川口(1K/3階) | |||||||
![]() | 7.2万円 8,000円 | なし 7.2万円 | 1K 23.42m2 | 築11年 | JR京浜東北線 西川口駅 徒歩5分 JR京浜東北線 蕨駅 徒歩27分 JR京浜東北線 川口駅 徒歩29分 埼玉県川口市西川口 | 詳細を見る | |









