賃貸アパート
レオパレスコスモの賃貸物件情報(1K/2階)
| 家賃 | 管理費等 | 敷金 | 礼金 | 間取り | 専有面積 |
|---|---|---|---|---|---|
| 6.6万円 | 5,000円 | なし | 6.6万円 | 1K | 22.35m2 |
入居決定でお祝い金最大100,000円
Point
まずはお問い合わせ!
不動産会社は街のプロ、あなたに合った物件がきっと見つかります。
提供:(株)タウンハウジング東京 羽村店(SUUMO経由)

詳細情報 レオパレスコスモ
物件紹介
レオパレスコスモはJR青梅線小作駅から徒歩13分にあるアパートです。
このお部屋は2階以上に位置しているので、通行人や周囲の住人からの視線が気になりにくく、防犯面でも安心。インターホンにはTVモニタもついているため、相手の顔を確認してから来客対応することができます。
バス・トイレ別の仕様で、のんびりお風呂タイムも楽しめます。また、浴室乾燥機を使えば、雨の日でもお洗濯は問題ありません。
通信設備面では、インターネット接続が可能です(別途工事、契約料が必要な場合あり)。
共用部には宅配ボックスが設定されているので、不在の時にも荷物を受け取ることができます。
このお部屋は2階以上に位置しているので、通行人や周囲の住人からの視線が気になりにくく、防犯面でも安心。インターホンにはTVモニタもついているため、相手の顔を確認してから来客対応することができます。
バス・トイレ別の仕様で、のんびりお風呂タイムも楽しめます。また、浴室乾燥機を使えば、雨の日でもお洗濯は問題ありません。
通信設備面では、インターネット接続が可能です(別途工事、契約料が必要な場合あり)。
共用部には宅配ボックスが設定されているので、不在の時にも荷物を受け取ることができます。
お金・契約の情報
※「-」と表示されているものは、実際は料金が発生するものもございます。詳細はお問い合わせください。
| 家賃 | 6.6万円 | 管理費・共益費 | 5,000円 |
|---|---|---|---|
| 敷金 | なし | 礼金 | 6.6万円 |
| 入居決定でお祝い金最大100,000円 | |||
| 保証金 | - | 償却・敷引 | - |
| 住宅保険料 | 1円 | 更新料 | - |
| その他費用 | 抗菌施工(任意):2.376万円 | ||
| 保証会社利用 | 必須 | 保証会社名 | - |
| 保証会社費用 | - | 保証会社備考 | 保証料:85790円(契約内容により100〜120%で変動有)※記載金額は120%の場合 |
| 契約形態 | - | 契約期間 | - |
| 入居・引渡期間 | 2026年01月下旬 | 現況 | - |
| 契約備考 | 月額(環境維持費 550円) 鍵交換費用:16500 室内清掃費用:41800 その他設備/条件:室内洗濯機置き場 | ||
部屋の情報
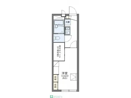
| 間取り | 1K | 専有面積 | 22.35m2 |
|---|---|---|---|
| 所在階 / 向き | 2階 / - | バルコニー面積 | - |
| 水道 / ガス | - | ||
| 設備 | バス・トイレ別、テレビドアホン、宅配ボックス、光ファイバー対応、エアコン、温水洗浄便座、コンロ:電気 | ||
| 当社物件ID | 4063493 | ||
建物の情報
| 建物名 | レオパレスコスモ | ||
|---|---|---|---|
| 所在地 | 東京都青梅市河辺町7丁目 | ||
| 交通 | 青梅線 小作駅 徒歩13分 | ||
| 階数 | 2階建 | 総戸数 | 12戸 |
| 築年月 | 2005年10月 / 築21年 | エレベーター | - |
| 駐車場 | 空有 1.1万円/月 | バイク置き場 | - |
| 駐輪場 | - | 管理人/管理会社 | - |
| 周辺環境 | その他 ドラッグストア その他 公園 その他 銀行 その他 * | ||
| 建物種別 | アパート | 建物構造 | 軽量鉄骨造 |
この部屋の取扱い不動産会社
| 会社名 | ハウスコム西東京株式会社 立川南口店 | ||
|---|---|---|---|
| 所在地 | 東京都立川市6-1立川Nビル1階 | 交通 | - |
| 営業時間 | 10:00~18:00 | 定休日 | - |
| 免許番号 | 東京都知事(1)第108225号 | 取引態様 | 仲介 |
| 不動産会社管理番号 | HC5-81292-202-0075 | 当社管理番号 | 468 |
| 所属団体 | 、 | ||
| 取扱い物件情報 | 物件詳細へ | ||
※各種情報と現状に差異がある場合は、現状優先となります。問い合わせをすることで、より詳しい条件、情報を確認する事ができます。
提供:ハウスコム西東京株式会社 立川南口店
この物件が気になったら掲載期限まであと5日
レオパレスコスモに条件(家賃・エリア)が近い物件一覧
| 写真 | 家賃 管理費等 | 敷金 礼金 | 間取り 専有面積 | 築年数 | 最寄り駅 所在地 | キープ | 詳細 |
|---|---|---|---|---|---|---|---|
アパート イーストビレッジ(2DK/2階) | |||||||
![]() | 5.5万円 4,000円 | なし なし | 2DK 52.99m2 | 築19年 | 五日市線 武蔵五日市駅 徒歩19分 東京都西多摩郡日の出町大字大久野 | 詳細を見る | |
アパート ハイライト(2LDK/3階) | |||||||
![]() | 9.45万円 3,300円 | なし 9.45万円 | 2LDK 58.13m2 | 新築 | 青梅線 河辺駅 徒歩26分 東京都青梅市今寺4丁目 | 詳細を見る | |
アパート MELDIA東青梅(1K/1階) | |||||||
![]() | 6万円 3,000円 | なし なし | 1K 24.29m2 | 新築 | JR青梅線 東青梅駅 徒歩4分 JR青梅線 青梅駅 徒歩15分 JR青梅線 河辺駅 徒歩22分 東京都青梅市勝沼 | 詳細を見る | |
アパート JR八高線 箱根ケ崎駅 徒歩18分 新築(ワンルーム/1階) | |||||||
![]() | 6万円 4,000円 | 6万円 6万円 | ワンルーム 28.7m2 | 新築 | JR八高線 箱根ケ崎駅 徒歩18分 JR青梅線 羽村駅 徒歩32分 JR八高線 東福生駅 徒歩32分 東京都西多摩郡瑞穂町南平 | 詳細を見る | |
アパート ラ・ステラ(1K/1階) | |||||||
![]() | 7.45万円 4,100円 | なし 7.45万円 | 1K 27.02m2 | 築2年 | 青梅線 小作駅 徒歩11分 青梅線 羽村駅 徒歩24分 青梅線 河辺駅 徒歩34分 東京都羽村市栄町2丁目 | 詳細を見る | |
アパート メゾン・アヴニールⅠ(2DK/1階) | |||||||
![]() | 5.7万円 3,900円 | なし なし | 2DK 44.67m2 | 築20年 | 五日市線 東秋留駅 徒歩15分 東京都あきる野市平沢 | 詳細を見る | |
アパート アルドーレ(1LDK/1階) | |||||||
![]() | 7.25万円 3,300円 | なし 7.25万円 | 1LDK 36.29m2 | 新築 | 八高線 箱根ケ崎駅 徒歩19分 東京都西多摩郡瑞穂町南平2丁目 | 詳細を見る | |
アパート グランディール羽村(1LDK/1階) | |||||||
![]() | 7.4万円 3,000円 | なし なし | 1LDK 31.26m2 | 新築 | 青梅線 羽村駅 徒歩10分 青梅線 福生駅 徒歩26分 八高線 東福生駅 徒歩30分 東京都羽村市神明台1丁目 | 詳細を見る | |

/105x80-f1-q70-wp1)





/105x80-f1-q70-wp1)
