賃貸マンション
向島ニュータウンの賃貸物件情報(4DK/2階)
| 家賃 | 管理費等 | 敷金 | 礼金 | 間取り | 専有面積 |
|---|---|---|---|---|---|
| 6.3万円 | 8,000円 | なし | 6.3万円 | 4DK | 64.51m2 |
入居決定でお祝い金最大100,000円
Point
分譲リースです。 分譲マンションです 近鉄向島駅まで徒歩4分の分譲賃貸マンションです。
提供:株式会社 京都ライフ 丹波橋店(賃貸スモッカ経由)

詳細情報 向島ニュータウン
物件紹介
向島ニュータウンは近鉄京都線向島駅から徒歩4分にあり、駅近で通勤通学に便利なマンションです。
このお部屋は2階以上に位置しているので、通行人や周囲の住人からの視線が気になりにくく、防犯面でも安心です。
人気の南向きのお部屋。バス・トイレ別の仕様で、のんびりお風呂タイムも楽しめます。
通信設備面では、インターネット接続が可能です。また、BSアンテナ・CSアンテナもありますので、おうち時間も充実するでしょう(別途工事、契約料が必要な場合あり)。
建物にはエレベーターがついているので、重い荷物があっても安心。
このお部屋は2階以上に位置しているので、通行人や周囲の住人からの視線が気になりにくく、防犯面でも安心です。
人気の南向きのお部屋。バス・トイレ別の仕様で、のんびりお風呂タイムも楽しめます。
通信設備面では、インターネット接続が可能です。また、BSアンテナ・CSアンテナもありますので、おうち時間も充実するでしょう(別途工事、契約料が必要な場合あり)。
建物にはエレベーターがついているので、重い荷物があっても安心。
お金・契約の情報
※「-」と表示されているものは、実際は料金が発生するものもございます。詳細はお問い合わせください。
| 家賃 | 6.3万円 | 管理費・共益費 | 8,000円 |
|---|---|---|---|
| 敷金 | なし | 礼金 | 6.3万円 |
| 入居決定でお祝い金最大100,000円 | |||
| 保証金 | - | 償却・敷引 | - |
| 住宅保険料 | 住宅保険料あり | 更新料 | - |
| 契約形態 | - | 契約期間 | 2年 |
| 入居・引渡期間 | 相談 | 現況 | 空室 |
| 契約備考 | 嬉しい3点セパレートなど充実の設備。コンビニ、スーパーなど近くにあって便利ですよ。光ファイバー対応しています。 ファイテック(消火剤):4,950円 アルコール殺菌・消毒:22,000円 暮らし安心サポート:16,500円 更新料:1ヶ月 その他設備/条件:分譲賃貸 | ||
部屋の情報
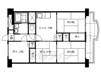
| 間取り | 4DK | 専有面積 | 64.51m2 |
|---|---|---|---|
| 間取り詳細 | 和室(6帖)、和室(6帖)、和室(4.5帖)、洋室(4.5帖)、DK(6.5帖)、和室(6帖)、和室(6帖)、和室(4.5帖)、洋室(4.5帖)、DK(6.5帖) | ||
| 所在階 / 向き | 2階 / 南東 | バルコニー面積 | - |
| 水道 / ガス | ガス【都市】 | ||
| 設備 | バス・トイレ別、2階以上、インターネット対応、エレベーター、南向き、バルコニー、CSアンテナ、BSアンテナ、洗濯機:室内 | ||
| 当社物件ID | 159768792 | ||
建物の情報
| 建物名 | 向島ニュータウン | ||
|---|---|---|---|
| 所在地 | 京都府京都市伏見区向島二ノ丸町 | ||
| 交通 | 近鉄京都線 向島駅 徒歩4分 京阪電気鉄道宇治線 観月橋駅 徒歩20分 | ||
| 階数 | 11階建 | 総戸数 | - |
| 築年月 | 1981年01月 / 築46年 | エレベーター | あり |
| 駐車場 | - | バイク置き場 | - |
| 駐輪場 | あり | 管理人/管理会社 | - |
| 建物種別 | マンション | 建物構造 | RC(鉄筋コンクリート) |
この部屋の取扱い不動産会社
| 会社名 | 株式会社 京都ライフ 伏見桃山店(賃貸スモッカ経由) | ||
|---|---|---|---|
| 所在地 | 京都市伏見区観音寺町215-1 CONNECT桃山2F | 交通 | - |
| 営業時間 | - | 定休日 | - |
| 免許番号 | 京都府知事(11)第6353号 | 取引態様 | 仲介 |
| 不動産会社管理番号 | kyotolife_21723-Dx215 | 当社管理番号 | 463 |
| 所属団体 | 京都府宅地建物取引業協会\n公益社団法人近畿地区不動産公正取引協議会 | ||
| 公正取引協議会 | 全国宅地建物取引業保証協会 | ||
| 取扱い物件情報 | 物件詳細へ | ||
※各種情報と現状に差異がある場合は、現状優先となります。問い合わせをすることで、より詳しい条件、情報を確認する事ができます。
提供:株式会社 京都ライフ 伏見桃山店(賃貸スモッカ経由)
この物件が気になったら掲載期限まであと6日
向島ニュータウンに条件(家賃・エリア)が近い物件一覧
| 写真 | 家賃 管理費等 | 敷金 礼金 | 間取り 専有面積 | 築年数 | 最寄り駅 所在地 | キープ | 詳細 |
|---|---|---|---|---|---|---|---|
一戸建て 山陰本線 馬堀駅 徒歩18分 築52年(4SLDK) | |||||||
![]() | 6.5万円 なし | 15万円 なし | 4SLDK 115.95m2 | 築52年 | 山陰本線 馬堀駅 徒歩18分 山陰本線 亀岡駅 徒歩43分 京都府亀岡市篠町篠八幡裏 | 詳細を見る | |
マンション リヴラン・ジェイ(3DK/3階) | |||||||
![]() | 9.3万円 4,000円 | 9.3万円 9.3万円 | 3DK 61.18m2 | 築30年 | 阪急京都線 洛西口駅 徒歩11分 JR東海道本線 桂川駅(京都) 徒歩17分 阪急京都線 東向日駅 徒歩20分 京都府向日市物集女町ヲサン田 | 詳細を見る | |
マンション 奈良線 六地蔵駅(JR) 徒歩3分 築11年(1K/4階) | |||||||
![]() | 7.3万円 6,500円 | 6万円 15万円 | 1K 29.52m2 | 築11年 | 奈良線 六地蔵駅(JR) 徒歩3分 京都市東西線 六地蔵駅(京都市営) 徒歩4分 京都府宇治市六地蔵 | 詳細を見る | |
アパート 奈良線 桃山駅 徒歩5分 築36年(2K/1階) | |||||||
![]() | 4.5万円 2,000円 | なし 4.5万円 | 2K 31.5m2 | 築36年 | 奈良線 桃山駅 徒歩5分 京阪電気鉄道宇治線 観月橋駅 徒歩10分 京都府京都市伏見区桃山町泰長老 | 詳細を見る | |
マンション ブルースカイマンション(ワンルーム/3階) | |||||||
![]() | 5.35万円 なし | なし なし | ワンルーム 17.72m2 | 築34年 | 東海道本線 長岡京駅 徒歩5分 阪急電鉄京都線 長岡天神駅 徒歩9分 京都府長岡京市一里塚 | 詳細を見る | |
マンション グリーンヒルトミタ(2LDK/2階) | |||||||
![]() | 7.2万円 8,000円 | なし 7.2万円 | 2LDK 50.22m2 | 築31年 | 阪急京都線 東向日駅 徒歩15分 阪急京都線 洛西口駅 徒歩15分 JR東海道本線 向日町駅 徒歩21分 京都府向日市物集女町出口 | 詳細を見る | |
マンション 奈良線 宇治駅(JR) 徒歩2分 築38年(1K/4階) | |||||||
![]() | 4.3万円 4,000円 | なし なし | 1K 18.2m2 | 築38年 | 奈良線 宇治駅(JR) 徒歩2分 京阪電気鉄道宇治線 宇治駅(京阪) 徒歩11分 京都府宇治市宇治宇文 | 詳細を見る | |
アパート 京阪電気鉄道京阪線 中書島駅 徒歩30分 新築(1LDK/1階) | |||||||
![]() | 9.4万円 5,500円 | なし 9.4万円 | 1LDK 41.97m2 | 新築 | 京阪電気鉄道京阪線 中書島駅 徒歩30分 京阪電気鉄道京阪線 伏見桃山駅 徒歩32分 京都府京都市伏見区下鳥羽中円面田町 | 詳細を見る | |









