賃貸アパート
斎藤アパートの賃貸物件情報(2DK/2階)
| 家賃 | 管理費等 | 敷金 | 礼金 | 間取り | 専有面積 |
|---|---|---|---|---|---|
| 7万円 | なし | 7万円 | なし | 2DK | 29.81m2 |
入居決定でお祝い金最大100,000円
- 保証金
- -
- 償却・敷引
- -
- 築年数
- 築42年
- 所在階
- 2階
- 向き
- -
Point
《創業30年・東急沿線中心に10店舗・宅建保有率80%超》経験×エリア×スキルが強みの不動産会社です!【未公開情報多数】【初期費用分割払い可能】様々な角度からご提案致します★お気軽にお問合せください★
提供:Balleggs (株)バレッグス自由が丘支店(SUUMO経由)

詳細情報 斎藤アパート
物件紹介
斎藤アパートは東急田園都市線用賀駅から徒歩12分にあるアパートです。
このお部屋は2階以上に位置しているので、通行人や周囲の住人からの視線が気になりにくく、防犯面でも安心です。
人気の南向きのお部屋。角部屋でもあるため、周囲の居住者の生活音も気になりにくい場所です。バス・トイレ別の仕様で、のんびりお風呂タイムも楽しめます。
このお部屋は2階以上に位置しているので、通行人や周囲の住人からの視線が気になりにくく、防犯面でも安心です。
人気の南向きのお部屋。角部屋でもあるため、周囲の居住者の生活音も気になりにくい場所です。バス・トイレ別の仕様で、のんびりお風呂タイムも楽しめます。
お金・契約の情報
※「-」と表示されているものは、実際は料金が発生するものもございます。詳細はお問い合わせください。
| 家賃 | 7万円 | 管理費・共益費 | なし |
|---|---|---|---|
| 敷金 | 7万円 | 礼金 | なし |
| 入居決定でお祝い金最大100,000円 | |||
| 保証金 | - | 償却・敷引 | - |
| 住宅保険料 | - | 更新料 | - |
| 保証会社利用 | 必須 | 保証会社名 | - |
| 保証会社費用 | - | 保証会社備考 | 保証会社利用必 初回:月額総賃料の50%年間保証料:10,000円 |
| 契約形態 | - | 契約期間 | - |
| 入居・引渡期間 | 即時 | 現況 | - |
| 契約備考 | 《地域創業30年・東急沿線中心に10店舗・宅建保有率80%超》経験×エリア×スキルが強みの不動産会社です!【未公開情報多数】初期費用の分割払いも相談可能です!様々な角度からご提案いたします。★お気軽にお問合せください★※掲載情報は画像含め現況優先 合計2.2万円(内訳:鍵交換代22000円) 2DK 二人入居可 普通借家2年 損保【2万円2年】 バストイレ別、クロゼット、室内洗濯置、2口コンロ、即入居可、礼金不要、敷金1ヶ月、2沿線利用可、保証金不要、3駅以上利用可、都市ガス、IT重説対応物件 | ||
部屋の情報
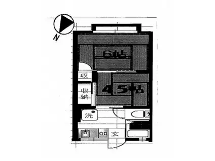
| 間取り | 2DK | 専有面積 | 29.81m2 |
|---|---|---|---|
| 所在階 / 向き | 2階 / - | バルコニー面積 | - |
| 水道 / ガス | - | ||
| 設備 | バス・トイレ別、2階以上、2口コンロ、洗濯機:室内 | ||
| 当社物件ID | 160435589 | ||
建物の情報
| 建物名 | 斎藤アパート | ||
|---|---|---|---|
| 所在地 | 東京都世田谷区上用賀 | ||
| 交通 | 東急田園都市線 用賀駅 徒歩12分 東急田園都市線 桜新町駅 徒歩20分 小田急線 千歳船橋駅 徒歩29分 | ||
| 階数 | 2階建 | 総戸数 | - |
| 築年月 | 1985年01月 / 築42年 | エレベーター | - |
| 駐車場 | なし | バイク置き場 | - |
| 駐輪場 | - | 管理人/管理会社 | - |
| 周辺環境 | その他 用賀駅(その他)まで960m | ||
| 建物種別 | アパート | 建物構造 | 軽量鉄骨造 |
この部屋の取扱い不動産会社
| 会社名 | Balleggs (株)バレッグス自由が丘支店(SUUMO経由) | ||
|---|---|---|---|
| 所在地 | 東京都目黒区自由が丘1-8-23 栗山ビル2階 | 交通 | - |
| 営業時間 | 10時~18時(電話受付は12時~13時以外) | 定休日 | 火曜日、水曜日 |
| 免許番号 | 東京都知事62730 | 取引態様 | 仲介 |
| 不動産会社管理番号 | 100489372982 | 当社管理番号 | 89 |
| 所属団体 | (公社)東京都宅地建物取引業協会会員 | ||
| 公正取引協議会 | (公社)首都圏不動産公正取引協議会加盟 | ||
| 取扱い物件情報 | 物件詳細へ | ||
※各種情報と現状に差異がある場合は、現状優先となります。問い合わせをすることで、より詳しい条件、情報を確認する事ができます。
提供:Balleggs (株)バレッグス自由が丘支店(SUUMO経由)
この物件が気になったら掲載期限まであと11日
斎藤アパートに条件(家賃・エリア)が近い物件一覧
| 写真 | 家賃 管理費等 | 敷金 礼金 | 間取り 専有面積 | 築年数 | 最寄り駅 所在地 | キープ | 詳細 |
|---|---|---|---|---|---|---|---|
マンション レジデンス望(1K/3階) | |||||||
![]() | 7.1万円 2,000円 | 7.1万円 7.1万円 | 1K 19.83m2 | 築27年 | 京急本線 大森町駅 徒歩8分 京急本線 平和島駅 徒歩11分 東京モノレール 昭和島駅 徒歩22分 東京都大田区大森東 | 詳細を見る | |
アパート SEED SAVE PETIRASU BREEZE(1LDK/3階) | |||||||
![]() | 10.7万円 1万円 | 21.4万円 10.7万円 | 1LDK 30.55m2 | 築1年 | 東京モノレール羽田 昭和島駅 徒歩12分 京浜急行電鉄本線 大森町駅 徒歩18分 東京都大田区大森東5丁目 | 詳細を見る | |
マンション ラトレールエスポワール(1K/3階) | |||||||
![]() | 9.1万円 3,000円 | 9.1万円 9.1万円 | 1K 26.97m2 | 築23年 | 東急多摩川線 下丸子駅 徒歩4分 東急多摩川線 武蔵新田駅 徒歩14分 東京都大田区下丸子3丁目 | 詳細を見る | |
アパート SEED SAVE PETIRASU(1K/1階) | |||||||
![]() | 7.9万円 1万円 | 15.8万円 なし | 1K 21.83m2 | 築2年 | 京急本線 梅屋敷駅(東京) 徒歩16分 京急本線 大森町駅 徒歩16分 東京都大田区大森東 | 詳細を見る | |
マンション コンフォート山王(1K/3階) | |||||||
![]() | 9.1万円 2,000円 | 9.1万円 なし | 1K 22.3m2 | 築23年 | JR京浜東北線 大森駅(東京) 徒歩4分 京急本線 大森海岸駅 徒歩16分 JR横須賀線 西大井駅 徒歩22分 東京都大田区山王 | 詳細を見る | |
マンション SEED JUST B-BASE COAST(1LDK/4階) | |||||||
![]() | 8.8万円 1.5万円 | 8.8万円 8.8万円 | 1LDK 23.07m2 | 築1年 | 東京モノレール羽田 昭和島駅 徒歩11分 京浜急行電鉄本線 梅屋敷駅(東京) 徒歩19分 東京都大田区大森南4丁目 | 詳細を見る | |
マンション TSK蒲田フラワーマンション(1LDK/8階) | |||||||
![]() | 11.2万円 8,000円 | 11.2万円 11.2万円 | 1LDK 41m2 | 築47年 | 京浜東北・根岸線 蒲田駅 徒歩12分 京浜急行電鉄本線 梅屋敷駅(東京) 徒歩12分 東京都大田区蒲田1丁目 | 詳細を見る | |








