賃貸マンション
JP NOIE 恵比寿西の賃貸物件情報(1LDK/5階)
| 家賃 | 管理費等 | 敷金 | 礼金 | 間取り | 専有面積 |
|---|---|---|---|---|---|
| 47万円 | なし | 47万円 | 47万円 | 1LDK | 68.92m2 |
入居決定でお祝い金最大100,000円
- 保証金
- -
- 償却・敷引
- -
- 築年数
- 築7年
- 所在階
- 5階
- 向き
- -
Point
★カウンターキッチン・3口ガスコンロ★バス・トイレ別★独立洗面台★温水洗浄便座★エアコン★フローリング★モニタ付インターホン★バイク置場★そらうみリアルエステートへお気軽にお問い合わせください!★
提供:そらうみリアルエステート(株)賃貸事業本部(SUUMO経由)

詳細情報 JP NOIE 恵比寿西
物件紹介
JP NOIE 恵比寿西は東急東横線代官山駅から徒歩3分にあり、駅近で通勤通学に便利なマンションです。
このお部屋は2階以上に位置しているので通行人や周囲の住人からの視線が気になりにくく、建物のエントランスはオートロックがついているので防犯性が高くなっています。
フローリングのお部屋なのでお掃除もラクラク。室内には人気のウォークインクローゼットがありますので、たくさんの荷物も効率的に収納ができます。キッチンはシステムキッチン仕様になっていますので、お料理好きの方にもぴったり。バス・トイレは別なので、のんびりお風呂タイムも楽しめるでしょう。また、雨の日でも浴室乾燥機を使えば、お洗濯も問題ありません。
建物にはエレベーターがついているので、重い荷物があっても安心。共用部には宅配ボックスが設定されているので、不在の時にも荷物を受け取ることができます。
このお部屋は2階以上に位置しているので通行人や周囲の住人からの視線が気になりにくく、建物のエントランスはオートロックがついているので防犯性が高くなっています。
フローリングのお部屋なのでお掃除もラクラク。室内には人気のウォークインクローゼットがありますので、たくさんの荷物も効率的に収納ができます。キッチンはシステムキッチン仕様になっていますので、お料理好きの方にもぴったり。バス・トイレは別なので、のんびりお風呂タイムも楽しめるでしょう。また、雨の日でも浴室乾燥機を使えば、お洗濯も問題ありません。
建物にはエレベーターがついているので、重い荷物があっても安心。共用部には宅配ボックスが設定されているので、不在の時にも荷物を受け取ることができます。
お金・契約の情報
※「-」と表示されているものは、実際は料金が発生するものもございます。詳細はお問い合わせください。
| 家賃 | 47万円 | 管理費・共益費 | なし |
|---|---|---|---|
| 敷金 | 47万円 | 礼金 | 47万円 |
| 入居決定でお祝い金最大100,000円 | |||
| 保証金 | - | 償却・敷引 | - |
| 住宅保険料 | - | 更新料 | - |
| 保証会社利用 | 必須 | 保証会社名 | - |
| 保証会社費用 | - | 保証会社備考 | 保証会社利用必 初回保証料:賃料等の50%・詳細はお問い合わせください |
| 契約形態 | 定期借家 | 契約期間 | 2年 |
| 入居・引渡期間 | 即時 | 現況 | - |
| 契約備考 | 合計3.3万円(内訳:鍵交換代33000円) 退去時清掃費71720円 エアコン清掃費38500円 1LDK 単身者可 定期借家2年 損保【1.66万円2年】 バストイレ別、バルコニー、エアコン、ガスコンロ対応、クロゼット、フローリング、浴室乾燥機、オートロック、システムキッチン、追焚機能浴室、温水洗浄便座、エレベーター、洗面所独立、駐輪場、宅配ボックス、3口以上コンロ、対面式キッチン、オートバス、ウォークインクロゼット、敷金1ヶ月、バイク置場、LDK15畳以上、ディンプルキー、ダブルロックキー、2駅利用可、3沿線以上利用可、駅徒歩5分以内、シューズWIC、礼金1ヶ月、保証会社利用可 | ||
部屋の情報
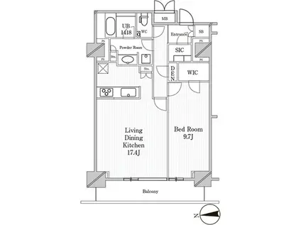
| 間取り | 1LDK | 専有面積 | 68.92m2 |
|---|---|---|---|
| 所在階 / 向き | 5階 / - | バルコニー面積 | - |
| 水道 / ガス | - | ||
| 設備 | バス・トイレ別、2階以上、オートロック、宅配ボックス、浴室乾燥機、ウォークインクローゼット、追い焚き、システムキッチン、エアコン、エレベーター、温水洗浄便座、バルコニー、フローリング、洗髪洗面化粧台、2口コンロ、コンロ:ガス | ||
| 当社物件ID | 34959552 | ||
建物の情報
| 建物名 | JP NOIE 恵比寿西 | ||
|---|---|---|---|
| 所在地 | 東京都渋谷区恵比寿西 | ||
| 交通 | 東急東横線 代官山駅 徒歩3分 JR山手線 恵比寿駅 徒歩7分 東京メトロ日比谷線 恵比寿駅 徒歩8分 | ||
| 階数 | 8階建 | 総戸数 | 51戸 |
| 築年月 | 2019年11月 / 築7年 | エレベーター | あり |
| 駐車場 | なし | バイク置き場 | あり |
| 駐輪場 | あり | 管理人/管理会社 | - |
| 周辺環境 | その他 ピーコックストア代官山店(スーパー)まで460m その他 ファミリーマート恵比寿南三丁目店(コンビニ)まで155m その他 ウエルシア代官山ディセ店(ドラッグストア)まで350m | ||
| 建物種別 | マンション | 建物構造 | RC(鉄筋コンクリート) |
この部屋の取扱い不動産会社
| 会社名 | そらうみリアルエステート(株)賃貸事業本部(SUUMO経由) | ||
|---|---|---|---|
| 所在地 | 東京都港区麻布十番1-11-16 SHビル1階 | 交通 | - |
| 営業時間 | 午前9時30分~午後9時30分 | 定休日 | 無休 |
| 免許番号 | 東京都知事94395 | 取引態様 | 仲介 |
| 不動産会社管理番号 | 100467298891 | 当社管理番号 | 89 |
| 所属団体 | (公社)東京都宅地建物取引業協会会員 | ||
| 公正取引協議会 | (公社)首都圏不動産公正取引協議会加盟 | ||
| 取扱い物件情報 | 物件詳細へ | ||
※各種情報と現状に差異がある場合は、現状優先となります。問い合わせをすることで、より詳しい条件、情報を確認する事ができます。
提供:そらうみリアルエステート(株)賃貸事業本部(SUUMO経由)
この物件が気になったら掲載期限まであと4日
JP NOIE 恵比寿西に条件(家賃・エリア)が近い物件一覧
| 写真 | 家賃 管理費等 | 敷金 礼金 | 間取り 専有面積 | 築年数 | 最寄り駅 所在地 | キープ | 詳細 |
|---|---|---|---|---|---|---|---|
マンション パークアクシス白金台(1LDK/8階) | |||||||
![]() | 32万円 なし | 32万円 32万円 | 1LDK 51.23m2 | 築21年 | 東京メトロ南北線 白金台駅 徒歩4分 JR山手線 目黒駅 徒歩9分 東京メトロ南北線 目黒駅 徒歩9分 東京都港区白金台 | 詳細を見る | |
マンション グランハイツ池尻(2LDK/6階) | |||||||
![]() | 40万円 1.5万円 | 40万円 60万円 | 2LDK 80.48m2 | 築23年 | 京王井の頭線 駒場東大前駅 徒歩9分 京王井の頭線 池ノ上駅 徒歩13分 東急田園都市線 池尻大橋駅 徒歩14分 東京都世田谷区池尻 | 詳細を見る | |
マンション ドゥーエ早稲田(2LDK/2階) | |||||||
![]() | 45万円 1.5万円 | 45万円 45万円 | 2LDK 79.02m2 | 築6年 | 東京メトロ東西線 早稲田駅(メトロ) 徒歩6分 東京メトロ副都心線 西早稲田駅 徒歩9分 都電荒川線 早稲田駅(都電) 徒歩9分 東京都新宿区西早稲田 | 詳細を見る | |
マンション グランパセオ代々木上原(3LDK/2階) | |||||||
![]() | 37万円 1.5万円 | なし なし | 3LDK 62.03m2 | 築1年 | 小田急線 代々木上原駅 徒歩8分 京王新線 幡ケ谷駅 徒歩10分 小田急線 代々木八幡駅 徒歩16分 東京都渋谷区西原 | 詳細を見る | |
マンション ロイヤル白金ガーデン(3LDK/1階) | |||||||
![]() | 36万円 2万円 | 36万円 36万円 | 3LDK 82.27m2 | 築48年 | 東京メトロ南北線 白金高輪駅 徒歩6分 都営三田線 白金高輪駅 徒歩6分 東京メトロ南北線 白金台駅 徒歩8分 東京都港区白金 | 詳細を見る | |
マンション ディアナコート池田山公園(2LDK/2階) | |||||||
![]() | 44.9万円 2万円 | なし 44.9万円 | 2LDK 80.06m2 | 築4年 | 東京メトロ南北線 白金台駅 徒歩8分 JR山手線 五反田駅 徒歩11分 JR山手線 目黒駅 徒歩13分 東京都品川区上大崎 | 詳細を見る | |
マンション レジディアタワー目黒不動前(1LDK/22階) | |||||||
![]() | 28.5万円 2万円 | 28.5万円 28.5万円 | 1LDK 49.26m2 | 築20年 | 東急池上線 大崎広小路駅 徒歩7分 JR山手線 五反田駅 徒歩8分 東急目黒線 不動前駅 徒歩8分 東京都品川区西五反田 | 詳細を見る | |
マンション サンセリテ南麻布(1LDK/3階) | |||||||
![]() | 36.5万円 1.5万円 | なし なし | 1LDK 50m2 | 築5年 | 東京メトロ南北線 白金高輪駅 徒歩8分 都営大江戸線 麻布十番駅 徒歩13分 東京メトロ南北線 麻布十番駅 徒歩13分 東京都港区南麻布 | 詳細を見る | |









