賃貸アパート
JACK HAKUSUIIの賃貸物件情報(1LDK/3階)
| 家賃 | 管理費等 | 敷金 | 礼金 | 間取り | 専有面積 |
|---|---|---|---|---|---|
| 6.7万円 | 3,500円 | なし | 6.7万円 | 1LDK | 35.1m2 |
入居決定でお祝い金最大100,000円
- 保証金
- -
- 償却・敷引
- -
- 築年数
- 新築
- 所在階
- 3階
- 向き
- 南
Point
インターネット使用料不要なので面倒な手続き不要です◎設備充実なのではじめてのお引越しや転勤者にもオススメ。LINE・メール・お電話でやり取り可能!お部屋探しはスタイルエステート西支店にお任せください
提供:スタイルエステート西支店(株)エムホームエステート(SUUMO経由)

詳細情報 JACK HAKUSUII
物件紹介
JACK HAKUSUIIは名鉄常滑線大同町駅から徒歩6分にあり、駅近で通勤通学に便利なアパートです。
このお部屋は2階以上に位置しているので、通行人や周囲の住人からの視線が気になりにくく、防犯面でも安心。建物のエントランスはオートロックがついており、インターホンにはTVモニタもついているため、相手の顔を確認してから来客対応することができます。
おしゃれなデザイナーズ物件!人気の南向きのお部屋。キッチンはシステムキッチン仕様になっていますので、お料理好きの方にもぴったり。バス・トイレは別なので、のんびりお風呂タイムも楽しめるでしょう。また、雨の日でも浴室乾燥機を使えば、お洗濯も問題ありません。
通信設備面では、インターネットが無料で使えるので、月々の出費を抑えられるのも魅力です(別途工事等が必要な場合あり)。
共用部には宅配ボックスが設定されているので、不在の時にも荷物を受け取ることができます。
このお部屋は2階以上に位置しているので、通行人や周囲の住人からの視線が気になりにくく、防犯面でも安心。建物のエントランスはオートロックがついており、インターホンにはTVモニタもついているため、相手の顔を確認してから来客対応することができます。
おしゃれなデザイナーズ物件!人気の南向きのお部屋。キッチンはシステムキッチン仕様になっていますので、お料理好きの方にもぴったり。バス・トイレは別なので、のんびりお風呂タイムも楽しめるでしょう。また、雨の日でも浴室乾燥機を使えば、お洗濯も問題ありません。
通信設備面では、インターネットが無料で使えるので、月々の出費を抑えられるのも魅力です(別途工事等が必要な場合あり)。
共用部には宅配ボックスが設定されているので、不在の時にも荷物を受け取ることができます。
お金・契約の情報
※「-」と表示されているものは、実際は料金が発生するものもございます。詳細はお問い合わせください。
| 家賃 | 6.7万円 | 管理費・共益費 | 3,500円 |
|---|---|---|---|
| 敷金 | なし | 礼金 | 6.7万円 |
| 入居決定でお祝い金最大100,000円 | |||
| 保証金 | - | 償却・敷引 | - |
| 住宅保険料 | - | 更新料 | - |
| 契約形態 | - | 契約期間 | - |
| 入居・引渡期間 | - | 現況 | - |
| 契約備考 | 巡回管理/見学から契約までご来店不要でご対応可能です♪駐車場の空き状況は別途お問い合わせ下さい。 1LDK 単身者可/二人入居可 普通借家2年 損保【要】 バストイレ別、バルコニー、エアコン、ガスコンロ対応、クロゼット、シャワー付洗面台、TVインターホン、浴室乾燥機、オートロック、室内洗濯置、シューズボックス、システムキッチン、南向き、追焚機能浴室、温水洗浄便座、脱衣所、洗面所独立、洗面化粧台、2口コンロ、宅配ボックス、最上階、敷金不要、防犯カメラ、保証人不要、デザイナーズ、ネット使用料不要、築2年以内、24時間換気システム、南面リビング、未入居、3駅以上利用可、駅徒歩10分以内、上階無し、プロパンガス、洗面所にドア、南面バルコニー、礼金1ヶ月、IT重説対応物件、初期費用カード決済可 入居日:'26年6月下旬 | ||
部屋の情報
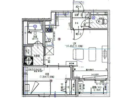
| 間取り | 1LDK | 専有面積 | 35.1m2 |
|---|---|---|---|
| 所在階 / 向き | 3階 / 南 | バルコニー面積 | - |
| 水道 / ガス | - | ||
| 設備 | バス・トイレ別、2階以上、オートロック、テレビドアホン、宅配ボックス、浴室乾燥機、追い焚き、インターネット対応、システムキッチン、エアコン、温水洗浄便座、南向き、バルコニー、洗髪洗面化粧台、2口コンロ、コンロ:ガス、デザイナーズ、インターネット使用料無料、洗濯機:室内 | ||
| 当社物件ID | 160495122 | ||
建物の情報
| 建物名 | JACK HAKUSUII | ||
|---|---|---|---|
| 所在地 | 愛知県名古屋市南区白水町 | ||
| 交通 | 名鉄常滑線 大同町駅 徒歩6分 名鉄常滑線 柴田駅 徒歩10分 名鉄常滑線 名和駅(愛知) 徒歩30分 | ||
| 階数 | 3階建 | 総戸数 | 9戸 |
| 築年月 | 2026年06月 / 新築 | エレベーター | - |
| 駐車場 | 空有 9900円 | バイク置き場 | - |
| 駐輪場 | - | 管理人/管理会社 | - |
| 周辺環境 | その他 ピアゴ ラ フーズコア 柴田店(スーパー)まで406m その他 ローソンストア100 LS柴田本通店(コンビニ)まで397m その他 ファミリーマート 名南白水店(コンビニ)まで201m その他 ウエルシア 名古屋大同店(ドラッグストア)まで607m その他 名古屋大同郵便局(郵便局)まで403m その他 だいどうクリニック(病院)まで280m | ||
| 建物種別 | アパート | 建物構造 | 木造 |
この部屋の取扱い不動産会社
| 会社名 | スタイルエステート西支店(株)エムホームエステート(SUUMO経由) | ||
|---|---|---|---|
| 所在地 | 愛知県名古屋市中川区高畑1-235 | 交通 | - |
| 営業時間 | 10:00~19:00 | 定休日 | - |
| 免許番号 | 愛知県知事22094 | 取引態様 | 仲介 |
| 不動産会社管理番号 | 100491204330 | 当社管理番号 | 89 |
| 所属団体 | (公社)愛知県宅地建物取引業協会会員 | ||
| 公正取引協議会 | 東海不動産公正取引協議会加盟 | ||
| 取扱い物件情報 | 物件詳細へ | ||
※各種情報と現状に差異がある場合は、現状優先となります。問い合わせをすることで、より詳しい条件、情報を確認する事ができます。
提供:スタイルエステート西支店(株)エムホームエステート(SUUMO経由)
この物件が気になったら掲載期限まであと10日
JACK HAKUSUIIに条件(家賃・エリア)が近い物件一覧
| 写真 | 家賃 管理費等 | 敷金 礼金 | 間取り 専有面積 | 築年数 | 最寄り駅 所在地 | キープ | 詳細 |
|---|---|---|---|---|---|---|---|
アパート AQUA源兵衛町(1K/1階) | |||||||
![]() | 4.2万円 3,000円 | なし 8.4万円 | 1K 22.5m2 | 築10年 | 名鉄常滑線 柴田駅 徒歩8分 名鉄常滑線 大同町駅 徒歩19分 名鉄常滑線 名和駅(愛知) 徒歩23分 愛知県名古屋市南区源兵衛町 | 詳細を見る | |
アパート エスポワール光(1K/1階) | |||||||
![]() | 4.4万円 3,000円 | なし なし | 1K 23.94m2 | 築33年 | 名鉄常滑線 名和駅(愛知) 徒歩6分 名鉄常滑線 柴田駅 徒歩18分 名鉄常滑線 大同町駅 徒歩30分 愛知県東海市名和町 | 詳細を見る | |
アパート レオパレスパステル錦(1K/1階) | |||||||
![]() | 5.5万円 5,000円 | なし 5.5万円 | 1K 23.18m2 | 築19年 | 名鉄名古屋本線 豊明駅 徒歩31分 名鉄名古屋本線 前後駅 徒歩38分 名鉄名古屋本線 富士松駅 徒歩48分 愛知県豊明市新田町錦 | 詳細を見る | |
マンション ウィング青山(1K/4階) | |||||||
![]() | 5.5万円 5,500円 | 5.5万円 5.5万円 | 1K 30m2 | 築31年 | 名鉄小牧線 間内駅 徒歩46分 名鉄小牧線 味美駅(名鉄) 徒歩50分 名鉄小牧線 春日井駅(名鉄) 徒歩56分 愛知県西春日井郡豊山町大字青山東栄 | 詳細を見る | |
アパート クレストコート富木島(2LDK/1階) | |||||||
![]() | 5.7万円 3,000円 | 11.4万円 なし | 2LDK 53.72m2 | 築26年 | 名鉄河和線 太田川駅 徒歩33分 名鉄河和線 高横須賀駅 徒歩41分 名鉄常滑線 新日鉄前駅 徒歩42分 愛知県東海市富木島町勘七脇 | 詳細を見る | |
アパート オンディーヌ(1LDK/1階) | |||||||
![]() | 7.4万円 5,500円 | なし 7.4万円 | 1LDK 40.29m2 | 築16年 | 名鉄常滑線 道徳駅 徒歩17分 JR東海道本線 笠寺駅 徒歩18分 名鉄常滑線 大江駅(愛知) 徒歩19分 愛知県名古屋市南区忠次 | 詳細を見る | |
マンション JR中央本線 勝川駅(JR) 徒歩12分 築53年(1LDK/4階) | |||||||
![]() | 4.2万円 2,200円 | 4.2万円 なし | 1LDK 43.99m2 | 築53年 | JR中央本線 勝川駅(JR) 徒歩12分 ゆとりーとライン 川村駅(愛知) 徒歩28分 ゆとりーとライン 白沢渓谷駅 徒歩30分 愛知県春日井市小野町 | 詳細を見る | |
アパート レオパレスセラヴィ町屋(1K/1階) | |||||||
![]() | 5.6万円 5,000円 | なし 5.6万円 | 1K 23.71m2 | 築21年 | 愛知県春日井市田楽町 | 詳細を見る | |









