賃貸マンション
レオパレス音の賃貸物件情報(1K/2階)
| 家賃 | 管理費等 | 敷金 | 礼金 | 間取り | 専有面積 |
|---|---|---|---|---|---|
| 6.1万円 | 6,500円 | なし | 6.1万円 | 1K | 23.5m2 |
入居決定でお祝い金最大100,000円
Point
まずはお問い合わせ!
不動産会社は街のプロ、あなたに合った物件がきっと見つかります。
提供:琉球ハウスコム株式会社 那覇店

詳細情報 レオパレス音
物件紹介
レオパレス音は沖縄都市モノレール小禄駅から徒歩9分にあり、駅近で通勤通学に便利なマンションです。
このお部屋は2階以上に位置しているので、通行人や周囲の住人からの視線が気になりにくく、防犯面でも安心。インターホンにはTVモニタもついているため、相手の顔を確認してから来客対応することができます。
バス・トイレ別の仕様で、のんびりお風呂タイムも楽しめます。
通信設備面では、インターネット接続が可能です(別途工事、契約料が必要な場合あり)。
コンビニまで徒歩9分の場所にあり、日用品や食料品のお買い物にも便利です。
このお部屋は2階以上に位置しているので、通行人や周囲の住人からの視線が気になりにくく、防犯面でも安心。インターホンにはTVモニタもついているため、相手の顔を確認してから来客対応することができます。
バス・トイレ別の仕様で、のんびりお風呂タイムも楽しめます。
通信設備面では、インターネット接続が可能です(別途工事、契約料が必要な場合あり)。
コンビニまで徒歩9分の場所にあり、日用品や食料品のお買い物にも便利です。
お金・契約の情報
※「-」と表示されているものは、実際は料金が発生するものもございます。詳細はお問い合わせください。
| 家賃 | 6.1万円 | 管理費・共益費 | 6,500円 |
|---|---|---|---|
| 敷金 | なし | 礼金 | 6.1万円 |
| 入居決定でお祝い金最大100,000円 | |||
| 保証金 | - | 償却・敷引 | - |
| 住宅保険料 | 1円 | 更新料 | - |
| その他費用 | 抗菌施工(任意):2.376万円 | ||
| 保証会社利用 | 必須 | 保証会社名 | - |
| 保証会社費用 | - | 保証会社備考 | 保証料:81590円(契約内容により100〜120%で変動有)※記載金額は120%の場合 |
| 契約形態 | - | 契約期間 | - |
| 入居・引渡期間 | 2026年04月下旬 | 現況 | - |
| 契約備考 | 月額(環境維持費 550円) 鍵交換費用:16500 室内清掃費用:41800 その他設備/条件:室内洗濯機置き場 | ||
部屋の情報
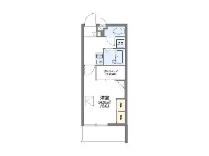
| 間取り | 1K | 専有面積 | 23.5m2 |
|---|---|---|---|
| 所在階 / 向き | 2階 / - | バルコニー面積 | - |
| 水道 / ガス | - | ||
| 設備 | バス・トイレ別、テレビドアホン、光ファイバー対応、エアコン、温水洗浄便座、バルコニー、コンロ:電気 | ||
| 当社物件ID | 9816701 | ||
建物の情報
| 建物名 | レオパレス音 | ||
|---|---|---|---|
| 所在地 | 沖縄県那覇市 | ||
| 交通 | 沖縄都市モノレール 小禄駅 徒歩9分 | ||
| 階数 | 3階建 | 総戸数 | 24戸 |
| 築年月 | 2007年10月 / 築19年 | エレベーター | - |
| 駐車場 | なし | バイク置き場 | - |
| 駐輪場 | - | 管理人/管理会社 | - |
| 周辺環境 | コンビニ 徒歩9分(643m) 販売店 徒歩18分(1399m) その他 ドラッグストア その他 公園 その他 銀行 その他 * | ||
| 建物種別 | マンション | 建物構造 | RC(鉄筋コンクリート) |
この部屋の取扱い不動産会社
| 会社名 | 琉球ハウスコム株式会社 小禄店 | ||
|---|---|---|---|
| 所在地 | 沖縄県那覇市5レールビューパレス1階 | 交通 | - |
| 営業時間 | 10:00~18:00 | 定休日 | - |
| 免許番号 | 沖縄県知事(1)第5498号 | 取引態様 | 仲介 |
| 不動産会社管理番号 | HC5-2010198-208-0202 | 当社管理番号 | 468 |
| 所属団体 | 、 | ||
| 取扱い物件情報 | 物件詳細へ | ||
※各種情報と現状に差異がある場合は、現状優先となります。問い合わせをすることで、より詳しい条件、情報を確認する事ができます。
提供:琉球ハウスコム株式会社 小禄店
この物件が気になったら掲載期限まであと5日
レオパレス音に条件(家賃・エリア)が近い物件一覧
| 写真 | 家賃 管理費等 | 敷金 礼金 | 間取り 専有面積 | 築年数 | 最寄り駅 所在地 | キープ | 詳細 |
|---|---|---|---|---|---|---|---|
マンション サンヒルズ壺屋(1K/3階) | |||||||
![]() | 5万円 2,000円 | なし なし | 1K 24.5m2 | 築23年 | 沖縄都市モノレール 安里駅 徒歩9分 沖縄都市モノレール 牧志駅 徒歩10分 沖縄県那覇市壺屋 | 詳細を見る | |
アパート レオパレス国場ヒルズ(1K/2階) | |||||||
![]() | 5.6万円 6,500円 | なし 5.6万円 | 1K 23.18m2 | 築15年 | 沖縄県那覇市字国場 | 詳細を見る | |
アパート 泊高橋ビル(2DK/3階) | |||||||
![]() | 5.2万円 2,000円 | 5.2万円 なし | 2DK 45.05m2 | 築57年 | 沖縄都市モノレール 美栄橋駅 徒歩12分 沖縄県那覇市泊 | 詳細を見る | |
アパート EASE COURT MAKABI(ワンルーム/2階) | |||||||
![]() | 6万円 5,000円 | なし なし | ワンルーム 20m2 | 築12年 | 沖縄都市モノレール おもろまち駅 徒歩7分 沖縄都市モノレール 安里駅 徒歩13分 沖縄都市モノレール 古島駅 徒歩19分 沖縄県那覇市 | 詳細を見る | |
マンション レオパレスMIYASHIRO(1K/4階) | |||||||
![]() | 5.7万円 6,500円 | なし 5.7万円 | 1K 23.18m2 | 築23年 | 沖縄都市モノレール 壺川駅 徒歩13分 沖縄県那覇市古波蔵2丁目 | 詳細を見る | |
マンション 黄金森ガーデンII(1K/2階) | |||||||
![]() | 7.8万円 8,000円 | なし 7.8万円 | 1K 30.52m2 | 築9年 | 沖縄都市モノレール 美栄橋駅 徒歩16分 沖縄県那覇市 | 詳細を見る | |







