賃貸アパート
ハーミットクラブハウスALESIA子安の賃貸物件情報(ワンルーム/1階)
| 家賃 | 管理費等 | 敷金 | 礼金 | 間取り | 専有面積 |
|---|---|---|---|---|---|
| 6.5万円 | 2,000円 | なし | なし | ワンルーム | 16.58m2 |
入居決定でお祝い金最大100,000円
- 保証金
- -
- 償却・敷引
- -
- 築年数
- 築6年
- 所在階
- 1階
- 向き
- 南東
Point
~ひとと、まちを、もっと豊かに。~お部屋探しはタウンハウジングにお任せ下さい!お引越し等もサポート致します♪内見や募集状況等のお問合せは電話・メールはもちろん、オンライン通話でもそれぞれご対応可能です
提供:(株)タウンハウジング神奈川 大倉山店(SUUMO経由)

詳細情報 ハーミットクラブハウスALESIA子安
物件紹介
ハーミットクラブハウスALESIA子安は京急本線子安駅から徒歩5分にあり、駅近で通勤通学に便利なアパートです。
このお部屋のインターホンにはTVモニタがついているため、相手の顔を確認してから来客対応することができます。
おしゃれなデザイナーズ物件!キッチンはシステムキッチン仕様になっていますので、お料理好きの方にもぴったり。バス・トイレは別なので、のんびりお風呂タイムも楽しめるでしょう。また、雨の日でも浴室乾燥機を使えば、お洗濯も問題ありません。
通信設備面ではCATVに対応しているので、おうち時間も充実するでしょう(別途工事、契約料が必要な場合あり)。
共用部には宅配ボックスが設定されているので、不在の時にも荷物を受け取ることができます。
このお部屋のインターホンにはTVモニタがついているため、相手の顔を確認してから来客対応することができます。
おしゃれなデザイナーズ物件!キッチンはシステムキッチン仕様になっていますので、お料理好きの方にもぴったり。バス・トイレは別なので、のんびりお風呂タイムも楽しめるでしょう。また、雨の日でも浴室乾燥機を使えば、お洗濯も問題ありません。
通信設備面ではCATVに対応しているので、おうち時間も充実するでしょう(別途工事、契約料が必要な場合あり)。
共用部には宅配ボックスが設定されているので、不在の時にも荷物を受け取ることができます。
お金・契約の情報
※「-」と表示されているものは、実際は料金が発生するものもございます。詳細はお問い合わせください。
| 家賃 | 6.5万円 | 管理費・共益費 | 2,000円 |
|---|---|---|---|
| 敷金 | なし | 礼金 | なし |
| 入居決定でお祝い金最大100,000円 | |||
| 保証金 | - | 償却・敷引 | - |
| 住宅保険料 | - | 更新料 | - |
| 保証会社利用 | 必須 | 保証会社名 | - |
| 保証会社費用 | - | 保証会社備考 | 保証会社利用必 賃貸保証料:0.70ヶ月 初回保証料:総賃料70% 更新料:1万円\/年 ※プランにより異なります。 |
| 契約形態 | 定期借家 | 契約期間 | 2年 |
| 入居・引渡期間 | - | 現況 | - |
| 契約備考 | ★他業者様で気になっているお部屋などもまとめてお調べ・ご紹介致します!遠方の方はオンラインでのお部屋探し・ご内見等もご対応可能です!どんな内容でもぜひ1度お気軽にご相談下さいませ★タウンハウジング大倉山店:★ 合計7.15万円(内訳:鍵交換代:16500円/室内清掃費用:38500円/24時間緊急対応:16500円) 更新料新賃料(ヶ月):1.00ヶ月、火災保険料:840円/月 ワンルーム 単身者可 定期借家2年 バストイレ別、エアコン、クロゼット、フローリング、シャワー付洗面台、TVインターホン、浴室乾燥機、室内洗濯置、陽当り良好、シューズボックス、システムキッチン、角住戸、温水洗浄便座、脱衣所、洗面化粧台、2口コンロ、駐輪場、宅配ボックス、CATV、礼金不要、2面採光、敷金不要、IHクッキングヒーター、照明付、ロフト、保証人不要、単身者相談、24時間緊急通報システム、防犯シャッター、デザイナーズ、2沿線利用可、床下収納、ダブルロックキー、保証金不要、24時間換気システム、複層ガラス、浴室未使用、トイレ未使用、2駅利用可、3駅以上利用可、駅徒歩5分以内、駅徒歩10分以内、築5年以内、キッチン未使用、シャッター、室内物干機、玄関収納、敷金・礼金不要、IT重説対応物件、通風良好 入居日:'26年2月中旬 | ||
部屋の情報
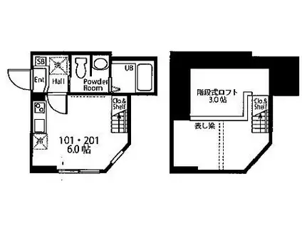
| 間取り | ワンルーム | 専有面積 | 16.58m2 |
|---|---|---|---|
| 所在階 / 向き | 1階 / 南東 | バルコニー面積 | - |
| 水道 / ガス | - | ||
| 設備 | バス・トイレ別、テレビドアホン、宅配ボックス、浴室乾燥機、システムキッチン、エアコン、温水洗浄便座、南向き、角部屋、フローリング、ロフトあり、床下収納、2口コンロ、コンロ:IH、デザイナーズ、CATV、洗濯機:室内 | ||
| 当社物件ID | 152439509 | ||
建物の情報
| 建物名 | ハーミットクラブハウスALESIA子安 | ||
|---|---|---|---|
| 所在地 | 神奈川県横浜市神奈川区七島町 | ||
| 交通 | 京急本線 子安駅 徒歩5分 京急本線 神奈川新町駅 徒歩9分 JR横浜線 大口駅 徒歩11分 | ||
| 階数 | 2階建 | 総戸数 | 6戸 |
| 築年月 | 2020年12月 / 築6年 | エレベーター | - |
| 駐車場 | 近隣 300m22000円 | バイク置き場 | - |
| 駐輪場 | あり | 管理人/管理会社 | - |
| 周辺環境 | その他 ★★そうてつローゼン(スーパー)まで520m その他 ★★セブンイレブン(コンビニ)まで390m その他 MEGAドン・キホーテUNY大口店(その他)まで1240m その他 鷲の湯(その他)まで310m その他 ★★ツルハドラッグ(その他)まで570m その他 ★★神奈川白幡郵便局(その他)まで830m | ||
| 建物種別 | アパート | 建物構造 | 木造 |
この部屋の取扱い不動産会社
| 会社名 | (株)タウンハウジング神奈川 大倉山店(SUUMO経由) | ||
|---|---|---|---|
| 所在地 | 神奈川県横浜市港北区大倉山1-13-16 大倉山第一ビル1-B | 交通 | - |
| 営業時間 | 10:00-19:00※時間外応相談 | 定休日 | 水曜日 |
| 免許番号 | 国土交通大臣9928 | 取引態様 | 仲介 |
| 不動産会社管理番号 | 100480730937 | 当社管理番号 | 89 |
| 所属団体 | (公社)神奈川県宅地建物取引業協会会員 | ||
| 公正取引協議会 | (公社)首都圏不動産公正取引協議会加盟 | ||
| 取扱い物件情報 | 物件詳細へ | ||
※各種情報と現状に差異がある場合は、現状優先となります。問い合わせをすることで、より詳しい条件、情報を確認する事ができます。
提供:(株)タウンハウジング神奈川 大倉山店(SUUMO経由)
この物件が気になったら掲載期限まであと10日
ハーミットクラブハウスALESIA子安に条件(家賃・エリア)が近い物件一覧
| 写真 | 家賃 管理費等 | 敷金 礼金 | 間取り 専有面積 | 築年数 | 最寄り駅 所在地 | キープ | 詳細 |
|---|---|---|---|---|---|---|---|
アパート マ・ピエス多摩美(1K/1階) | |||||||
![]() | 5.3万円 3,000円 | なし 5.3万円 | 1K 14.9m2 | 築10年 | 小田急電鉄小田原線 読売ランド前駅 徒歩7分 小田急電鉄小田原線 百合ケ丘駅 徒歩16分 神奈川県川崎市麻生区多摩美1丁目 | 詳細を見る | |
マンション KSグリーンコスモ(1K/1階) | |||||||
![]() | 6万円 4,000円 | 6万円 なし | 1K 20.15m2 | 築32年 | 東急東横線 白楽駅 徒歩4分 東急東横線 妙蓮寺駅 徒歩11分 東急東横線 東白楽駅 徒歩12分 神奈川県横浜市神奈川区白幡上町 | 詳細を見る | |
アパート ハイツ井筒(1K/2階) | |||||||
![]() | 4万円 なし | 4万円 なし | 1K 19.29m2 | 築31年 | 京急本線 追浜駅 徒歩7分 京急逗子線 六浦駅 徒歩20分 京急本線 金沢八景駅 徒歩26分 神奈川県横須賀市鷹取 | 詳細を見る | |
アパート パークハイツ北鎌倉(1K/1階) | |||||||
![]() | 4.4万円 なし | なし なし | 1K 23.18m2 | 築34年 | JR横須賀線 北鎌倉駅 徒歩12分 湘南モノレール 富士見町駅(神奈川) 徒歩12分 JR東海道本線 大船駅 徒歩20分 神奈川県鎌倉市台 | 詳細を見る | |
アパート レオパレスTSURUMAKI(1K/1階) | |||||||
![]() | 5.8万円 5,500円 | なし 5.8万円 | 1K 19.87m2 | 築22年 | 小田急電鉄小田原線 百合ケ丘駅 徒歩15分 神奈川県川崎市麻生区高石2丁目 | 詳細を見る | |
アパート ソフィア中央林間(1K/2階) | |||||||
![]() | 6.7万円 3,000円 | 6.7万円 6.7万円 | 1K 29.55m2 | 築25年 | 東急田園都市線 中央林間駅 徒歩7分 小田急電鉄江ノ島線 東林間駅 徒歩18分 神奈川県大和市中央林間5丁目 | 詳細を見る | |
アパート ユナイト川崎シープレーリーZ(ワンルーム/1階) | |||||||
![]() | 5.6万円 3,500円 | なし なし | ワンルーム 11.49m2 | 築11年 | 京急大師線 川崎大師駅 徒歩22分 JR鶴見線 昭和駅 徒歩28分 神奈川県川崎市川崎区桜本 | 詳細を見る | |
アパート グランディール OGI(1LDK/2階) | |||||||
![]() | 9.4万円 3,000円 | 9.4万円 9.4万円 | 1LDK 40.78m2 | 築3年 | 京急久里浜線 京急久里浜駅 徒歩8分 JR横須賀線 久里浜駅 徒歩12分 京急久里浜線 YRP野比駅 徒歩38分 神奈川県横須賀市久里浜 | 詳細を見る | |









