賃貸マンション
SRビルの賃貸物件情報(1DK/3階)
| 家賃 | 管理費等 | 敷金 | 礼金 | 間取り | 専有面積 |
|---|---|---|---|---|---|
| 13万円 | なし | 13万円 | 13万円 | 1DK | 37.06m2 |
入居決定でお祝い金最大100,000円
- 保証金
- -
- 償却・敷引
- -
- 築年数
- 築49年
- 所在階
- 3階
- 向き
- 西
Point
丸ノ内線・大江戸線 本郷三丁目駅徒歩5分!使い勝手の良い1DK賃貸マンションです。独立洗面台あり。便利な追い炊き機能付き!2人での入居も相談可能です。
提供:(株)エイコーポレーションメトロ駅前店(SUUMO経由)

詳細情報 SRビル
物件紹介
SRビルは東京メトロ丸ノ内線本郷三丁目駅から徒歩5分にあり、駅近で通勤通学に便利なマンションです。
このお部屋は2階以上に位置しているので、通行人や周囲の住人からの視線が気になりにくく、防犯面でも安心。建物のエントランスはオートロックがついており、インターホンにはTVモニタもついているため、相手の顔を確認してから来客対応することができます。
人気の角部屋で周囲の居住者の生活音も気になりにくく、また、フローリングのお部屋なのでお掃除もラクラク。キッチンはシステムキッチン仕様になっていますので、お料理好きの方にもぴったり。また、バス・トイレは別で、のんびりお風呂タイムも楽しめるでしょう。
通信設備面ではBSアンテナがありますので、おうち時間も充実するでしょう(別途工事、契約料が必要な場合あり)。
このお部屋は2階以上に位置しているので、通行人や周囲の住人からの視線が気になりにくく、防犯面でも安心。建物のエントランスはオートロックがついており、インターホンにはTVモニタもついているため、相手の顔を確認してから来客対応することができます。
人気の角部屋で周囲の居住者の生活音も気になりにくく、また、フローリングのお部屋なのでお掃除もラクラク。キッチンはシステムキッチン仕様になっていますので、お料理好きの方にもぴったり。また、バス・トイレは別で、のんびりお風呂タイムも楽しめるでしょう。
通信設備面ではBSアンテナがありますので、おうち時間も充実するでしょう(別途工事、契約料が必要な場合あり)。
お金・契約の情報
※「-」と表示されているものは、実際は料金が発生するものもございます。詳細はお問い合わせください。
| 家賃 | 13万円 | 管理費・共益費 | なし |
|---|---|---|---|
| 敷金 | 13万円 | 礼金 | 13万円 |
| 入居決定でお祝い金最大100,000円 | |||
| 保証金 | - | 償却・敷引 | - |
| 住宅保険料 | - | 更新料 | - |
| 保証会社利用 | 必須 | 保証会社名 | 日本セーフティー |
| 保証会社費用 | - | 保証会社備考 | 日本セーフティー利用必 契約時 月額賃料等合計の50% 2年目以降 年額1.2万円 |
| 契約形態 | - | 契約期間 | - |
| 入居・引渡期間 | 相談 | 現況 | - |
| 契約備考 | 1DK 損保【要】 バストイレ別、バルコニー、エアコン、ガスコンロ対応、クロゼット、フローリング、TVインターホン、オートロック、室内洗濯置、シューズボックス、システムキッチン、追焚機能浴室、角住戸、温水洗浄便座、脱衣所、洗面所独立、2口コンロ、南西角住戸、全居室フローリング、3面採光、エアコン2台、敷地内ごみ置き場、BS | ||
部屋の情報
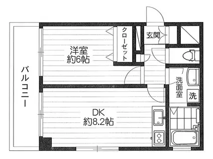
| 間取り | 1DK | 専有面積 | 37.06m2 |
|---|---|---|---|
| 所在階 / 向き | 3階 / 西 | バルコニー面積 | - |
| 水道 / ガス | - | ||
| 設備 | バス・トイレ別、2階以上、オートロック、テレビドアホン、追い焚き、システムキッチン、エアコン、温水洗浄便座、角部屋、バルコニー、フローリング、洗髪洗面化粧台、2口コンロ、コンロ:ガス、BSアンテナ、洗濯機:室内 | ||
| 当社物件ID | 45384639 | ||
建物の情報
| 建物名 | SRビル | ||
|---|---|---|---|
| 所在地 | 東京都文京区本郷 | ||
| 交通 | 東京メトロ丸ノ内線 本郷三丁目駅 徒歩5分 都営三田線 春日駅(東京) 徒歩6分 東京メトロ丸ノ内線 後楽園駅 徒歩7分 | ||
| 階数 | 地下1地上5階建 | 総戸数 | - |
| 築年月 | 1977年03月 / 築49年 | エレベーター | - |
| 駐車場 | なし | バイク置き場 | - |
| 駐輪場 | - | 管理人/管理会社 | - |
| 周辺環境 | その他 マルエツプチ本郷二丁目店(スーパー)まで495m その他 まいばすけっと本郷2丁目店(スーパー)まで561m その他 セブンイレブン文京真砂坂上店(コンビニ)まで196m その他 ローソン本郷一丁目春日通店(コンビニ)まで200m その他 くすりの福太郎本郷店(ドラッグストア)まで435m その他 本郷四郵便局(郵便局)まで283m | ||
| 建物種別 | マンション | 建物構造 | RC(鉄筋コンクリート) |
この部屋の取扱い不動産会社
| 会社名 | (株)エイコーポレーションメトロ駅前店(SUUMO経由) | ||
|---|---|---|---|
| 所在地 | 東京都文京区本郷2-39―5 | 交通 | - |
| 営業時間 | 9:00~19:00 | 定休日 | 年中無休 |
| 免許番号 | 東京都知事60349 | 取引態様 | 仲介 |
| 不動産会社管理番号 | 100491715230 | 当社管理番号 | 89 |
| 所属団体 | (公社)東京都宅地建物取引業協会会員 | ||
| 公正取引協議会 | (公社)首都圏不動産公正取引協議会加盟 | ||
| 取扱い物件情報 | 物件詳細へ | ||
※各種情報と現状に差異がある場合は、現状優先となります。問い合わせをすることで、より詳しい条件、情報を確認する事ができます。
提供:(株)エイコーポレーションメトロ駅前店(SUUMO経由)
この物件が気になったら掲載期限まであと10日
SRビルに条件(家賃・エリア)が近い物件一覧
| 写真 | 家賃 管理費等 | 敷金 礼金 | 間取り 専有面積 | 築年数 | 最寄り駅 所在地 | キープ | 詳細 |
|---|---|---|---|---|---|---|---|
マンション クラリティア文京湯島(1DK/10階) | |||||||
![]() | 16.5万円 1.5万円 | 16.5万円 なし | 1DK 25.06m2 | 築1年 | 東京メトロ千代田線 湯島駅 徒歩5分 東京メトロ銀座線 末広町駅(東京) 徒歩7分 JR中央線 御茶ノ水駅 徒歩9分 東京都文京区湯島 | 詳細を見る | |
アパート 椎名町レジデンス(1DK/2階) | |||||||
![]() | 9万円 5,000円 | 9万円 9万円 | 1DK 30m2 | 築1年 | 西武池袋線 椎名町駅 徒歩2分 東京メトロ副都心線 要町駅 徒歩11分 東京メトロ有楽町線 池袋駅 徒歩19分 東京都豊島区長崎 | 詳細を見る | |
マンション ラヴィエント南千住V(1K/11階) | |||||||
![]() | 10.6万円 1万円 | なし なし | 1K 25.42m2 | 築8年 | JR常磐線 南千住駅 徒歩9分 東京メトロ日比谷線 三ノ輪駅 徒歩11分 京成本線 千住大橋駅 徒歩11分 東京都荒川区南千住 | 詳細を見る | |
マンション シンシア新宿落合(1K/6階) | |||||||
![]() | 8万円 1万円 | 8万円 8万円 | 1K 20.01m2 | 築24年 | 西武新宿線 下落合駅(東京) 徒歩5分 都営大江戸線 中井駅 徒歩7分 東京メトロ東西線 落合駅 徒歩10分 東京都新宿区上落合 | 詳細を見る | |
アパート スカイノッツ北赤羽(1LDK/3階) | |||||||
![]() | 14.75万円 3,900円 | なし 14.75万円 | 1LDK 43.02m2 | 新築 | JR埼京線 浮間舟渡駅 徒歩11分 JR埼京線 北赤羽駅 徒歩15分 都営三田線 志村坂上駅 徒歩29分 東京都北区浮間 | 詳細を見る | |
マンション ドゥーエ王子神谷(1SLDK/5階) | |||||||
![]() | 19万円 1.5万円 | なし なし | 1SLDK 46.58m2 | 新築 | 東京メトロ南北線 王子神谷駅 徒歩15分 JR京浜東北線 王子駅 徒歩21分 都電荒川線 荒川車庫前駅 徒歩27分 東京都北区豊島 | 詳細を見る | |
マンション クレイシア新宿中落合(1K/8階) | |||||||
![]() | 9.95万円 1.5万円 | 9.95万円 9.95万円 | 1K 25.61m2 | 築6年 | 西武新宿線 下落合駅(東京) 徒歩9分 西武池袋線 椎名町駅 徒歩9分 都営大江戸線 落合南長崎駅 徒歩11分 東京都新宿区中落合 | 詳細を見る | |
マンション ALTERNA東池袋(2K/7階) | |||||||
![]() | 15.3万円 1万円 | なし なし | 2K 25.74m2 | 築4年 | 都電荒川線 都電雑司ケ谷駅 徒歩4分 東京メトロ有楽町線 東池袋駅 徒歩5分 都電荒川線 東池袋四丁目駅 徒歩7分 東京都豊島区南池袋 | 詳細を見る | |









