賃貸マンション
RELUXIA本所吾妻橋Ⅲの賃貸物件情報(ワンルーム/2階)
| 家賃 | 管理費等 | 敷金 | 礼金 | 間取り | 専有面積 |
|---|---|---|---|---|---|
| 13万円 | 1万円 | なし | 13万円 | ワンルーム | 26.92m2 |
入居決定でお祝い金最大100,000円
Point
☆お部屋探しはアパマンショップ直営店にお任せください☆
提供:アパマンショップ東陽町店

詳細情報 RELUXIA本所吾妻橋Ⅲ
物件紹介
RELUXIA本所吾妻橋Ⅲは東京都浅草線本所吾妻橋駅から徒歩4分にあり、駅近で通勤通学に便利なマンションです。
このお部屋は2階以上に位置しているので、通行人や周囲の住人からの視線が気になりにくく、防犯面でも安心。建物のエントランスはオートロックがついており、インターホンにはTVモニタもついているため、相手の顔を確認してから来客対応することができます。
フローリングのお部屋なのでお掃除もラクラク。キッチンはシステムキッチン仕様になっていますので、お料理好きの方にもぴったり。バス・トイレは別なので、のんびりお風呂タイムも楽しめるでしょう。また、雨の日でも浴室乾燥機を使えば、お洗濯も問題ありません。
通信設備面では、インターネットが無料で使えるので、月々の出費を抑えられるのも魅力です。また、BSアンテナ・CSアンテナもありますので、おうち時間も充実するでしょう(別途工事、BS・CSの契約料等が必要な場合あり)。
建物にはエレベーターがついているので、重い荷物があっても安心。共用部には宅配ボックスが設定されているので、不在の時にも荷物を受け取ることができます。また、ペット飼育の相談ができますので、あなたの大切な家族の一員も快適に暮らせるか、ぜひ確認してみてください。
このお部屋は2階以上に位置しているので、通行人や周囲の住人からの視線が気になりにくく、防犯面でも安心。建物のエントランスはオートロックがついており、インターホンにはTVモニタもついているため、相手の顔を確認してから来客対応することができます。
フローリングのお部屋なのでお掃除もラクラク。キッチンはシステムキッチン仕様になっていますので、お料理好きの方にもぴったり。バス・トイレは別なので、のんびりお風呂タイムも楽しめるでしょう。また、雨の日でも浴室乾燥機を使えば、お洗濯も問題ありません。
通信設備面では、インターネットが無料で使えるので、月々の出費を抑えられるのも魅力です。また、BSアンテナ・CSアンテナもありますので、おうち時間も充実するでしょう(別途工事、BS・CSの契約料等が必要な場合あり)。
建物にはエレベーターがついているので、重い荷物があっても安心。共用部には宅配ボックスが設定されているので、不在の時にも荷物を受け取ることができます。また、ペット飼育の相談ができますので、あなたの大切な家族の一員も快適に暮らせるか、ぜひ確認してみてください。
お金・契約の情報
※「-」と表示されているものは、実際は料金が発生するものもございます。詳細はお問い合わせください。
| 家賃 | 13万円 | 管理費・共益費 | 1万円 |
|---|---|---|---|
| 敷金 | なし | 礼金 | 13万円 |
| 入居決定でお祝い金最大100,000円 | |||
| 保証金 | - | 償却・敷引 | - |
| 住宅保険料 | 2万円(2年) | 更新料 | - |
| 保証会社利用 | 必須 | 保証会社名 | クレディセゾン |
| 保証会社費用 | - | 保証会社備考 | 初回保証料:総賃料の50%〜 更新保証料:10000円/年 |
| 契約形態 | - | 契約期間 | 2年 |
| 入居・引渡期間 | 2026年02月上旬 | 現況 | - |
| 入居可能条件 | ペット可 | ||
| 契約備考 | 解約予告2ヶ月前/ペット可(成長時体長50㎝、体重10キロ以内の犬・猫1匹まで):飼育時敷金1ヶ月追加・償却/退去時クリーニング・エアコン栗ニング費用借主負担 安心入居サポート (課税対象) 18700円/顔認証登録費用 7700円 | ||
部屋の情報
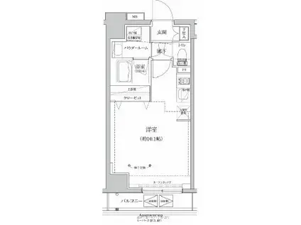
| 間取り | ワンルーム | 専有面積 | 26.92m2 |
|---|---|---|---|
| 所在階 / 向き | 2階 / 東 | バルコニー面積 | - |
| 水道 / ガス | - | ||
| 設備 | バス・トイレ別、オートロック、テレビドアホン、宅配ボックス、浴室乾燥機、インターネット対応、システムキッチン、エレベーター、温水洗浄便座、バルコニー、フローリング、コンロ:ガス、CSアンテナ、BSアンテナ、インターネット使用料無料、シャワー、給湯、洗濯機:室内 | ||
| 当社物件ID | 160045561 | ||
建物の情報
| 建物名 | RELUXIA本所吾妻橋Ⅲ | ||
|---|---|---|---|
| 所在地 | 東京都墨田区東駒形3丁目 | ||
| 交通 | 東京都浅草線 本所吾妻橋駅 徒歩5分 | ||
| 階数 | 12階建 | 総戸数 | - |
| 築年月 | 2026年01月 / 築1年 | エレベーター | あり |
| 駐車場 | - | バイク置き場 | - |
| 駐輪場 | あり | 管理人/管理会社 | - |
| 周辺環境 | 幼稚園 光の園保育学校 徒歩3分(172m) その他 マルエツプチ本所四丁目店 徒歩1分(58m) その他 セブン-イレブン 墨田本所3丁目店 徒歩4分(301m) その他 ミニストップ 徒歩5分(322m) その他 ローソンストア100 徒歩6分(472m) その他 ローソン 徒歩6分(478m) その他 本所吾妻橋駅前郵便局 徒歩6分(406m) その他 セブンイレブン 徒歩7分(536m) | ||
| 建物種別 | マンション | 建物構造 | RC(鉄筋コンクリート) |
この部屋の取扱い不動産会社
| 会社名 | アパマンショップ押上店 | ||
|---|---|---|---|
| 所在地 | 東京都墨田区押上1丁目 23−11階 | 交通 | 京成電鉄押上線押上から徒歩2分 |
| 営業時間 | 09:30〜19:30 | 定休日 | - |
| 免許番号 | 国土交通大臣(1)10927 | 取引態様 | 仲介 |
| 不動産会社管理番号 | 1002074964 | 当社管理番号 | 4 |
| 所属団体 | (公社)東京都宅地建物取引業協会 | ||
| 公正取引協議会 | (公社) 首都圏不動産公正取引協議会加盟 | ||
| 取扱い物件情報 | 物件詳細へ | ||
※各種情報と現状に差異がある場合は、現状優先となります。問い合わせをすることで、より詳しい条件、情報を確認する事ができます。
提供:アパマンショップ押上店
この物件が気になったら掲載期限まであと8日
RELUXIA本所吾妻橋Ⅲに条件(家賃・エリア)が近い物件一覧
| 写真 | 家賃 管理費等 | 敷金 礼金 | 間取り 専有面積 | 築年数 | 最寄り駅 所在地 | キープ | 詳細 |
|---|---|---|---|---|---|---|---|
マンション あやめガーデン(2K/12階) | |||||||
![]() | 17.5万円 1万円 | 17.5万円 17.5万円 | 2K 42.26m2 | 築12年 | 東京メトロ日比谷線 築地駅 徒歩1分 東京メトロ有楽町線 新富町駅(東京) 徒歩6分 東京メトロ日比谷線 東銀座駅 徒歩6分 東京都中央区築地 | 詳細を見る | |
マンション レガスタ錦糸町(1K/3階) | |||||||
![]() | 9.7万円 8,000円 | なし なし | 1K 27.6m2 | 築19年 | 総武・中央緩行線 錦糸町駅 徒歩10分 東京都大江戸線 両国駅 徒歩12分 東京都新宿線 菊川駅(東京) 徒歩15分 東京都墨田区亀沢4丁目 | 詳細を見る | |
マンション GENOVIA本所吾妻橋SKYGARDEN(1LDK/4階) | |||||||
![]() | 17.3万円 2万円 | なし なし | 1LDK 41.27m2 | 築5年 | 東京都浅草線 本所吾妻橋駅 徒歩10分 東京都大江戸線 両国駅 徒歩12分 東京地下鉄銀座線 浅草駅(東武・都営・メトロ) 徒歩15分 東京都墨田区石原3丁目 | 詳細を見る | |
マンション メイクスデザイン茅場町(1K/6階) | |||||||
![]() | 12万円 1.5万円 | 12万円 12万円 | 1K 29.29m2 | 築19年 | 東京地下鉄日比谷線 茅場町駅 徒歩7分 東京地下鉄東西線 茅場町駅 徒歩7分 京葉線 八丁堀駅(東京) 徒歩8分 東京都中央区新川1丁目 | 詳細を見る | |
一戸建て 東京都新宿線 大島駅(東京) 徒歩7分 築77年(1DK) | |||||||
![]() | 15.8万円 1万円 | 15.8万円 15.8万円 | 1DK 27.91m2 | 築77年 | 東京都新宿線 大島駅(東京) 徒歩7分 東京都新宿線 西大島駅 徒歩7分 総武・中央緩行線 亀戸駅 徒歩11分 東京都江東区大島3丁目 | 詳細を見る | |
マンション プレール・ドゥーク銀座イースト 6階(1K/6階) | |||||||
![]() | 10万円 1万円 | なし 10万円 | 1K 23.35m2 | 築22年 | 東京メトロ有楽町線 新富町駅(東京) 徒歩6分 JR京葉線 八丁堀駅(東京) 徒歩11分 東京メトロ日比谷線 八丁堀駅(東京) 徒歩11分 東京都中央区湊 | 詳細を見る | |
アパート SOREVE大島(1K/3階) | |||||||
![]() | 8.1万円 3,000円 | 8.1万円 8.1万円 | 1K 18.03m2 | 築9年 | 都営新宿線 東大島駅 徒歩6分 都営新宿線 大島駅(東京) 徒歩8分 都営新宿線 西大島駅 徒歩20分 東京都江東区大島 | 詳細を見る | |
マンション パティーナ本所吾妻橋(1LDK/4階) | |||||||
![]() | 18.1万円 1.5万円 | なし なし | 1LDK 40.47m2 | 築11年 | 東京都浅草線 本所吾妻橋駅 徒歩6分 京成電鉄押上線 押上駅 徒歩10分 東京都墨田区東駒形4丁目 | 詳細を見る | |








