賃貸マンション
シティタワー麻布十番の賃貸物件情報(2LDK/12階)
| 家賃 | 管理費等 | 敷金 | 礼金 | 間取り | 専有面積 |
|---|---|---|---|---|---|
| 70万円 | なし | 70万円 | 70万円 | 2LDK | 75.18m2 |
入居決定でお祝い金最大100,000円
- 保証金
- -
- 償却・敷引
- -
- 築年数
- 築17年
- 所在階
- 12階
- 向き
- 南西
Point
都心部の物件情報は随時流動しています。ハイクラス物件を中心とした専門のプロフェッショナルエージェントが、迅速かつ的確なご提案から諸条件交渉や細部に至るニーズまで、お客様の「住」の価値の最大化に努めます
提供:(株)Lim estate(SUUMO経由)

詳細情報 シティタワー麻布十番
物件紹介
シティタワー麻布十番は東京メトロ南北線麻布十番駅から徒歩4分にあり、駅近で通勤通学に便利なマンションです。
このお部屋は2階以上に位置しているので、通行人や周囲の住人からの視線が気になりにくく、防犯面でも安心。建物のエントランスはオートロックがついており、インターホンにはTVモニタもついているため、相手の顔を確認してから来客対応することができます。
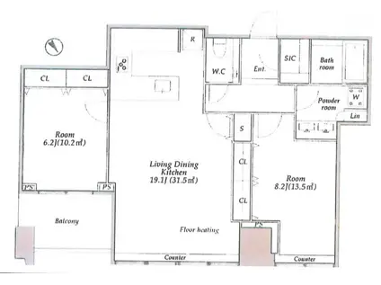
人気の南向き・フローリングのお部屋。室内にはウォークインクローゼットがありますので、たくさんの荷物も効率的に収納ができます。キッチンはシステムキッチン仕様になっていますので、お料理好きの方にもぴったり。バス・トイレは別なので、のんびりお風呂タイムも楽しめるでしょう。また、雨の日でも浴室乾燥機を使えば、お洗濯も問題ありません。
通信設備面では、インターネット接続が可能です。また、BSアンテナ・CSアンテナがありCATVにも対応しているので、おうち時間も充実するでしょう(別途工事、契約料が必要な場合あり)。
床暖房があり、冬も足元から暖かく快適に過ごすことができます。建物にはエレベーターがついているので、重い荷物があっても安心。共用部には宅配ボックスが設定されているので、不在の時にも荷物を受け取ることができます。また、ペット飼育の相談ができますので、あなたの大切な家族の一員も快適に暮らせるか、ぜひ確認してみてください。
このお部屋は2階以上に位置しているので、通行人や周囲の住人からの視線が気になりにくく、防犯面でも安心。建物のエントランスはオートロックがついており、インターホンにはTVモニタもついているため、相手の顔を確認してから来客対応することができます。
人気の南向き・フローリングのお部屋。室内にはウォークインクローゼットがありますので、たくさんの荷物も効率的に収納ができます。キッチンはシステムキッチン仕様になっていますので、お料理好きの方にもぴったり。バス・トイレは別なので、のんびりお風呂タイムも楽しめるでしょう。また、雨の日でも浴室乾燥機を使えば、お洗濯も問題ありません。
通信設備面では、インターネット接続が可能です。また、BSアンテナ・CSアンテナがありCATVにも対応しているので、おうち時間も充実するでしょう(別途工事、契約料が必要な場合あり)。
床暖房があり、冬も足元から暖かく快適に過ごすことができます。建物にはエレベーターがついているので、重い荷物があっても安心。共用部には宅配ボックスが設定されているので、不在の時にも荷物を受け取ることができます。また、ペット飼育の相談ができますので、あなたの大切な家族の一員も快適に暮らせるか、ぜひ確認してみてください。
お金・契約の情報
※「-」と表示されているものは、実際は料金が発生するものもございます。詳細はお問い合わせください。
| 家賃 | 70万円 | 管理費・共益費 | なし |
|---|---|---|---|
| 敷金 | 70万円 | 礼金 | 70万円 |
| 入居決定でお祝い金最大100,000円 | |||
| 保証金 | - | 償却・敷引 | - |
| 住宅保険料 | - | 更新料 | - |
| 保証会社利用 | 必須 | 保証会社名 | - |
| 保証会社費用 | - | 保証会社備考 | 保証会社利用必 賃料管理費の50% |
| 契約形態 | 定期借家 | 契約期間 | 3年 |
| 入居・引渡期間 | 即時 | 現況 | - |
| 入居可能条件 | ペット相談 | ||
| 契約備考 | 常駐管理 合計3.85万円(内訳:鍵交換医費用:22,000円、24時間サポート:16,500円(2年)) 2LDK 二人入居可/子供可/ペット相談 定期借家3年 損保【2.45万円2年】 バストイレ別、バルコニー、エアコン、クロゼット、TVインターホン、浴室乾燥機、オートロック、室内洗濯置、陽当り良好、シューズボックス、システムキッチン、追焚機能浴室、温水洗浄便座、エレベーター、洗面所独立、駐輪場、宅配ボックス、CATV、即入居可、BS・CS、3口以上コンロ、防犯カメラ、ペット相談、24時間有人管理、分譲賃貸、オートバス、グリル付、ウォークインクロゼット、保証人不要、二人入居相談、バイク置場、24時間緊急通報システム、LDK15畳以上、ディンプルキー、床暖房、眺望良好、ダブルロックキー、24時間換気システム、L字型キッチン、フロントサービス、南面リビング、エレベーター2基、耐震構造、南面3室、3駅以上利用可、3沿線以上利用可、駅徒歩5分以内、タワー型マンション、集会所、ゲストルーム、24時間ゴミ出し可、敷地内ごみ置き場、南西向き、全室南西向き、LDK12畳以上、都市ガス、南面バルコニー、シューズWIC、保証会社利用可、初期費用カード決済可 敷金積み増し【ペット飼育の場合敷金2ヶ月(総額)】 | ||
部屋の情報
| 間取り | 2LDK | 専有面積 | 75.18m2 |
|---|---|---|---|
| 所在階 / 向き | 12階 / 南西 | バルコニー面積 | - |
| 水道 / ガス | - | ||
| 設備 | バス・トイレ別、2階以上、オートロック、テレビドアホン、宅配ボックス、浴室乾燥機、ウォークインクローゼット、追い焚き、システムキッチン、エアコン、エレベーター、温水洗浄便座、南向き、バルコニー、洗髪洗面化粧台、タワーマンション、床暖房、2口コンロ、CATV、CSアンテナ、BSアンテナ、洗濯機:室内 | ||
| 当社物件ID | 160564448 | ||
建物の情報
| 建物名 | シティタワー麻布十番 | ||
|---|---|---|---|
| 所在地 | 東京都港区三田 | ||
| 交通 | 東京メトロ南北線 麻布十番駅 徒歩4分 都営大江戸線 赤羽橋駅 徒歩8分 都営三田線 芝公園駅 徒歩15分 | ||
| 階数 | 地下2地上38階建 | 総戸数 | 502戸 |
| 築年月 | 2009年06月 / 築17年 | エレベーター | あり |
| 駐車場 | 空有 36000円 | バイク置き場 | あり |
| 駐輪場 | あり | 管理人/管理会社 | - |
| 周辺環境 | その他 日進ワールドデリカテッセン(スーパー)まで478m その他 成城石井東麻布店(スーパー)まで405m その他 ドラッグストアスマイル麻布店(ドラッグストア)まで472m その他 タリーズコーヒー住友不動産麻布十番ビル店(飲食店)まで263m その他 三田国際ビル内郵便局(郵便局)まで776m その他 ファミリーマート三田一丁目店(コンビニ)まで283m | ||
| 建物種別 | マンション | 建物構造 | RC(鉄筋コンクリート) |
この部屋の取扱い不動産会社
| 会社名 | (株)T-BRIDGE(SUUMO経由) | ||
|---|---|---|---|
| 所在地 | 東京都渋谷区渋谷2-19-15 MIYAMASUZAKABUILDING2階 | 交通 | - |
| 営業時間 | 9:00~21:00 | 定休日 | 年中無休 |
| 免許番号 | 東京都知事104461 | 取引態様 | 仲介 |
| 不動産会社管理番号 | 100493890119 | 当社管理番号 | 89 |
| 所属団体 | (公社)全日本不動産協会東京都本部会員 | ||
| 公正取引協議会 | (公社)首都圏不動産公正取引協議会加盟 | ||
| 取扱い物件情報 | 物件詳細へ | ||
※各種情報と現状に差異がある場合は、現状優先となります。問い合わせをすることで、より詳しい条件、情報を確認する事ができます。
提供:(株)T-BRIDGE(SUUMO経由)
この物件が気になったら掲載期限まであと11日
シティタワー麻布十番に条件(家賃・エリア)が近い物件一覧
| 写真 | 家賃 管理費等 | 敷金 礼金 | 間取り 専有面積 | 築年数 | 最寄り駅 所在地 | キープ | 詳細 |
|---|---|---|---|---|---|---|---|
マンション 東京ツインパークスライトウイング(2LDK/30階) | |||||||
![]() | 68万円 なし | 136万円 68万円 | 2LDK 100.37m2 | 築24年 | 都営大江戸線 汐留駅 徒歩3分 JR山手線 浜松町駅 徒歩8分 JR京浜東北線 浜松町駅 徒歩8分 東京都港区東新橋 | 詳細を見る | |
マンション 三田ガーデンヒルズ イーストヒル(2SLDK/13階) | |||||||
![]() | 110万円 なし | 110万円 110万円 | 2SLDK 85.04m2 | 築2年 | 東京メトロ南北線 麻布十番駅 徒歩5分 都営大江戸線 赤羽橋駅 徒歩6分 都営三田線 芝公園駅 徒歩10分 東京都港区三田 | 詳細を見る | |
マンション THE TOWERS DAIBA イースト(3SLDK/4階) | |||||||
![]() | 76.25万円 なし | 76.25万円 76.25万円 | 3SLDK 100.83m2 | 築20年 | 新交通ゆりかもめ お台場海浜公園駅 徒歩3分 りんかい線 東京テレポート駅 徒歩5分 新交通ゆりかもめ 台場駅 徒歩13分 東京都港区台場 | 詳細を見る | |
マンション THE TOKYO TOWERS MIDTOWER(3LDK/21階) | |||||||
![]() | 44.1万円 2万円 | 88.2万円 44.1万円 | 3LDK 89.69m2 | 築19年 | 東京都大江戸線 勝どき駅 徒歩7分 東京都中央区勝どき6丁目 | 詳細を見る | |
マンション クレストプライムタワー芝(2LDK/16階) | |||||||
![]() | 43.3万円 なし | 43.3万円 86.6万円 | 2LDK 74.37m2 | 築19年 | JR山手線 浜松町駅 徒歩6分 都営大江戸線 大門駅(東京) 徒歩6分 新交通ゆりかもめ 日の出駅 徒歩10分 東京都港区芝 | 詳細を見る | |
マンション マンションニュー恵比寿(2LDK/5階) | |||||||
![]() | 45万円 1.5万円 | 90万円 45万円 | 2LDK 80.96m2 | 築58年 | JR山手線 恵比寿駅 徒歩3分 JR埼京線 恵比寿駅 徒歩3分 東京メトロ日比谷線 恵比寿駅 徒歩5分 東京都渋谷区恵比寿 | 詳細を見る | |
マンション ドゥーエ早稲田(2LDK/2階) | |||||||
![]() | 45万円 1.5万円 | 45万円 45万円 | 2LDK 79.02m2 | 築6年 | 東京地下鉄東西線 早稲田駅(メトロ) 徒歩6分 東京都新宿区西早稲田2丁目 | 詳細を見る | |







/105x80-f1-q70-wp1)