賃貸マンション
スプランディット梅田ウエストの賃貸物件情報(2LDK/13階)
| 家賃 | 管理費等 | 敷金 | 礼金 | 間取り | 専有面積 |
|---|---|---|---|---|---|
| 20.9万円 | 1.2万円 | なし | 20.9万円 | 2LDK | 50.74m2 |
入居決定でお祝い金最大100,000円
- 保証金
- -
- 償却・敷引
- -
- 築年数
- 新築
- 所在階
- 13階
- 向き
- 東
Point
セキュリティ面は、TVインターホン・オートロックなど充実しているので、防犯対策もばっちりです。「スプランディット梅田WEST」の物件情報をお探しならお気軽にお問い合わせ下さい。
提供:(株)エーポジション谷町店(SUUMO経由)

詳細情報 スプランディット梅田ウエスト
物件紹介
スプランディット梅田ウエストはJR大阪環状線福島駅から徒歩10分にあり、駅近で通勤通学に便利なマンションです。
このお部屋は2階以上に位置しているので、通行人や周囲の住人からの視線が気になりにくく、防犯面でも安心。建物のエントランスはオートロックがついており、インターホンにはTVモニタもついているため、相手の顔を確認してから来客対応することができます。
フローリングのお部屋なのでお掃除もラクラク。室内には人気のウォークインクローゼットがありますので、たくさんの荷物も効率的に収納ができます。キッチンはシステムキッチン仕様になっていますので、お料理好きの方にもぴったり。バス・トイレは別なので、のんびりお風呂タイムも楽しめるでしょう。また、雨の日でも浴室乾燥機を使えば、お洗濯も問題ありません。
通信設備面では、インターネットが無料で使えるので、月々の出費を抑えられるのも魅力です。また、BSアンテナ・CSアンテナがありCATVにも対応しているので、おうち時間も充実するでしょう(別途工事、BS・CS・CATVの契約料等が必要な場合あり)。
建物にはエレベーターがついているので、重い荷物があっても安心。共用部には宅配ボックスが設定されているので、不在の時にも荷物を受け取ることができます。また、ペット飼育の相談ができますので、あなたの大切な家族の一員も快適に暮らせるか、ぜひ確認してみてください。
このお部屋は2階以上に位置しているので、通行人や周囲の住人からの視線が気になりにくく、防犯面でも安心。建物のエントランスはオートロックがついており、インターホンにはTVモニタもついているため、相手の顔を確認してから来客対応することができます。
フローリングのお部屋なのでお掃除もラクラク。室内には人気のウォークインクローゼットがありますので、たくさんの荷物も効率的に収納ができます。キッチンはシステムキッチン仕様になっていますので、お料理好きの方にもぴったり。バス・トイレは別なので、のんびりお風呂タイムも楽しめるでしょう。また、雨の日でも浴室乾燥機を使えば、お洗濯も問題ありません。
通信設備面では、インターネットが無料で使えるので、月々の出費を抑えられるのも魅力です。また、BSアンテナ・CSアンテナがありCATVにも対応しているので、おうち時間も充実するでしょう(別途工事、BS・CS・CATVの契約料等が必要な場合あり)。
建物にはエレベーターがついているので、重い荷物があっても安心。共用部には宅配ボックスが設定されているので、不在の時にも荷物を受け取ることができます。また、ペット飼育の相談ができますので、あなたの大切な家族の一員も快適に暮らせるか、ぜひ確認してみてください。
お金・契約の情報
※「-」と表示されているものは、実際は料金が発生するものもございます。詳細はお問い合わせください。
| 家賃 | 20.9万円 | 管理費・共益費 | 1.2万円 |
|---|---|---|---|
| 敷金 | なし | 礼金 | 20.9万円 |
| 入居決定でお祝い金最大100,000円 | |||
| 保証金 | - | 償却・敷引 | - |
| 住宅保険料 | - | 更新料 | - |
| 保証会社利用 | 必須 | 保証会社名 | 全保連 |
| 保証会社費用 | - | 保証会社備考 | 全保連利用必 初回保証料:月額総額60%月額保証料:1700円 |
| 契約形態 | - | 契約期間 | - |
| 入居・引渡期間 | - | 現況 | - |
| 入居可能条件 | ペット相談 | ||
| 契約備考 | 巡回管理/大阪府内全域どこでもお探し可能です。経験豊富なスタッフがご対応させて頂きますので、ご納得行くまでトコトンお探しさせていただきます。お部屋探しについて何でもご相談下さい。尚、引越業者も多数提携しております。お部屋探しはエーポジションへお任せ下さい。 合計2.75万円(内訳:鍵交換代1.1万円アクト安心ライフ241.65万円) バイク置き場 月額4400円 原付置き場 月額2200円 2LDK ペット相談 普通借家2年 損保【2万円2年】 バストイレ別、バルコニー、エアコン、ガスコンロ対応、クロゼット、フローリング、シャワー付洗面台、TVインターホン、浴室乾燥機、オートロック、室内洗濯置、シューズボックス、システムキッチン、温水洗浄便座、脱衣所、エレベーター、洗面所独立、洗面化粧台、駐輪場、宅配ボックス、CATV、光ファイバー、外壁タイル張り、閑静な住宅地、最上階、BS・CS、敷金不要、3口以上コンロ、防犯カメラ、ペット相談、全居室収納、グリル付、全居室洋室、ウォークインクロゼット、CATVインターネット、バイク置場、全居室フローリング、2沿線利用可、ディンプルキー、CS、ネット専用回線、駅まで平坦、ネット使用料不要、ダブルロックキー、築2年以内、バリアフリー、人感照明センサー、2駅利用可、3駅以上利用可、3沿線以上利用可、駅徒歩10分以内、敷地内ごみ置き場、都市ガス、シューズWIC、天井高シューズクロゼット、玄関収納、オートライト、BS、高齢者歓迎、初期費用カード決済可 入居日:'26年8月上旬 | ||
部屋の情報
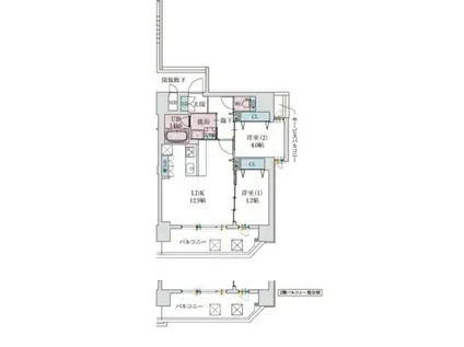
| 間取り | 2LDK | 専有面積 | 50.74m2 |
|---|---|---|---|
| 所在階 / 向き | 13階 / 東 | バルコニー面積 | 5m2 |
| 水道 / ガス | - | ||
| 設備 | バス・トイレ別、2階以上、オートロック、テレビドアホン、宅配ボックス、浴室乾燥機、ウォークインクローゼット、インターネット対応、システムキッチン、エアコン、エレベーター、温水洗浄便座、バルコニー、フローリング、洗髪洗面化粧台、2口コンロ、コンロ:ガス、CATV、CSアンテナ、BSアンテナ、インターネット使用料無料、洗濯機:室内 | ||
| 当社物件ID | 160508141 | ||
建物の情報
| 建物名 | スプランディット梅田ウエスト | ||
|---|---|---|---|
| 所在地 | 大阪府大阪市北区大淀南 | ||
| 交通 | JR大阪環状線 福島駅(阪神) 徒歩10分 阪神本線 福島駅(阪神) 徒歩10分 JR東西線 新福島駅 徒歩15分 | ||
| 階数 | 13階建 | 総戸数 | - |
| 築年月 | 2026年07月 / 新築 | エレベーター | あり |
| 駐車場 | 近隣 150m38500円 | バイク置き場 | あり |
| 駐輪場 | あり | 管理人/管理会社 | - |
| 周辺環境 | その他 大丸・梅田店(その他)まで1629m その他 阪急うめだ本店(その他)まで1978m その他 阪急百貨店メンズ館店(その他)まで2072m その他 マルシゲ 大淀店(スーパー)まで460m その他 グランフロント(ショッピングセンター)まで1456m その他 ドン・キホーテ梅田本店(その他)まで2174m | ||
| 建物種別 | マンション | 建物構造 | RC(鉄筋コンクリート) |
この部屋の取扱い不動産会社
| 会社名 | (株)エーポジション中崎町店(SUUMO経由) | ||
|---|---|---|---|
| 所在地 | 大阪府大阪市北区中崎1-5-21 | 交通 | - |
| 営業時間 | 10:00~19:00 | 定休日 | 年末年始 |
| 免許番号 | 大阪府知事58754 | 取引態様 | 仲介 |
| 不動産会社管理番号 | 100491776310 | 当社管理番号 | 89 |
| 所属団体 | (公社)全日本不動産協会大阪府本部会員 | ||
| 公正取引協議会 | (公社)近畿地区不動産公正取引協議会加盟 | ||
| 取扱い物件情報 | 物件詳細へ | ||
※各種情報と現状に差異がある場合は、現状優先となります。問い合わせをすることで、より詳しい条件、情報を確認する事ができます。
提供:(株)エーポジション中崎町店(SUUMO経由)
この物件が気になったら掲載期限まであと12日
スプランディット梅田ウエストに条件(家賃・エリア)が近い物件一覧
| 写真 | 家賃 管理費等 | 敷金 礼金 | 間取り 専有面積 | 築年数 | 最寄り駅 所在地 | キープ | 詳細 |
|---|---|---|---|---|---|---|---|
アパート 堺市西区鳳西町一丁共同PJ(2LDK/1階) | |||||||
![]() | 13.1万円 8,000円 | なし 25万円 | 2LDK 63m2 | 新築 | 阪和線 鳳駅 徒歩8分 阪和線 富木駅 徒歩15分 阪和線 東羽衣駅 徒歩16分 大阪府堺市西区鳳西町1丁 | 詳細を見る | |
マンション ザ・パークハビオ同心プレイス(1LDK/8階) | |||||||
| 13万円 1.5万円 | なし 13万円 | 1LDK 34.39m2 | 築1年 | 大阪市谷町線 南森町駅 徒歩8分 JR東西線 大阪天満宮駅 徒歩9分 大阪環状線 天満駅 徒歩9分 大阪府大阪市北区同心1丁目8-6 | 詳細を見る | ||
マンション アーバネックス東梅田(2LDK/3階) | |||||||
| 18.2万円 1.3万円 | なし 18.2万円 | 2LDK 44.52m2 | 築1年 | 大阪市谷町線 東梅田駅 徒歩8分 大阪市谷町線 南森町駅 徒歩8分 大阪市堺筋線 南森町駅 徒歩8分 大阪府大阪市北区西天満6丁目6-8 | 詳細を見る | ||
マンション アルテーヌ浜寺元町(2LDK/1階) | |||||||
![]() | 13.3万円 1.2万円 | 2万円 27万円 | 2LDK 67m2 | 築1年 | 南海電鉄南海本線 浜寺公園駅 徒歩12分 南海電鉄南海本線 諏訪ノ森駅 徒歩15分 南海電鉄南海本線 羽衣駅 徒歩19分 大阪府堺市西区浜寺元町3丁 | 詳細を見る | |
マンション 和の杜 江坂(1LDK/1階) | |||||||
![]() | 14.9万円 1.5万円 | 15万円 なし | 1LDK 51.03m2 | 新築 | 大阪市御堂筋線 江坂駅 徒歩9分 阪急電鉄宝塚線 服部天神駅 徒歩27分 阪急電鉄宝塚線 庄内駅(大阪) 徒歩30分 大阪府吹田市豊津町798-1 | 詳細を見る | |
アパート パサログランデ北長尾(2LDK/1階) | |||||||
![]() | 13.2万円 7,000円 | なし 25万円 | 2LDK 60.03m2 | 新築 | 阪和線 堺市駅 徒歩12分 大阪市御堂筋線 新金岡駅 徒歩20分 大阪市御堂筋線 北花田駅 徒歩24分 大阪府堺市北区北長尾町7丁 | 詳細を見る | |
マンション スプランディッド江坂III(1LDK/9階) | |||||||
| 13.8万円 1.2万円 | なし 13.8万円 | 1LDK 40.34m2 | 築2年 | 北大阪急行南北線 江坂駅 徒歩9分 阪急電鉄千里線 豊津駅(大阪) 徒歩11分 阪急電鉄千里線 関大前駅 徒歩16分 大阪府吹田市垂水町3丁目8-9 | 詳細を見る | ||
マンション LASANTE梅田北(1LDK/9階) | |||||||
| 15.7万円 1.5万円 | 17.2万円 17.2万円 | 1LDK 42.75m2 | 築13年 | 大阪市御堂筋線 中津駅(大阪メトロ) 徒歩7分 大阪市谷町線 中崎町駅 徒歩11分 大阪市堺筋線 天神橋筋六丁目駅 徒歩12分 大阪府大阪市北区豊崎4丁目1-17 | 詳細を見る | ||




