賃貸マンション
クレイシア・ヴァースクレイシアIDZ祐天寺Ⅱの賃貸物件情報(1K/3階)
| 家賃 | 管理費等 | 敷金 | 礼金 | 間取り | 専有面積 |
|---|---|---|---|---|---|
| 14.9万円 | 1.5万円 | 14.9万円 | 14.9万円 | 1K | 25.52m2 |
入居決定でお祝い金最大100,000円
- 保証金
- -
- 償却・敷引
- -
- 築年数
- 築3年
- 所在階
- 3階
- 向き
- -
Point
とてもゆとりのある環境が魅力の月14.9万円の物件。新しい日々を送るにふさわしい、きれいな室内です。
提供:ハウスコム東神奈川株式会社 武蔵小杉店

詳細情報 クレイシア・ヴァースクレイシアIDZ祐天寺Ⅱ
物件紹介
クレイシア・ヴァースクレイシアIDZ祐天寺Ⅱは東急東横線祐天寺駅から徒歩7分にあり、駅近で通勤通学に便利なマンションです。
このお部屋は2階以上に位置しているので、通行人や周囲の住人からの視線が気になりにくく、防犯面でも安心。建物のエントランスはオートロックがついており、インターホンにはTVモニタもついているため、相手の顔を確認してから来客対応することができます。
フローリングのお部屋なのでお掃除もラクラク。室内には人気のウォークインクローゼットがありますので、たくさんの荷物も効率的に収納ができます。キッチンはシステムキッチン仕様になっていますので、お料理好きの方にもぴったり。バス・トイレは別なので、のんびりお風呂タイムも楽しめるでしょう。また、雨の日でも浴室乾燥機を使えば、お洗濯も問題ありません。
通信設備面では、インターネットが無料で使えるので、月々の出費を抑えられるのも魅力です(別途工事等が必要な場合あり)。
コンビニまで徒歩5分の場所にあり、日用品や食料品のお買い物にも便利です。
このお部屋は2階以上に位置しているので、通行人や周囲の住人からの視線が気になりにくく、防犯面でも安心。建物のエントランスはオートロックがついており、インターホンにはTVモニタもついているため、相手の顔を確認してから来客対応することができます。
フローリングのお部屋なのでお掃除もラクラク。室内には人気のウォークインクローゼットがありますので、たくさんの荷物も効率的に収納ができます。キッチンはシステムキッチン仕様になっていますので、お料理好きの方にもぴったり。バス・トイレは別なので、のんびりお風呂タイムも楽しめるでしょう。また、雨の日でも浴室乾燥機を使えば、お洗濯も問題ありません。
通信設備面では、インターネットが無料で使えるので、月々の出費を抑えられるのも魅力です(別途工事等が必要な場合あり)。
コンビニまで徒歩5分の場所にあり、日用品や食料品のお買い物にも便利です。
お金・契約の情報
※「-」と表示されているものは、実際は料金が発生するものもございます。詳細はお問い合わせください。
| 家賃 | 14.9万円 | 管理費・共益費 | 1.5万円 |
|---|---|---|---|
| 敷金 | 14.9万円 | 礼金 | 14.9万円 |
| 入居決定でお祝い金最大100,000円 | |||
| 保証金 | - | 償却・敷引 | - |
| 住宅保険料 | 1円 | 更新料 | - |
| 保証会社利用 | 必須 | 保証会社名 | - |
| 保証会社費用 | - | 保証会社備考 | 初回40%、年間保証料10,000円、その他プラン有 |
| 契約形態 | - | 契約期間 | 2年 |
| 入居・引渡期間 | 2026年04月中旬 | 現況 | - |
| 契約備考 | 月額(FAST ASSIST24 1100円) 鍵交換費用:16500 その他設備/条件:室内洗濯機置き場、独立洗面台、クローゼット、シューズボックス | ||
部屋の情報
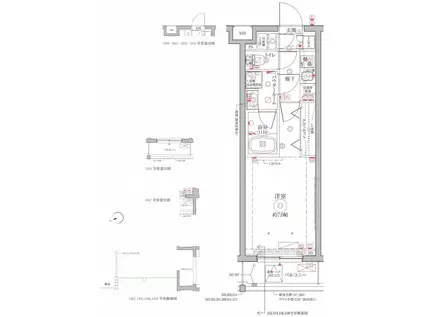
| 間取り | 1K | 専有面積 | 25.52m2 |
|---|---|---|---|
| 間取り詳細 | 洋室(7帖)、K(2.5帖) | ||
| 所在階 / 向き | 3階 / - | バルコニー面積 | - |
| 水道 / ガス | 水道【公営】、ガス【都市】 | ||
| 設備 | バス・トイレ別、オートロック、テレビドアホン、浴室乾燥機、ウォークインクローゼット、インターネット対応、システムキッチン、エアコン、温水洗浄便座、バルコニー、フローリング、洗髪洗面化粧台、2口コンロ、コンロ:ガス、インターネット使用料無料、シャワー、給湯 | ||
| 当社物件ID | 160537566 | ||
建物の情報
| 建物名 | クレイシア・ヴァースクレイシアIDZ祐天寺Ⅱ | ||
|---|---|---|---|
| 所在地 | 東京都世田谷区下馬5丁目 | ||
| 交通 | 東急東横線 祐天寺駅 徒歩7分 東急東横線 学芸大学駅 徒歩15分 | ||
| 階数 | 4階建 | 総戸数 | - |
| 築年月 | 2023年08月 / 築3年 | エレベーター | - |
| 駐車場 | - | バイク置き場 | - |
| 駐輪場 | - | 管理人/管理会社 | - |
| 周辺環境 | コンビニ 徒歩5分(334m) 販売店 徒歩11分(872m) その他 ドラッグストア その他 公園 その他 銀行 その他 * | ||
| 建物種別 | マンション | 建物構造 | RC(鉄筋コンクリート) |
この部屋の取扱い不動産会社
| 会社名 | ハウスコム東神奈川株式会社 溝の口店 | ||
|---|---|---|---|
| 所在地 | 神奈川県川崎市高津区8-1溝ノ口丸広ビル1階 | 交通 | - |
| 営業時間 | 10:00~18:00 | 定休日 | - |
| 免許番号 | 神奈川県知事(1)第31769号 | 取引態様 | 仲介 |
| 不動産会社管理番号 | HC2-4059189-313-0073 | 当社管理番号 | 468 |
| 所属団体 | 、 | ||
| 取扱い物件情報 | 物件詳細へ | ||
※各種情報と現状に差異がある場合は、現状優先となります。問い合わせをすることで、より詳しい条件、情報を確認する事ができます。
提供:ハウスコム東神奈川株式会社 溝の口店
この物件が気になったら掲載期限まであと5日
クレイシア・ヴァースクレイシアIDZ祐天寺Ⅱに条件(家賃・エリア)が近い物件一覧
| 写真 | 家賃 管理費等 | 敷金 礼金 | 間取り 専有面積 | 築年数 | 最寄り駅 所在地 | キープ | 詳細 |
|---|---|---|---|---|---|---|---|
アパート サン ヴィータ(1K/1階) | |||||||
![]() | 9万円 5,000円 | 9万円 18万円 | 1K 21.6m2 | 築6年 | 京浜急行電鉄本線 京急蒲田駅 徒歩6分 京浜急行電鉄本線 梅屋敷駅(東京) 徒歩10分 東京都大田区蒲田3丁目 | 詳細を見る | |
マンション SAKURA(2LDK/2階) | |||||||
![]() | 20.1万円 5,000円 | 20.1万円 なし | 2LDK 54.84m2 | 築5年 | 京急本線 梅屋敷駅(東京) 徒歩7分 京急本線 大森町駅 徒歩9分 東京都大田区大森中 | 詳細を見る | |
マンション シェモア加瀬(2K/3階) | |||||||
![]() | 9.9万円 4,000円 | 9.9万円 9.9万円 | 2K 34m2 | 築22年 | 京浜急行電鉄本線 梅屋敷駅(東京) 徒歩5分 京浜急行電鉄本線 大森町駅 徒歩10分 東京都大田区大森中2丁目 | 詳細を見る | |
一戸建て 京浜急行電鉄本線 大森町駅 徒歩14分 築38年(3LDK) | |||||||
![]() | 14.8万円 なし | 14.8万円 14.8万円 | 3LDK 62.09m2 | 築38年 | 京浜急行電鉄本線 大森町駅 徒歩14分 京浜急行電鉄本線 平和島駅 徒歩19分 東京都大田区大森東3丁目 | 詳細を見る | |
マンション ロサルバ大森(2DK/4階) | |||||||
![]() | 15.6万円 7,000円 | 15.6万円 31.2万円 | 2DK 50.48m2 | 築23年 | 京浜急行電鉄本線 大森町駅 徒歩8分 京浜急行電鉄本線 梅屋敷駅(東京) 徒歩8分 東京都大田区大森西3丁目 | 詳細を見る | |
マンション グランディール(1K/4階) | |||||||
![]() | 9.3万円 5,000円 | 9.3万円 9.3万円 | 1K 25.02m2 | 築22年 | 京浜急行電鉄本線 大森町駅 徒歩5分 京浜急行電鉄本線 梅屋敷駅(東京) 徒歩9分 東京都大田区大森中1丁目 | 詳細を見る | |
アパート ノリアセット(2LDK/3階) | |||||||
![]() | 18.6万円 3,000円 | 18.6万円 18.6万円 | 2LDK 62.72m2 | 新築 | 京浜急行電鉄本線 大森町駅 徒歩9分 京浜急行電鉄本線 梅屋敷駅(東京) 徒歩16分 東京都大田区大森東3丁目 | 詳細を見る | |








