賃貸アパート
スクウエアーハウスの賃貸物件情報(2K/1階)
| 家賃 | 管理費等 | 敷金 | 礼金 | 間取り | 専有面積 |
|---|---|---|---|---|---|
| 7万円 | 3,000円 | なし | なし | 2K | 35m2 |
入居決定でお祝い金最大100,000円
- 保証金
- -
- 償却・敷引
- -
- 築年数
- 築40年
- 所在階
- 1階
- 向き
- -
Point
現地待ち合わせ・オンライン内見・オンライン申し込み対応可能!リモート内見も可能です!類似物件もご内見出来ます!インターネット上の物件はほぼ全てご案内可能ですのでそちらも併せてお申し付け下さい♪
提供:ほがらか不動産 (株)朗らか社(SUUMO経由)

詳細情報 スクウエアーハウス
物件紹介
スクウエアーハウスは東京メトロ丸ノ内線方南町駅から徒歩9分にあり、駅近で通勤通学に便利なアパートです。
人気の角部屋で周囲の居住者の生活音も気になりにくく、また、フローリングのお部屋なのでお掃除もラクラク。キッチンはシステムキッチン仕様になっていますので、お料理好きの方にもぴったり。また、バス・トイレは別で、のんびりお風呂タイムも楽しめるでしょう。
通信設備面では、インターネットが無料で使えるので、月々の出費を抑えられるのも魅力です。また、CATVにも対応しているので、おうち時間も充実するでしょう(別途工事、CATVの契約料等が必要な場合あり)。
人気の角部屋で周囲の居住者の生活音も気になりにくく、また、フローリングのお部屋なのでお掃除もラクラク。キッチンはシステムキッチン仕様になっていますので、お料理好きの方にもぴったり。また、バス・トイレは別で、のんびりお風呂タイムも楽しめるでしょう。
通信設備面では、インターネットが無料で使えるので、月々の出費を抑えられるのも魅力です。また、CATVにも対応しているので、おうち時間も充実するでしょう(別途工事、CATVの契約料等が必要な場合あり)。
お金・契約の情報
※「-」と表示されているものは、実際は料金が発生するものもございます。詳細はお問い合わせください。
| 家賃 | 7万円 | 管理費・共益費 | 3,000円 |
|---|---|---|---|
| 敷金 | なし | 礼金 | なし |
| 入居決定でお祝い金最大100,000円 | |||
| 保証金 | - | 償却・敷引 | - |
| 住宅保険料 | - | 更新料 | - |
| 保証会社利用 | 必須 | 保証会社名 | - |
| 保証会社費用 | - | 保証会社備考 | 保証会社利用必 保証料:家賃(賃料+共益費)の50% |
| 契約形態 | - | 契約期間 | - |
| 入居・引渡期間 | 相談 | 現況 | - |
| 契約備考 | 京王電鉄京王線幡ヶ谷駅徒歩21分/クレジット決済出来ます!!お電話でのお問合わせが早くて便利♪掲載物件以外も気軽に☆当日内見も可能です!都内の物件でしたら当店にお任せください♪ 合計1.38万円(内訳:カギ交換費用13750円) 室内清掃費用55000円 2K 単身者可/二人入居可/ルームシェア相談 普通借家2年 損保【2万円2年】 バストイレ別、エアコン、ガスコンロ対応、フローリング、室内洗濯置、システムキッチン、追焚機能浴室、角住戸、CATV、閑静な住宅地、2面採光、防犯カメラ、保証人不要、単身者相談、仲介手数料不要、CATVインターネット、二人入居相談、ネット専用回線、ネット使用料不要、眺望良好、保証金不要、クロゼット2ヶ所、ルームシェア相談、始発駅、3駅以上利用可、3沿線以上利用可、駅徒歩10分以内、和室、都市ガス、高速ネット対応、敷金・礼金不要、LGBTフレンドリー、初期費用カード決済可 | ||
部屋の情報
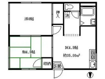
| 間取り | 2K | 専有面積 | 35m2 |
|---|---|---|---|
| 所在階 / 向き | 1階 / - | バルコニー面積 | - |
| 水道 / ガス | - | ||
| 設備 | バス・トイレ別、追い焚き、インターネット対応、システムキッチン、エアコン、角部屋、フローリング、コンロ:ガス、CATV、インターネット使用料無料、洗濯機:室内 | ||
| 当社物件ID | 10032631 | ||
建物の情報
| 建物名 | スクウエアーハウス | ||
|---|---|---|---|
| 所在地 | 東京都中野区南台 | ||
| 交通 | 東京メトロ丸ノ内線 方南町駅 徒歩9分 東京メトロ丸ノ内線 中野富士見町駅 徒歩14分 京王線 笹塚駅 徒歩15分 | ||
| 階数 | 2階建 | 総戸数 | - |
| 築年月 | 1986年05月 / 築40年 | エレベーター | - |
| 駐車場 | なし | バイク置き場 | - |
| 駐輪場 | - | 管理人/管理会社 | - |
| 周辺環境 | その他 サミットストア中野南台店(スーパー)まで440m その他 まいばすけっと中野弥生町5丁目店(スーパー)まで702m その他 ミニストップ南台5丁目店(コンビニ)まで404m その他 セブンイレブン南台店(コンビニ)まで591m その他 幡ヶ谷駅(その他)まで772m | ||
| 建物種別 | アパート | 建物構造 | 軽量鉄骨造 |
この部屋の取扱い不動産会社
| 会社名 | ほがらか不動産 (株)朗らか社(SUUMO経由) | ||
|---|---|---|---|
| 所在地 | 東京都中野区中野5-66-4 井口ビル5階 | 交通 | - |
| 営業時間 | am10:00-pm19:00 | 定休日 | なし |
| 免許番号 | 東京都知事95407 | 取引態様 | 仲介 |
| 不動産会社管理番号 | 100492280323 | 当社管理番号 | 89 |
| 所属団体 | (公社)東京都宅地建物取引業協会会員 | ||
| 公正取引協議会 | (公社)首都圏不動産公正取引協議会加盟 | ||
| 取扱い物件情報 | 物件詳細へ | ||
※各種情報と現状に差異がある場合は、現状優先となります。問い合わせをすることで、より詳しい条件、情報を確認する事ができます。
提供:ほがらか不動産 (株)朗らか社(SUUMO経由)
この物件が気になったら掲載期限まであと12日
スクウエアーハウスに条件(家賃・エリア)が近い物件一覧
| 写真 | 家賃 管理費等 | 敷金 礼金 | 間取り 専有面積 | 築年数 | 最寄り駅 所在地 | キープ | 詳細 |
|---|---|---|---|---|---|---|---|
マンション プレールドゥーク下井草 (ワンルーム/1階) | |||||||
![]() | 9.5万円 1.1万円 | なし 9.5万円 | ワンルーム 23.08m2 | 築20年 | 西武鉄道新宿線 下井草駅 徒歩5分 東京都杉並区井草2丁目 | 詳細を見る | |
アパート コンフォートK・S(1K/2階) | |||||||
![]() | 8万円 2,000円 | 8万円 8万円 | 1K 25.35m2 | 築18年 | JR総武線 荻窪駅 徒歩13分 JR中央線 荻窪駅 徒歩13分 東京メトロ丸ノ内線 荻窪駅 徒歩13分 東京都杉並区上荻 | 詳細を見る | |
マンション ガーデニア笹塚(1K/7階) | |||||||
![]() | 9.3万円 5,000円 | 9.3万円 9.3万円 | 1K 23.71m2 | 築29年 | 京王線 笹塚駅 徒歩12分 京王新線 幡ケ谷駅 徒歩14分 東京メトロ丸ノ内線 方南町駅 徒歩18分 東京都渋谷区笹塚 | 詳細を見る | |
マンション アンビエンテ(1K/1階) | |||||||
![]() | 9万円 5,000円 | 9万円 9万円 | 1K 23.9m2 | 築19年 | JR中央線 阿佐ケ谷駅 徒歩5分 JR総武線 高円寺駅 徒歩6分 東京メトロ丸ノ内線 新高円寺駅 徒歩10分 東京都杉並区阿佐谷南 | 詳細を見る | |
アパート スタジオ明泉(ワンルーム/4階) | |||||||
![]() | 9万円 5,000円 | なし 9万円 | ワンルーム 16.72m2 | 築25年 | JR中央線 信濃町駅 徒歩2分 東京メトロ丸ノ内線 四谷三丁目駅 徒歩12分 JR中央線 千駄ケ谷駅 徒歩13分 東京都新宿区南元町 | 詳細を見る | |
アパート サニーハイツ中村(1K/2階) | |||||||
![]() | 6.6万円 3,000円 | 6.6万円 6.6万円 | 1K 21m2 | 築41年 | 東京メトロ丸ノ内線 中野富士見町駅 徒歩5分 東京メトロ丸ノ内線 新中野駅 徒歩8分 東京メトロ丸ノ内線 中野新橋駅 徒歩9分 東京都中野区本町 | 詳細を見る | |
アパート スノーベル(1SLDK/2階) | |||||||
![]() | 10.8万円 5,000円 | 10.8万円 10.8万円 | 1SLDK 40.96m2 | 築1年 | 西武新宿線 沼袋駅 徒歩12分 都営大江戸線 新江古田駅 徒歩17分 東京都中野区江古田 | 詳細を見る | |
アパート メゾンリブエール(1LDK/1階) | |||||||
![]() | 10.8万円 3,000円 | 10.8万円 10.8万円 | 1LDK 36.36m2 | 築18年 | 西武新宿線 下井草駅 徒歩7分 西武新宿線 井荻駅 徒歩8分 西武池袋線 富士見台駅 徒歩19分 東京都杉並区井草 | 詳細を見る | |


/105x80-f1-q70-wp1)






