賃貸マンション
アクタス博多Vタワーの賃貸物件情報(2LDK/13階)
| 家賃 | 管理費等 | 敷金 | 礼金 | 間取り | 専有面積 |
|---|---|---|---|---|---|
| 14万円 | 5,000円 | なし | 36.3万円 | 2LDK | 49.28m2 |
入居決定でお祝い金最大100,000円
- 保証金
- -
- 償却・敷引
- -
- 築年数
- 築19年
- 所在階
- 13階
- 向き
- 南西
Point
貴重な2LDKに、募集が出ました。(^_^)/
提供:(株)アクタス(SUUMO経由)

詳細情報 アクタス博多Vタワー
物件紹介
アクタス博多VタワーはJR鹿児島本線博多駅から徒歩9分にあり、駅近で通勤通学に便利なマンションです。
このお部屋は2階以上に位置しているので、通行人や周囲の住人からの視線が気になりにくく、防犯面でも安心。建物のエントランスはオートロックがついており、インターホンにはTVモニタもついているため、相手の顔を確認してから来客対応することができます。
人気の南向き・フローリングのお部屋。室内にはウォークインクローゼットがありますので、たくさんの荷物も効率的に収納ができます。キッチンはシステムキッチン仕様になっていますので、お料理好きの方にもぴったり。また、バス・トイレは別で、のんびりお風呂タイムも楽しめるでしょう。
通信設備面では、インターネットが無料で使えるので、月々の出費を抑えられるのも魅力です。また、BSアンテナ・CSアンテナもありますので、おうち時間も充実するでしょう(別途工事、BS・CSの契約料等が必要な場合あり)。
建物にはエレベーターがついているので、重い荷物があっても安心。共用部には宅配ボックスが設定されているので、不在の時にも荷物を受け取ることができます。
このお部屋は2階以上に位置しているので、通行人や周囲の住人からの視線が気になりにくく、防犯面でも安心。建物のエントランスはオートロックがついており、インターホンにはTVモニタもついているため、相手の顔を確認してから来客対応することができます。
人気の南向き・フローリングのお部屋。室内にはウォークインクローゼットがありますので、たくさんの荷物も効率的に収納ができます。キッチンはシステムキッチン仕様になっていますので、お料理好きの方にもぴったり。また、バス・トイレは別で、のんびりお風呂タイムも楽しめるでしょう。
通信設備面では、インターネットが無料で使えるので、月々の出費を抑えられるのも魅力です。また、BSアンテナ・CSアンテナもありますので、おうち時間も充実するでしょう(別途工事、BS・CSの契約料等が必要な場合あり)。
建物にはエレベーターがついているので、重い荷物があっても安心。共用部には宅配ボックスが設定されているので、不在の時にも荷物を受け取ることができます。
お金・契約の情報
※「-」と表示されているものは、実際は料金が発生するものもございます。詳細はお問い合わせください。
| 家賃 | 14万円 | 管理費・共益費 | 5,000円 |
|---|---|---|---|
| 敷金 | なし | 礼金 | 36.3万円 |
| 入居決定でお祝い金最大100,000円 | |||
| 保証金 | - | 償却・敷引 | - |
| 住宅保険料 | - | 更新料 | - |
| 保証会社利用 | 必須 | 保証会社名 | 全保連 |
| 保証会社費用 | - | 保証会社備考 | 全保連利用必 保証料:月額賃料の30%/100% 初回30%/1年更新10000円 初回100%/更新料なし |
| 契約形態 | - | 契約期間 | - |
| 入居・引渡期間 | 相談 | 現況 | - |
| 契約備考 | 地下鉄空港線 博多駅駅徒歩9分/ミニストップ博多駅前3丁目店まで10m/キャナルシティ博多まで741m/1Fコンビニ/通勤管理/※現況優先 ★駐車場住居との同時契約で割引料金となります。 2LDK 損保【要】 バストイレ別、バルコニー、エアコン、クロゼット、シャワー付洗面台、TVインターホン、オートロック、室内洗濯置、陽当り良好、シューズボックス、システムキッチン、温水洗浄便座、脱衣所、エレベーター、洗面所独立、洗面化粧台、2口コンロ、駐輪場、宅配ボックス、外壁タイル張り、BS・CS、敷金不要、防犯カメラ、独立型キッチン、分譲賃貸、ウォークインクロゼット、駐車2台可、仲介手数料不要、バイク置場、24時間緊急通報システム、全居室フローリング、2沿線利用可、ディンプルキー、駅まで平坦、ネット使用料不要、眺望良好、ダブルロックキー、24時間換気システム、高温差湯式、外壁コンクリート、平坦地、人感照明センサー、エレベーター2基、耐火構造、始発駅、2駅利用可、駅徒歩10分以内、バス停徒歩3分以内、高層階、風除室、敷地内ごみ置き場、平面駐車場、日勤管理、当社管理物件、セキュリティ会社加入済、LDK12畳以上、都市ガス、洗面所にドア、高速ネット対応、通風良好 | ||
部屋の情報
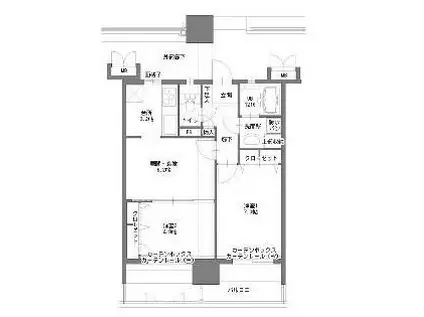
| 間取り | 2LDK | 専有面積 | 49.28m2 |
|---|---|---|---|
| 所在階 / 向き | 13階 / 南西 | バルコニー面積 | 8m2 |
| 水道 / ガス | - | ||
| 設備 | バス・トイレ別、2階以上、オートロック、テレビドアホン、宅配ボックス、ウォークインクローゼット、インターネット対応、システムキッチン、エアコン、エレベーター、温水洗浄便座、南向き、バルコニー、フローリング、洗髪洗面化粧台、2口コンロ、CSアンテナ、BSアンテナ、インターネット使用料無料、洗濯機:室内 | ||
| 当社物件ID | 2358707 | ||
建物の情報
| 建物名 | アクタス博多Vタワー | ||
|---|---|---|---|
| 所在地 | 福岡県福岡市博多区博多駅前 | ||
| 交通 | JR鹿児島本線 博多駅 徒歩9分 地下鉄空港線 祇園駅(福岡) 徒歩9分 地下鉄七隈線 渡辺通駅 徒歩16分 | ||
| 階数 | 15階建 | 総戸数 | - |
| 築年月 | 2007年01月 / 築19年 | エレベーター | あり |
| 駐車場 | 空有 27500円/平置駐 | バイク置き場 | あり |
| 駐輪場 | あり | 管理人/管理会社 | - |
| 周辺環境 | その他 キャナルシティ博多(ショッピングセンター)まで741m その他 ローソン博多区博多駅前通り店(コンビニ)まで207m その他 新生堂薬局由布ビル店(ドラッグストア)まで150m その他 西日本シティ銀行キャナルシティ博多支店(銀行)まで323m その他 マックスバリュー(スーパー)まで547m その他 ミニストップ博多駅前3丁目店(コンビニ)まで10m | ||
| 建物種別 | マンション | 建物構造 | SRC(鉄骨鉄筋コンクリート) |
この部屋の取扱い不動産会社
| 会社名 | (株)アクタス(SUUMO経由) | ||
|---|---|---|---|
| 所在地 | 福岡県福岡市中央区天神3-9-26 アクタス天神セントラルタワー2階 | 交通 | - |
| 営業時間 | 10:00~19:00 | 定休日 | 毎日営業 |
| 免許番号 | 福岡県知事15125 | 取引態様 | 代理 |
| 不動産会社管理番号 | 100480006666 | 当社管理番号 | 89 |
| 所属団体 | (公社)福岡県宅地建物取引業協会会員 | ||
| 公正取引協議会 | (一社)九州不動産公正取引協議会加盟 | ||
| 取扱い物件情報 | 物件詳細へ | ||
※各種情報と現状に差異がある場合は、現状優先となります。問い合わせをすることで、より詳しい条件、情報を確認する事ができます。
提供:(株)アクタス(SUUMO経由)
この物件が気になったら掲載期限まであと11日
アクタス博多Vタワーに条件(家賃・エリア)が近い物件一覧
| 写真 | 家賃 管理費等 | 敷金 礼金 | 間取り 専有面積 | 築年数 | 最寄り駅 所在地 | キープ | 詳細 |
|---|---|---|---|---|---|---|---|
マンション エンクレストGRAN博多駅前(1K/8階) | |||||||
| 9.1万円 なし | なし 18.2万円 | 1K 26.08m2 | 築12年 | 福岡市空港線 博多駅 徒歩8分 福岡市空港線 祇園駅(福岡) 徒歩17分 福岡市七隈線 渡辺通駅 徒歩20分 福岡県福岡市博多区博多駅前4丁目 | 詳細を見る | ||
マンション アントゥール薬院(1K/13階) | |||||||
| 9.6万円 1万円 | なし なし | 1K 30.51m2 | 築24年 | 福岡市七隈線 薬院駅 徒歩4分 福岡市七隈線 薬院大通駅 徒歩6分 福岡市七隈線 渡辺通駅 徒歩8分 福岡県福岡市中央区 | 詳細を見る | ||
マンション S-FORT筑紫通(1LDK/8階) | |||||||
| 10.4万円 6,000円 | なし 10.4万円 | 1LDK 41.6m2 | 築20年 | 福岡市空港線 東比恵駅 徒歩18分 鹿児島本線 竹下駅 徒歩18分 福岡市空港線 博多駅 徒歩21分 福岡県福岡市博多区博多駅南4丁目 | 詳細を見る | ||
アパート D-ROOM板付(2LDK/2階) | |||||||
![]() | 12.7万円 6,000円 | なし 25.4万円 | 2LDK 57.48m2 | 新築 | 西鉄天神大牟田線 井尻駅 徒歩22分 鹿児島本線 笹原駅 徒歩23分 鹿児島本線 竹下駅 徒歩30分 福岡県福岡市博多区 | 詳細を見る | |
マンション ETERUNO(3SLDK/3階) | |||||||
![]() | 12.5万円 6,500円 | なし 25万円 | 3SLDK 71.44m2 | 新築 | 西鉄天神大牟田線 雑餉隈駅 徒歩14分 福岡県福岡市博多区麦野2丁目 | 詳細を見る | |
マンション MODERN PALAZZO 博多デュオグランデイースト(2LDK/7階) | |||||||
| 17.1万円 5,000円 | なし なし | 2LDK 53.06m2 | 築1年 | 福岡市空港線 博多駅 徒歩12分 福岡市七隈線 渡辺通駅 徒歩18分 福岡市空港線 祇園駅(福岡) 徒歩19分 福岡県福岡市博多区美野島1丁目5-1 | 詳細を見る | ||
マンション LANDIC K104(1LDK/12階) | |||||||
| 10.1万円 1.1万円 | なし 10.1万円 | 1LDK 34.95m2 | 築7年 | 福岡市箱崎線 呉服町駅(福岡) 徒歩10分 福岡市空港線 中洲川端駅 徒歩13分 福岡市空港線 天神駅 徒歩16分 福岡県福岡市博多区神屋町 | 詳細を見る | ||
マンション アムシュトラーセ(2LDK/1階) | |||||||
![]() | 12万円 7,500円 | なし 26万円 | 2LDK 69.58m2 | 築14年 | 鹿児島本線 南福岡駅 徒歩16分 福岡県福岡市博多区麦野5丁目 | 詳細を見る | |




