賃貸マンション
ライオンズマンション赤坂の賃貸物件情報(1SLDK/8階)
| 家賃 | 管理費等 | 敷金 | 礼金 | 間取り | 専有面積 |
|---|---|---|---|---|---|
| 23万円 | 1万円 | 23万円 | 23万円 | 1SLDK | 52.28m2 |
入居決定でお祝い金最大100,000円
- 保証金
- -
- 償却・敷引
- -
- 築年数
- 築57年
- 所在階
- 8階
- 向き
- 南東
Point
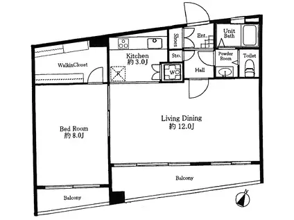
高台、最上階の部屋で、陽当たり眺望良好。ライオンズマンション第1号のマンションです。収納力たっぷりの約3帖のウォークインクローゼット付です。
提供:(株)フリーダムコーポレーション(SUUMO経由)

詳細情報 ライオンズマンション赤坂
物件紹介
ライオンズマンション赤坂は東京メトロ千代田線赤坂駅から徒歩7分にあり、駅近で通勤通学に便利なマンションです。
このお部屋は2階以上に位置しているので、通行人や周囲の住人からの視線が気になりにくく、防犯面でも安心。建物のエントランスはオートロックがついており、インターホンにはTVモニタもついているため、相手の顔を確認してから来客対応することができます。
人気の南向き・フローリングのお部屋。室内にはウォークインクローゼットがありますので、たくさんの荷物も効率的に収納ができます。キッチンはシステムキッチン仕様になっていますので、お料理好きの方にもぴったり。また、バス・トイレは別で、のんびりお風呂タイムも楽しめるでしょう。
通信設備面では、インターネット接続が可能です。また、BSアンテナ・CSアンテナもありますので、おうち時間も充実するでしょう(別途工事、契約料が必要な場合あり)。
建物にはエレベーターがついているので、重い荷物があっても安心。
このお部屋は2階以上に位置しているので、通行人や周囲の住人からの視線が気になりにくく、防犯面でも安心。建物のエントランスはオートロックがついており、インターホンにはTVモニタもついているため、相手の顔を確認してから来客対応することができます。
人気の南向き・フローリングのお部屋。室内にはウォークインクローゼットがありますので、たくさんの荷物も効率的に収納ができます。キッチンはシステムキッチン仕様になっていますので、お料理好きの方にもぴったり。また、バス・トイレは別で、のんびりお風呂タイムも楽しめるでしょう。
通信設備面では、インターネット接続が可能です。また、BSアンテナ・CSアンテナもありますので、おうち時間も充実するでしょう(別途工事、契約料が必要な場合あり)。
建物にはエレベーターがついているので、重い荷物があっても安心。
お金・契約の情報
※「-」と表示されているものは、実際は料金が発生するものもございます。詳細はお問い合わせください。
| 家賃 | 23万円 | 管理費・共益費 | 1万円 |
|---|---|---|---|
| 敷金 | 23万円 | 礼金 | 23万円 |
| 入居決定でお祝い金最大100,000円 | |||
| 保証金 | - | 償却・敷引 | - |
| 住宅保険料 | - | 更新料 | - |
| 保証会社利用 | 必須 | 保証会社名 | - |
| 保証会社費用 | - | 保証会社備考 | 保証会社利用必 エルズサポート 初回加入料賃料の50%額 以降毎月700円 口座引落手数料330円 |
| 契約形態 | 定期借家 | 契約期間 | 3年 |
| 入居・引渡期間 | - | 現況 | - |
| 契約備考 | 通勤管理 1SLDK 事務所利用不可/ルームシェア不可 定期借家3年 損保【3万円3年】 バストイレ別、バルコニー、フローリング、TVインターホン、オートロック、室内洗濯置、陽当り良好、シューズボックス、システムキッチン、南向き、温水洗浄便座、エレベーター、洗面所独立、駐輪場、光ファイバー、閑静な住宅地、最上階、BS・CS、3口以上コンロ、分譲賃貸、ウォークインクロゼット、全居室フローリング、2面バルコニー、エアコン2台、LDK15畳以上、敷金2ヶ月、緑豊かな住宅地、眺望良好、全室南向き、南面2室、南面リビング、高台に立地、3沿線以上利用可、敷地内ごみ置き場、日勤管理、都市ガス、南面バルコニー、天井高シューズクロゼット、礼金1ヶ月、通風良好 入居日:'26年4月下旬 | ||
部屋の情報
| 間取り | 1SLDK | 専有面積 | 52.28m2 |
|---|---|---|---|
| 所在階 / 向き | 8階 / 南東 | バルコニー面積 | 10m2 |
| 水道 / ガス | - | ||
| 設備 | バス・トイレ別、2階以上、オートロック、テレビドアホン、ウォークインクローゼット、インターネット対応、システムキッチン、エアコン、エレベーター、温水洗浄便座、南向き、バルコニー、フローリング、洗髪洗面化粧台、2口コンロ、CSアンテナ、BSアンテナ、洗濯機:室内 | ||
| 当社物件ID | 128297622 | ||
建物の情報
| 建物名 | ライオンズマンション赤坂 | ||
|---|---|---|---|
| 所在地 | 東京都港区赤坂 | ||
| 交通 | 東京メトロ千代田線 赤坂駅(東京) 徒歩7分 東京メトロ銀座線 青山一丁目駅 徒歩10分 東京メトロ丸ノ内線 赤坂見附駅 徒歩10分 | ||
| 階数 | 8階建 | 総戸数 | - |
| 築年月 | 1969年04月 / 築57年 | エレベーター | あり |
| 駐車場 | なし | バイク置き場 | - |
| 駐輪場 | あり | 管理人/管理会社 | - |
| 周辺環境 | その他 スギ薬局赤坂店(ドラッグストア)まで493m その他 セブンイレブン赤坂ガーデンシティ店(コンビニ)まで258m その他 タリーズコーヒー赤坂ガーデンシティ店(飲食店)まで238m その他 三菱UFJ銀行青山通支店(銀行)まで730m その他 医療法人財団順和会山王メディカルセンター(病院)まで721m その他 成城石井赤坂Bizタワー店(スーパー)まで748m | ||
| 建物種別 | マンション | 建物構造 | RC(鉄筋コンクリート) |
この部屋の取扱い不動産会社
| 会社名 | (株)フリーダムコーポレーション(SUUMO経由) | ||
|---|---|---|---|
| 所在地 | 東京都港区赤坂8-5-40 | 交通 | - |
| 営業時間 | 10:00~19:00 | 定休日 | 水曜・日曜・祝日 |
| 免許番号 | 東京都知事82333 | 取引態様 | 仲介 |
| 不動産会社管理番号 | 100304362138 | 当社管理番号 | 89 |
| 所属団体 | (公社)東京都宅地建物取引業協会会員 | ||
| 公正取引協議会 | (公社)首都圏不動産公正取引協議会加盟 | ||
| 取扱い物件情報 | 物件詳細へ | ||
※各種情報と現状に差異がある場合は、現状優先となります。問い合わせをすることで、より詳しい条件、情報を確認する事ができます。
提供:(株)フリーダムコーポレーション(SUUMO経由)
この物件が気になったら掲載期限まであと11日
ライオンズマンション赤坂に条件(家賃・エリア)が近い物件一覧
| 写真 | 家賃 管理費等 | 敷金 礼金 | 間取り 専有面積 | 築年数 | 最寄り駅 所在地 | キープ | 詳細 |
|---|---|---|---|---|---|---|---|
マンション プレール・ドゥーク大島(2LDK/2階) | |||||||
![]() | 23.3万円 1.1万円 | なし 23.3万円 | 2LDK 53.96m2 | 築2年 | 東京都新宿線 東大島駅 徒歩6分 東京都新宿線 大島駅(東京) 徒歩8分 総武・中央緩行線 亀戸駅 徒歩25分 東京都江東区大島7丁目 | 詳細を見る | |
マンション ジュネス(3LDK/5階) | |||||||
![]() | 20.6万円 9,000円 | 41.2万円 なし | 3LDK 70.68m2 | 築36年 | 都営新宿線 西大島駅 徒歩15分 都営新宿線 住吉駅(東京) 徒歩20分 東京メトロ半蔵門線 住吉駅(東京) 徒歩20分 東京都江東区北砂 | 詳細を見る | |
マンション GARDEN XAVIS木場(1LDK/4階) | |||||||
![]() | 15.1万円 1.2万円 | 15.1万円 なし | 1LDK 27.28m2 | 築1年 | 東京メトロ東西線 木場駅 徒歩4分 東京メトロ東西線 東陽町駅 徒歩7分 都営大江戸線 門前仲町駅 徒歩19分 東京都江東区東陽 | 詳細を見る | |
マンション あやめガーデン(2K/10階) | |||||||
![]() | 17.5万円 1万円 | 17.5万円 17.5万円 | 2K 42.26m2 | 築13年 | 東京メトロ日比谷線 築地駅 徒歩1分 東京メトロ有楽町線 新富町駅(東京) 徒歩6分 東京メトロ日比谷線 東銀座駅 徒歩6分 東京都中央区築地 | 詳細を見る | |
マンション コンフォリア・リヴ豊洲キャナル(2LDK/3階) | |||||||
![]() | 27.3万円 1.2万円 | 27.3万円 なし | 2LDK 64.02m2 | 築2年 | 東京メトロ有楽町線 豊洲駅 徒歩14分 JR京葉線 潮見駅 徒歩22分 東京メトロ有楽町線 辰巳駅 徒歩32分 東京都江東区枝川 | 詳細を見る | |
マンション ガリシア日本橋水天宮II(ワンルーム/6階) | |||||||
![]() | 14.4万円 1.1万円 | なし 14.4万円 | ワンルーム 25.61m2 | 築10年 | 東京地下鉄半蔵門線 水天宮前駅 徒歩3分 東京地下鉄日比谷線 人形町駅 徒歩11分 東京地下鉄東西線 茅場町駅 徒歩13分 東京都中央区日本橋箱崎町 | 詳細を見る | |
マンション ローズコート日本橋茅場町(1SLDK/2階) | |||||||
![]() | 18万円 5,000円 | 18万円 18万円 | 1SLDK 45.32m2 | 築11年 | 東京メトロ日比谷線 茅場町駅 徒歩4分 東京メトロ日比谷線 八丁堀駅(東京) 徒歩5分 東京メトロ銀座線 日本橋駅(東京) 徒歩6分 東京都中央区日本橋茅場町 | 詳細を見る | |
一戸建て 東京都新宿線 大島駅(東京) 徒歩7分 築77年(1DK) | |||||||
![]() | 15.8万円 なし | 15.8万円 15.8万円 | 1DK 27.91m2 | 築77年 | 東京都新宿線 大島駅(東京) 徒歩7分 東京都新宿線 西大島駅 徒歩7分 総武・中央緩行線 亀戸駅 徒歩11分 東京都江東区大島3丁目 | 詳細を見る | |









