賃貸マンション
REUNIR GRACIASの賃貸物件情報(1LDK/1階)
| 家賃 | 管理費等 | 敷金 | 礼金 | 間取り | 専有面積 |
|---|---|---|---|---|---|
| 9.9万円 | 7,000円 | 5万円 | 20万円 | 1LDK | 44.75m2 |
入居決定でお祝い金最大100,000円
- 保証金
- -
- 償却・敷引
- -
- 築年数
- 築6年
- 所在階
- 1階
- 向き
- 西
Point
まずはお問い合わせ!
不動産会社は街のプロ、あなたに合った物件がきっと見つかります。
提供:ツインホーム(株)東三国店(SUUMO経由)

詳細情報 REUNIR GRACIAS
物件紹介
REUNIR GRACIASは阪急宝塚線蛍池駅から徒歩3分にあり、駅近で通勤通学に便利なマンションです。
建物のエントランスはオートロックがついており、インターホンにはTVモニタもついているため、相手の顔を確認してから来客対応することができます。
人気の角部屋で周囲の居住者の生活音も気になりにくく、また、フローリングのお部屋なのでお掃除もラクラク。室内にはウォークインクローゼットがありますので、たくさんの荷物も効率的に収納ができます。キッチンはシステムキッチン仕様になっていますので、お料理好きの方にもぴったり。バス・トイレは別なので、のんびりお風呂タイムも楽しめるでしょう。また、雨の日でも浴室乾燥機を使えば、お洗濯も問題ありません。
通信設備面では、インターネットが無料で使えるので、月々の出費を抑えられるのも魅力です。また、CATVにも対応しているので、おうち時間も充実するでしょう(別途工事、CATVの契約料等が必要な場合あり)。
ペット飼育の相談ができますので、あなたの大切な家族の一員も快適に暮らせるか、ぜひ確認してみてください。
建物のエントランスはオートロックがついており、インターホンにはTVモニタもついているため、相手の顔を確認してから来客対応することができます。
人気の角部屋で周囲の居住者の生活音も気になりにくく、また、フローリングのお部屋なのでお掃除もラクラク。室内にはウォークインクローゼットがありますので、たくさんの荷物も効率的に収納ができます。キッチンはシステムキッチン仕様になっていますので、お料理好きの方にもぴったり。バス・トイレは別なので、のんびりお風呂タイムも楽しめるでしょう。また、雨の日でも浴室乾燥機を使えば、お洗濯も問題ありません。
通信設備面では、インターネットが無料で使えるので、月々の出費を抑えられるのも魅力です。また、CATVにも対応しているので、おうち時間も充実するでしょう(別途工事、CATVの契約料等が必要な場合あり)。
ペット飼育の相談ができますので、あなたの大切な家族の一員も快適に暮らせるか、ぜひ確認してみてください。
お金・契約の情報
※「-」と表示されているものは、実際は料金が発生するものもございます。詳細はお問い合わせください。
| 家賃 | 9.9万円 | 管理費・共益費 | 7,000円 |
|---|---|---|---|
| 敷金 | 5万円 | 礼金 | 20万円 |
| 入居決定でお祝い金最大100,000円 | |||
| 保証金 | - | 償却・敷引 | - |
| 住宅保険料 | - | 更新料 | - |
| 契約形態 | - | 契約期間 | - |
| 入居・引渡期間 | - | 現況 | - |
| 入居可能条件 | ペット相談 | ||
| 契約備考 | 1LDK 二人入居可/子供可/ペット相談 損保【要】 バストイレ別、バルコニー、エアコン、ガスコンロ対応、クロゼット、シャワー付洗面台、TVインターホン、浴室乾燥機、オートロック、室内洗濯置、陽当り良好、シューズボックス、システムキッチン、追焚機能浴室、角住戸、温水洗浄便座、脱衣所、洗面所独立、洗面化粧台、駐輪場、CATV、閑静な住宅地、3口以上コンロ、対面式キッチン、防犯カメラ、ペット相談、全居室収納、グリル付、全居室洋室、ウォークインクロゼット、二人入居相談、全居室フローリング、2沿線利用可、ディンプルキー、ネット使用料不要、ダブルロックキー、24時間換気システム、複層ガラス、人感照明センサー、2駅利用可、3駅以上利用可、駅徒歩5分以内、敷地内ごみ置き場、平面駐車場、都市ガス、洗面所にドア、年内入居可、通風良好 入居日:'26年4月上旬 | ||
部屋の情報
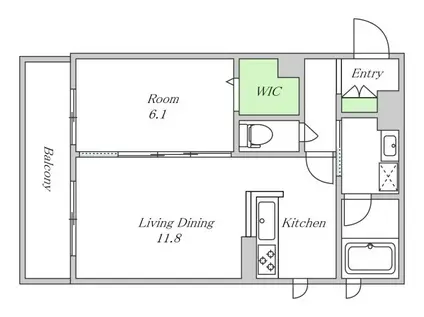
| 間取り | 1LDK | 専有面積 | 44.75m2 |
|---|---|---|---|
| 所在階 / 向き | 1階 / 西 | バルコニー面積 | - |
| 水道 / ガス | - | ||
| 設備 | バス・トイレ別、オートロック、テレビドアホン、浴室乾燥機、ウォークインクローゼット、追い焚き、インターネット対応、システムキッチン、エアコン、温水洗浄便座、角部屋、バルコニー、フローリング、洗髪洗面化粧台、2口コンロ、コンロ:ガス、CATV、インターネット使用料無料、洗濯機:室内 | ||
| 当社物件ID | 45772640 | ||
建物の情報
| 建物名 | REUNIR GRACIAS | ||
|---|---|---|---|
| 所在地 | 大阪府豊中市螢池中町 | ||
| 交通 | 阪急宝塚線 蛍池駅 徒歩4分 大阪モノレール本線 大阪空港駅 徒歩17分 阪急宝塚線 豊中駅 徒歩18分 | ||
| 階数 | 3階建 | 総戸数 | - |
| 築年月 | 2020年10月 / 築6年 | エレベーター | - |
| 駐車場 | なし | バイク置き場 | - |
| 駐輪場 | あり | 管理人/管理会社 | - |
| 周辺環境 | その他 Food Net Mart(フードネットマート) 蛍池店(スーパー)まで78m その他 阪急OASIS(オアシス) 蛍ヶ池店(スーパー)まで489m その他 ETRE(エトレ)とよなか(ショッピングセンター)まで1586m その他 セブンイレブン 豊中螢池東町店(コンビニ)まで704m | ||
| 建物種別 | マンション | 建物構造 | 鉄骨造 |
この部屋の取扱い不動産会社
| 会社名 | ツインホーム(株)東三国店(SUUMO経由) | ||
|---|---|---|---|
| 所在地 | 大阪府大阪市淀川区宮原1-19-19 | 交通 | - |
| 営業時間 | 10:00~20:00 | 定休日 | 無し、年末年始 |
| 免許番号 | 大阪府知事46704 | 取引態様 | 仲介 |
| 不動産会社管理番号 | 100488744922 | 当社管理番号 | 89 |
| 所属団体 | (公社)全日本不動産協会大阪府本部会員 | ||
| 公正取引協議会 | (公社)近畿地区不動産公正取引協議会加盟 | ||
| 取扱い物件情報 | 物件詳細へ | ||
※各種情報と現状に差異がある場合は、現状優先となります。問い合わせをすることで、より詳しい条件、情報を確認する事ができます。
提供:ツインホーム(株)東三国店(SUUMO経由)
この物件が気になったら掲載期限まであと12日
REUNIR GRACIASに条件(家賃・エリア)が近い物件一覧
| 写真 | 家賃 管理費等 | 敷金 礼金 | 間取り 専有面積 | 築年数 | 最寄り駅 所在地 | キープ | 詳細 |
|---|---|---|---|---|---|---|---|
マンション ダフゴ第3マンション(3DK/4階) | |||||||
| 7万円 5,000円 | なし 7万円 | 3DK 50m2 | 築39年 | 阪急電鉄京都線 上新庄駅 徒歩9分 阪急電鉄千里線 下新庄駅 徒歩14分 阪急電鉄京都線 相川駅 徒歩23分 大阪府大阪市東淀川区上新庄2丁目3-12 | 詳細を見る | ||
マンション エスリードレジデンス ザ・グラン 梅田イースト(1LDK/11階) | |||||||
| 10.4万円 1.5万円 | なし なし | 1LDK 28.12m2 | 新築 | 大阪市堺筋線 天神橋筋六丁目駅 徒歩3分 阪急電鉄千里線 天神橋筋六丁目駅 徒歩3分 大阪市谷町線 天神橋筋六丁目駅 徒歩3分 大阪府大阪市北区浮田1丁目4-17 | 詳細を見る | ||
マンション エスグランデ中崎町(1LDK/1階) | |||||||
| 12.55万円 1.5万円 | なし なし | 1LDK 34.64m2 | 築2年 | 大阪市谷町線 中崎町駅 徒歩4分 大阪環状線 天満駅 徒歩6分 大阪市堺筋線 扇町駅(大阪) 徒歩7分 大阪府大阪市北区黒崎町3-8 | 詳細を見る | ||
マンション ブリエウメキタ(2LDK/6階) | |||||||
| 13.8万円 1.1万円 | なし 40万円 | 2LDK 51.83m2 | 築9年 | 阪急電鉄宝塚線 中津駅(阪急) 徒歩7分 大阪市御堂筋線 中津駅(大阪メトロ) 徒歩13分 福知山線 大阪駅 徒歩17分 大阪府大阪市北区中津7丁目5-24 | 詳細を見る | ||
マンション 久光マンション(2LDK/1階) | |||||||
![]() | 10.9万円 1.5万円 | なし 10.9万円 | 2LDK 47m2 | 築32年 | 大阪市今里筋線 だいどう豊里駅 徒歩10分 大阪市谷町線 太子橋今市駅 徒歩18分 京阪電気鉄道京阪線 土居駅 徒歩23分 大阪府大阪市東淀川区豊里3丁目 | 詳細を見る | |
マンション ノース VILLAGE BIRTH PLACE(1K/6階) | |||||||
| 11.7万円 1万円 | なし 11.7万円 | 1K 40.89m2 | 築15年 | 阪急電鉄神戸線 中津駅(阪急) 徒歩1分 大阪市御堂筋線 中津駅(大阪メトロ) 徒歩7分 大阪環状線 大阪駅 徒歩17分 大阪府大阪市北区中津6丁目2-16 | 詳細を見る | ||
アパート VILLA 41 YAMATE SUITA(2LDK/1階) | |||||||
| 11.6万円 6,000円 | なし 11.6万円 | 2LDK 42.17m2 | 築1年 | 阪急電鉄千里線 豊津駅(大阪) 徒歩8分 阪急電鉄千里線 吹田駅(阪急) 徒歩15分 東海道本線 吹田駅(JR) 徒歩21分 大阪府吹田市山手町1丁目11-19 | 詳細を見る | ||
マンション BPRレジデンス天満橋(1K/9階) | |||||||
| 8.19万円 8,000円 | 8.19万円 なし | 1K 24.03m2 | 築6年 | 大阪環状線 天満駅 徒歩6分 大阪市堺筋線 扇町駅(大阪) 徒歩9分 大阪環状線 桜ノ宮駅 徒歩12分 大阪府大阪市北区天満橋3丁目5-36 | 詳細を見る | ||
豊中市の町名から探す
豊中市の部屋を間取りから探す
豊中市の駅から探す
豊中市と隣接している市区町村から探す
- 豊中市(5,200)
- 大阪市都島区(1,962)
- 大阪市福島区(2,505)
- 大阪市此花区(403)
- 大阪市西区(5,016)
- 大阪市港区(1,382)
- 大阪市大正区(921)
- 大阪市天王寺区(1,472)
- 大阪市浪速区(4,032)
- 大阪市西淀川区(2,162)
- 大阪市東淀川区(4,804)
- 大阪市東成区(2,819)
- 大阪市生野区(1,797)
- 大阪市旭区(2,129)
- 大阪市城東区(2,440)
- 大阪市阿倍野区(1,547)
- 大阪市住吉区(2,094)
- 大阪市東住吉区(2,008)
- 大阪市西成区(699)
- 大阪市淀川区(5,532)
- 大阪市鶴見区(1,105)
- 大阪市住之江区(963)
- 大阪市平野区(1,852)
- 大阪市北区(5,695)
- 大阪市中央区(5,768)
- 池田市(1,647)
- 吹田市(6,440)
- 箕面市(1,730)


