賃貸マンション
クロスゲート青葉台の賃貸物件情報(2LDK/4階)
| 家賃 | 管理費等 | 敷金 | 礼金 | 間取り | 専有面積 |
|---|---|---|---|---|---|
| 21.9万円 | 1.5万円 | 21.9万円 | 21.9万円 | 2LDK | 72.46m2 |
入居決定でお祝い金最大100,000円
Point
急行停車の青葉台駅徒歩3分 駅前に商業施設が充実 オートロック、防犯カメラ、宅配BOX、エレベーター、システムキッチン、追い焚き、バス乾燥、温水洗浄便座、対面カウンターキッチン完備
提供:(株)マイホームワン本店(SUUMO経由)

詳細情報 クロスゲート青葉台
物件紹介
クロスゲート青葉台は東急田園都市線青葉台駅から徒歩3分にあり、駅近で通勤通学に便利なマンションです。
このお部屋は2階以上に位置しているので、通行人や周囲の住人からの視線が気になりにくく、防犯面でも安心。建物のエントランスはオートロックがついており、インターホンにはTVモニタもついているため、相手の顔を確認してから来客対応することができます。
人気の南向き・フローリングのお部屋。角部屋でもあるため、周囲の居住者の生活音も気になりにくい場所です。キッチンはシステムキッチン仕様になっていますので、お料理好きの方にもぴったり。バス・トイレは別なので、のんびりお風呂タイムも楽しめるでしょう。また、雨の日でも浴室乾燥機を使えば、お洗濯も問題ありません。
通信設備面では、インターネットが無料で使えるので、月々の出費を抑えられるのも魅力です(別途工事等が必要な場合あり)。
建物にはエレベーターがついているので、重い荷物があっても安心。共用部には宅配ボックスが設定されているので、不在の時にも荷物を受け取ることができます。
このお部屋は2階以上に位置しているので、通行人や周囲の住人からの視線が気になりにくく、防犯面でも安心。建物のエントランスはオートロックがついており、インターホンにはTVモニタもついているため、相手の顔を確認してから来客対応することができます。
人気の南向き・フローリングのお部屋。角部屋でもあるため、周囲の居住者の生活音も気になりにくい場所です。キッチンはシステムキッチン仕様になっていますので、お料理好きの方にもぴったり。バス・トイレは別なので、のんびりお風呂タイムも楽しめるでしょう。また、雨の日でも浴室乾燥機を使えば、お洗濯も問題ありません。
通信設備面では、インターネットが無料で使えるので、月々の出費を抑えられるのも魅力です(別途工事等が必要な場合あり)。
建物にはエレベーターがついているので、重い荷物があっても安心。共用部には宅配ボックスが設定されているので、不在の時にも荷物を受け取ることができます。
お金・契約の情報
※「-」と表示されているものは、実際は料金が発生するものもございます。詳細はお問い合わせください。
| 家賃 | 21.9万円 | 管理費・共益費 | 1.5万円 |
|---|---|---|---|
| 敷金 | 21.9万円 | 礼金 | 21.9万円 |
| 入居決定でお祝い金最大100,000円 | |||
| 保証金 | - | 償却・敷引 | - |
| 住宅保険料 | - | 更新料 | - |
| 保証会社利用 | 必須 | 保証会社名 | - |
| 保証会社費用 | - | 保証会社備考 | 保証会社利用必 初回契約時:50%、月額:1.5% |
| 契約形態 | 定期借家 | 契約期間 | 3年 |
| 入居・引渡期間 | 即時 | 現況 | - |
| 契約備考 | ご見学は、物件現地や駅での待合わせも可能です。ネット掲載以外にも、沢山の物件を取り扱ってます。ご要望に沿ってご提案致します。お気軽にお問い合わせ下さい。 合計3.3万円(内訳:ダスキンムシ駆除サービス1.65万円除菌消臭サービス1.65万円) 安心サポート24 月額1100円 2LDK 二人入居可/子供可/ルームシェア不可 定期借家3年 損保【1.3万円1年】 バストイレ別、バルコニー、エアコン、ガスコンロ対応、クロゼット、フローリング、シャワー付洗面台、TVインターホン、浴室乾燥機、オートロック、室内洗濯置、シューズボックス、システムキッチン、追焚機能浴室、角住戸、温水洗浄便座、脱衣所、エレベーター、洗面所独立、洗面化粧台、駐輪場、宅配ボックス、外壁タイル張り、即入居可、3口以上コンロ、対面式キッチン、防犯カメラ、独立型キッチン、全居室収納、オートバス、グリル付、全居室洋室、保証人不要、全居室フローリング、2面バルコニー、玄関ホール、ネット使用料不要、LDK20畳以上、複層ガラス、南面リビング、敷地内ごみ置き場、都市ガス、保証会社利用可、IT重説対応物件 | ||
部屋の情報
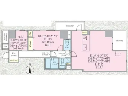
| 間取り | 2LDK | 専有面積 | 72.46m2 |
|---|---|---|---|
| 所在階 / 向き | 4階 / 東 | バルコニー面積 | - |
| 水道 / ガス | - | ||
| 設備 | バス・トイレ別、2階以上、オートロック、テレビドアホン、宅配ボックス、浴室乾燥機、追い焚き、インターネット対応、システムキッチン、エアコン、エレベーター、温水洗浄便座、南向き、角部屋、バルコニー、フローリング、洗髪洗面化粧台、2口コンロ、コンロ:ガス、インターネット使用料無料、洗濯機:室内 | ||
| 当社物件ID | 158059155 | ||
建物の情報
| 建物名 | クロスゲート青葉台 | ||
|---|---|---|---|
| 所在地 | 神奈川県横浜市青葉区榎が丘 | ||
| 交通 | 東急田園都市線 青葉台駅 徒歩3分 | ||
| 階数 | 8階建 | 総戸数 | 20戸 |
| 築年月 | 2025年02月 / 築1年 | エレベーター | あり |
| 駐車場 | なし | バイク置き場 | - |
| 駐輪場 | あり | 管理人/管理会社 | - |
| 周辺環境 | その他 青葉台幼稚園(幼稚園・保育園)まで209m その他 横浜市立榎が丘小学校(小学校)まで762m その他 横浜市立青葉台中学校(中学校)まで894m その他 まいばすけっと 青葉台駅南店(スーパー)まで111m その他 青葉台東急スクエアSouth-1本館(ショッピングセンター)まで119m その他 MEGAドン・キホーテ 横浜青葉台店(その他)まで345m | ||
| 建物種別 | マンション | 建物構造 | RC(鉄筋コンクリート) |
この部屋の取扱い不動産会社
| 会社名 | (株)マイホームワン本店(SUUMO経由) | ||
|---|---|---|---|
| 所在地 | 神奈川県川崎市宮前区宮崎2-12-1 宮崎台プラザビルB103 | 交通 | - |
| 営業時間 | 10時~19時 | 定休日 | 毎週水曜日(火曜不定休) |
| 免許番号 | 神奈川県知事31573 | 取引態様 | 仲介 |
| 不動産会社管理番号 | 100413826072 | 当社管理番号 | 89 |
| 所属団体 | (公社)神奈川県宅地建物取引業協会会員 | ||
| 公正取引協議会 | (公社)首都圏不動産公正取引協議会加盟 | ||
| 取扱い物件情報 | 物件詳細へ | ||
※各種情報と現状に差異がある場合は、現状優先となります。問い合わせをすることで、より詳しい条件、情報を確認する事ができます。
提供:(株)マイホームワン本店(SUUMO経由)
この物件が気になったら掲載期限まであと10日
クロスゲート青葉台に条件(家賃・エリア)が近い物件一覧
| 写真 | 家賃 管理費等 | 敷金 礼金 | 間取り 専有面積 | 築年数 | 最寄り駅 所在地 | キープ | 詳細 |
|---|---|---|---|---|---|---|---|
マンション パティオたまプラーザ(2LDK/2階) | |||||||
![]() | 16.5万円 1万円 | 16.5万円 なし | 2LDK 59.37m2 | 築29年 | 東急田園都市線 たまプラーザ駅 徒歩5分 東急田園都市線 あざみ野駅 徒歩14分 東急田園都市線 鷺沼駅 徒歩23分 神奈川県横浜市青葉区美しが丘 | 詳細を見る | |
マンション AF ペット共生 カーサ・モンテカミーノ(2LDK/3階) | |||||||
![]() | 16.9万円 1.1万円 | 16.9万円 16.9万円 | 2LDK 55.82m2 | 新築 | 東急田園都市線 中央林間駅 徒歩8分 小田急江ノ島線 南林間駅 徒歩17分 小田急江ノ島線 鶴間駅 徒歩23分 神奈川県大和市中央林間 | 詳細を見る | |
アパート D PAINA EGAWA I(2LDK/3階) | |||||||
![]() | 16.3万円 6,500円 | なし 32.6万円 | 2LDK 54.31m2 | 新築 | 京浜急行電鉄大師線 小島新田駅 徒歩1分 神奈川県川崎市川崎区江川2丁目 | 詳細を見る | |
マンション ブランシエスタ新丸子リバーフロント(2LDK/7階) | |||||||
![]() | 19.5万円 2万円 | 19.5万円 19.5万円 | 2LDK 40.35m2 | 新築 | 東急東横線 新丸子駅 徒歩8分 神奈川県川崎市中原区上丸子八幡町 | 詳細を見る | |
アパート ビューラー鷺沼Ⅶ(2LDK/1階) | |||||||
![]() | 17.2万円 5,000円 | なし 34.4万円 | 2LDK 50.47m2 | 新築 | 東急田園都市線 鷺沼駅 徒歩9分 神奈川県川崎市宮前区小台1丁目 | 詳細を見る | |
マンション ARTORYSⅡ(1LDK/3階) | |||||||
![]() | 13.2万円 6,000円 | 13.2万円 19.8万円 | 1LDK 46.3m2 | 築4年 | 東海道本線 辻堂駅 徒歩8分 神奈川県藤沢市辻堂新町2丁目 | 詳細を見る | |
一戸建て 湘南新宿ライン宇須 北鎌倉駅 徒歩14分 築52年(6DK) | |||||||
![]() | 15万円 なし | 30万円 15万円 | 6DK 130.22m2 | 築52年 | 湘南新宿ライン宇須 北鎌倉駅 徒歩14分 神奈川県鎌倉市山ノ内 | 詳細を見る | |
マンション ウィズプラス大船(3LDK/2階) | |||||||
![]() | 25.7万円 9,500円 | なし 51.4万円 | 3LDK 84.82m2 | 新築 | JR東海道本線 大船駅 徒歩10分 神奈川県鎌倉市玉縄 | 詳細を見る | |








