賃貸マンション
OROKUIIの賃貸物件情報(1K/2階)
| 家賃 | 管理費等 | 敷金 | 礼金 | 間取り | 専有面積 |
|---|---|---|---|---|---|
| 5.7万円 | 6,500円 | なし | 5.7万円 | 1K | 23.18m2 |
入居決定でお祝い金最大100,000円
- 保証金
- -
- 償却・敷引
- -
- 築年数
- 築23年
- 所在階
- 2階
- 向き
- 北西
Point
☆敷金0、仲介手数料0、家具家電付き(TV、冷蔵庫、洗濯機、電子レンジ、エアコン、カーテン、テーブル)インターネットWiFi対応、バストイレ別、室内洗濯機置場、クローゼット有り等々設備も充実☆
提供:(株)成家沖縄店(SUUMO経由)

詳細情報 OROKUII
物件紹介
OROKUIIは沖縄都市モノレール奥武山公園駅から徒歩13分にあるマンションです。
このお部屋は2階以上に位置しているので、通行人や周囲の住人からの視線が気になりにくく、防犯面でも安心です。
フローリングのお部屋なのでお掃除もラクラク。バス・トイレ別の仕様で、のんびりお風呂タイムも楽しめます。また、浴室乾燥機を使えば、雨の日でもお洗濯は問題ありません。
通信設備面では、インターネット接続が可能です(別途工事、契約料が必要な場合あり)。
共用部には宅配ボックスが設定されているので、不在の時にも荷物を受け取ることができます。
このお部屋は2階以上に位置しているので、通行人や周囲の住人からの視線が気になりにくく、防犯面でも安心です。
フローリングのお部屋なのでお掃除もラクラク。バス・トイレ別の仕様で、のんびりお風呂タイムも楽しめます。また、浴室乾燥機を使えば、雨の日でもお洗濯は問題ありません。
通信設備面では、インターネット接続が可能です(別途工事、契約料が必要な場合あり)。
共用部には宅配ボックスが設定されているので、不在の時にも荷物を受け取ることができます。
お金・契約の情報
※「-」と表示されているものは、実際は料金が発生するものもございます。詳細はお問い合わせください。
| 家賃 | 5.7万円 | 管理費・共益費 | 6,500円 |
|---|---|---|---|
| 敷金 | なし | 礼金 | 5.7万円 |
| 入居決定でお祝い金最大100,000円 | |||
| 保証金 | - | 償却・敷引 | - |
| 住宅保険料 | - | 更新料 | - |
| 保証会社利用 | 必須 | 保証会社名 | - |
| 保証会社費用 | - | 保証会社備考 | 保証会社利用必 初回保証料:月額利用料100% 120% 未成年者は親権者連帯保証人必須 |
| 契約形態 | - | 契約期間 | - |
| 入居・引渡期間 | - | 現況 | - |
| 契約備考 | 巡回管理/☆ご見学の際は現地や最寄駅でのお待ち合わせ可能です☆○環境維持費:月額550円(税込)○鍵交換費:16500円(税込)○保証委託料(個人のみ):利用料の100%120%〇抗菌施工:18040円(任意)〇サポートシステムプラス:18975円(任意)〇インターネットWiFi:2640円(税込) 合計1.65万円(内訳:鍵交換代1.65万円) 室内清掃費用 41800円 環境維持費 月額550円 1K 二人入居可/事務所利用不可 普通借家2年 損保【1.99万円2年】 バストイレ別、バルコニー、エアコン、クロゼット、フローリング、浴室乾燥機、室内洗濯置、シューズボックス、2口コンロ、駐輪場、宅配ボックス、光ファイバー、敷金不要、照明付、電気コンロ、保証人不要、冷蔵庫、仲介手数料不要、洗濯機、電子キー、電子レンジ、ベッド、家電付、家具付、カーテン付、2駅利用可、3駅以上利用可、プロパンガス、年内入居可、礼金1ヶ月、全室照明付、テレビ 入居日:'26年5月上旬 | ||
部屋の情報
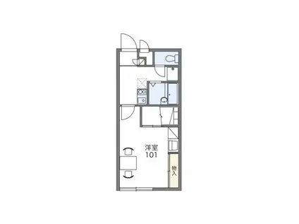
| 間取り | 1K | 専有面積 | 23.18m2 |
|---|---|---|---|
| 所在階 / 向き | 2階 / 北西 | バルコニー面積 | - |
| 水道 / ガス | - | ||
| 設備 | バス・トイレ別、2階以上、宅配ボックス、浴室乾燥機、インターネット対応、エアコン、バルコニー、フローリング、2口コンロ、洗濯機:室内 | ||
| 当社物件ID | 160507778 | ||
建物の情報
| 建物名 | OROKUII | ||
|---|---|---|---|
| 所在地 | 沖縄県那覇市 | ||
| 交通 | 沖縄都市モノレール 奥武山公園駅 徒歩13分 沖縄都市モノレール 小禄駅 徒歩21分 沖縄都市モノレール 壺川駅 徒歩23分 | ||
| 階数 | 3階建 | 総戸数 | - |
| 築年月 | 2003年10月 / 築23年 | エレベーター | - |
| 駐車場 | なし | バイク置き場 | - |
| 駐輪場 | あり | 管理人/管理会社 | - |
| 周辺環境 | その他 沖縄ファミリーマート 那覇鏡原中学校前店(コンビニ)まで146m その他 ローソン 那覇鏡原町店(コンビニ)まで724m その他 沖縄ファミリーマート 那覇小禄一丁目店(コンビニ)まで221m | ||
| 建物種別 | マンション | 建物構造 | RC(鉄筋コンクリート) |
この部屋の取扱い不動産会社
| 会社名 | (株)成家沖縄店(SUUMO経由) | ||
|---|---|---|---|
| 所在地 | 沖縄県那覇市泉崎1-12-15 Unufa2階 | 交通 | - |
| 営業時間 | 10:00~19:00 | 定休日 | - |
| 免許番号 | 国土交通大臣8091 | 取引態様 | 仲介 |
| 不動産会社管理番号 | 100352980230 | 当社管理番号 | 89 |
| 所属団体 | (公社)沖縄県宅地建物取引業協会会員 | ||
| 公正取引協議会 | (一社)九州不動産公正取引協議会加盟 | ||
| 取扱い物件情報 | 物件詳細へ | ||
※各種情報と現状に差異がある場合は、現状優先となります。問い合わせをすることで、より詳しい条件、情報を確認する事ができます。
提供:(株)成家沖縄店(SUUMO経由)
この物件が気になったら掲載期限まであと11日
OROKUIIに条件(家賃・エリア)が近い物件一覧
| 写真 | 家賃 管理費等 | 敷金 礼金 | 間取り 専有面積 | 築年数 | 最寄り駅 所在地 | キープ | 詳細 |
|---|---|---|---|---|---|---|---|
マンション シティ フラット(1DK/2階) | |||||||
![]() | 7万円 4,100円 | なし 11万円 | 1DK 32.83m2 | 築5年 | 沖縄都市モノレール 壺川駅 徒歩18分 沖縄県那覇市楚辺 | 詳細を見る | |
アパート ウィングスヒル上原(1K/6階) | |||||||
![]() | 3.5万円 3,000円 | なし なし | 1K 23.8m2 | 築30年 | 沖縄県中頭郡西原町 | 詳細を見る | |
アパート プログレスマンション(1K/6階) | |||||||
![]() | 4.2万円 4,000円 | なし なし | 1K 22m2 | 築6年 | 沖縄都市モノレール 旭橋駅 徒歩11分 沖縄都市モノレール 県庁前駅(沖縄) 徒歩15分 沖縄都市モノレール 壺川駅 徒歩20分 沖縄県那覇市辻 | 詳細を見る | |
アパート ウィル久茂地(1LDK/5階) | |||||||
![]() | 9.1万円 6,000円 | 9.1万円 9.1万円 | 1LDK 31.12m2 | 築1年 | 沖縄都市モノレール 県庁前駅(沖縄) 徒歩6分 沖縄都市モノレール 美栄橋駅 徒歩7分 沖縄県那覇市久茂地2丁目 | 詳細を見る | |
マンション 沖縄都市モノレール 古島駅 徒歩13分 築21年(1K/2階) | |||||||
![]() | 5.1万円 6,500円 | なし 5.1万円 | 1K 22m2 | 築21年 | 沖縄都市モノレール 古島駅 徒歩13分 沖縄都市モノレール 市立病院前駅(沖縄) 徒歩20分 沖縄都市モノレール おもろまち駅 徒歩25分 沖縄県浦添市内間 | 詳細を見る | |
マンション レオパレス新都心ASAKA(1K/1階) | |||||||
![]() | 5.7万円 6,500円 | なし 5.7万円 | 1K 23.18m2 | 築21年 | 沖縄都市モノレール 古島駅 徒歩27分 沖縄県那覇市 | 詳細を見る | |
マンション サンハイツ泊(3DK/5階) | |||||||
![]() | 7.5万円 6,000円 | 22.5万円 なし | 3DK 59.28m2 | 築42年 | 沖縄都市モノレール 美栄橋駅 徒歩10分 沖縄都市モノレール 牧志駅 徒歩11分 沖縄県那覇市泊1丁目 | 詳細を見る | |
アパート オーシャンパレスMAKABI(1K/3階) | |||||||
![]() | 4.7万円 2,000円 | なし なし | 1K 26.12m2 | 築22年 | 沖縄都市モノレール 古島駅 徒歩9分 沖縄都市モノレール おもろまち駅 徒歩13分 沖縄県那覇市真嘉比 | 詳細を見る | |









