賃貸マンション
ザ・レジデンス横浜サウスの賃貸物件情報(ワンルーム/3階)
| 家賃 | 管理費等 | 敷金 | 礼金 | 間取り | 専有面積 |
|---|---|---|---|---|---|
| 8.8万円 | 7,000円 | 8.8万円 | なし | ワンルーム | 24.2m2 |
入居決定でお祝い金最大100,000円
Point
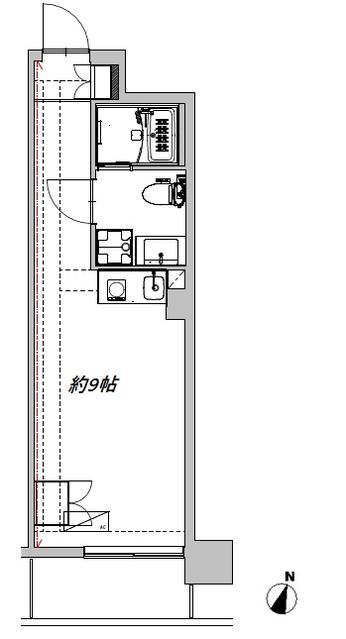
収納はシューズボックス・クロゼットなどが備え付けられているので、衣類や日用品の収納に重宝します。
提供:アパマンショップ大和駅前店

詳細情報 ザ・レジデンス横浜サウス
物件紹介
ザ・レジデンス横浜サウスは京浜急行電鉄本線戸部駅から徒歩2分にあり、駅近で通勤通学に便利なマンションです。
このお部屋は2階以上に位置しているので、通行人や周囲の住人からの視線が気になりにくく、防犯面でも安心。建物のエントランスはオートロックがついており、インターホンにはTVモニタもついているため、相手の顔を確認してから来客対応することができます。
おしゃれなデザイナーズ物件!人気の南向きのお部屋。また、フローリングなのでお掃除もラクラク。キッチンはシステムキッチン仕様になっていますので、お料理好きの方にもぴったり。また、バス・トイレは別で、のんびりお風呂タイムも楽しめるでしょう。
通信設備面では、インターネット接続が可能です。また、CATVにも対応しているので、おうち時間も充実するでしょう(別途工事、契約料が必要な場合あり)。
建物にはエレベーターがついているので、重い荷物があっても安心。共用部には宅配ボックスが設定されているので、不在の時にも荷物を受け取ることができます。
コンビニまで徒歩7分の場所にあり、日用品や食料品のお買い物にも便利です。
このお部屋は2階以上に位置しているので、通行人や周囲の住人からの視線が気になりにくく、防犯面でも安心。建物のエントランスはオートロックがついており、インターホンにはTVモニタもついているため、相手の顔を確認してから来客対応することができます。
おしゃれなデザイナーズ物件!人気の南向きのお部屋。また、フローリングなのでお掃除もラクラク。キッチンはシステムキッチン仕様になっていますので、お料理好きの方にもぴったり。また、バス・トイレは別で、のんびりお風呂タイムも楽しめるでしょう。
通信設備面では、インターネット接続が可能です。また、CATVにも対応しているので、おうち時間も充実するでしょう(別途工事、契約料が必要な場合あり)。
建物にはエレベーターがついているので、重い荷物があっても安心。共用部には宅配ボックスが設定されているので、不在の時にも荷物を受け取ることができます。
コンビニまで徒歩7分の場所にあり、日用品や食料品のお買い物にも便利です。
お金・契約の情報
※「-」と表示されているものは、実際は料金が発生するものもございます。詳細はお問い合わせください。
| 家賃 | 8.8万円 | 管理費・共益費 | 7,000円 |
|---|---|---|---|
| 敷金 | 8.8万円 | 礼金 | なし |
| 入居決定でお祝い金最大100,000円 | |||
| 保証金 | - | 償却・敷引 | - |
| 住宅保険料 | 1円 | 更新料 | - |
| その他費用 | 火災保険料:1.8万円 | ||
| 保証会社利用 | 必須 | 保証会社名 | オリコフォレントインシュア |
| 保証会社費用 | - | 保証会社備考 | 初回保証料:総賃料の50% 月額保証料:総賃料の1% |
| 契約形態 | - | 契約期間 | 2年 |
| 入居・引渡期間 | 2025年12月下旬 | 現況 | - |
| 契約備考 | 鍵交換費用:16500 その他設備/条件:室内洗濯機置き場、独立洗面台、防犯カメラ、クローゼット、シューズボックス、照明器具付き | ||
部屋の情報
| 間取り | ワンルーム | 専有面積 | 24.2m2 |
|---|---|---|---|
| 所在階 / 向き | 3階 / - | バルコニー面積 | - |
| 水道 / ガス | 水道【公営】、ガス【都市】 | ||
| 設備 | バス・トイレ別、テレビドアホン、宅配ボックス、エアコン、エレベーター、温水洗浄便座、バルコニー、フローリング、コンロ:IH、CATV、シャワー、給湯 | ||
| 当社物件ID | 159711226 | ||
建物の情報
| 建物名 | ザ・レジデンス横浜サウス | ||
|---|---|---|---|
| 所在地 | 神奈川県横浜市西区戸部本町 | ||
| 交通 | 京浜急行電鉄本線 戸部駅 徒歩3分 横浜市ブルーライン 高島町駅 徒歩4分 | ||
| 階数 | 10階建 | 総戸数 | - |
| 築年月 | 1987年10月 / 築39年 | エレベーター | あり |
| 駐車場 | 空無 | バイク置き場 | あり |
| 駐輪場 | あり | 管理人/管理会社 | - |
| 周辺環境 | コンビニ 徒歩7分(536m) 販売店 徒歩3分(226m) その他 ドラッグストア その他 公園 その他 銀行 その他 * | ||
| 建物種別 | マンション | 建物構造 | SRC(鉄骨鉄筋コンクリート) |
この部屋の取扱い不動産会社
| 会社名 | ハウスコム東神奈川株式会社 菊名店 | ||
|---|---|---|---|
| 所在地 | 神奈川県横浜市港北区1-6クレセント菊名1階 | 交通 | - |
| 営業時間 | 10:00~18:00 | 定休日 | - |
| 免許番号 | 神奈川県知事(1)第31769号 | 取引態様 | 仲介 |
| 不動産会社管理番号 | HC5-5093808-0303-0189 | 当社管理番号 | 468 |
| 所属団体 | 、 | ||
| 取扱い物件情報 | 物件詳細へ | ||
※各種情報と現状に差異がある場合は、現状優先となります。問い合わせをすることで、より詳しい条件、情報を確認する事ができます。
提供:ハウスコム東神奈川株式会社 菊名店
この物件が気になったら掲載期限まであと4日
ザ・レジデンス横浜サウスに条件(家賃・エリア)が近い物件一覧
| 写真 | 家賃 管理費等 | 敷金 礼金 | 間取り 専有面積 | 築年数 | 最寄り駅 所在地 | キープ | 詳細 |
|---|---|---|---|---|---|---|---|
アパート ウィンディアA棟(2DK/2階) | |||||||
![]() | 8.5万円 なし | 8.5万円 なし | 2DK 50.2m2 | 築32年 | 東急田園都市線 宮崎台駅 徒歩22分 グリーンライン 北山田駅(神奈川) 徒歩22分 東急田園都市線 宮前平駅 徒歩23分 神奈川県川崎市宮前区東有馬 | 詳細を見る | |
アパート グレース芦名(3DK/1階) | |||||||
![]() | 5.5万円 なし | 5.5万円 なし | 3DK 46.38m2 | 築36年 | 神奈川県横須賀市芦名 | 詳細を見る | |
マンション メインステージ横濱東口(1K/4階) | |||||||
![]() | 9.5万円 1.5万円 | なし 9.5万円 | 1K 21.78m2 | 築9年 | 東急東横線 横浜駅 徒歩5分 ブルーライン 高島町駅 徒歩5分 みなとみらい線 新高島駅 徒歩6分 神奈川県横浜市西区高島 | 詳細を見る | |
アパート サニーコート(1K/1階) | |||||||
![]() | 6.8万円 2,000円 | 6.8万円 なし | 1K 23.6m2 | 築22年 | JR南武線 武蔵新城駅 徒歩8分 JR南武線 武蔵中原駅 徒歩15分 神奈川県川崎市中原区上小田中 | 詳細を見る | |
マンション レオパレスアクセス登戸(1K/3階) | |||||||
![]() | 7.1万円 5,500円 | なし 7.1万円 | 1K 19.87m2 | 築18年 | 南武線 登戸駅 徒歩12分 神奈川県川崎市多摩区登戸新町 | 詳細を見る | |
アパート レオパレスブラッサム鎌倉(1K/2階) | |||||||
![]() | 6.2万円 5,000円 | なし 6.2万円 | 1K 19.87m2 | 築18年 | 湘南モノレール 湘南深沢駅 徒歩17分 神奈川県鎌倉市笛田1丁目 | 詳細を見る | |
アパート 小倉尾崎荘(2K/2階) | |||||||
![]() | 5.37万円 1,000円 | 5.37万円 5.37万円 | 2K 26.4m2 | 築54年 | JR南武線 矢向駅 徒歩18分 JR京浜東北線 川崎駅 徒歩28分 湘南新宿ライン宇須 新川崎駅 徒歩28分 神奈川県川崎市幸区小倉 | 詳細を見る | |
アパート リブリ・FEEL-M湘南7(1K/2階) | |||||||
![]() | 7.4万円 4,000円 | なし なし | 1K 26.08m2 | 築10年 | 江ノ島電鉄 石上駅 徒歩7分 東海道本線 藤沢駅 徒歩15分 神奈川県藤沢市片瀬 | 詳細を見る | |








