賃貸マンション
京王電鉄井の頭線 東松原駅 徒歩3分 3階建 築22年の賃貸物件情報(1LDK/1階)
| 家賃 | 管理費等 | 敷金 | 礼金 | 間取り | 専有面積 |
|---|---|---|---|---|---|
| 13.9万円 | 5,000円 | 13.9万円 | 13.9万円 | 1LDK | 39.8m2 |
入居決定でお祝い金最大100,000円
Point
共用部には宅配ボックスが付いているため、荷物を受け取るために早く帰宅する必要がありません。
提供:(株)REPLAY中目黒店(SUUMO経由)

詳細情報 京王電鉄井の頭線 東松原駅 徒歩3分 3階建 築22年
物件紹介
京王電鉄井の頭線東松原駅から徒歩3分にあり、駅近で通勤通学に便利なマンションです。
このお部屋は2階以上に位置しているので、通行人や周囲の住人からの視線が気になりにくく、防犯面でも安心。建物のエントランスはオートロックがついており、インターホンにはTVモニタもついているため、相手の顔を確認してから来客対応することができます。
おしゃれなデザイナーズ物件!人気の南向きのお部屋。また、フローリングなのでお掃除もラクラク。キッチンはシステムキッチン仕様になっていますので、お料理好きの方にもぴったり。バス・トイレは別なので、のんびりお風呂タイムも楽しめるでしょう。また、雨の日でも浴室乾燥機を使えば、お洗濯も問題ありません。
通信設備面では、インターネット接続が可能です。また、CATVにも対応しているので、おうち時間も充実するでしょう(別途工事、契約料が必要な場合あり)。
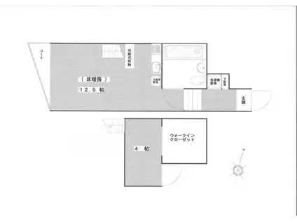
床暖房があり、冬も足元から暖かく快適に過ごすことができます。共用部には宅配ボックスが設定されているので、不在の時にも荷物を受け取ることができます。
このお部屋は2階以上に位置しているので、通行人や周囲の住人からの視線が気になりにくく、防犯面でも安心。建物のエントランスはオートロックがついており、インターホンにはTVモニタもついているため、相手の顔を確認してから来客対応することができます。
おしゃれなデザイナーズ物件!人気の南向きのお部屋。また、フローリングなのでお掃除もラクラク。キッチンはシステムキッチン仕様になっていますので、お料理好きの方にもぴったり。バス・トイレは別なので、のんびりお風呂タイムも楽しめるでしょう。また、雨の日でも浴室乾燥機を使えば、お洗濯も問題ありません。
通信設備面では、インターネット接続が可能です。また、CATVにも対応しているので、おうち時間も充実するでしょう(別途工事、契約料が必要な場合あり)。
床暖房があり、冬も足元から暖かく快適に過ごすことができます。共用部には宅配ボックスが設定されているので、不在の時にも荷物を受け取ることができます。
お金・契約の情報
※「-」と表示されているものは、実際は料金が発生するものもございます。詳細はお問い合わせください。
| 家賃 | 13.9万円 | 管理費・共益費 | 5,000円 |
|---|---|---|---|
| 敷金 | 13.9万円 | 礼金 | 13.9万円 |
| 入居決定でお祝い金最大100,000円 | |||
| 保証金 | - | 償却・敷引 | - |
| 住宅保険料 | 1円 | 更新料 | - |
| 保証会社利用 | 利用可 | 保証会社名 | - |
| 保証会社費用 | - | 保証会社備考 | 月額合計家賃のの60%〜 |
| 契約形態 | - | 契約期間 | 2年 |
| 入居・引渡期間 | 即時 | 現況 | - |
| 入居可能条件 | 事務所可、2人入居可 | ||
| 契約備考 | その他設備/条件:室内洗濯機置き場、シューズボックス、メゾネット、照明器具付き | ||
部屋の情報
| 間取り | 1LDK | 専有面積 | 39.8m2 |
|---|---|---|---|
| 所在階 / 向き | 1階 / 南西 | バルコニー面積 | - |
| 水道 / ガス | ガス【都市】 | ||
| 設備 | テレビドアホン、宅配ボックス、浴室乾燥機、光ファイバー対応、エアコン、バルコニー、フローリング、床暖房、2口コンロ、コンロ:ガス、デザイナーズ、CATV、シャワー、給湯 | ||
| 当社物件ID | 19104690 | ||
建物の情報
| 建物名 | 京王電鉄井の頭線 東松原駅 徒歩3分 3階建 築22年 | ||
|---|---|---|---|
| 所在地 | 東京都世田谷区松原5丁目 | ||
| 交通 | 京王電鉄井の頭線 東松原駅 徒歩3分 京王電鉄井の頭線 明大前駅 徒歩8分 | ||
| 階数 | 3階建 | 総戸数 | 8戸 |
| 築年月 | 2004年11月 / 築22年 | エレベーター | - |
| 駐車場 | - | バイク置き場 | あり |
| 駐輪場 | あり | 管理人/管理会社 | - |
| 周辺環境 | その他 ドラッグストア その他 公園 その他 銀行 その他 * | ||
| 建物種別 | マンション | 建物構造 | RC(鉄筋コンクリート) |
この部屋の取扱い不動産会社
| 会社名 | ハウスコム東神奈川株式会社 溝の口店 | ||
|---|---|---|---|
| 所在地 | 神奈川県川崎市高津区8-1溝ノ口丸広ビル1階 | 交通 | - |
| 営業時間 | 10:00~18:00 | 定休日 | - |
| 免許番号 | 神奈川県知事(1)第31769号 | 取引態様 | 仲介 |
| 不動産会社管理番号 | HC4-3042604-C-0073 | 当社管理番号 | 468 |
| 所属団体 | 、 | ||
| 取扱い物件情報 | 物件詳細へ | ||
※各種情報と現状に差異がある場合は、現状優先となります。問い合わせをすることで、より詳しい条件、情報を確認する事ができます。
提供:ハウスコム東神奈川株式会社 溝の口店
この物件が気になったら掲載期限まであと4日
京王電鉄井の頭線 東松原駅 徒歩3分 3階建 築22年に条件(家賃・エリア)が近い物件一覧
| 写真 | 家賃 管理費等 | 敷金 礼金 | 間取り 専有面積 | 築年数 | 最寄り駅 所在地 | キープ | 詳細 |
|---|---|---|---|---|---|---|---|
マンション XEBEC池上Ⅱ(1K/2階) | |||||||
![]() | 9.3万円 8,000円 | なし 9.3万円 | 1K 25.65m2 | 築11年 | 東急池上線 池上駅 徒歩8分 東急多摩川線 武蔵新田駅 徒歩14分 京浜東北・根岸線 蒲田駅 徒歩26分 東京都大田区池上3丁目 | 詳細を見る | |
マンション SEED JUST B-BASE Ⅱ(1LDK/2階) | |||||||
![]() | 10.1万円 1.5万円 | 10.1万円 10.1万円 | 1LDK 29.92m2 | 新築 | 東京モノレール羽田 昭和島駅 徒歩11分 京浜急行電鉄本線 梅屋敷駅(東京) 徒歩19分 東京都大田区大森南4丁目 | 詳細を見る | |
マンション FORTUNA(1K/2階) | |||||||
![]() | 11万円 6,000円 | 6万円 16.5万円 | 1K 33.75m2 | 築13年 | 小田急線 千歳船橋駅 徒歩9分 小田急線 祖師ケ谷大蔵駅 徒歩22分 小田急線 経堂駅 徒歩25分 東京都世田谷区桜丘 | 詳細を見る | |
マンション レジディア蒲田Ⅳ(1K/7階) | |||||||
![]() | 11.2万円 1.5万円 | なし なし | 1K 21.39m2 | 築12年 | 京浜急行電鉄本線 京急蒲田駅 徒歩5分 京浜急行電鉄空港線 京急蒲田駅 徒歩5分 京浜東北・根岸線 蒲田駅 徒歩11分 東京都大田区蒲田4丁目 | 詳細を見る | |
アパート セレスティア下丸子(2LDK/3階) | |||||||
![]() | 19万円 6,000円 | なし 38万円 | 2LDK 48.93m2 | 新築 | 東急多摩川線 武蔵新田駅 徒歩7分 東京都大田区下丸子2丁目 | 詳細を見る | |
マンション ラティエラ大鳥居(1LDK/8階) | |||||||
![]() | 18.8万円 1.2万円 | 18.8万円 18.8万円 | 1LDK 41.07m2 | 築4年 | 京急空港線 大鳥居駅 徒歩6分 京急空港線 糀谷駅 徒歩9分 京急空港線 穴守稲荷駅 徒歩17分 東京都大田区萩中 | 詳細を見る | |
マンション MIA CASA Ⅱ(1K/4階) | |||||||
![]() | 12.5万円 1万円 | 12.5万円 18.75万円 | 1K 27m2 | 築10年 | 京浜東北・根岸線 蒲田駅 徒歩6分 東急多摩川線 蒲田駅 徒歩8分 京浜急行電鉄本線 京急蒲田駅 徒歩13分 東京都大田区西蒲田5丁目 | 詳細を見る | |
アパート M SONIA KUGAHARA(ワンルーム/1階) | |||||||
![]() | 9.1万円 3,000円 | 9.1万円 13.65万円 | ワンルーム 24.64m2 | 築1年 | 東急池上線 久が原駅 徒歩8分 東急池上線 御嶽山駅 徒歩9分 東京都大田区西嶺町 | 詳細を見る | |









