賃貸マンション
シーズンフラッツ押上フィオーレの賃貸物件情報(2LDK/11階)
| 家賃 | 管理費等 | 敷金 | 礼金 | 間取り | 専有面積 |
|---|---|---|---|---|---|
| 27.5万円 | 2万円 | 27.5万円 | なし | 2LDK | 53.76m2 |
入居決定でお祝い金最大100,000円
- 保証金
- -
- 償却・敷引
- -
- 築年数
- 新築
- 所在階
- 11階
- 向き
- -
Point
WEB相談・WEB内見・IT重説に対応。来店不要でご契約まで可能です。詳細はお問い合わせください。お部屋探しはタウンハウジング錦糸町店へ!
提供:(株)CreaVision(SUUMO経由)

詳細情報 シーズンフラッツ押上フィオーレ
物件紹介
シーズンフラッツ押上フィオーレは都営浅草線押上駅から徒歩4分にあり、駅近で通勤通学に便利なマンションです。
このお部屋は2階以上に位置しているので、通行人や周囲の住人からの視線が気になりにくく、防犯面でも安心。建物のエントランスはオートロックがついており、インターホンにはTVモニタもついているため、相手の顔を確認してから来客対応することができます。
おしゃれなデザイナーズ物件!人気の角部屋で周囲の居住者の生活音も気になりにくく、また、フローリングのお部屋なのでお掃除もラクラク。室内にはウォークインクローゼットがありますので、たくさんの荷物も効率的に収納ができます。キッチンはシステムキッチン仕様になっていますので、お料理好きの方にもぴったり。バス・トイレは別なので、のんびりお風呂タイムも楽しめるでしょう。また、雨の日でも浴室乾燥機を使えば、お洗濯も問題ありません。
通信設備面では、インターネットが無料で使えるので、月々の出費を抑えられるのも魅力です。また、BSアンテナ・CSアンテナもありますので、おうち時間も充実するでしょう(別途工事、BS・CSの契約料等が必要な場合あり)。
建物にはエレベーターがついているので、重い荷物があっても安心。共用部には宅配ボックスが設定されているので、不在の時にも荷物を受け取ることができます。
このお部屋は2階以上に位置しているので、通行人や周囲の住人からの視線が気になりにくく、防犯面でも安心。建物のエントランスはオートロックがついており、インターホンにはTVモニタもついているため、相手の顔を確認してから来客対応することができます。
おしゃれなデザイナーズ物件!人気の角部屋で周囲の居住者の生活音も気になりにくく、また、フローリングのお部屋なのでお掃除もラクラク。室内にはウォークインクローゼットがありますので、たくさんの荷物も効率的に収納ができます。キッチンはシステムキッチン仕様になっていますので、お料理好きの方にもぴったり。バス・トイレは別なので、のんびりお風呂タイムも楽しめるでしょう。また、雨の日でも浴室乾燥機を使えば、お洗濯も問題ありません。
通信設備面では、インターネットが無料で使えるので、月々の出費を抑えられるのも魅力です。また、BSアンテナ・CSアンテナもありますので、おうち時間も充実するでしょう(別途工事、BS・CSの契約料等が必要な場合あり)。
建物にはエレベーターがついているので、重い荷物があっても安心。共用部には宅配ボックスが設定されているので、不在の時にも荷物を受け取ることができます。
お金・契約の情報
※「-」と表示されているものは、実際は料金が発生するものもございます。詳細はお問い合わせください。
| 家賃 | 27.5万円 | 管理費・共益費 | 2万円 |
|---|---|---|---|
| 敷金 | 27.5万円 | 礼金 | なし |
| フリーレント | あり | ||
| 入居決定でお祝い金最大100,000円 | |||
| 保証金 | - | 償却・敷引 | - |
| 住宅保険料 | - | 更新料 | - |
| 保証会社利用 | 必須 | 保証会社名 | - |
| 保証会社費用 | - | 保証会社備考 | 保証会社利用必 賃貸保証料:0.25ヶ月 |
| 契約形態 | - | 契約期間 | - |
| 入居・引渡期間 | - | 現況 | - |
| 契約備考 | お部屋の詳細はどんなことでもお問い合わせください!【初期費用一部クレジット決済相談可】 更新料新賃料(ヶ月):1.00ヶ月 2LDK 単身者可/二人入居可/フリーレント2ヶ月賃料のみ・短期解約違約金有 普通借家2年 損保【要】 バストイレ別、バルコニー、エアコン、ガスコンロ対応、クロゼット、フローリング、TVインターホン、浴室乾燥機、オートロック、室内洗濯置、シューズボックス、システムキッチン、追焚機能浴室、角住戸、温水洗浄便座、脱衣所、洗面所独立、洗面化粧台、駐輪場、宅配ボックス、光ファイバー、外壁タイル張り、礼金不要、2面採光、BS・CS、3口以上コンロ、対面式キッチン、防犯カメラ、オートバス、全居室洋室、ウォークインクロゼット、保証人不要、単身者相談、敷金1ヶ月、二人入居相談、全居室フローリング、2沿線利用可、ネット専用回線、駅まで平坦、ネット使用料不要、フリーレント、保証金不要、1フロア2住戸、24時間換気システム、築3年以内、人感照明センサー、始発駅、2駅利用可、3駅以上利用可、3沿線以上利用可、24時間ゴミ出し可、敷地内ごみ置き場、築5年以内、都市ガス、洗面所にドア、玄関収納、高速ネット対応、マルチメディアコンセント、IT重説対応物件、初期費用カード決済可 入居日:'26年3月中旬 | ||
部屋の情報
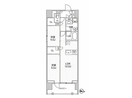
| 間取り | 2LDK | 専有面積 | 53.76m2 |
|---|---|---|---|
| 所在階 / 向き | 11階 / - | バルコニー面積 | - |
| 水道 / ガス | - | ||
| 設備 | バス・トイレ別、2階以上、オートロック、テレビドアホン、宅配ボックス、浴室乾燥機、ウォークインクローゼット、追い焚き、インターネット対応、システムキッチン、エアコン、温水洗浄便座、角部屋、バルコニー、フローリング、洗髪洗面化粧台、2口コンロ、コンロ:ガス、CSアンテナ、BSアンテナ、インターネット使用料無料、洗濯機:室内 | ||
| 当社物件ID | 160500631 | ||
建物の情報
| 建物名 | シーズンフラッツ押上フィオーレ | ||
|---|---|---|---|
| 所在地 | 東京都墨田区業平 | ||
| 交通 | 都営浅草線 押上駅 徒歩4分 東京メトロ半蔵門線 錦糸町駅 徒歩14分 都営浅草線 本所吾妻橋駅 徒歩16分 | ||
| 階数 | 12階建 | 総戸数 | - |
| 築年月 | 2026年03月 / 新築 | エレベーター | - |
| 駐車場 | なし | バイク置き場 | - |
| 駐輪場 | あり | 管理人/管理会社 | - |
| 周辺環境 | その他 東京ソラマチ(ショッピングセンター)まで690m その他 オリナス(ショッピングセンター)まで640m その他 ライフ(スーパー)まで190m その他 東武ストア業平店(スーパー)まで440m その他 ドラッグセイムス墨田横川店(ドラッグストア)まで330m | ||
| 建物種別 | マンション | 建物構造 | RC(鉄筋コンクリート) |
この部屋の取扱い不動産会社
| 会社名 | (株)タウンハウジング東京 錦糸町店(SUUMO経由) | ||
|---|---|---|---|
| 所在地 | 東京都墨田区江東橋2-14-6 JU錦糸町駅前ビル1階 | 交通 | - |
| 営業時間 | AM10:00~PM7:00 | 定休日 | 水曜日 |
| 免許番号 | 国土交通大臣9926 | 取引態様 | 仲介 |
| 不動産会社管理番号 | 100491502329 | 当社管理番号 | 89 |
| 所属団体 | (公社)東京都宅地建物取引業協会会員 | ||
| 公正取引協議会 | (公社)首都圏不動産公正取引協議会加盟 | ||
| 取扱い物件情報 | 物件詳細へ | ||
※各種情報と現状に差異がある場合は、現状優先となります。問い合わせをすることで、より詳しい条件、情報を確認する事ができます。
提供:(株)タウンハウジング東京 錦糸町店(SUUMO経由)
この物件が気になったら掲載期限まであと11日
シーズンフラッツ押上フィオーレの空き部屋一覧
全部で22の空き部屋があります。
シーズンフラッツ押上フィオーレに条件(家賃・エリア)が近い物件一覧
| 写真 | 家賃 管理費等 | 敷金 礼金 | 間取り 専有面積 | 築年数 | 最寄り駅 所在地 | キープ | 詳細 |
|---|---|---|---|---|---|---|---|
マンション エスタート三ノ輪(1LDK/6階) | |||||||
![]() | 16.6万円 1.5万円 | 16.6万円 なし | 1LDK 41.49m2 | 築6年 | 東京地下鉄日比谷線 三ノ輪駅 徒歩6分 東京都台東区竜泉3丁目 | 詳細を見る | |
マンション ヒューリック浅草一丁目(1LDK/6階) | |||||||
![]() | 24万円 1万円 | 24万円 24万円 | 1LDK 63.55m2 | 築36年 | つくばエクスプレス 浅草駅(つくばEXP) 徒歩1分 東京地下鉄銀座線 田原町駅(東京) 徒歩7分 東武伊勢崎・大師線 浅草駅(東武・都営・メトロ) 徒歩8分 東京都台東区浅草1丁目 | 詳細を見る | |
マンション あやめガーデン(2K/10階) | |||||||
![]() | 17.5万円 1万円 | 17.5万円 17.5万円 | 2K 42.26m2 | 築12年 | 東京メトロ日比谷線 築地駅 徒歩1分 東京メトロ有楽町線 新富町駅(東京) 徒歩6分 東京メトロ日比谷線 東銀座駅 徒歩6分 東京都中央区築地 | 詳細を見る | |
マンション フロンティアレジデンス錦糸公園(1LDK/4階) | |||||||
![]() | 17.7万円 1万円 | 17.7万円 なし | 1LDK 32.87m2 | 築2年 | 東京地下鉄半蔵門線 押上駅 徒歩10分 東京地下鉄半蔵門線 錦糸町駅 徒歩13分 東京都墨田区横川5丁目 | 詳細を見る | |
マンション TRADIS秋葉原(1LDK/3階) | |||||||
![]() | 17.7万円 1.2万円 | なし なし | 1LDK 32.41m2 | 築1年 | 東京地下鉄日比谷線 秋葉原駅 徒歩8分 山手線 秋葉原駅 徒歩9分 東京都浅草線 浅草橋駅 徒歩12分 東京都台東区台東1丁目 | 詳細を見る | |
マンション プレール・ドゥーク大島(2LDK/2階) | |||||||
![]() | 23.3万円 1.1万円 | なし 23.3万円 | 2LDK 53.96m2 | 築2年 | 都営新宿線 東大島駅 徒歩6分 都営新宿線 大島駅(東京) 徒歩8分 都営新宿線 西大島駅 徒歩18分 東京都江東区大島 | 詳細を見る | |
マンション ファーストレジデンス(2DK/5階) | |||||||
![]() | 17.9万円 なし | 17.9万円 17.9万円 | 2DK 45m2 | 築33年 | 都営大江戸線 清澄白河駅 徒歩5分 東京メトロ半蔵門線 清澄白河駅 徒歩5分 都営新宿線 森下駅(東京) 徒歩10分 東京都江東区清澄 | 詳細を見る | |
マンション シーズンフラッツ浅草六丁目(1LDK/13階) | |||||||
![]() | 23.6万円 1.4万円 | 23.6万円 なし | 1LDK 40.56m2 | 築1年 | 東京地下鉄銀座線 浅草駅(東武・都営・メトロ) 徒歩7分 東京都台東区浅草6丁目 | 詳細を見る | |









