賃貸マンション
ブライズ神田の賃貸物件情報(1K/2階)
| 家賃 | 管理費等 | 敷金 | 礼金 | 間取り | 専有面積 |
|---|---|---|---|---|---|
| 9.5万円 | 1万円 | 9.5万円 | 9.5万円 | 1K | 24.46m2 |
入居決定でお祝い金最大100,000円
- 保証金
- -
- 償却・敷引
- -
- 築年数
- 築22年
- 所在階
- 2階
- 向き
- 南東
Point
初期費用分割払い可能☆最大24ヶ月払い☆カード決済も対応しております!!遠方の方や忙しい方向けオンライン内見実施中☆
提供:PRA(株)青山店(SUUMO経由)

詳細情報 ブライズ神田
物件紹介
ブライズ神田は東京メトロ丸ノ内線淡路町駅から徒歩4分にあり、駅近で通勤通学に便利なマンションです。
このお部屋は2階以上に位置しているので、通行人や周囲の住人からの視線が気になりにくく、防犯面でも安心。建物のエントランスはオートロックがついており、インターホンにはTVモニタもついているため、相手の顔を確認してから来客対応することができます。
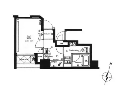
人気の南向き・フローリングのお部屋。角部屋でもあるため、周囲の居住者の生活音も気になりにくい場所です。キッチンはシステムキッチン仕様になっていますので、お料理好きの方にもぴったり。バス・トイレは別なので、のんびりお風呂タイムも楽しめるでしょう。また、雨の日でも浴室乾燥機を使えば、お洗濯も問題ありません。
通信設備面では、インターネット接続が可能です。また、BSアンテナ・CSアンテナがありCATVにも対応しているので、おうち時間も充実するでしょう(別途工事、契約料が必要な場合あり)。
建物にはエレベーターがついているので、重い荷物があっても安心。共用部には宅配ボックスが設定されているので、不在の時にも荷物を受け取ることができます。
このお部屋は2階以上に位置しているので、通行人や周囲の住人からの視線が気になりにくく、防犯面でも安心。建物のエントランスはオートロックがついており、インターホンにはTVモニタもついているため、相手の顔を確認してから来客対応することができます。
人気の南向き・フローリングのお部屋。角部屋でもあるため、周囲の居住者の生活音も気になりにくい場所です。キッチンはシステムキッチン仕様になっていますので、お料理好きの方にもぴったり。バス・トイレは別なので、のんびりお風呂タイムも楽しめるでしょう。また、雨の日でも浴室乾燥機を使えば、お洗濯も問題ありません。
通信設備面では、インターネット接続が可能です。また、BSアンテナ・CSアンテナがありCATVにも対応しているので、おうち時間も充実するでしょう(別途工事、契約料が必要な場合あり)。
建物にはエレベーターがついているので、重い荷物があっても安心。共用部には宅配ボックスが設定されているので、不在の時にも荷物を受け取ることができます。
お金・契約の情報
※「-」と表示されているものは、実際は料金が発生するものもございます。詳細はお問い合わせください。
| 家賃 | 9.5万円 | 管理費・共益費 | 1万円 |
|---|---|---|---|
| 敷金 | 9.5万円 | 礼金 | 9.5万円 |
| 入居決定でお祝い金最大100,000円 | |||
| 保証金 | - | 償却・敷引 | - |
| 住宅保険料 | - | 更新料 | - |
| 保証会社利用 | 必須 | 保証会社名 | - |
| 保証会社費用 | - | 保証会社備考 | 保証会社利用必 初回保証委託料:月額賃料等の50%、2年目以降:12000円/年 詳細はお問い合わせください。 |
| 契約形態 | - | 契約期間 | - |
| 入居・引渡期間 | - | 現況 | - |
| 契約備考 | 通勤管理 合計4.95万円(内訳:24時間サポート1.65万円鍵交換代3.3万円) 更新料 新賃料1.00ヶ月分 室内清掃費用 58300円 1K 普通借家2年 損保【1.4万円2年】 バストイレ別、エアコン、ガスコンロ対応、クロゼット、TVインターホン、浴室乾燥機、オートロック、室内洗濯置、陽当り良好、シューズボックス、システムキッチン、南向き、角住戸、温水洗浄便座、エレベーター、洗面所独立、2口コンロ、駐輪場、宅配ボックス、CATV、閑静な住宅地、2面採光、BS・CS、防犯カメラ、出窓、保証人不要、全居室フローリング、ディンプルキー、ネット専用回線、眺望良好、24時間換気システム、南面リビング、耐火構造、耐震構造、防犯ガラス、高気密住宅、2駅利用可、3駅以上利用可、駅前、防犯強化地域、駅徒歩5分以内、駅徒歩10分以内、耐風構造、24時間ゴミ出し可、敷地内ごみ置き場、東南向き、日勤管理、備付食器棚、都市ガス、通風良好 入居日:'26年4月上旬 | ||
部屋の情報
| 間取り | 1K | 専有面積 | 24.46m2 |
|---|---|---|---|
| 所在階 / 向き | 2階 / 南東 | バルコニー面積 | - |
| 水道 / ガス | - | ||
| 設備 | バス・トイレ別、2階以上、オートロック、テレビドアホン、宅配ボックス、浴室乾燥機、インターネット対応、システムキッチン、エアコン、エレベーター、温水洗浄便座、南向き、角部屋、フローリング、洗髪洗面化粧台、2口コンロ、コンロ:ガス、CATV、CSアンテナ、BSアンテナ、洗濯機:室内 | ||
| 当社物件ID | 160243996 | ||
建物の情報
| 建物名 | ブライズ神田 | ||
|---|---|---|---|
| 所在地 | 東京都千代田区神田須田町 | ||
| 交通 | 東京メトロ丸ノ内線 淡路町駅 徒歩4分 JR山手線 神田駅(東京) 徒歩6分 JR中央線 神田駅(東京) 徒歩6分 | ||
| 階数 | 13階建 | 総戸数 | - |
| 築年月 | 2004年09月 / 築22年 | エレベーター | あり |
| 駐車場 | なし | バイク置き場 | - |
| 駐輪場 | あり | 管理人/管理会社 | - |
| 周辺環境 | その他 セブンイレブン 神田万世橋南店(コンビニ)まで256m | ||
| 建物種別 | マンション | 建物構造 | SRC(鉄骨鉄筋コンクリート) |
この部屋の取扱い不動産会社
| 会社名 | PRA(株)青山店(SUUMO経由) | ||
|---|---|---|---|
| 所在地 | 東京都港区北青山1-3-3 三橋ビル8階 | 交通 | - |
| 営業時間 | 9:00~20:00 | 定休日 | 無し |
| 免許番号 | 東京都知事109775 | 取引態様 | 仲介 |
| 不動産会社管理番号 | 100483779947 | 当社管理番号 | 89 |
| 所属団体 | (公社)東京都宅地建物取引業協会会員 | ||
| 公正取引協議会 | (公社)首都圏不動産公正取引協議会加盟 | ||
| 取扱い物件情報 | 物件詳細へ | ||
※各種情報と現状に差異がある場合は、現状優先となります。問い合わせをすることで、より詳しい条件、情報を確認する事ができます。
提供:PRA(株)青山店(SUUMO経由)
この物件が気になったら掲載期限まであと10日
ブライズ神田に条件(家賃・エリア)が近い物件一覧
| 写真 | 家賃 管理費等 | 敷金 礼金 | 間取り 専有面積 | 築年数 | 最寄り駅 所在地 | キープ | 詳細 |
|---|---|---|---|---|---|---|---|
マンション プレール・ドゥーク銀座イースト 6階(1K/6階) | |||||||
![]() | 10万円 1万円 | なし 10万円 | 1K 23.35m2 | 築22年 | 東京メトロ有楽町線 新富町駅(東京) 徒歩6分 JR京葉線 八丁堀駅(東京) 徒歩11分 東京メトロ日比谷線 八丁堀駅(東京) 徒歩11分 東京都中央区湊 | 詳細を見る | |
マンション シーネクス本駒込(1K/8階) | |||||||
![]() | 8.8万円 1.2万円 | なし なし | 1K 22.62m2 | 築19年 | 東京地下鉄南北線 本駒込駅 徒歩7分 東京都三田線 千石駅 徒歩10分 東京都三田線 白山駅(東京) 徒歩12分 東京都文京区本駒込1丁目 | 詳細を見る | |
マンション S-RESIDENCE新御徒町イースト(1K/3階) | |||||||
![]() | 12万円 1.4万円 | なし 12万円 | 1K 25.34m2 | 築7年 | 東京都大江戸線 新御徒町駅 徒歩5分 東京都台東区小島1丁目 | 詳細を見る | |
マンション パレステージ文京江戸川橋(1DK/1階) | |||||||
![]() | 14.8万円 1.5万円 | なし 14.8万円 | 1DK 37.87m2 | 築9年 | 東京地下鉄有楽町線 江戸川橋駅 徒歩7分 東京地下鉄東西線 神楽坂駅 徒歩11分 東京地下鉄南北線 飯田橋駅 徒歩14分 東京都文京区水道2丁目 | 詳細を見る | |
マンション ZOOM日本橋馬喰町(1K/8階) | |||||||
![]() | 13.1万円 9,000円 | 13.1万円 13.1万円 | 1K 26.09m2 | 築8年 | 総武本線 馬喰町駅 徒歩2分 東京都新宿線 馬喰横山駅 徒歩3分 東京都浅草線 東日本橋駅 徒歩3分 東京都千代田区東神田1丁目 | 詳細を見る | |
マンション FIRSTSTAGE ASAKUSA BUILDING(1LDK/4階) | |||||||
![]() | 13.8万円 5,000円 | 13.8万円 なし | 1LDK 42.71m2 | 築34年 | つくばエクスプレス 新御徒町駅 徒歩6分 東京都大江戸線 新御徒町駅 徒歩6分 東京地下鉄銀座線 稲荷町駅(東京) 徒歩8分 東京都台東区元浅草3丁目 | 詳細を見る | |
マンション ノーブルイズミ(ワンルーム/2階) | |||||||
![]() | 6.5万円 なし | 6.5万円 6.5万円 | ワンルーム 15m2 | 築33年 | 山手線 西日暮里駅 徒歩9分 東京地下鉄千代田線 千駄木駅 徒歩9分 山手線 田端駅 徒歩11分 東京都文京区千駄木4丁目 | 詳細を見る | |
マンション プライマル小石川(ワンルーム/3階) | |||||||
![]() | 13.3万円 7,000円 | 13.3万円 なし | ワンルーム 31.5m2 | 築20年 | 東京都大江戸線 飯田橋駅 徒歩9分 総武・中央緩行線 飯田橋駅 徒歩9分 東京地下鉄丸ノ内線 後楽園駅 徒歩11分 東京都文京区水道1丁目 | 詳細を見る | |









