賃貸マンション
ジョイキューブ三ツ沢の賃貸物件情報(1K/3階)
| 家賃 | 管理費等 | 敷金 | 礼金 | 間取り | 専有面積 |
|---|---|---|---|---|---|
| 8.5万円 | 3,000円 | 8.5万円 | 8.5万円 | 1K | 26.95m2 |
入居決定でお祝い金最大100,000円
- 保証金
- -
- 償却・敷引
- -
- 築年数
- 築14年
- 所在階
- 3階
- 向き
- 南
Point
宅配BOX完備。コンクリート打ちっぱなしのお洒落な室内。独立洗面台・システムK・ウォシュレットなど嬉しい設備が多数。駐輪場無料。弊社では契約金のカード決済可能です。
提供:賃貸のベイスクアッド(株)福商(SUUMO経由)

詳細情報 ジョイキューブ三ツ沢
物件紹介
ジョイキューブ三ツ沢はブルーライン三ツ沢下町駅から徒歩5分にあり、駅近で通勤通学に便利なマンションです。
このお部屋は2階以上に位置しているので、通行人や周囲の住人からの視線が気になりにくく、防犯面でも安心。建物のエントランスはオートロックがついており、インターホンにはTVモニタもついているため、相手の顔を確認してから来客対応することができます。
人気の南向き・フローリングのお部屋。角部屋でもあるため、周囲の居住者の生活音も気になりにくい場所です。キッチンはシステムキッチン仕様になっていますので、お料理好きの方にもぴったり。また、バス・トイレは別で、のんびりお風呂タイムも楽しめるでしょう。
通信設備面では、インターネット接続が可能です(別途工事、契約料が必要な場合あり)。
共用部には宅配ボックスが設定されているので、不在の時にも荷物を受け取ることができます。
このお部屋は2階以上に位置しているので、通行人や周囲の住人からの視線が気になりにくく、防犯面でも安心。建物のエントランスはオートロックがついており、インターホンにはTVモニタもついているため、相手の顔を確認してから来客対応することができます。
人気の南向き・フローリングのお部屋。角部屋でもあるため、周囲の居住者の生活音も気になりにくい場所です。キッチンはシステムキッチン仕様になっていますので、お料理好きの方にもぴったり。また、バス・トイレは別で、のんびりお風呂タイムも楽しめるでしょう。
通信設備面では、インターネット接続が可能です(別途工事、契約料が必要な場合あり)。
共用部には宅配ボックスが設定されているので、不在の時にも荷物を受け取ることができます。
お金・契約の情報
※「-」と表示されているものは、実際は料金が発生するものもございます。詳細はお問い合わせください。
| 家賃 | 8.5万円 | 管理費・共益費 | 3,000円 |
|---|---|---|---|
| 敷金 | 8.5万円 | 礼金 | 8.5万円 |
| 入居決定でお祝い金最大100,000円 | |||
| 保証金 | - | 償却・敷引 | - |
| 住宅保険料 | - | 更新料 | - |
| 保証会社利用 | 必須 | 保証会社名 | - |
| 保証会社費用 | - | 保証会社備考 | 保証会社利用必 初回総賃料の50% 年毎10000円 |
| 契約形態 | - | 契約期間 | - |
| 入居・引渡期間 | 即時 | 現況 | - |
| 契約備考 | ネット利用は別途契約(有償)。退去時ルームクリーニング費用、ACクリーニング費用要。 合計2.7万円(内訳:鍵交換代27000円) 1K 単身者可 普通借家2年 損保【要】 バストイレ別、バルコニー、エアコン、クロゼット、フローリング、TVインターホン、オートロック、室内洗濯置、陽当り良好、シューズボックス、システムキッチン、南向き、角住戸、温水洗浄便座、脱衣所、洗面所独立、洗面化粧台、2口コンロ、駐輪場、宅配ボックス、光ファイバー、即入居可、2面採光、保証人不要、敷金1ヶ月、駅まで平坦、平坦地、3駅以上利用可、3沿線以上利用可、駅徒歩5分以内、都市ガス、南面バルコニー、高速ネット対応、礼金1ヶ月、IT重説対応物件、初期費用カード決済可、通風良好 | ||
部屋の情報
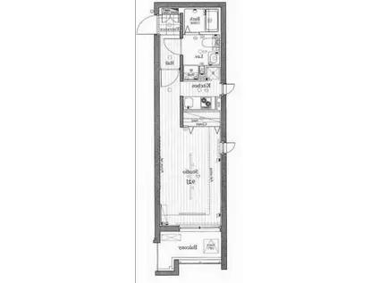
| 間取り | 1K | 専有面積 | 26.95m2 |
|---|---|---|---|
| 所在階 / 向き | 3階 / 南 | バルコニー面積 | - |
| 水道 / ガス | - | ||
| 設備 | バス・トイレ別、2階以上、オートロック、テレビドアホン、宅配ボックス、インターネット対応、システムキッチン、エアコン、温水洗浄便座、南向き、角部屋、バルコニー、フローリング、洗髪洗面化粧台、2口コンロ、洗濯機:室内 | ||
| 当社物件ID | 25627088 | ||
建物の情報
| 建物名 | ジョイキューブ三ツ沢 | ||
|---|---|---|---|
| 所在地 | 神奈川県横浜市神奈川区三ツ沢中町 | ||
| 交通 | ブルーライン 三ツ沢下町駅 徒歩5分 東急東横線 反町駅 徒歩18分 JR東海道本線 横浜駅 徒歩25分 | ||
| 階数 | 4階建 | 総戸数 | - |
| 築年月 | 2012年03月 / 築14年 | エレベーター | - |
| 駐車場 | 近隣 624m14300円 | バイク置き場 | - |
| 駐輪場 | あり | 管理人/管理会社 | - |
| 周辺環境 | その他 横浜ベイクォーター(ショッピングセンター)まで2368m その他 CIAL PLAT(シァル プラット) 東神奈川(ショッピングセンター)まで2401m その他 MARK IS(マークイズ) みなとみらい(ショッピングセンター)まで4198m その他 クイーンズスクエア横浜(ショッピングセンター)まで4559m その他 横浜ランドマークタワー(ショッピングセンター)まで4471m その他 コレットマーレ(ショッピングセンター)まで4158m | ||
| 建物種別 | マンション | 建物構造 | RC(鉄筋コンクリート) |
この部屋の取扱い不動産会社
| 会社名 | 賃貸のベイスクアッド(株)福商(SUUMO経由) | ||
|---|---|---|---|
| 所在地 | 神奈川県横浜市西区平沼1-40-1 | 交通 | - |
| 営業時間 | 10:00~19:00 事前のご連絡で時間外対応可 | 定休日 | 水曜日 |
| 免許番号 | 神奈川県知事28345 | 取引態様 | 仲介 |
| 不動産会社管理番号 | 100480454556 | 当社管理番号 | 89 |
| 所属団体 | (公社)全日本不動産協会神奈川県本部会員 | ||
| 公正取引協議会 | (公社)首都圏不動産公正取引協議会加盟 | ||
| 取扱い物件情報 | 物件詳細へ | ||
※各種情報と現状に差異がある場合は、現状優先となります。問い合わせをすることで、より詳しい条件、情報を確認する事ができます。
提供:賃貸のベイスクアッド(株)福商(SUUMO経由)
この物件が気になったら掲載期限まであと10日
ジョイキューブ三ツ沢に条件(家賃・エリア)が近い物件一覧
| 写真 | 家賃 管理費等 | 敷金 礼金 | 間取り 専有面積 | 築年数 | 最寄り駅 所在地 | キープ | 詳細 |
|---|---|---|---|---|---|---|---|
マンション ルシール五番館(1LDK/2階) | |||||||
![]() | 9万円 5,000円 | なし なし | 1LDK 49.05m2 | 築35年 | 南武線 中野島駅 徒歩13分 神奈川県川崎市多摩区中野島5丁目 | 詳細を見る | |
アパート バームサイドレジデンス(1LDK/2階) | |||||||
![]() | 10.3万円 5,000円 | なし 10.3万円 | 1LDK 30.74m2 | 築2年 | JR南武線 宿河原駅 徒歩8分 小田急線 登戸駅 徒歩10分 小田急線 向ケ丘遊園駅 徒歩20分 神奈川県川崎市多摩区宿河原 | 詳細を見る | |
マンション ゾンネンハイム元住吉(1K/2階) | |||||||
![]() | 6.5万円 7,000円 | 6.5万円 6.5万円 | 1K 23.2m2 | 築35年 | 東急東横線 元住吉駅 徒歩11分 神奈川県川崎市中原区井田中ノ町 | 詳細を見る | |
マンション GENOVIA二子新地(1K/2階) | |||||||
![]() | 12.35万円 1万円 | なし なし | 1K 25.35m2 | 築1年 | 東急田園都市線 二子新地駅 徒歩5分 東急田園都市線 高津駅(神奈川) 徒歩11分 東急田園都市線 二子玉川駅 徒歩13分 神奈川県川崎市高津区瀬田 | 詳細を見る | |
アパート アーブル クロシェット(3LDK/2階) | |||||||
![]() | 8.8万円 5,000円 | なし 8.8万円 | 3LDK 73.5m2 | 築12年 | JR横須賀線 衣笠駅 徒歩19分 京急本線 逸見駅 徒歩38分 神奈川県横須賀市平作 | 詳細を見る | |
アパート ラ・カンパネラ中央林間(1K/2階) | |||||||
![]() | 7.5万円 1.1万円 | なし 7.5万円 | 1K 21.09m2 | 築10年 | 小田急江ノ島線 中央林間駅 徒歩4分 東急田園都市線 つきみ野駅 徒歩15分 小田急江ノ島線 南林間駅 徒歩18分 神奈川県大和市中央林間 | 詳細を見る | |
マンション リブリフローラルコート(1K/2階) | |||||||
![]() | 7.2万円 4,000円 | なし 3.6万円 | 1K 22.35m2 | 築8年 | 小田急江ノ島線 大和駅(神奈川) 徒歩8分 小田急江ノ島線 桜ケ丘駅 徒歩25分 相鉄本線 相模大塚駅 徒歩29分 神奈川県大和市中央 | 詳細を見る | |
アパート ユナイト妙蓮寺アメディオ(ワンルーム/2階) | |||||||
![]() | 5.4万円 3,500円 | なし なし | ワンルーム 13m2 | 築2年 | 東急東横線 妙蓮寺駅 徒歩13分 JR横浜線 大口駅 徒歩18分 東急東横線 菊名駅 徒歩21分 神奈川県横浜市神奈川区松見町 | 詳細を見る | |









