賃貸マンション
シティークレスト船橋の賃貸物件情報(ワンルーム/4階)
| 家賃 | 管理費等 | 敷金 | 礼金 | 間取り | 専有面積 |
|---|---|---|---|---|---|
| 8.7万円 | 6,000円 | なし | なし | ワンルーム | 21.8m2 |
入居決定でお祝い金最大100,000円
- 保証金
- -
- 償却・敷引
- -
- 築年数
- 築35年
- 所在階
- 4階
- 向き
- 東
Point
建物のエントランスには安全性に優れているオートロック機能を備えております。室内設備はエアコン・全居室フローリングなどが揃っているので、快適に過ごしやすいお部屋になります。駐輪場付きの物件です。
提供:賃貸スマイル(株)津田沼店(SUUMO経由)

詳細情報 シティークレスト船橋
物件紹介
シティークレスト船橋は京成本線京成船橋駅から徒歩9分にあり、駅近で通勤通学に便利なマンションです。
このお部屋は2階以上に位置しているので、通行人や周囲の住人からの視線が気になりにくく、防犯面でも安心。建物のエントランスはオートロックがついており、インターホンにはTVモニタもついているため、相手の顔を確認してから来客対応することができます。
人気の南向き・フローリングのお部屋。角部屋でもあるため、周囲の居住者の生活音も気になりにくい場所です。キッチンはシステムキッチン仕様になっていますので、お料理好きの方にもぴったり。バス・トイレは別なので、のんびりお風呂タイムも楽しめるでしょう。また、雨の日でも浴室乾燥機を使えば、お洗濯も問題ありません。
通信設備面では、インターネットが無料で使えるので、月々の出費を抑えられるのも魅力です。また、BSアンテナがありCATVにも対応しているので、おうち時間も充実するでしょう(別途工事、BS・CATVの契約料等が必要な場合あり)。
建物にはエレベーターがついているので、重い荷物があっても安心。共用部には宅配ボックスが設定されているので、不在の時にも荷物を受け取ることができます。また、ペット飼育の相談ができますので、あなたの大切な家族の一員も快適に暮らせるか、ぜひ確認してみてください。
このお部屋は2階以上に位置しているので、通行人や周囲の住人からの視線が気になりにくく、防犯面でも安心。建物のエントランスはオートロックがついており、インターホンにはTVモニタもついているため、相手の顔を確認してから来客対応することができます。
人気の南向き・フローリングのお部屋。角部屋でもあるため、周囲の居住者の生活音も気になりにくい場所です。キッチンはシステムキッチン仕様になっていますので、お料理好きの方にもぴったり。バス・トイレは別なので、のんびりお風呂タイムも楽しめるでしょう。また、雨の日でも浴室乾燥機を使えば、お洗濯も問題ありません。
通信設備面では、インターネットが無料で使えるので、月々の出費を抑えられるのも魅力です。また、BSアンテナがありCATVにも対応しているので、おうち時間も充実するでしょう(別途工事、BS・CATVの契約料等が必要な場合あり)。
建物にはエレベーターがついているので、重い荷物があっても安心。共用部には宅配ボックスが設定されているので、不在の時にも荷物を受け取ることができます。また、ペット飼育の相談ができますので、あなたの大切な家族の一員も快適に暮らせるか、ぜひ確認してみてください。
お金・契約の情報
※「-」と表示されているものは、実際は料金が発生するものもございます。詳細はお問い合わせください。
| 家賃 | 8.7万円 | 管理費・共益費 | 6,000円 |
|---|---|---|---|
| 敷金 | なし | 礼金 | なし |
| 入居決定でお祝い金最大100,000円 | |||
| 保証金 | - | 償却・敷引 | - |
| 住宅保険料 | - | 更新料 | - |
| 保証会社利用 | 必須 | 保証会社名 | - |
| 保証会社費用 | - | 保証会社備考 | 保証会社利用必 ジェイリース:月額費用合計の50% 口座手数料:月額500円 Casa:月額費用合計の50% 口座手数料:月額330円 |
| 契約形態 | - | 契約期間 | - |
| 入居・引渡期間 | 相談 | 現況 | - |
| 入居可能条件 | ペット相談 | ||
| 契約備考 | 巡回管理 合計1.5万円(内訳:鍵交換代1.5万円) 更新料 新賃料1.00ヶ月分 室内清掃費用 87000円 水道料金(税別) 月額3000円 24時間サポート 月額1000円 ワンルーム 単身者可/子供不可/ペット相談/事務所利用不可/ルームシェア不可 普通借家2年 損保【1.8万円2年】 バストイレ別、バルコニー、エアコン、クロゼット、フローリング、TVインターホン、浴室乾燥機、オートロック、室内洗濯置、追焚機能浴室、温水洗浄便座、エレベーター、洗面所独立、駐輪場、宅配ボックス、礼金不要、ペット相談、IHクッキングヒーター、保証人不要、全居室フローリング、学生相談、敷地内ごみ置き場、玄関収納、保証会社利用可、初期費用カード決済可 敷金積み増し【ペット飼育の場合敷金2ヶ月(総額)】 | ||
部屋の情報
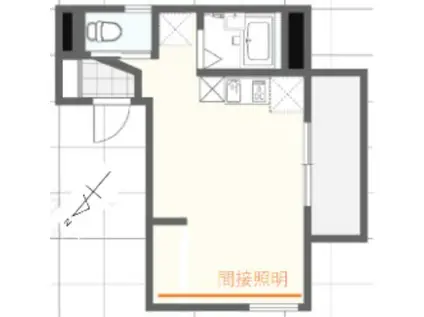
| 間取り | ワンルーム | 専有面積 | 21.8m2 |
|---|---|---|---|
| 所在階 / 向き | 4階 / 東 | バルコニー面積 | - |
| 水道 / ガス | - | ||
| 設備 | バス・トイレ別、2階以上、オートロック、テレビドアホン、宅配ボックス、浴室乾燥機、追い焚き、エアコン、エレベーター、温水洗浄便座、バルコニー、フローリング、洗髪洗面化粧台、コンロ:IH、洗濯機:室内 | ||
| 当社物件ID | 8208936 | ||
建物の情報
| 建物名 | シティークレスト船橋 | ||
|---|---|---|---|
| 所在地 | 千葉県船橋市湊町 | ||
| 交通 | 京成本線 京成船橋駅 徒歩10分 JR総武線 船橋駅 徒歩11分 東葉高速鉄道 東海神駅 徒歩21分 | ||
| 階数 | 8階建 | 総戸数 | - |
| 築年月 | 1991年04月 / 築35年 | エレベーター | あり |
| 駐車場 | なし | バイク置き場 | - |
| 駐輪場 | あり | 管理人/管理会社 | - |
| 周辺環境 | その他 アタック船橋湊町店(スーパー)まで49m その他 東武ストア船橋南本町店(スーパー)まで914m その他 セブンイレブン 船橋湊町店(コンビニ)まで256m その他 ファミリーマート 船橋湊町店(コンビニ)まで358m その他 くすりの福太郎 船橋本町通り店(ドラッグストア)まで506m その他 加藤医院(病院)まで535m | ||
| 建物種別 | マンション | 建物構造 | RC(鉄筋コンクリート) |
この部屋の取扱い不動産会社
| 会社名 | ケイエスホーム(株)船橋駅前支店(SUUMO経由) | ||
|---|---|---|---|
| 所在地 | 千葉県船橋市本町5-4-1 シンワ船橋第一ビル1階 | 交通 | - |
| 営業時間 | AM10:00~PM6:00 | 定休日 | 水、日曜日 |
| 免許番号 | 国土交通大臣10073 | 取引態様 | 仲介 |
| 不動産会社管理番号 | 100492934423 | 当社管理番号 | 89 |
| 所属団体 | (一社)千葉県宅地建物取引業協会会員 | ||
| 公正取引協議会 | (公社)首都圏不動産公正取引協議会加盟 | ||
| 取扱い物件情報 | 物件詳細へ | ||
※各種情報と現状に差異がある場合は、現状優先となります。問い合わせをすることで、より詳しい条件、情報を確認する事ができます。
提供:ケイエスホーム(株)船橋駅前支店(SUUMO経由)
この物件が気になったら掲載期限まであと11日
シティークレスト船橋に条件(家賃・エリア)が近い物件一覧
| 写真 | 家賃 管理費等 | 敷金 礼金 | 間取り 専有面積 | 築年数 | 最寄り駅 所在地 | キープ | 詳細 |
|---|---|---|---|---|---|---|---|
マンション ALIVIS本八幡(1LDK/4階) | |||||||
![]() | 12.3万円 1.5万円 | なし なし | 1LDK 32.71m2 | 築1年 | 都営新宿線 本八幡駅 徒歩11分 JR総武線 本八幡駅 徒歩12分 京成本線 京成八幡駅 徒歩15分 千葉県市川市平田 | 詳細を見る | |
マンション リブリ・チヒロ 壱番館(1K/1階) | |||||||
![]() | 5.75万円 5,500円 | なし 5.75万円 | 1K 23.18m2 | 築16年 | 東葉高速鉄道 船橋日大前駅 徒歩12分 東葉高速鉄道 北習志野駅 徒歩15分 京成松戸線 習志野駅 徒歩25分 千葉県船橋市習志野台 | 詳細を見る | |
一戸建て 京成電鉄松戸線 北初富駅 徒歩13分 築46年(4DK) | |||||||
![]() | 7万円 2,000円 | なし なし | 4DK 72.7m2 | 築46年 | 京成電鉄松戸線 北初富駅 徒歩13分 北総鉄道 大町駅(千葉) 徒歩13分 千葉県鎌ケ谷市北中沢3丁目 | 詳細を見る | |
アパート レオパレスみどりIII(1K/1階) | |||||||
![]() | 5.3万円 5,000円 | なし 5.3万円 | 1K 28.02m2 | 築18年 | 京成松戸線 高根木戸駅 徒歩28分 京成松戸線 高根公団駅 徒歩28分 東葉高速鉄道 船橋日大前駅 徒歩32分 千葉県船橋市松が丘 | 詳細を見る | |
マンション アーバンパーク南行徳レジデンス(1K/6階) | |||||||
![]() | 8.85万円 1.5万円 | なし なし | 1K 22.26m2 | 築5年 | 東京メトロ東西線 南行徳駅 徒歩9分 東京メトロ東西線 浦安駅(千葉) 徒歩15分 都営新宿線 一之江駅 徒歩36分 千葉県市川市南行徳 | 詳細を見る | |
マンション レオ四拾番館(1K/1階) | |||||||
![]() | 7.4万円 3,000円 | 7.4万円 14.8万円 | 1K 27.94m2 | 築12年 | 京成本線 京成中山駅 徒歩3分 JR総武線 下総中山駅 徒歩6分 京成本線 鬼越駅 徒歩14分 千葉県船橋市本中山 | 詳細を見る | |
アパート ジーメゾン八千代大和田(1K/1階) | |||||||
![]() | 5.7万円 5,000円 | なし なし | 1K 25.09m2 | 築4年 | 京成本線 京成大和田駅 徒歩11分 東葉高速鉄道 八千代中央駅 徒歩22分 東葉高速鉄道 村上駅(千葉) 徒歩23分 千葉県八千代市萱田町 | 詳細を見る | |
アパート ヴィラセゾン船橋本町(1K/1階) | |||||||
![]() | 6.9万円 2,000円 | 4万円 4万円 | 1K 26.57m2 | 築14年 | 京成本線 京成船橋駅 徒歩10分 JR総武線 船橋駅 徒歩12分 JR京葉線 南船橋駅 徒歩25分 千葉県船橋市本町 | 詳細を見る | |








