賃貸アパート
レオパレスラピュタⅡの賃貸物件情報(1K/2階)
| 家賃 | 管理費等 | 敷金 | 礼金 | 間取り | 専有面積 |
|---|---|---|---|---|---|
| 3.9万円 | 4,000円 | なし | なし | 1K | 28.02m2 |
入居決定でお祝い金最大100,000円
Point
★アパマンショップ袋井店にてご案内出来ます★お問合せください
提供:アパマンショップ磐田店

詳細情報 レオパレスラピュタⅡ
物件紹介
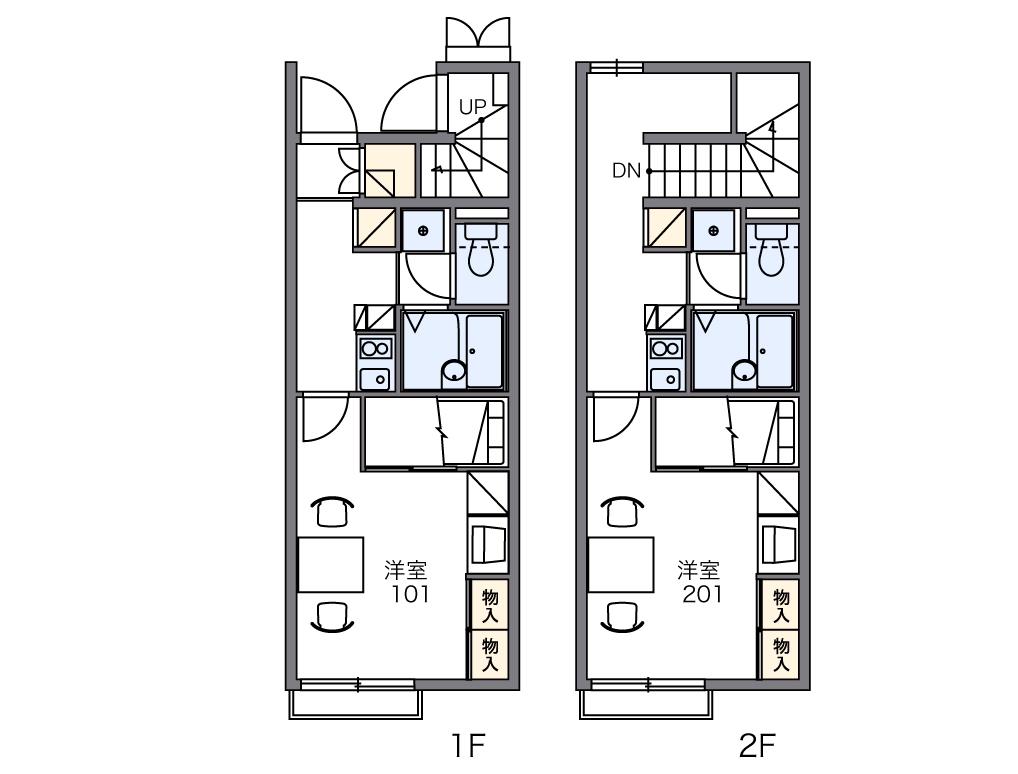
このお部屋は2階以上に位置しているので、通行人や周囲の住人からの視線が気になりにくく、防犯面でも安心。インターホンにはTVモニタもついているため、相手の顔を確認してから来客対応することができます。
人気の角部屋。周囲の居住者の生活音も気になりにくい場所です。バス・トイレ別の仕様で、のんびりお風呂タイムも楽しめます。また、浴室乾燥機を使えば、雨の日でもお洗濯は問題ありません。
通信設備面では、インターネット接続が可能です(別途工事、契約料が必要な場合あり)。
人気の角部屋。周囲の居住者の生活音も気になりにくい場所です。バス・トイレ別の仕様で、のんびりお風呂タイムも楽しめます。また、浴室乾燥機を使えば、雨の日でもお洗濯は問題ありません。
通信設備面では、インターネット接続が可能です(別途工事、契約料が必要な場合あり)。
お金・契約の情報
※「-」と表示されているものは、実際は料金が発生するものもございます。詳細はお問い合わせください。
| 家賃 | 3.9万円 | 管理費・共益費 | 4,000円 |
|---|---|---|---|
| 敷金 | なし | 礼金 | なし |
| 入居決定でお祝い金最大100,000円 | |||
| 保証金 | - | 償却・敷引 | - |
| 住宅保険料 | 2.668万円(2年) | 更新料 | - |
| 保証会社利用 | 必須 | 保証会社名 | プラザ賃貸保証 |
| 保証会社費用 | - | 保証会社備考 | 家賃等の100%または120% |
| 契約形態 | - | 契約期間 | 2年 |
| 入居・引渡期間 | 2026年05月中旬 | 現況 | - |
| 契約備考 | 環境維持費:1ヶ月550円(税込)、鍵交換費:ご契約時16500円(税込)、退去時清掃費:41800円(税込)、インターネット利用料:有料、更新手数料:16500円(税込)、保証委託料:必要 | ||
部屋の情報
| 間取り | 1K | 専有面積 | 28.02m2 |
|---|---|---|---|
| 所在階 / 向き | 2階 / - | バルコニー面積 | - |
| 水道 / ガス | ガス【プロパン】 | ||
| 設備 | バス・トイレ別、テレビドアホン、浴室乾燥機、インターネット対応、角部屋 | ||
| 当社物件ID | 1716340 | ||
建物の情報
| 建物名 | レオパレスラピュタⅡ | ||
|---|---|---|---|
| 所在地 | 静岡県磐田市白羽 | ||
| 交通 | 東海道本線 豊田町駅 バス乗車時間:15分 竜洋西小学校バス停で下車 徒歩3分 | ||
| 階数 | 2階建 | 総戸数 | 18戸 |
| 築年月 | 2007年10月 / 築19年 | エレベーター | - |
| 駐車場 | 空有 4,950円/月 | バイク置き場 | - |
| 駐輪場 | あり | 管理人/管理会社 | - |
| 建物種別 | アパート | 建物構造 | 木造 |
この部屋の取扱い不動産会社
| 会社名 | アパマンショップ袋井店 | ||
|---|---|---|---|
| 所在地 | 静岡県袋井市堀越3丁目 5-5 | 交通 | 東海道本線袋井から徒歩38分 |
| 営業時間 | 10:00〜18:00(時間外でのご相談も可能です!) | 定休日 | 水曜日 |
| 免許番号 | 静岡県知事(3)13504 | 取引態様 | 仲介 |
| 不動産会社管理番号 | 85872601 | 当社管理番号 | 4 |
| 所属団体 | (公社)静岡県宅地建物取引業協会 | ||
| 公正取引協議会 | 東海不動産公正取引協議会加盟 | ||
| 取扱い物件情報 | 物件詳細へ | ||
※各種情報と現状に差異がある場合は、現状優先となります。問い合わせをすることで、より詳しい条件、情報を確認する事ができます。
提供:アパマンショップ袋井店
この物件が気になったら掲載期限まであと13日
レオパレスラピュタⅡに条件(家賃・エリア)が近い物件一覧
| 写真 | 家賃 管理費等 | 敷金 礼金 | 間取り 専有面積 | 築年数 | 最寄り駅 所在地 | キープ | 詳細 |
|---|---|---|---|---|---|---|---|
アパート ハイツコスモス(2DK/2階) | |||||||
![]() | 3万円 3,000円 | なし なし | 2DK 46m2 | 築29年 | JR東海道本線 御厨駅(静岡) 徒歩82分 静岡県袋井市松原 | 詳細を見る | |
アパート ヒカルサ見付サウスII(1LDK/2階) | |||||||
![]() | 5.9万円 2,800円 | なし 6.9万円 | 1LDK 47.74m2 | 築1年 | 静岡県磐田市見付 | 詳細を見る | |
アパート レオパレスサンヒルズⅢ(1K/2階) | |||||||
![]() | 4.3万円 4,000円 | なし なし | 1K 23.18m2 | 築24年 | 静岡県袋井市豊沢 | 詳細を見る | |
マンション マンションリーフⅡ(1DK/1階) | |||||||
![]() | 3.5万円 1,500円 | なし なし | 1DK 25.92m2 | 築32年 | 東海道本線 豊田町駅 徒歩8分 静岡県磐田市立野 | 詳細を見る | |
アパート メゾン・カルム(1LDK/2階) | |||||||
![]() | 4.45万円 2,300円 | なし 4.45万円 | 1LDK 42.37m2 | 築20年 | JR東海道本線 袋井駅 徒歩14分 静岡県袋井市高尾 | 詳細を見る | |
アパート みどり第一(1K/2階) | |||||||
![]() | 3.7万円 3,000円 | なし なし | 1K 33.12m2 | 築30年 | 東海道本線 愛野駅(静岡) 徒歩38分 静岡県袋井市神長 | 詳細を見る | |
アパート レオパレスエルドラド(1K/2階) | |||||||
![]() | 4.1万円 4,000円 | なし なし | 1K 28.02m2 | 築20年 | 静岡県磐田市鎌田 | 詳細を見る | |
アパート HILLS VILLAGE(1LDK/2階) | |||||||
![]() | 4.7万円 3,000円 | なし なし | 1LDK 34m2 | 築19年 | 東海道本線 袋井駅 徒歩57分 静岡県磐田市新貝3丁目 | 詳細を見る | |









