賃貸マンション
THE TEN GOOD 祖原Iの賃貸物件情報(2LDK/3階)
| 家賃 | 管理費等 | 敷金 | 礼金 | 間取り | 専有面積 |
|---|---|---|---|---|---|
| 22.2万円 | 1万円 | なし | 44.4万円 | 2LDK | 80.47m2 |
入居決定でお祝い金最大100,000円
- 保証金
- -
- 償却・敷引
- -
- 築年数
- 築1年
- 所在階
- 3階
- 向き
- 西
Point
福岡でのお部屋探しはミニテック西日本へお任せください。新築マンション等多数の情報揃えています。
提供:いい部屋ネット六本松店(株)トーマスリビング(SUUMO経由)

詳細情報 THE TEN GOOD 祖原I
物件紹介
THE TEN GOOD 祖原Iは地下鉄空港線西新駅から徒歩8分にあり、駅近で通勤通学に便利なマンションです。
このお部屋は2階以上に位置しているので、通行人や周囲の住人からの視線が気になりにくく、防犯面でも安心。建物のエントランスはオートロックがついており、インターホンにはTVモニタもついているため、相手の顔を確認してから来客対応することができます。
おしゃれなデザイナーズ物件!人気の角部屋で周囲の居住者の生活音も気になりにくく、また、フローリングのお部屋なのでお掃除もラクラク。室内にはウォークインクローゼットがありますので、たくさんの荷物も効率的に収納ができます。キッチンはシステムキッチン仕様になっていますので、お料理好きの方にもぴったり。バス・トイレは別なので、のんびりお風呂タイムも楽しめるでしょう。また、雨の日でも浴室乾燥機を使えば、お洗濯も問題ありません。
通信設備面では、インターネットが無料で使えるので、月々の出費を抑えられるのも魅力です。また、BSアンテナ・CSアンテナがありCATVにも対応しているので、おうち時間も充実するでしょう(別途工事、BS・CS・CATVの契約料等が必要な場合あり)。
建物にはエレベーターがついているので、重い荷物があっても安心。共用部には宅配ボックスが設定されているので、不在の時にも荷物を受け取ることができます。
このお部屋は2階以上に位置しているので、通行人や周囲の住人からの視線が気になりにくく、防犯面でも安心。建物のエントランスはオートロックがついており、インターホンにはTVモニタもついているため、相手の顔を確認してから来客対応することができます。
おしゃれなデザイナーズ物件!人気の角部屋で周囲の居住者の生活音も気になりにくく、また、フローリングのお部屋なのでお掃除もラクラク。室内にはウォークインクローゼットがありますので、たくさんの荷物も効率的に収納ができます。キッチンはシステムキッチン仕様になっていますので、お料理好きの方にもぴったり。バス・トイレは別なので、のんびりお風呂タイムも楽しめるでしょう。また、雨の日でも浴室乾燥機を使えば、お洗濯も問題ありません。
通信設備面では、インターネットが無料で使えるので、月々の出費を抑えられるのも魅力です。また、BSアンテナ・CSアンテナがありCATVにも対応しているので、おうち時間も充実するでしょう(別途工事、BS・CS・CATVの契約料等が必要な場合あり)。
建物にはエレベーターがついているので、重い荷物があっても安心。共用部には宅配ボックスが設定されているので、不在の時にも荷物を受け取ることができます。
お金・契約の情報
※「-」と表示されているものは、実際は料金が発生するものもございます。詳細はお問い合わせください。
| 家賃 | 22.2万円 | 管理費・共益費 | 1万円 |
|---|---|---|---|
| 敷金 | なし | 礼金 | 44.4万円 |
| 入居決定でお祝い金最大100,000円 | |||
| 保証金 | - | 償却・敷引 | - |
| 住宅保険料 | - | 更新料 | - |
| 保証会社利用 | 必須 | 保証会社名 | - |
| 保証会社費用 | - | 保証会社備考 | 保証会社利用必 Casa又はジェイリース 初回月額50% 更新料1万円/年 |
| 契約形態 | - | 契約期間 | - |
| 入居・引渡期間 | 即時 | 現況 | - |
| 契約備考 | 巡回管理 合計13.2万円(内訳:鍵交換費用55000円/室内西欧77000円) 2LDK 事務所利用不可 普通借家2年 損保【2.4万円】 バストイレ別、バルコニー、エアコン、クロゼット、フローリング、シャワー付洗面台、TVインターホン、浴室乾燥機、オートロック、室内洗濯置、シューズボックス、システムキッチン、追焚機能浴室、角住戸、温水洗浄便座、脱衣所、エレベーター、洗面所独立、洗面化粧台、駐輪場、宅配ボックス、光ファイバー、即入居可、2面採光、敷金不要、3口以上コンロ、対面式キッチン、防犯カメラ、全居室収納、全居室洋室、バイク置場、24時間緊急通報システム、2沿線利用可、ネット使用料不要、築2年以内、24時間換気システム、LDK20畳以上、電子ロック、未入居、3駅以上利用可、駅徒歩10分以内、敷地内ごみ置き場、全居室6畳以上、都市ガス、洗面所にドア、礼金2ヶ月、初期費用カード決済可 | ||
部屋の情報
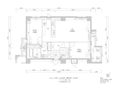
| 間取り | 2LDK | 専有面積 | 80.47m2 |
|---|---|---|---|
| 所在階 / 向き | 3階 / 西 | バルコニー面積 | 7m2 |
| 水道 / ガス | - | ||
| 設備 | バス・トイレ別、2階以上、オートロック、テレビドアホン、宅配ボックス、浴室乾燥機、追い焚き、インターネット対応、システムキッチン、エアコン、エレベーター、温水洗浄便座、角部屋、バルコニー、フローリング、洗髪洗面化粧台、2口コンロ、インターネット使用料無料、洗濯機:室内 | ||
| 当社物件ID | 159398235 | ||
建物の情報
| 建物名 | THE TEN GOOD 祖原I | ||
|---|---|---|---|
| 所在地 | 福岡県福岡市早良区祖原 | ||
| 交通 | 地下鉄空港線 藤崎駅(福岡) 徒歩9分 地下鉄空港線 西新駅 徒歩10分 地下鉄七隈線 別府駅(福岡) 徒歩23分 | ||
| 階数 | 7階建 | 総戸数 | 8戸 |
| 築年月 | 2025年10月 / 築1年 | エレベーター | あり |
| 駐車場 | 空有 24200円 | バイク置き場 | あり |
| 駐輪場 | あり | 管理人/管理会社 | - |
| 周辺環境 | その他 セブンイレブン 福岡西新5丁目店(コンビニ)まで126m その他 ファミリーマート 福岡高取一丁目店(コンビニ)まで189m その他 ローソン 福岡西新五丁目店(コンビニ)まで385m その他 HalloDay(ハローデイ) 西新店(スーパー)まで361m その他 福岡市立高取小学校(小学校)まで424m | ||
| 建物種別 | マンション | 建物構造 | RC(鉄筋コンクリート) |
この部屋の取扱い不動産会社
| 会社名 | (株)ミニテック西日本西新店(SUUMO経由) | ||
|---|---|---|---|
| 所在地 | 福岡県福岡市早良区祖原 14-13 ロマネスク西新206 | 交通 | - |
| 営業時間 | 10:00~18:00 | 定休日 | 水曜日 |
| 免許番号 | 国土交通大臣8816 | 取引態様 | 仲介 |
| 不動産会社管理番号 | 100476304436 | 当社管理番号 | 89 |
| 取扱い物件情報 | 物件詳細へ | ||
※各種情報と現状に差異がある場合は、現状優先となります。問い合わせをすることで、より詳しい条件、情報を確認する事ができます。
提供:(株)ミニテック西日本西新店(SUUMO経由)
この物件が気になったら掲載期限まであと10日
THE TEN GOOD 祖原Iに条件(家賃・エリア)が近い物件一覧
| 写真 | 家賃 管理費等 | 敷金 礼金 | 間取り 専有面積 | 築年数 | 最寄り駅 所在地 | キープ | 詳細 |
|---|---|---|---|---|---|---|---|
アパート D-ROOM田島3丁目(2LDK/2階) | |||||||
![]() | 13.9万円 4,500円 | なし 27.8万円 | 2LDK 60.23m2 | 新築 | 地下鉄七隈線 茶山駅 徒歩8分 地下鉄七隈線 別府駅(福岡) 徒歩12分 地下鉄七隈線 金山駅(福岡) 徒歩16分 福岡県福岡市城南区田島 | 詳細を見る | |
アパート ACERO GARDEN(1LDK/2階) | |||||||
![]() | 15.5万円 7,000円 | なし 31万円 | 1LDK 50.22m2 | 新築 | 地下鉄空港線 藤崎駅(福岡) 徒歩4分 地下鉄空港線 室見駅 徒歩14分 地下鉄空港線 西新駅 徒歩16分 福岡県福岡市早良区高取 | 詳細を見る | |
マンション ファミール西新グランビオス(3LDK/2階) | |||||||
![]() | 16.5万円 なし | 16.5万円 16.5万円 | 3LDK 75.16m2 | 築28年 | 福岡市空港線 西新駅 徒歩3分 福岡県福岡市早良区西新3丁目 | 詳細を見る | |
アパート ヴェルジュ大野城レジデンシャルスイート(2LDK/3階) | |||||||
![]() | 14万円 5,000円 | なし 14万円 | 2LDK 44.28m2 | 築1年 | JR鹿児島本線 水城駅 徒歩4分 西鉄天神大牟田線 下大利駅 徒歩7分 JR鹿児島本線 大野城駅 徒歩16分 福岡県大野城市下大利 | 詳細を見る | |
マンション サンショウ レジデンス西新(3LDK/8階) | |||||||
![]() | 21.8万円 9,000円 | なし 43.6万円 | 3LDK 75.64m2 | 新築 | 福岡市空港線 西新駅 徒歩2分 福岡県福岡市早良区西新5丁目 | 詳細を見る | |
一戸建て 博多南線 博多南駅 徒歩25分 築54年(3LDK) | |||||||
![]() | 14万円 なし | なし 28万円 | 3LDK 95.26m2 | 築54年 | 博多南線 博多南駅 徒歩25分 福岡県春日市昇町3丁目 | 詳細を見る | |
マンション エーデルワイス(3LDK/2階) | |||||||
![]() | 18.2万円 9,000円 | なし 54.6万円 | 3LDK 84.13m2 | 新築 | 地下鉄空港線 西新駅 徒歩13分 地下鉄七隈線 別府駅(福岡) 徒歩15分 地下鉄七隈線 茶山駅 徒歩16分 福岡県福岡市早良区曙 | 詳細を見る | |
マンション シャーメゾン別府ステラ(3LDK/1階) | |||||||
![]() | 21.4万円 1万円 | なし 64.2万円 | 3LDK 81.68m2 | 築1年 | 地下鉄七隈線 別府駅(福岡) 徒歩4分 地下鉄七隈線 六本松駅 徒歩13分 地下鉄七隈線 茶山駅 徒歩14分 福岡県福岡市城南区別府 | 詳細を見る | |








