賃貸アパート
LA CASA DOLCEの賃貸物件情報(ワンルーム/1階)
| 家賃 | 管理費等 | 敷金 | 礼金 | 間取り | 専有面積 |
|---|---|---|---|---|---|
| 6.3万円 | 5,000円 | なし | なし | ワンルーム | 15.53m2 |
入居決定でお祝い金最大100,000円
- 保証金
- -
- 償却・敷引
- -
- 築年数
- 築9年
- 所在階
- 1階
- 向き
- 北西
Point
★首都圏に強いタウンハウジング蒲田店がご案内させていただきます!LINE&チャット対応でお手軽にスムーズな物件探しが可能です★オンラインでのご対応もお気軽にご相談くださいませ★
提供:(株)タウンハウジング東京 蒲田店(SUUMO経由)

詳細情報 LA CASA DOLCE
物件紹介
LA CASA DOLCEは京急本線雑色駅から徒歩2分にあり、駅近で通勤通学に便利なアパートです。
建物のエントランスはオートロックがついており、インターホンにはTVモニタもついているため、相手の顔を確認してから来客対応することができます。
人気の角部屋で周囲の居住者の生活音も気になりにくく、また、フローリングのお部屋なのでお掃除もラクラク。室内にはウォークインクローゼットがありますので、たくさんの荷物も効率的に収納ができます。キッチンはシステムキッチン仕様になっていますので、お料理好きの方にもぴったり。バス・トイレは別なので、のんびりお風呂タイムも楽しめるでしょう。また、雨の日でも浴室乾燥機を使えば、お洗濯も問題ありません。
通信設備面では、インターネットが無料で使えるので、月々の出費を抑えられるのも魅力です(別途工事等が必要な場合あり)。
共用部には宅配ボックスが設定されているので、不在の時にも荷物を受け取ることができます。
建物のエントランスはオートロックがついており、インターホンにはTVモニタもついているため、相手の顔を確認してから来客対応することができます。
人気の角部屋で周囲の居住者の生活音も気になりにくく、また、フローリングのお部屋なのでお掃除もラクラク。室内にはウォークインクローゼットがありますので、たくさんの荷物も効率的に収納ができます。キッチンはシステムキッチン仕様になっていますので、お料理好きの方にもぴったり。バス・トイレは別なので、のんびりお風呂タイムも楽しめるでしょう。また、雨の日でも浴室乾燥機を使えば、お洗濯も問題ありません。
通信設備面では、インターネットが無料で使えるので、月々の出費を抑えられるのも魅力です(別途工事等が必要な場合あり)。
共用部には宅配ボックスが設定されているので、不在の時にも荷物を受け取ることができます。
お金・契約の情報
※「-」と表示されているものは、実際は料金が発生するものもございます。詳細はお問い合わせください。
| 家賃 | 6.3万円 | 管理費・共益費 | 5,000円 |
|---|---|---|---|
| 敷金 | なし | 礼金 | なし |
| 入居決定でお祝い金最大100,000円 | |||
| 保証金 | - | 償却・敷引 | - |
| 住宅保険料 | - | 更新料 | - |
| 保証会社利用 | 必須 | 保証会社名 | リクルートフォレントインシュア |
| 保証会社費用 | - | 保証会社備考 | オリコフォレントインシュア利用必 初回35%(最低20000円)・月額1.8% |
| 契約形態 | - | 契約期間 | - |
| 入居・引渡期間 | 即時 | 現況 | - |
| 契約備考 | 京浜急行電鉄本線京急蒲田駅徒歩19分/東京を中心に関東人気エリアの賃貸マンション・アパート情報が豊富!創業46年直営140店舗以上の独自のネットワークで最適なマンション・アパートをお探しします!お部屋探しからご契約までをオンラインで簡単にご対応できます!『ひとを、まちを、もっと豊かに。』2025年賃貸仲介件数全国第2位の実績です!安心してお問合せくださいませ。 合計8.76万円(内訳:鍵交換代:27500円/消火剤:12100円/消臭抗菌施工:16500円/虫駆除施工:16500円/防災セット:15000円) 更新料新賃料(ヶ月):1.00ヶ月、町内会費:250円/月、タウンプレミアムクラブ:1650円/月 ワンルーム 単身者可 普通借家2年 損保【1.5万円2年】 バストイレ別、バルコニー、エアコン、フローリング、TVインターホン、浴室乾燥機、オートロック、室内洗濯置、システムキッチン、角住戸、宅配ボックス、即入居可、礼金不要、敷金不要、独立型キッチン、ロフト、保証人不要、単身者相談、冷蔵庫、全居室フローリング、2沿線利用可、駅まで平坦、ネット使用料不要、エアコン全室、保証金不要、24時間換気システム、平坦地、駅徒歩5分以内、都市ガス、敷金・礼金不要、IT重説対応物件 | ||
部屋の情報
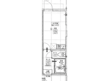
| 間取り | ワンルーム | 専有面積 | 15.53m2 |
|---|---|---|---|
| 所在階 / 向き | 1階 / 北西 | バルコニー面積 | - |
| 水道 / ガス | - | ||
| 設備 | バス・トイレ別、オートロック、テレビドアホン、宅配ボックス、浴室乾燥機、インターネット対応、システムキッチン、エアコン、角部屋、バルコニー、フローリング、ロフトあり、インターネット使用料無料、洗濯機:室内 | ||
| 当社物件ID | 26520436 | ||
建物の情報
| 建物名 | LA CASA DOLCE | ||
|---|---|---|---|
| 所在地 | 東京都大田区仲六郷 | ||
| 交通 | 京急本線 雑色駅 徒歩2分 京急本線 六郷土手駅 徒歩18分 JR京浜東北線 蒲田駅 徒歩21分 | ||
| 階数 | 3階建 | 総戸数 | 9戸 |
| 築年月 | 2018年02月 / 築9年 | エレベーター | - |
| 駐車場 | なし | バイク置き場 | - |
| 駐輪場 | - | 管理人/管理会社 | - |
| 周辺環境 | その他 オーケー(スーパー)まで84m その他 ファミリーマート雑色駅前店(コンビニ)まで143m その他 サンドラッグ(ドラッグストア)まで222m その他 ドトールコーヒーショップ(飲食店)まで109m その他 大田仲六郷郵便局(郵便局)まで179m その他 ゆうちょ銀行本店雑色駅前出張所(銀行)まで121m | ||
| 建物種別 | アパート | 建物構造 | 木造 |
この部屋の取扱い不動産会社
| 会社名 | (株)タウンハウジング東京 五反田店(SUUMO経由) | ||
|---|---|---|---|
| 所在地 | 東京都品川区東五反田5-28-9 五反田第三花谷ビル1階 | 交通 | - |
| 営業時間 | AM10:00~PM7:00 | 定休日 | 水曜日 |
| 免許番号 | 国土交通大臣9926 | 取引態様 | 仲介 |
| 不動産会社管理番号 | 100500052909 | 当社管理番号 | 89 |
| 所属団体 | (公社)東京都宅地建物取引業協会会員 | ||
| 公正取引協議会 | (公社)首都圏不動産公正取引協議会加盟 | ||
| 取扱い物件情報 | 物件詳細へ | ||
※各種情報と現状に差異がある場合は、現状優先となります。問い合わせをすることで、より詳しい条件、情報を確認する事ができます。
提供:(株)タウンハウジング東京 五反田店(SUUMO経由)
この物件が気になったら掲載期限まであと11日
LA CASA DOLCEに条件(家賃・エリア)が近い物件一覧
| 写真 | 家賃 管理費等 | 敷金 礼金 | 間取り 専有面積 | 築年数 | 最寄り駅 所在地 | キープ | 詳細 |
|---|---|---|---|---|---|---|---|
マンション グランディール(1K/4階) | |||||||
![]() | 9.4万円 5,000円 | 9.4万円 なし | 1K 23.26m2 | 築22年 | 京浜急行電鉄本線 大森町駅 徒歩5分 京浜急行電鉄本線 梅屋敷駅(東京) 徒歩9分 東京都大田区大森中1丁目 | 詳細を見る | |
アパート レジェンド森下(1K/4階) | |||||||
![]() | 9万円 4,000円 | なし 9万円 | 1K 24.98m2 | 築34年 | 都営新宿線 森下駅(東京) 徒歩8分 都営大江戸線 森下駅(東京) 徒歩8分 東京メトロ半蔵門線 清澄白河駅 徒歩9分 東京都江東区森下 | 詳細を見る | |
アパート アートヒルズ大森中(ワンルーム/1階) | |||||||
![]() | 7.2万円 2,000円 | 7.2万円 なし | ワンルーム 15.45m2 | 築12年 | 京急本線 大森町駅 徒歩4分 京急本線 梅屋敷駅(東京) 徒歩8分 京急本線 平和島駅 徒歩15分 東京都大田区大森中 | 詳細を見る | |
アパート サン ヴィータ(1K/1階) | |||||||
![]() | 8.8万円 5,000円 | 8.8万円 なし | 1K 20.02m2 | 築6年 | 京急本線 京急蒲田駅 徒歩6分 京急本線 梅屋敷駅(東京) 徒歩10分 JR京浜東北線 蒲田駅 徒歩10分 東京都大田区蒲田 | 詳細を見る | |
マンション メゾン新広尾(1DK/2階) | |||||||
![]() | 9.4万円 5,000円 | 9.4万円 なし | 1DK 31.31m2 | 築24年 | 京浜急行電鉄本線 大森町駅 徒歩7分 京浜急行電鉄本線 梅屋敷駅(東京) 徒歩11分 東京都大田区大森中1丁目 | 詳細を見る | |
アパート カーサ・ヴィータ(1K/3階) | |||||||
![]() | 9.7万円 5,000円 | 9.7万円 なし | 1K 22.2m2 | 築7年 | 京浜急行電鉄空港線 糀谷駅 徒歩10分 京浜急行電鉄空港線 京急蒲田駅 徒歩14分 東京都大田区南蒲田2丁目 | 詳細を見る | |
アパート 京浜急行電鉄空港線 糀谷駅 徒歩5分 築25年(1K/1階) | |||||||
![]() | 8.1万円 2,000円 | 8.1万円 8.1万円 | 1K 24.28m2 | 築25年 | 京浜急行電鉄空港線 糀谷駅 徒歩5分 京浜急行電鉄本線 京急蒲田駅 徒歩9分 東京都大田区西糀谷4丁目 | 詳細を見る | |
マンション SEED JUST B-BASE COAST(1LDK/4階) | |||||||
![]() | 8.8万円 1.5万円 | 8.8万円 8.8万円 | 1LDK 23.07m2 | 築1年 | 東京モノレール羽田 昭和島駅 徒歩11分 京浜急行電鉄本線 梅屋敷駅(東京) 徒歩19分 東京都大田区大森南4丁目 | 詳細を見る | |








