賃貸アパート
グラーベンハウゼの賃貸物件情報(1K/1階)
| 家賃 | 管理費等 | 敷金 | 礼金 | 間取り | 専有面積 |
|---|---|---|---|---|---|
| 4万円 | なし | 5万円 | 5万円 | 1K | 20.31m2 |
入居決定でお祝い金最大100,000円
Point
この条件なら魅力的 「北山」駅近でこの条件 地下鉄北山駅まで徒歩4分の1Kです。
提供:株式会社 京都ライフ 出町柳店(賃貸スモッカ経由)

詳細情報 グラーベンハウゼ
物件紹介
グラーベンハウゼは京都市烏丸線北山駅から徒歩4分にあり、駅近で通勤通学に便利なアパートです。
人気の南向きのお部屋。また、フローリングなのでお掃除もラクラク。バス・トイレ別の仕様で、のんびりお風呂タイムも楽しめます。
通信設備面では、インターネット接続が可能です。また、BSアンテナ・CSアンテナがありCATVにも対応しているので、おうち時間も充実するでしょう(別途工事、契約料が必要な場合あり)。
人気の南向きのお部屋。また、フローリングなのでお掃除もラクラク。バス・トイレ別の仕様で、のんびりお風呂タイムも楽しめます。
通信設備面では、インターネット接続が可能です。また、BSアンテナ・CSアンテナがありCATVにも対応しているので、おうち時間も充実するでしょう(別途工事、契約料が必要な場合あり)。
お金・契約の情報
※「-」と表示されているものは、実際は料金が発生するものもございます。詳細はお問い合わせください。
| 家賃 | 4万円 | 管理費・共益費 | なし |
|---|---|---|---|
| 敷金 | 5万円 | 礼金 | 5万円 |
| 入居決定でお祝い金最大100,000円 | |||
| 保証金 | - | 償却・敷引 | - |
| 住宅保険料 | 住宅保険料あり | 更新料 | - |
| 契約形態 | - | 契約期間 | 2年 |
| 入居・引渡期間 | 即時 | 現況 | 空室 |
| 契約備考 | コンビニ、ドラッグストアなど近くにあって便利ですよ。 入居者サポート:880円 更新料:1ヶ月 保証会社:利用必須 初回:月額賃料等の50%、月額:支払い手数料440円、更新時:1万円/1年(初回最低保証料25000円) その他設備/条件:1階の物件、即入居可 | ||
部屋の情報
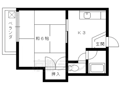
| 間取り | 1K | 専有面積 | 20.31m2 |
|---|---|---|---|
| 間取り詳細 | 洋室(6帖)、K(3帖) | ||
| 所在階 / 向き | 1階 / 南 | バルコニー面積 | - |
| 水道 / ガス | ガス【都市】 | ||
| 設備 | バス・トイレ別、インターネット対応、エアコン、南向き、バルコニー | ||
| 当社物件ID | 423801 | ||
建物の情報
| 建物名 | グラーベンハウゼ | ||
|---|---|---|---|
| 所在地 | 京都府京都市左京区下鴨南芝町 | ||
| 交通 | 京都市烏丸線 北山駅(京都) 徒歩4分 京都市烏丸線 松ケ崎駅(京都) 徒歩10分 | ||
| 階数 | 2階建 | 総戸数 | - |
| 築年月 | 1981年01月 / 築45年 | エレベーター | - |
| 駐車場 | - | バイク置き場 | - |
| 駐輪場 | あり | 管理人/管理会社 | - |
| 建物種別 | アパート | 建物構造 | 軽量鉄骨造 |
この部屋の取扱い不動産会社
| 会社名 | 株式会社 京都ライフ 河原町四条店(賃貸スモッカ経由) | ||
|---|---|---|---|
| 所在地 | 京都市中京区河原町通三条下る三丁目奈良屋町291-2 Wise core BLD.1階 | 交通 | - |
| 営業時間 | - | 定休日 | - |
| 免許番号 | 京都府知事(11)第6353号 | 取引態様 | 仲介 |
| 不動産会社管理番号 | kyotolife_11676-106-26 | 当社管理番号 | 463 |
| 所属団体 | 京都府宅地建物取引業協会\n公益社団法人近畿地区不動産公正取引協議会 | ||
| 公正取引協議会 | 全国宅地建物取引業保証協会 | ||
| 取扱い物件情報 | 物件詳細へ | ||
※各種情報と現状に差異がある場合は、現状優先となります。問い合わせをすることで、より詳しい条件、情報を確認する事ができます。
提供:株式会社 京都ライフ 河原町四条店(賃貸スモッカ経由)
この物件が気になったら掲載期限まであと5日
グラーベンハウゼに条件(家賃・エリア)が近い物件一覧
| 写真 | 家賃 管理費等 | 敷金 礼金 | 間取り 専有面積 | 築年数 | 最寄り駅 所在地 | キープ | 詳細 |
|---|---|---|---|---|---|---|---|
一戸建て 山陰本線 馬堀駅 徒歩13分 築53年(3K) | |||||||
![]() | 3.5万円 なし | 3.5万円 3.5万円 | 3K 50.04m2 | 築53年 | 山陰本線 馬堀駅 徒歩13分 山陰本線 亀岡駅 徒歩40分 山陰本線 並河駅 徒歩85分 京都府亀岡市篠町見晴 | 詳細を見る | |
マンション 京都市烏丸線 北大路駅 徒歩33分 築38年(1K/3階) | |||||||
![]() | 3.7万円 4,000円 | なし なし | 1K 27.36m2 | 築38年 | 京都市烏丸線 北大路駅 徒歩33分 京都市烏丸線 北山駅(京都) 徒歩35分 京都府京都市北区上賀茂葵之森町 | 詳細を見る | |
マンション 近鉄京都線 小倉駅(京都) 徒歩5分 築12年(1K/6階) | |||||||
![]() | 5.9万円 5,000円 | 5.9万円 11.8万円 | 1K 34.12m2 | 築12年 | 近鉄京都線 小倉駅(京都) 徒歩5分 奈良線 JR小倉駅 徒歩6分 京都府宇治市小倉町 | 詳細を見る | |
マンション 叡山電鉄 元田中駅 徒歩12分 築31年(1K/3階) | |||||||
![]() | 4万円 3,000円 | 4万円 なし | 1K 20m2 | 築31年 | 叡山電鉄 元田中駅 徒歩12分 京阪電気鉄道鴨東線 出町柳駅 徒歩25分 京都府京都市左京区北白川堂ノ前町 | 詳細を見る | |
マンション 阪急電鉄京都線 長岡天神駅 徒歩7分 築29年(1K/3階) | |||||||
![]() | 5.2万円 5,000円 | なし 5.2万円 | 1K 24.42m2 | 築29年 | 阪急電鉄京都線 長岡天神駅 徒歩7分 東海道本線 長岡京駅 徒歩17分 京都府長岡京市長岡2丁目 | 詳細を見る | |
マンション 京都市烏丸線 北大路駅 徒歩33分 築38年(1K/4階) | |||||||
![]() | 3.6万円 4,000円 | なし なし | 1K 27.36m2 | 築38年 | 京都市烏丸線 北大路駅 徒歩33分 京都市烏丸線 北山駅(京都) 徒歩35分 京都府京都市北区上賀茂葵之森町 | 詳細を見る | |
マンション 近鉄京都線 伊勢田駅 徒歩2分 築25年(ワンルーム/2階) | |||||||
![]() | 5.4万円 5,000円 | なし なし | ワンルーム 28.59m2 | 築25年 | 近鉄京都線 伊勢田駅 徒歩2分 近鉄京都線 大久保駅(京都) 徒歩10分 京都府宇治市伊勢田町大谷 | 詳細を見る | |






